New Apartments » Kanto » Saitama Prefecture » Shiki


Property name
Shiki no Mori terrace
Time residents
Immediate Available (various procedures end as soon as Available)
Floor plan
3LDK
Units sold
3 units
Occupied area
73.86 sq m
Address
Saitama Prefecture Shiki Kashiwamachi 1-930-1
Traffic
Tobu Tojo Line "Shiki" a 5-minute bus "market Sakagami" Tomafu 3 minutes
Tobu Tojo Line "Shiki" walk 19 minutes
Sale schedule
January 2014 mid-re-registration acceptance plan
Completion date
February 25, 2013
Number of units
3 units
Price
26,900,000 yen ~ 28,300,000 yen
Administrative expense
11,000 yen / Month
Management reserve
11,100 yen (lump sum)
Repair reserve
4950 yen / Month
Repair reserve fund
237,600 yen (lump sum)
Other area
Balcony area: 11.88 sq m , Private garden: 18 sq m (use fee 900 yen / Month), Terrace: 12 sq m (use fee Mu)
Predetermined price
27,100,000 yen ~ 35,900,000 yen
Will most price range
27 million yen
Property type
Mansion
Total units
257 units (other There is one household management person room)
Structure-storey
RC11 story
Construction area
4429.02 sq m
Building floor area
26097.83 sq m
Site area
10389.25 sq m
Site of the right form
Share of ownership
Use district
Semi-industrial area
Parking lot
72 cars on-site (fee 900 yen ~ 6000 yen / Month, Total number: flat. ・ Self-propelled 261 units ※ Three for out visitors ・ One car wash space ・ Including one for disabled space)
Bicycle-parking space
Cycle port: 257 compartment (fee: free)
Bike shelter
13 cars (fee 1000 yen / Month)
Management form
Consignment (commuting)
Other overview
Building confirmation number: No. UHEC Ken確 23,590 (fiscal date 24 February 23)
About us
<Seller ・ Marketing alliance (agency)> Minister of Land, Infrastructure and Transport (2) No. 6814 (one company) Real Estate Association (Corporation) metropolitan area real estate Fair Trade Council member General Estate Co., Ltd. Yubinbango105-0011 Tokyo, Minato-ku, Shiba 2-4-1 Shiba Park Building A Museum 7th floor <marketing alliance (agency)> Minister of Land, Infrastructure and Transport (9) No. 3175 (one company) Real Estate Association (One company) Property distribution management Association (Corporation) metropolitan area real estate Fair Trade Council member, Inc. HaseTakumiabesuto Yubinbango105-8545 Shiba, Minato-ku, Tokyo 2-32-1
Construction
HASEKO Corporation
Management
Comprehensive Housing Service Co., Ltd.


About 20 tatami mats of spacious living ・ Dining (tatami corner included). Ensure the spacious living room space
About 20 tatami mats of spacious living ・ Dining (tatami corner included). Ensure the spacious living room space

The bright sunlight that pours down from the southeast-facing wide openings, We crowded wrapped comfortably moments of family reunion
The bright sunlight that pours down from the southeast-facing wide openings, We crowded wrapped comfortably moments of family reunion

Changes to the tatami corner the Japanese style of living side by E-label system. It can be used for multi-purpose, A spacious indoor space
Changes to the tatami corner the Japanese style of living side by E-label system. It can be used for multi-purpose, A spacious indoor space

Powder Room / Equipped with a three-sided mirror that back became a storage space
Powder Room / Equipped with a three-sided mirror that back became a storage space

kitchen / living ・ Face-to-face open type with an increased sense of unity with the dining. Also includes a flow line of the Powder Room
kitchen / living ・ Face-to-face open type with an increased sense of unity with the dining. Also includes a flow line of the Powder Room

Entrance / Bright entrance to incorporate natural light from the window. Large shoe box, Equipped with a counter
Entrance / Bright entrance to incorporate natural light from the window. Large shoe box, Equipped with a counter

Bathroom / Room of 1.6m × 2.0m. Coupled with a feeling of opening by the window, Further deepen more bath time relaxation
Bathroom / Room of 1.6m × 2.0m. Coupled with a feeling of opening by the window, Further deepen more bath time relaxation

Hallway cupboard / Installing an incoming two things that you can, such as daily necessities and accessories are housed in a corridor
Hallway cupboard / Installing an incoming two things that you can, such as daily necessities and accessories are housed in a corridor

Western-style (1) / Worthy of the master bedroom, About 7 tatami spacious space
Western-style (1) / Worthy of the master bedroom, About 7 tatami spacious space

Multi-closet / About 2.5 tatami of clothing to space, Small items can be stored
Multi-closet / About 2.5 tatami of clothing to space, Small items can be stored

Private room / It can be used to study or hobby room, Highly independent space (adopting the E-label system)
Private room / It can be used to study or hobby room, Highly independent space (adopting the E-label system)

Directions to the model room (a word from the person in charge)
Directions to the model room (a word from the person in charge)

Supermarket, Home center, Authorization nursery school, park ・ Align the elderly welfare facilities (planned) is, Large complex city
Supermarket, Home center, Authorization nursery school, park ・ Align the elderly welfare facilities (planned) is, Large complex city

Shiki no Mori terrace

Shiki no Mori terrace. (living ・ kitchen ・ bath ・ bathroom ・ toilet ・ balcony ・ terrace ・ Private garden ・ Storage, etc.)
(living ・ kitchen ・ bath ・ bathroom ・ toilet ・ balcony ・ terrace ・ Private garden ・ Storage, etc.)

living ・ dining / Look at the balcony from the room side
living ・ dining / Look at the balcony from the room side

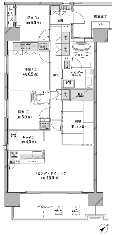
 ■ 73G type ・ 3LDK / 4th secondary footprint / 73.86 sq m balcony area / 12 sq m (2 ・ 3rd floor) balcony area / 11.88 sq m (4 ~ 11th floor)
■ 73G type ・ 3LDK / 4th secondary footprint / 73.86 sq m balcony area / 12 sq m (2 ・ 3rd floor) balcony area / 11.88 sq m (4 ~ 11th floor)

kitchen / Spacious kitchen counter type
kitchen / Spacious kitchen counter type

living ・ dining / View the room from the balcony side
living ・ dining / View the room from the balcony side

balcony / Open space wide balcony weave
balcony / Open space wide balcony weave

living ・ dining / Look at the balcony from the room side
living ・ dining / Look at the balcony from the room side

 ■ 95B type ・ 4LDK / 4th secondary footprint / 94.93 sq m balcony area / 12.80 sq m (2 ・ 3 ・ 5 ・ 7 ・ 9 ・ 11 floor) balcony area / 12.68 sq m (4 ・ 6 ・ 8 ・ 10 floor) service balcony area / 1.51 sq m
■ 95B type ・ 4LDK / 4th secondary footprint / 94.93 sq m balcony area / 12.80 sq m (2 ・ 3 ・ 5 ・ 7 ・ 9 ・ 11 floor) balcony area / 12.68 sq m (4 ・ 6 ・ 8 ・ 10 floor) service balcony area / 1.51 sq m

living ・ dining / View the room from the balcony side
living ・ dining / View the room from the balcony side

dining / Relaxed some dining space
dining / Relaxed some dining space

kitchen / Lighting pours bright kitchen
kitchen / Lighting pours bright kitchen

Common utility

Common utility.  [Flat. ・ Self-propelled parking 100%] Out privileges is easy flat. ・ All houses worth installing a self-propelled parking in the chain gate. In addition to one minute for three minutes and the Handicapped visitors, Also features a car wash space. (The photograph is an example of a car to be parked)
[Flat. ・ Self-propelled parking 100%] Out privileges is easy flat. ・ All houses worth installing a self-propelled parking in the chain gate. In addition to one minute for three minutes and the Handicapped visitors, Also features a car wash space. (The photograph is an example of a car to be parked)

Common utility.  [Bicycle "cycle port" 100% equipped with roof] (Image illustrations)
[Bicycle "cycle port" 100% equipped with roof] (Image illustrations)

Common utility.  [Delivery Box] Luggage of luggage (except for the raw ones) ・ Received by the installation OK in the delivery box at any time 24 hours. (Same specifications)
[Delivery Box] Luggage of luggage (except for the raw ones) ・ Received by the installation OK in the delivery box at any time 24 hours. (Same specifications)

Security

Security.  [Security system] By partnering with ALSOK, 24 hours a day, every day, Introducing watch the living "Owl 24". By any chance, If in such dwelling unit within and shared facilities has occurred abnormal situation such as a fire is, Automatically reported to ALSOK through "Owl 24 Center" from the alarm monitoring panel of the administrative office. Such as security guards rush from the nearest depot (emergency call base), To respond quickly. (Conceptual diagram)
[Security system] By partnering with ALSOK, 24 hours a day, every day, Introducing watch the living "Owl 24". By any chance, If in such dwelling unit within and shared facilities has occurred abnormal situation such as a fire is, Automatically reported to ALSOK through "Owl 24 Center" from the alarm monitoring panel of the administrative office. Such as security guards rush from the nearest depot (emergency call base), To respond quickly. (Conceptual diagram)

Security.  [Auto-lock system with a TV monitor] The entrance of visitors, System to unlock the auto-lock after checking with voice and video by color monitor in the dwelling unit. Because with recording function, You can also check visitors in the absence. (Conceptual diagram)
[Auto-lock system with a TV monitor] The entrance of visitors, System to unlock the auto-lock after checking with voice and video by color monitor in the dwelling unit. Because with recording function, You can also check visitors in the absence. (Conceptual diagram)

Security.  [Crime prevention thumb turn] The entrance door has adopted a crime prevention thumb. (Same specifications)
[Crime prevention thumb turn] The entrance door has adopted a crime prevention thumb. (Same specifications)

Security.  [Double Rock] Providing a key cylinder up and down two places to the front door, It has extended crime prevention effect. (Same specifications)
[Double Rock] Providing a key cylinder up and down two places to the front door, It has extended crime prevention effect. (Same specifications)

Security.  [Deadbolt lock with sickle] The entrance door has adopted a sickle with a dead bolt to defend against prying at the bar. (Same specifications)
[Deadbolt lock with sickle] The entrance door has adopted a sickle with a dead bolt to defend against prying at the bar. (Same specifications)

Features of the building

Features of the building.  [appearance] (Rendering)
[appearance] (Rendering)

Features of the building.  [Escort Garden] (Rendering)
[Escort Garden] (Rendering)

Features of the building.  [Public living] (Rendering)
[Public living] (Rendering)

Features of the building.  [Public living] (Rendering)
[Public living] (Rendering)

Features of the building.  [Season patio] (Rendering)
[Season patio] (Rendering)

Features of the building.  [Porte-cochere] (Rendering)
[Porte-cochere] (Rendering)

Earthquake ・ Disaster-prevention measures

earthquake ・ Disaster-prevention measures. Emergency manhole toilet
Emergency manhole toilet

earthquake ・ Disaster-prevention measures.  [The bench also serves soup kitchen stove] (Same specifications)
[The bench also serves soup kitchen stove] (Same specifications)

earthquake ・ Disaster-prevention measures.  [Emergency drinking water generation system "WELL UP"] (The photo shows the same specification)
[Emergency drinking water generation system "WELL UP"] (The photo shows the same specification)

Building structure

Building structure.  [Housing Performance Evaluation Report] Through a review by the Land, Infrastructure and Transport third-party organization that the Minister has registered, Housing quality corresponds to the housing performance which are valued fairly and objectively.  ※ All houses subject. For more information see "Housing term large Dictionary"
[Housing Performance Evaluation Report] Through a review by the Land, Infrastructure and Transport third-party organization that the Minister has registered, Housing quality corresponds to the housing performance which are valued fairly and objectively. ※ All houses subject. For more information see "Housing term large Dictionary"

Building structure.  [Saitama Prefecture condominium environmental performance display] Based on the efforts of a particular building environment-friendly plan that building owners to submit in Saitama Prefecture, Ratio of greening, And CO2 reduction rate, Display the appropriate main features, Will be displayed in five levels for comprehensive evaluation (star mark).  ※ For more information see "Housing term large Dictionary"
[Saitama Prefecture condominium environmental performance display] Based on the efforts of a particular building environment-friendly plan that building owners to submit in Saitama Prefecture, Ratio of greening, And CO2 reduction rate, Display the appropriate main features, Will be displayed in five levels for comprehensive evaluation (star mark). ※ For more information see "Housing term large Dictionary"

Building structure.  [Long Quality ・ Mansion] And nice house, A good environment, Cherish everyone. that is, "Long Quality ・ Feelings of the apartment ".
[Long Quality ・ Mansion] And nice house, A good environment, Cherish everyone. that is, "Long Quality ・ Feelings of the apartment ".

Surrounding environment

Surrounding environment. Inageya (about 130m / A 2-minute walk)
Inageya (about 130m / A 2-minute walk)

Surrounding environment. Viva Home (about 130m / A 2-minute walk)
Viva Home (about 130m / A 2-minute walk)

Surrounding environment. Shiki City Hall (about 350m / A 5-minute walk)
Shiki City Hall (about 350m / A 5-minute walk)

Surrounding environment. Art Child care Shiki (about 30m / 1-minute walk)
Art Child care Shiki (about 30m / 1-minute walk)

Surrounding environment. Municipal ABC nursery school (about 130m / A 2-minute walk)
Municipal ABC nursery school (about 130m / A 2-minute walk)

Surrounding environment. Daiei Shiki store (about 1310m / 17 minutes walk)
Daiei Shiki store (about 1310m / 17 minutes walk)

Surrounding environment. st. Tosca (about 1470m / 19 minutes walk)
st. Tosca (about 1470m / 19 minutes walk)

Surrounding environment. The ABCs of hydrophilic park Sunbeams road (about 450m / 6-minute walk)
The ABCs of hydrophilic park Sunbeams road (about 450m / 6-minute walk)

Floor: 3LDK + MC + WIC, the occupied area: 73.86 sq m, Price: 26,900,000 yen, now on sale

Floor: 3LDK + MC + WIC, the occupied area: 73.86 sq m, Price: 26,900,000 yen, now on sale
Floor: 3LDK + MC + WIC, the occupied area: 73.86 sq m, Price: 26,900,000 yen, now on sale

Floor: 3LDK + MC + WIC, the occupied area: 73.86 sq m, Price: 28,300,000 yen, now on sale

Floor: 3LDK + MC + WIC, the occupied area: 73.86 sq m, Price: 28,300,000 yen, now on sale
Floor: 3LDK + MC + WIC, the occupied area: 73.86 sq m, Price: 28,300,000 yen, now on sale

Floor: 3LDK + MC + WIC, the occupied area: 73.86 sq m, Price: 27,100,000 yen, now on sale

Floor: 3LDK + MC + WIC, the occupied area: 73.86 sq m, Price: 27,100,000 yen, now on sale
Floor: 3LDK + MC + WIC, the occupied area: 73.86 sq m, Price: 27,100,000 yen, now on sale

Floor: 3LDK + MC + WIC, the occupied area: 73.86 sq m, Price: TBD

Floor: 3LDK + MC + WIC, the occupied area: 73.86 sq m, Price: TBD
Floor: 3LDK + MC + WIC, the occupied area: 73.86 sq m, Price: TBD

Floor: 3LDK + MC, occupied area: 76.82 sq m, Price: TBD

Floor: 3LDK + MC, occupied area: 76.82 sq m, Price: TBD
Floor: 3LDK + MC, occupied area: 76.82 sq m, Price: TBD

Floor: 4LDK, occupied area: 94.67 sq m, Price: TBD

Floor: 4LDK, occupied area: 94.67 sq m, Price: TBD
Floor: 4LDK, occupied area: 94.67 sq m, Price: TBD

Floor: 4LDK, occupied area: 94.93 sq m, Price: TBD

Floor: 4LDK, occupied area: 94.93 sq m, Price: TBD
Floor: 4LDK, occupied area: 94.93 sq m, Price: TBD

Floor: 3LDK, occupied area: 73.92 sq m, Price: TBD

Floor: 3LDK, occupied area: 73.92 sq m, Price: TBD
Floor: 3LDK, occupied area: 73.92 sq m, Price: TBD


Location