New Apartments » Kanto » Saitama Prefecture » Shiki


Property name
Grobel Shiki Station Premiere
Time residents
February 26, 2014 plan
Price
45 million yen ・ 47,100,000 yen
Floor plan
3LDK(3LDK+3WIC)
Units sold
2 units
Occupied area
70.6 sq m
Address
Saitama Prefecture Shiki Honcho 5-2127-9
Traffic
Tobu Tojo Line "Shiki" walk 2 minutes
Sale schedule
First-come-first-served basis application being accepted ※ Reception hours are 10:00 AM ~ 7:00 PM, The location is the apartment gallery. ※ Identity verification documents (driver's license at the time of application ・ Health, such as insurance card) and the seal, 2011 ・ You must have income certificate of 24 years.
Completion date
February 26, 2014 plan
Number of units
2 units
Administrative expense
15,000 yen / Month
Repair reserve
6350 yen / Month
Repair reserve fund
381,000 yen (lump sum)
Other area
Balcony area: 11.89 sq m , Alcove area: 1.97 sq m
Property type
Mansion
Total units
35 units
Structure-storey
RC15 basement 1 story (flat roof, Co-housing)
Construction area
312.78 sq m
Building floor area
3029.04 sq m (including the volume of non-target area 544.87 sq m)
Site area
621.57 sq m (registration)
Site of the right form
Share of ownership
Use district
Commercial area
Parking lot
Six on-site (fee 15,000 yen ~ 19,000 yen / Month)
Bicycle-parking space
70 cars (fee 1200 yen ・ 2400 yen / Year)
Bike shelter
3 cars (fee 2000 yen / Month)
Management form
Consignment (commuting)
Other overview
Building confirmation number: No. HPA-12-03822-1 (2012 September 3, 2008),
No. HPA-12-03822-2 (2013 February 19, 2009) (plan change)
About us
<Employer ・ Seller> Minister of Land, Infrastructure and Transport (1) No. 8102 (one company) Real Estate Association (One company) National Housing Industry Association (Corporation) metropolitan area real estate Fair Trade Council member TSE II Listed Corporation Guroberusu Yubinbango151-0051 Shibuya-ku, Tokyo Sendagaya 1-30-8
Construction
(Ltd.) Yoshiwaragumi
Management
(Ltd.) Daikyo A stage


Buildings and facilities

Buildings and facilities. That above all happy, That it is connected directly at the train station and the pedestrian deck. A peace of mind because it is not necessary to cross the roadway, It is a spacious open-minded approach. In a good position in contact with the station square, Apartment was realized all households facing south will appear.  ※ CG synthesizing Exterior - Rendering to those from the local vicinity of the sky and the southeast (11 May 2012) taken ・ In fact a somewhat different in what was processed.
That above all happy, That it is connected directly at the train station and the pedestrian deck. A peace of mind because it is not necessary to cross the roadway, It is a spacious open-minded approach. In a good position in contact with the station square, Apartment was realized all households facing south will appear. ※ CG synthesizing Exterior - Rendering to those from the local vicinity of the sky and the southeast (11 May 2012) taken ・ In fact a somewhat different in what was processed.

Surrounding environment

Surrounding environment. Address the redevelopment project is completed, Sophisticated cityscape landscape spreads out "Shiki Honcho 5-chome". Same apartment to birth in just a 2-minute walk from the "Shiki" station east exit, It is worthy mansion to be referred to as "station Premiere". (local ・ Mansion gallery guide map)
Address the redevelopment project is completed, Sophisticated cityscape landscape spreads out "Shiki Honcho 5-chome". Same apartment to birth in just a 2-minute walk from the "Shiki" station east exit, It is worthy mansion to be referred to as "station Premiere". (local ・ Mansion gallery guide map)

Surrounding environment. Bae previous "Marui Family Shiki" of Pedestrian deck in front of the eyes ・ 100m. Station building "EQUiA" and "Shiki st.TOSCA" comfortable position unique that even the station location can feel free to use a variety of shops in the large-scale commercial facility such as. (Marui Family Shiki / About 100m ・ A 2-minute walk)
Bae previous "Marui Family Shiki" of Pedestrian deck in front of the eyes ・ 100m. Station building "EQUiA" and "Shiki st.TOSCA" comfortable position unique that even the station location can feel free to use a variety of shops in the large-scale commercial facility such as. (Marui Family Shiki / About 100m ・ A 2-minute walk)

Surrounding environment. In the express station of the Tobu Tojo Line, Tokyo Metro Yurakucho Line, In addition rode the Tokyu Toyoko line can be 3 available routes of Fukutoshin line, which started "Shiki" station. To the city to direct, To Yokohama. Action range is also rapidly spread likely. (Access view)
In the express station of the Tobu Tojo Line, Tokyo Metro Yurakucho Line, In addition rode the Tokyu Toyoko line can be 3 available routes of Fukutoshin line, which started "Shiki" station. To the city to direct, To Yokohama. Action range is also rapidly spread likely. (Access view)

Room and equipment

Room and equipment. Blum ・ Bull motion mechanism with slide stocker. Sliding can also easily out which was housed in the back. Slowly closing Blum ・ It is a storage space with a bull motion mechanism.  ※ Except for some small drawer. (Same specifications)
Blum ・ Bull motion mechanism with slide stocker. Sliding can also easily out which was housed in the back. Slowly closing Blum ・ It is a storage space with a bull motion mechanism. ※ Except for some small drawer. (Same specifications)

Room and equipment. Built-in dishwasher, etc., The pursuit of a comfortable life, Stylish equipment design and functionality in harmony ・ specification. (Same specifications)
Built-in dishwasher, etc., The pursuit of a comfortable life, Stylish equipment design and functionality in harmony ・ specification. (Same specifications)

Kitchen

Kitchen.  [kitchen] Adopt the artificial marble floating luxury in the counter top in the kitchen. It can also comfortably daily care is excellent in durability.  ※ Indoor photo of the web is model room E2 type. Some, including the option specification (paid ・ Application deadline Yes)
[kitchen] Adopt the artificial marble floating luxury in the counter top in the kitchen. It can also comfortably daily care is excellent in durability. ※ Indoor photo of the web is model room E2 type. Some, including the option specification (paid ・ Application deadline Yes)

Kitchen.  [Pearl Crystal top stove] Equipped with a temperature sensor to all stove burner. In addition to the temperature control function, Forgetting to turn off fire features, such as a specification that was also consideration to safety.
[Pearl Crystal top stove] Equipped with a temperature sensor to all stove burner. In addition to the temperature control function, Forgetting to turn off fire features, such as a specification that was also consideration to safety.

Kitchen.  [Low-noise specification sink with wire pocket] Suppress the reverberation when the flow of water. It will also be smooth conversation with family while cooking and cleaning up.  Is also a convenient wire pocket put a sponge and detergent.
[Low-noise specification sink with wire pocket] Suppress the reverberation when the flow of water. It will also be smooth conversation with family while cooking and cleaning up. Is also a convenient wire pocket put a sponge and detergent.

Kitchen.  [Door pocket storage] It can accommodate the cookware to be used around the sink in a vertical, What you need easily taken out you can see at a glance. It is useful because it can be opened and closed with the push of a door.
[Door pocket storage] It can accommodate the cookware to be used around the sink in a vertical, What you need easily taken out you can see at a glance. It is useful because it can be opened and closed with the push of a door.

Bathing-wash room

Bathing-wash room.  [bathroom] Adopt a soft-closing function with a three-sided mirror back storage. Because it is soft with a closing function close to slowly quiet to less worry about sandwiching the hand even when you close the door, Ease of use is also comfortable.
[bathroom] Adopt a soft-closing function with a three-sided mirror back storage. Because it is soft with a closing function close to slowly quiet to less worry about sandwiching the hand even when you close the door, Ease of use is also comfortable.

Bathing-wash room.  [Wash bowl integrated artificial marble counter] Artificial marble bowl adoption of seamless counter integrally molded. Also easy daily care in beautiful form.
[Wash bowl integrated artificial marble counter] Artificial marble bowl adoption of seamless counter integrally molded. Also easy daily care in beautiful form.

Bathing-wash room.  [Smart pocket] At the bottom of the counter, Installed and out easily pocket storage. This is useful, such as to accommodate small items.
[Smart pocket] At the bottom of the counter, Installed and out easily pocket storage. This is useful, such as to accommodate small items.

Bathing-wash room.  [bathroom] Simple and stylish i-X series. Also installed bathroom ventilation drying heater. Suppressing the occurrence of mold, Also useful, such as the washing of a rainy day. It keeps the comfort in the pre-heating and cool breeze function.
[bathroom] Simple and stylish i-X series. Also installed bathroom ventilation drying heater. Suppressing the occurrence of mold, Also useful, such as the washing of a rainy day. It keeps the comfort in the pre-heating and cool breeze function.

Bathing-wash room.  [3WAY massage shower head] Has adopted a shower head with a massage effect can taste function at the touch of a button.
[3WAY massage shower head] Has adopted a shower head with a massage effect can taste function at the touch of a button.

Bathing-wash room.  [Swish swish and clean the drain outlet] Easily gathered hair, Discarded easy to stainless steel hair catcher. It prevents dirt with a fluorine-based special coating.
[Swish swish and clean the drain outlet] Easily gathered hair, Discarded easy to stainless steel hair catcher. It prevents dirt with a fluorine-based special coating.

Other

Other.  [Tornado wash water-saving toilet bowl] Adopt a water-saving toilet bowl with a sufficient cleaning effect even with a small amount of water by devising. It can also contribute to the eco. (Conceptual diagram)
[Tornado wash water-saving toilet bowl] Adopt a water-saving toilet bowl with a sufficient cleaning effect even with a small amount of water by devising. It can also contribute to the eco. (Conceptual diagram)

Other.  [Eco Jaws] Eco Jaws, Reuse hot combustion gases exiting when warm water which has been exhausted without utilizing ever, It warms the water in advance. By the double effect of preheating, It can be heated with less gas consumption compared to the company's conventional type, It has achieved a high thermal efficiency by reducing the waste of energy.
[Eco Jaws] Eco Jaws, Reuse hot combustion gases exiting when warm water which has been exhausted without utilizing ever, It warms the water in advance. By the double effect of preheating, It can be heated with less gas consumption compared to the company's conventional type, It has achieved a high thermal efficiency by reducing the waste of energy.

Other.  [Thermal insulation double-glazing] Adopted adiabatic highly insulating glass having a hollow layer between the two sheets of plate glass. Since the heat insulating effect can be expected, You can save heating and cooling costs, It also contributes to energy saving. (Conceptual diagram)
[Thermal insulation double-glazing] Adopted adiabatic highly insulating glass having a hollow layer between the two sheets of plate glass. Since the heat insulating effect can be expected, You can save heating and cooling costs, It also contributes to energy saving. (Conceptual diagram)

Other.  [One push door stopper] The entrance of the room is fixed in a state that opened the door, It has established a one-push type of stopper. Fixing of the door with a simple operation ・ We care so as to be released.
[One push door stopper] The entrance of the room is fixed in a state that opened the door, It has established a one-push type of stopper. Fixing of the door with a simple operation ・ We care so as to be released.

Other.  [Assist the pull tab] living ・ Exhale window of dining is an emphasis on lighting for a large opening, Sash is likely to be heavy. there, It has established an assist pull-tab for easy opening and closing.
[Assist the pull tab] living ・ Exhale window of dining is an emphasis on lighting for a large opening, Sash is likely to be heavy. there, It has established an assist pull-tab for easy opening and closing.

Other.  [Friendly assistance for space] Passable in assistance for wheelchair has secured the width of the corridor width and the doorway. Also, It has established a handrail in the bathroom. (Conceptual diagram)
[Friendly assistance for space] Passable in assistance for wheelchair has secured the width of the corridor width and the doorway. Also, It has established a handrail in the bathroom. (Conceptual diagram)

Other.  [Create a healthy air environment, 24 hours low air flow ventilation system] Is able indoor ventilation without opening and closing of the window, 24 hours low air flow ventilation system. In particular tend confined moisture, Powder Room ・ toilet ・ Since the air of the bathroom also is discharged to the 24-hour outdoor, Generation and mold condensation ・ It reduces the breeding of mites.
[Create a healthy air environment, 24 hours low air flow ventilation system] Is able indoor ventilation without opening and closing of the window, 24 hours low air flow ventilation system. In particular tend confined moisture, Powder Room ・ toilet ・ Since the air of the bathroom also is discharged to the 24-hour outdoor, Generation and mold condensation ・ It reduces the breeding of mites.

Other.  [Visualization of power consumption "FLET ・ Miruene "] "FLET ・ Miruene "is the current power consumption of the family, In handy confirmation can be serviced at a glance, It helps to save power by the power consumption of control. The amount of power dedicated terminal, computer, You can check on your smartphone screen.  ※ "FLET ・ The use of Miruene "requires a contract with the contract and the provider of FLET'S Hikari. Also, "FLET ・ Miruene "requires monthly fee and the like of.  ※ It requires broadband router PPPoE support for the power consumption information collection. (Same specifications
[Visualization of power consumption "FLET ・ Miruene "] "FLET ・ Miruene "is the current power consumption of the family, In handy confirmation can be serviced at a glance, It helps to save power by the power consumption of control. The amount of power dedicated terminal, computer, You can check on your smartphone screen. ※ "FLET ・ The use of Miruene "requires a contract with the contract and the provider of FLET'S Hikari. Also, "FLET ・ Miruene "requires monthly fee and the like of. ※ It requires broadband router PPPoE support for the power consumption information collection. (Same specifications

Shared facilities

Shared facilities.  [All houses MinamiMuko, About corner dwelling unit rate of 80%. Form to shine in front of the station] The pedestrian deck in front, Dignified style is impressive design. As Station landmark, It emits a presence worthy of the premium location. (Exterior view)
[All houses MinamiMuko, About corner dwelling unit rate of 80%. Form to shine in front of the station] The pedestrian deck in front, Dignified style is impressive design. As Station landmark, It emits a presence worthy of the premium location. (Exterior view)

Shared facilities.  [Entrance to draw a graceful elegant in streets] Simple and elegant entrance to set up one step back from the street. Tile Ya who praised the deep luster, Green planting is, Decorate the approach to the private residence space. (Entrance Rendering)
[Entrance to draw a graceful elegant in streets] Simple and elegant entrance to set up one step back from the street. Tile Ya who praised the deep luster, Green planting is, Decorate the approach to the private residence space. (Entrance Rendering)

Shared facilities.  [Entrance Hall to welcome the appearance that there is calm and elegance] And the pillar of the mosaic tiles that take advantage of the texture of the soil to accent, Entrance Hall which has been subjected to a stylish arrangement. Ashirai mirror on the wall, Also directing airy. (Entrance Hall Rendering)
[Entrance Hall to welcome the appearance that there is calm and elegance] And the pillar of the mosaic tiles that take advantage of the texture of the soil to accent, Entrance Hall which has been subjected to a stylish arrangement. Ashirai mirror on the wall, Also directing airy. (Entrance Hall Rendering)

Common utility

Common utility.  [Apartment to be able to live with pets] I could live with a member of the important family pet.  ※ Pet of the type that frog in the apartment ・ There is a limit to the size, etc.. For more information, please contact the person in charge.  ※ The photograph is an example of a pet frog.
[Apartment to be able to live with pets] I could live with a member of the important family pet. ※ Pet of the type that frog in the apartment ・ There is a limit to the size, etc.. For more information, please contact the person in charge. ※ The photograph is an example of a pet frog.

Common utility.  [24 hours at any time garbage can out] Since there is provided a garbage yard put out garbage at any time for 24 hours on the first floor common area, Clean keep the inside of the dwelling unit.
[24 hours at any time garbage can out] Since there is provided a garbage yard put out garbage at any time for 24 hours on the first floor common area, Clean keep the inside of the dwelling unit.

Common utility.  [Home delivery locker + mailbox integrated] The luggage at the time of absence by simply holding the non-contact key leaders can receive 24 hours. Dial lock and room number display ・ It simplifies operation by eliminating confirmation window, Privacy resistance even we have extended. (Same specifications)
[Home delivery locker + mailbox integrated] The luggage at the time of absence by simply holding the non-contact key leaders can receive 24 hours. Dial lock and room number display ・ It simplifies operation by eliminating confirmation window, Privacy resistance even we have extended. (Same specifications)

Security

Security.  [5 double security system that achieves a high level of security of] Re staring at the system from the ground up, Build sophisticated security system. The auto-lock of the contactless key corresponding installed in a shared entrance and elevator hall, Adopt a functional facilities such as a double-lock and security sensors of the entrance door to the dwelling unit. Guroberusu own quintuple of security system will watch over the peace of mind of living. (Conceptual diagram)
[5 double security system that achieves a high level of security of] Re staring at the system from the ground up, Build sophisticated security system. The auto-lock of the contactless key corresponding installed in a shared entrance and elevator hall, Adopt a functional facilities such as a double-lock and security sensors of the entrance door to the dwelling unit. Guroberusu own quintuple of security system will watch over the peace of mind of living. (Conceptual diagram)

Security.  [Non-contact key corresponding auto-lock system] Unlock the auto-lock by holding the key to a non-contact key corresponding receiver. Visitor captures the intercom of the camera, You can unlock after checking with the video from within the dwelling unit. (Same specifications)
[Non-contact key corresponding auto-lock system] Unlock the auto-lock by holding the key to a non-contact key corresponding receiver. Visitor captures the intercom of the camera, You can unlock after checking with the video from within the dwelling unit. (Same specifications)

Security.  [Non-contact key corresponding security Elevator] Can check the video in the elevator at the installation has been monitored before the first floor of the elevator, It is safe for such return home of the late women's night. Also is a security elevator that does not ride and not held over a non-contact key to the receiver. (Same specifications)
[Non-contact key corresponding security Elevator] Can check the video in the elevator at the installation has been monitored before the first floor of the elevator, It is safe for such return home of the late women's night. Also is a security elevator that does not ride and not held over a non-contact key to the receiver. (Same specifications)

Security.  [Entrance before the camera built-in intercom] After confirming the visitors in the communal entrance, You can corresponding be from further confirmation in the camera image of even before the entrance.  ※ Image will be quasi-video. (Same specifications)
[Entrance before the camera built-in intercom] After confirming the visitors in the communal entrance, You can corresponding be from further confirmation in the camera image of even before the entrance. ※ Image will be quasi-video. (Same specifications)

Security.  [Secom ・ Mansion system] The safety of each dwelling unit has introduced an apartment system by Secom to watch a 24-hour online system.
[Secom ・ Mansion system] The safety of each dwelling unit has introduced an apartment system by Secom to watch a 24-hour online system.

Security.  [Security sensors to dwelling unit of the windows and entrance door] After you set the security sensors, By the signal from the magnet sensor when the window is open, Intercom linked, To send an abnormal signal to the security company with toot to inform the trespassing.  ※ Surface gridded windows except. (Same specifications)
[Security sensors to dwelling unit of the windows and entrance door] After you set the security sensors, By the signal from the magnet sensor when the window is open, Intercom linked, To send an abnormal signal to the security company with toot to inform the trespassing. ※ Surface gridded windows except. (Same specifications)

Earthquake ・ Disaster-prevention measures

earthquake ・ Disaster-prevention measures.  [Tai Sin door frame] By any chance when a large earthquake occurs, In order to prevent a situation where the front door can not be opened and closed by deformation, Tai Sin has adopted the entrance door frame. (Conceptual diagram)
[Tai Sin door frame] By any chance when a large earthquake occurs, In order to prevent a situation where the front door can not be opened and closed by deformation, Tai Sin has adopted the entrance door frame. (Conceptual diagram)

earthquake ・ Disaster-prevention measures.  [Elevator with earthquake control function] If you feel a certain level of shaking, It has adopted a seismic control driving device to stop the nearest floor.
[Elevator with earthquake control function] If you feel a certain level of shaking, It has adopted a seismic control driving device to stop the nearest floor.

earthquake ・ Disaster-prevention measures.  [LED Home security lighting] Installing the LED home security lighting that automatically turns on after a power outage in the hallway. It can also be used as an emergency flashlight Remove.  ※ There is a limit to the lighting time. (Same specifications)
[LED Home security lighting] Installing the LED home security lighting that automatically turns on after a power outage in the hallway. It can also be used as an emergency flashlight Remove. ※ There is a limit to the lighting time. (Same specifications)

Building structure

Building structure.  [Double floor ・ Double ceiling] Floor slab thickness between the dwelling unit is realized more than 200mm. Double floor with excellent such as the absorption of the floor impact sound by the warmth and cushion the effect compared to a linear floor. Good walking feeling, To reduce the impact on the body, There is merit in maintenance of the piping is likely to. Also, It makes it easier to respond to future reform by passing the wiring in the ceiling. (Conceptual diagram)
[Double floor ・ Double ceiling] Floor slab thickness between the dwelling unit is realized more than 200mm. Double floor with excellent such as the absorption of the floor impact sound by the warmth and cushion the effect compared to a linear floor. Good walking feeling, To reduce the impact on the body, There is merit in maintenance of the piping is likely to. Also, It makes it easier to respond to future reform by passing the wiring in the ceiling. (Conceptual diagram)

Building structure.  [Double reinforcement] Has adopted a double reinforcement to partner the rebar, such as outer wall and Tosakaikabe in two rows. To exhibit high strength in comparison with the single reinforcement, It has realized the excellent durability and high strength.  ※ Some double plover Reinforcement (conceptual diagram)
[Double reinforcement] Has adopted a double reinforcement to partner the rebar, such as outer wall and Tosakaikabe in two rows. To exhibit high strength in comparison with the single reinforcement, It has realized the excellent durability and high strength. ※ Some double plover Reinforcement (conceptual diagram)

Building structure.  [outer wall ・ Structure of Tosakaikabe] The thickness of the concrete outer wall 150mm or more, It has secured more than Tosakaikabe 180mm. Also consideration of the sound insulation properties such as life sound along with the durability. (Conceptual diagram)
[outer wall ・ Structure of Tosakaikabe] The thickness of the concrete outer wall 150mm or more, It has secured more than Tosakaikabe 180mm. Also consideration of the sound insulation properties such as life sound along with the durability. (Conceptual diagram)

Building structure.  [Opening reinforcement] The wall around the opening, Ya external force applied to the case of an earthquake, Such as the force that concrete is generated when the contraction is likely to gather in the dry, Structure on the cracks have become more likely to occur. In that part, By the addition of vertical stripes and horizontal stripes add a reinforcement of the diagonal, With the aim of reinforcing effect against cracking.  ※ Pillar ・ Excluding the opening in the immediate vicinity of the beam (conceptual diagram)
[Opening reinforcement] The wall around the opening, Ya external force applied to the case of an earthquake, Such as the force that concrete is generated when the contraction is likely to gather in the dry, Structure on the cracks have become more likely to occur. In that part, By the addition of vertical stripes and horizontal stripes add a reinforcement of the diagonal, With the aim of reinforcing effect against cracking. ※ Pillar ・ Excluding the opening in the immediate vicinity of the beam (conceptual diagram)

Building structure.  [Acquisition of residence certificate to "Housing Performance Evaluation Report"] The part invisible, Peace of mind that can be found in such as numbers and grade. Thing is, such as the "house of the expert evidence," so to speak for the general consumer the country began the "Housing Performance Evaluation Report".  ※ For more information see "Housing term large Dictionary".
[Acquisition of residence certificate to "Housing Performance Evaluation Report"] The part invisible, Peace of mind that can be found in such as numbers and grade. Thing is, such as the "house of the expert evidence," so to speak for the general consumer the country began the "Housing Performance Evaluation Report". ※ For more information see "Housing term large Dictionary".

Surrounding environment

Surrounding environment. Shiki Station
Shiki Station

Surrounding environment. st.TOSCA (Station)
st.TOSCA (Station)

Surrounding environment. Marui Family Shiki (Station)
Marui Family Shiki (Station)

Surrounding environment. Seijo Ishii Ekia Shiki store (Station)
Seijo Ishii Ekia Shiki store (Station)

Surrounding environment. Ion Niiza store (about 450m ・ 6-minute walk)
Ion Niiza store (about 450m ・ 6-minute walk)

Surrounding environment. Keio Shiki Senior High School (about 290m ・ 4-minute walk)
Keio Shiki Senior High School (about 290m ・ 4-minute walk)

Surrounding environment. Blanche ・ Neige (about 180m ・ A 3-minute walk)
Blanche ・ Neige (about 180m ・ A 3-minute walk)

Surrounding environment. Central Wellness Club Shiki (about 370m ・ A 5-minute walk)
Central Wellness Club Shiki (about 370m ・ A 5-minute walk)

Surrounding environment. Ohara Ponpoko park (about 620m ・ An 8-minute walk)
Ohara Ponpoko park (about 620m ・ An 8-minute walk)

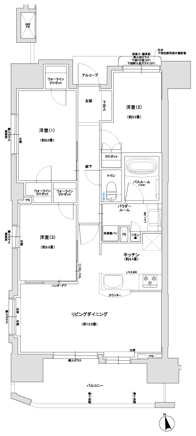
Floor: 3LDK + 3WIC, the area occupied: 70.6 sq m, price: 45 million yen, currently on sale

Floor: 3LDK + 3WIC, the area occupied: 70.6 sq m, price: 45 million yen, currently on sale
Floor: 3LDK + 3WIC, the area occupied: 70.6 sq m, price: 45 million yen, currently on sale


Location