New Apartments » Kanto » Tokyo » Bunkyo


Property name
The ・ Park House Yushima Tatsuoka machi
Time residents
Mid-January 2015
Floor plan
2LDK ~ 3LDK
Units sold
7 units
Occupied area
57.11 sq m ~ 85.2 sq m
Address
Tokyo, Bunkyo-ku Yushima 4-16-1
Traffic
Tokyo Metro Chiyoda Line "Yushima" walk 8 minutes
Toei Oedo Line "Hongo Sanchome" walk 9 minutes
Tokyo Metro Marunouchi Line "Hongo Sanchome" walk 11 minutes
Sale schedule
First-come-first-served basis application in the accepted time / Weekdays 11:00 AM ~ 6:00PM, Saturdays, Sundays, and holidays 10:00 AM ~ 6:00 PM location / Myogadani gallery ※ Seal and 2011 at the time of the application is ・ Revenue certificates and identification documents of 24 years is required.
Completion date
November 2014 mid-scheduled
Number of units
7 units
Price
60,900,000 yen ~ 98,800,000 yen
Administrative expense
15,600 yen ~ 23,260 yen / Month
Management reserve
15,600 yen ~ 23,260 yen (lump sum)
Repair reserve
5720 yen ~ 8520 yen / Month
Repair reserve fund
571,100 yen ~ 852,000 yen (lump sum)
Other expenses
Internet flat rate: 1674 yen / Month, Co-viewing equipment cost: 432 yen / Month
Other area
Balcony area: 4.64 sq m ~ 6.51 sq m , Roof balcony: 18.61 sq m (use fee 560 yen / Month)
Predetermined price
Undecided
Will most price range
Undecided
Property type
Mansion
Total units
56 units ( ※ Other control room)
Structure-storey
RC7 floors 1 underground story
Construction area
1090.84 sq m
Building floor area
5981.61 sq m
Site area
1602.14 sq m , (Buying and selling the subject area)
Site of the right form
Share of ownership
Use district
First-class medium and high-rise exclusive residential area
Parking lot
20 cars on-site (fee 37,000 yen / Month, Out for one visitor, For one handicapped ※ Mechanical)
Bicycle-parking space
80 cars (200 yen fee ~ 300 yen / Month)
Mini bike shelter
6 cars (1,500 yen fee / Month)
Management form
Consignment (commuting)
Other overview
Building confirmation number: first UHEC Ken確 24,589 strange No. 1 (2013 August 21, 2008)
About us
<Seller> Minister of Land, Infrastructure and Transport (14) No. 408 (one company) Real Estate Association (Corporation) metropolitan area real estate Fair Trade Council member Mitsubishi Estate Co., Ltd. Residence Yubinbango100-8189 Otemachi, Chiyoda-ku, Tokyo 1-6-1
Construction
(Ltd.) Asanumagumi
Management
Mitsubishi Estate Community (Ltd.)
Notice
※ Because of the consumption tax hike, Planned consumption tax rate of 8% will be applied in the case of delivery on or after April 1, 2014. For delivery the same property is on or after April 1,, Prices are displayed on the 8%.


Entrance Rendering CG
Entrance Rendering CG

Local neighborhood streets (about 120m)
Local neighborhood streets (about 120m)

University of Tokyo Akamon (about 1000m)
University of Tokyo Akamon (about 1000m)

Former Iwasaki House garden (about 350m)
Former Iwasaki House garden (about 350m)

Entrance Rendering CG
Entrance Rendering CG

living ・ dining
living ・ dining

living ・ dining
living ・ dining

Cupboard
Cupboard

Kitchen
Kitchen

Bathroom
Bathroom

Dish washing and drying machine
Dish washing and drying machine

bathroom
bathroom

Western-style 1 (approximately 8.1 tatami mats)
Western-style 1 (approximately 8.1 tatami mats)

Western-style 2 (approximately 5.5 tatami mats)
Western-style 2 (approximately 5.5 tatami mats)

Color scheme swatches left: [Sumi SUMI] / Right: [tree MOKU]
Color scheme swatches left: [Sumi SUMI] / Right: [tree MOKU]

Directions to the model room (a word from the person in charge)
Directions to the model room (a word from the person in charge)

Location ・ Peripheral / It was loved by the ancient literary master, Streets with a quiet and calm
Location ・ Peripheral / It was loved by the ancient literary master, Streets with a quiet and calm

The ・ Park House Yushima Tatsuoka machi

The ・ Park House Yushima Tatsuoka machi. (living ・ kitchen ・ bath ・ bathroom ・ toilet ・ balcony ・ terrace ・ Private garden ・ Storage, etc.)
(living ・ kitchen ・ bath ・ bathroom ・ toilet ・ balcony ・ terrace ・ Private garden ・ Storage, etc.)

Local neighborhood of streets (2-minute walk ・ About 150m)
Local neighborhood of streets (2-minute walk ・ About 150m)

Local peripheral conceptual diagram
Local peripheral conceptual diagram

Ueno Park (walk 17 minutes ・ About 1300m)
Ueno Park (walk 17 minutes ・ About 1300m)

Shinobazunoike (7 min walk ・ About 550m)
Shinobazunoike (7 min walk ・ About 550m)

Shinobazunoike (7 min walk ・ About 550m)
Shinobazunoike (7 min walk ・ About 550m)

University of Tokyo Akamon around (walk 13 minutes ・ About 1000m)
University of Tokyo Akamon around (walk 13 minutes ・ About 1000m)

University of Tokyo Akamon (13 mins ・ About 1000m)
University of Tokyo Akamon (13 mins ・ About 1000m)

University of Tokyo Hospital (Photo Tetsumon / 1-minute walk ・ About 40m)
University of Tokyo Hospital (Photo Tetsumon / 1-minute walk ・ About 40m)

Living

Living.  [living ・ dining] living, dining, And DEN. In their space without providing the partition, By the open space, It is both a change in the sense of openness. Simple presence of mind in the furniture, Mix each modern and innovative furniture weave a well-balanced, It portrays the pleasure of urban life. It'll be both the atmosphere of the handrail of tasty funnel aluminum balcony are matching.
[living ・ dining] living, dining, And DEN. In their space without providing the partition, By the open space, It is both a change in the sense of openness. Simple presence of mind in the furniture, Mix each modern and innovative furniture weave a well-balanced, It portrays the pleasure of urban life. It'll be both the atmosphere of the handrail of tasty funnel aluminum balcony are matching.

Living.  [living ・ dining]  ※ All posted photos of, Model Room (80G type ・ Design change plan ・ Color select SUMI) which was taken (July 2013) the, In fact a somewhat different in plus the color tone, etc. CG processing.
[living ・ dining] ※ All posted photos of, Model Room (80G type ・ Design change plan ・ Color select SUMI) which was taken (July 2013) the, In fact a somewhat different in plus the color tone, etc. CG processing.

Kitchen

Kitchen.  [kitchen] Use and beauty. The kitchen and dining space, It pursued without compromising the two elements. Feel when you stand on the kitchen counter, Continuity to the dining space. Storage door and feel of the counter top, Stove and sink, Handiness of amenities, including dishwasher. Everything is the result of conscious thought of those who live.
[kitchen] Use and beauty. The kitchen and dining space, It pursued without compromising the two elements. Feel when you stand on the kitchen counter, Continuity to the dining space. Storage door and feel of the counter top, Stove and sink, Handiness of amenities, including dishwasher. Everything is the result of conscious thought of those who live.

Kitchen.  [disposer] By processing the raw garbage in the kitchen, Eliminates the need to carry heavy and anxious smell garbage to garbage storage.  ※ You can not handle hard garbage and strong fibrous raw dust part. For more information please check at the manufacturer's brochure.
[disposer] By processing the raw garbage in the kitchen, Eliminates the need to carry heavy and anxious smell garbage to garbage storage. ※ You can not handle hard garbage and strong fibrous raw dust part. For more information please check at the manufacturer's brochure.

Kitchen.  [Dishwasher] By a small amount circulation cleaning at a high temperature of hot water, Porter efficient and clean wash. Also, Water bill can reduce the work effort and CO2 as compared with the case of hand washing ・ It will also be the saving of gas prices.  (40Ar, 40Br, 50A, 50B, 50C, 60Ag, 60A type is shallow. )
[Dishwasher] By a small amount circulation cleaning at a high temperature of hot water, Porter efficient and clean wash. Also, Water bill can reduce the work effort and CO2 as compared with the case of hand washing ・ It will also be the saving of gas prices. (40Ar, 40Br, 50A, 50B, 50C, 60Ag, 60A type is shallow. )

Kitchen.  [Cupboard] Along with the storage of system Kitchen, By installing the cupboard, Storage capacity will increase further.
[Cupboard] Along with the storage of system Kitchen, By installing the cupboard, Storage capacity will increase further.

Kitchen.  [Kitchen top plate of granite] The top plate of the system kitchen, It adopted a natural granite. Along with the functionality of a kitchen, Also combines the beauty of the interior as.
[Kitchen top plate of granite] The top plate of the system kitchen, It adopted a natural granite. Along with the functionality of a kitchen, Also combines the beauty of the interior as.

Bathing-wash room

Bathing-wash room.  [bathroom] In the evening in the morning, Dressing room, Important place to switch the heart of the switch among the living. Does not also essential enhancement of the basic functions, It is also important a good space of the comfortably use quality to it more. The counter top, Using natural granite we have extended the interior of. Also, Also built-in three-sided mirror and a variety of storage space by the large mirror, And finished in such a way that a feeling of cleanliness and clean design.
[bathroom] In the evening in the morning, Dressing room, Important place to switch the heart of the switch among the living. Does not also essential enhancement of the basic functions, It is also important a good space of the comfortably use quality to it more. The counter top, Using natural granite we have extended the interior of. Also, Also built-in three-sided mirror and a variety of storage space by the large mirror, And finished in such a way that a feeling of cleanliness and clean design.

Bathing-wash room.  [bathroom] Entrusted himself to the bathtub, Those hard to slowly place in anything is time to spend open to the mind and body. here, The mood of the day Ichi date to new, It is a space for moisten deeply the mind. Bathrooms, It has a variety of care to improve the quality of refresh. Mist sauna, Warm tub to keep the warmth, Bathroom ventilation dryer. further, Soft light will produce a gentle calm down light.
[bathroom] Entrusted himself to the bathtub, Those hard to slowly place in anything is time to spend open to the mind and body. here, The mood of the day Ichi date to new, It is a space for moisten deeply the mind. Bathrooms, It has a variety of care to improve the quality of refresh. Mist sauna, Warm tub to keep the warmth, Bathroom ventilation dryer. further, Soft light will produce a gentle calm down light.

Bathing-wash room.  [Warm bath] By covering the tub with a heat insulating material, The bath will be difficult to cool. The little displaced families bathing time, The effect of reducing the utility costs will be higher.
[Warm bath] By covering the tub with a heat insulating material, The bath will be difficult to cool. The little displaced families bathing time, The effect of reducing the utility costs will be higher.

Bathing-wash room.  [Mist sauna] In mist sauna, Sweating effect, Blood flow promotion, Thermal effect, Moisturizing action, Reducing the burden on the body compared to the bathing, Reduction of operating burden, Refreshing effect, Relaxing effect can be expected.
[Mist sauna] In mist sauna, Sweating effect, Blood flow promotion, Thermal effect, Moisturizing action, Reducing the burden on the body compared to the bathing, Reduction of operating burden, Refreshing effect, Relaxing effect can be expected.

Bathing-wash room.  [Bathroom ventilation dryer] Not only to comfort the cold bath of winter, Not repel the mold in hot-air drying, The easier the cleaning of every day in the bathroom. Moreover, you can dry while multiplying the laundry on the hanger.
[Bathroom ventilation dryer] Not only to comfort the cold bath of winter, Not repel the mold in hot-air drying, The easier the cleaning of every day in the bathroom. Moreover, you can dry while multiplying the laundry on the hanger.

Toilet

Toilet.  [Stand-alone basin counter] Hand wash behind the toilet bowl, It might be somewhat difficult to use for small children and the elderly. Stand-alone hand washing is an easy-to-use design easier access.  ※ The size of the type, Different shape.
[Stand-alone basin counter] Hand wash behind the toilet bowl, It might be somewhat difficult to use for small children and the elderly. Stand-alone hand washing is an easy-to-use design easier access. ※ The size of the type, Different shape.

Toilet.  [Water-saving low silhouette toilet] A small amount (large 4.8L ・ By installing a water-saving toilet bowl to exhibit sufficient detergency with a small 3.6L), Make effective use of water resources.
[Water-saving low silhouette toilet] A small amount (large 4.8L ・ By installing a water-saving toilet bowl to exhibit sufficient detergency with a small 3.6L), Make effective use of water resources.

Interior

Interior.  [Western-style 1] Accent cross decorated with impressive textile, Bed throw of floral. It has directed the space of deep peace and heavy use of indirect lighting. Furniture of dark brown has full of texture after having settled down to beige keynote.
[Western-style 1] Accent cross decorated with impressive textile, Bed throw of floral. It has directed the space of deep peace and heavy use of indirect lighting. Furniture of dark brown has full of texture after having settled down to beige keynote.

Interior.  [Western-style 2] Bedroom assuming a child of the room (Western-style 2), Using a bright elegant pastel color, We along with a colorful impression of your family.
[Western-style 2] Bedroom assuming a child of the room (Western-style 2), Using a bright elegant pastel color, We along with a colorful impression of your family.

Interior. DEN (study)
DEN (study)

Other

Other.  [Ceiling, cassette-type air conditioning (LD only)] Less projection part of into the room, Since also not exposed piping to achieve a beautiful space and refreshing.
[Ceiling, cassette-type air conditioning (LD only)] Less projection part of into the room, Since also not exposed piping to achieve a beautiful space and refreshing.

Other.  [Picture rails] We established the picture rail that can display such as art and photography without damaging the wall.
[Picture rails] We established the picture rail that can display such as art and photography without damaging the wall.

Other. (Shared facilities ・ Common utility ・ Pet facility ・ Variety of services ・ Security ・ Earthquake countermeasures ・ Disaster-prevention measures ・ Building structure ・ Such as the characteristics of the building)
(Shared facilities ・ Common utility ・ Pet facility ・ Variety of services ・ Security ・ Earthquake countermeasures ・ Disaster-prevention measures ・ Building structure ・ Such as the characteristics of the building)

Features of the building

Features of the building.  [Exterior - Rendering] brick, Nature Masonry, Such as white paint wall, Old scenery feel the history is scattered here and there ・ Area called Tatsuoka machi. Long it has been building along with the month and day while a tribute to this town, In addition aimed mansion should be inherited by future. Architect derived there ・ The concept is & quot; Old & amp; New & quot;. Along with the successor to tradition, Yuku continues to live the newness even after the time. To have seems to be from ancient times while penetration around, Always to the mansion that gives off the newness.
[Exterior - Rendering] brick, Nature Masonry, Such as white paint wall, Old scenery feel the history is scattered here and there ・ Area called Tatsuoka machi. Long it has been building along with the month and day while a tribute to this town, In addition aimed mansion should be inherited by future. Architect derived there ・ The concept is & quot; Old & amp; New & quot;. Along with the successor to tradition, Yuku continues to live the newness even after the time. To have seems to be from ancient times while penetration around, Always to the mansion that gives off the newness.

Features of the building.  [Exterior - Rendering]  ※ Which was caused to draw based on the drawings of the planning stage, In fact a slightly different. Guttering, Air conditioner outdoor unit, There is equipment, etc. that have not been reproduced some water heater, etc..
[Exterior - Rendering] ※ Which was caused to draw based on the drawings of the planning stage, In fact a slightly different. Guttering, Air conditioner outdoor unit, There is equipment, etc. that have not been reproduced some water heater, etc..

Features of the building.  [Entrance Rendering] To building appearance, So as to produce a deep expression of carving, A deep opening, Homogeneously, It is the wall design was arranged in succession. Adopt a vertical grid of funnel aluminum dark gray on the balcony handrail. that is, Feel the sophisticated Western of appearance with a close look at, You reflected also like the grille of the Japanese style is far from. To foster air feeling and tradition in this town, It has been reproduced by exercise ingenuity in the details.
[Entrance Rendering] To building appearance, So as to produce a deep expression of carving, A deep opening, Homogeneously, It is the wall design was arranged in succession. Adopt a vertical grid of funnel aluminum dark gray on the balcony handrail. that is, Feel the sophisticated Western of appearance with a close look at, You reflected also like the grille of the Japanese style is far from. To foster air feeling and tradition in this town, It has been reproduced by exercise ingenuity in the details.

Features of the building.  [Entrance hall ・ Driveway Rendering] When you enter the auto-lock door, It reflected further Hall of flooring upholstery. Reasonable distance between the outer and the inner, Is what moderate continuity of space, Masu Yuki painted should also referred to as the style of the house.
[Entrance hall ・ Driveway Rendering] When you enter the auto-lock door, It reflected further Hall of flooring upholstery. Reasonable distance between the outer and the inner, Is what moderate continuity of space, Masu Yuki painted should also referred to as the style of the house.

Features of the building.  [The inner corridor Rendering] The approach from the elevator to the private residence, Consideration to privacy, It has adopted an inner corridor of carpet tiles paste, such as hotels. An inner corridor beginning Entrance Hall ・ Since installing the air-conditioning in the hall, Comfortable you can you live throughout the year.
[The inner corridor Rendering] The approach from the elevator to the private residence, Consideration to privacy, It has adopted an inner corridor of carpet tiles paste, such as hotels. An inner corridor beginning Entrance Hall ・ Since installing the air-conditioning in the hall, Comfortable you can you live throughout the year.

Building structure

Building structure.  [Tokyo apartment environmental performance display]  ※ For more information see "Housing term large Dictionary"
[Tokyo apartment environmental performance display] ※ For more information see "Housing term large Dictionary"

Other

Other.  [Double auto-lock system diagram] The building of the entrance, From the viewpoint of protecting the security and privacy, It has adopted the auto-lock system. Kazejo room, entrance, You can check the visitor by the monitor in the three locations of the hole and the dwelling unit entrance.  ※ Auto-locking system, Due to the nature of the system, It is not something that can be completely prevented outsiders from entering.
[Double auto-lock system diagram] The building of the entrance, From the viewpoint of protecting the security and privacy, It has adopted the auto-lock system. Kazejo room, entrance, You can check the visitor by the monitor in the three locations of the hole and the dwelling unit entrance. ※ Auto-locking system, Due to the nature of the system, It is not something that can be completely prevented outsiders from entering.

Other.  [24-hour garbage can out] We established a 24-hour garbage yard that can be on-site at any time of the garbage disposal. It will also come in handy slower garbage out of the your return home. Also, Because it is installed in the building, Available regardless of the weather.
[24-hour garbage can out] We established a 24-hour garbage yard that can be on-site at any time of the garbage disposal. It will also come in handy slower garbage out of the your return home. Also, Because it is installed in the building, Available regardless of the weather.

Surrounding environment

Surrounding environment. Helicopter shot ※ And subjected to a CG synthesis was taken in April 2013, In fact a slightly different.
Helicopter shot ※ And subjected to a CG synthesis was taken in April 2013, In fact a slightly different.

Surrounding environment. Local neighborhood streets (about 120m from local) ※ And performing CG synthesis was taken, In fact a slightly different.
Local neighborhood streets (about 120m from local) ※ And performing CG synthesis was taken, In fact a slightly different.

Surrounding environment. Unrelated hill (about 200m from local)
Unrelated hill (about 200m from local)

Surrounding environment. Former Iwasaki House garden (about 350m from local)
Former Iwasaki House garden (about 350m from local)

Surrounding environment. University of Tokyo Akamon (about 1000m from local)
University of Tokyo Akamon (about 1000m from local)

Surrounding environment. Shinobazunoike (about than local 550m)
Shinobazunoike (about than local 550m)

Surrounding environment. In Shimizu Kannondo Ueno Park (about than local 1200m)
In Shimizu Kannondo Ueno Park (about than local 1200m)

Surrounding environment. Ueno Park (about than local 1300m)
Ueno Park (about than local 1300m)

Surrounding environment. University of Tokyo Hospital (about than local 720m)
University of Tokyo Hospital (about than local 720m)

Surrounding environment. Juntendo University Juntendoiin (about than local 960m)
Juntendo University Juntendoiin (about than local 960m)

Surrounding environment. Tokyo Medical and Dental University Hospital (about than local 950m)
Tokyo Medical and Dental University Hospital (about than local 950m)

Surrounding environment. Matsuzakaya Ueno store (about than local 920m)
Matsuzakaya Ueno store (about than local 920m)

Surrounding environment. Atre Ueno (about than local 1200m)
Atre Ueno (about than local 1200m)

Surrounding environment. Ueno ABAB (about than local 900m)
Ueno ABAB (about than local 900m)

Floor: 2LDK + SIC, the occupied area: 57.11 sq m, Price: 60,900,000 yen, now on sale

Floor: 2LDK + SIC, the occupied area: 57.11 sq m, Price: 60,900,000 yen, now on sale
Floor: 2LDK + SIC, the occupied area: 57.11 sq m, Price: 60,900,000 yen, now on sale

Floor: 2LDK + SIC, the occupied area: 73.91 sq m, Price: 83,900,000 yen, now on sale

Floor: 2LDK + SIC, the occupied area: 73.91 sq m, Price: 83,900,000 yen, now on sale
Floor: 2LDK + SIC, the occupied area: 73.91 sq m, Price: 83,900,000 yen, now on sale

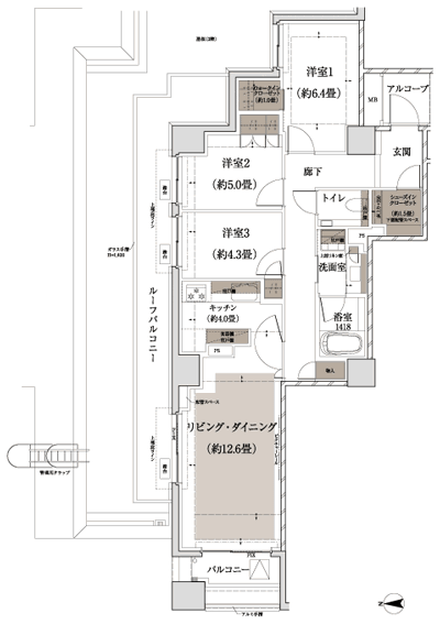
Floor: 3LDK + SIC, the occupied area: 75.72 sq m, Price: 77,200,000 yen, now on sale

Floor: 3LDK + SIC, the occupied area: 75.72 sq m, Price: 77,200,000 yen, now on sale
Floor: 3LDK + SIC, the occupied area: 75.72 sq m, Price: 77,200,000 yen, now on sale

Floor: 3LDK + WIC + SIC, the occupied area: 80.66 sq m, Price: 86,800,000 yen, now on sale

Floor: 3LDK + WIC + SIC, the occupied area: 80.66 sq m, Price: 86,800,000 yen, now on sale
Floor: 3LDK + WIC + SIC, the occupied area: 80.66 sq m, Price: 86,800,000 yen, now on sale

Floor: 3LDK + SIC, the area occupied: 85.2 sq m, Price: 98,800,000 yen, now on sale

Floor: 3LDK + SIC, the area occupied: 85.2 sq m, Price: 98,800,000 yen, now on sale
Floor: 3LDK + SIC, the area occupied: 85.2 sq m, Price: 98,800,000 yen, now on sale


Location