New Apartments » Kanto » Tokyo » Chofu


Property name
City House Sengawa Midorigaoka
Time residents
January 2014 late schedule
Price
46,900,000 yen ~ 51 million yen
Floor plan
2LDK + S (storeroom) ~ 3LDK ※ S (storeroom) = Service Room
Units sold
9 units
Occupied area
67 sq m ~ 67.28 sq m
Address
Chofu, Tokyo Midorigaoka 2-27-20, 21
Traffic
Keio Line "Sengawa" walk 11 minutes
Sale schedule
First-come-first-served basis Application Reception Reception time / 10:00AM ~ 6:00 PM reception location / Local guest salon ※ Private seal at the time of the application is, Identification, 2011 ・ You must have income certificate of 24 years. ※ Please forgive in the case of pre-contract per first-come, first-served basis.
Completion date
January 2013
Number of units
9 units
Administrative expense
17,624 yen / Month ※ Including leasehold fee to the administrative expenses
Management reserve
17,624 yen (lump sum)
Repair reserve
6000 yen ~ 6020 yen / Month
Repair reserve fund
389,800 yen ~ 391,400 yen (lump sum)
Other area
Balcony area: 8.58 sq m ~ 12.16 sq m , Service balcony area: 5.02 sq m , Alcove area: 1.84 sq m ~ 2.03 sq m
Other limitations
Right form of the site, in addition to the share of ownership, There is a quasi-share of leasehold (temporary land use lease agreement). Leasehold period up to the date in which the ownership of the leased portion is transferred to the approval holders, ※ Site of the rental part, It has been designated to the city planning road, After the opening of the Property of the living environment (surrounding environment ・ Vehicle traffic ・ There is a case to occur affect the noise, etc.).
Property type
Mansion
Total units
40 units
Structure-storey
RC7 story
Construction area
922.2 sq m
Building floor area
3530.44 sq m
Site area
1587.04 sq m , Building confirmation application area (ownership: 1395.29 sq m , Leasehold: 191.75 sq m)
Site of the right form
Share of ownership
Use district
First-class medium and high-rise exclusive residential area
Parking lot
Eight on-site (fee 10,000 yen ~ 16,000 yen / Month, ※ 15 units total number)
Bicycle-parking space
80 cars (200 yen fee ~ 300 yen / Month)
Bike shelter
4 cars (fee 1000 yen / Month)
Management form
Consignment (commuting)
Other overview
Building confirmation number: No. ERI11038491 (Heisei date 23 October 28),
Plan change confirmation number: No. ERI11048796 (2011, December 26, date)
About us
<Seller> Minister of Land, Infrastructure and Transport (14) No. 38 (one company) Real Estate Association (Corporation) metropolitan area real estate Fair Trade Council member Sumitomo Realty & Development Co., Ltd. Yubinbango163-0820 Tokyo Nishi-Shinjuku, Shinjuku-ku, 2-4-1 (Shinjuku NS Building)
Construction
Nishimatsu Construction Co., Ltd.
Management
Sumitomo Realty & Development Building Service Co., Ltd.


Buildings and facilities

Buildings and facilities. Keio Line "Sengawa" 11 minutes' walk from the station ※ . A gentle land away from the hustle and bustle of the city to stage, 3LDK center ・ All 40 House. From here the "living environment", "convenience" and Midorigaoka of Sengawa are compatible, The story of a new life will begin. (appearance, July 2013 shooting) ※ Keio Line "Sengawa" station walk 11 minutes in the case of Toei Sengawa apartment passage, In the case of public road route is a 13-minute walk.
Keio Line "Sengawa" 11 minutes' walk from the station ※ . A gentle land away from the hustle and bustle of the city to stage, 3LDK center ・ All 40 House. From here the "living environment", "convenience" and Midorigaoka of Sengawa are compatible, The story of a new life will begin. (appearance, July 2013 shooting) ※ Keio Line "Sengawa" station walk 11 minutes in the case of Toei Sengawa apartment passage, In the case of public road route is a 13-minute walk.

Room and equipment

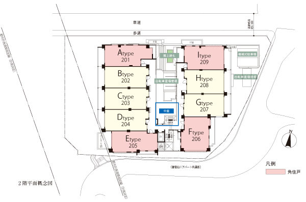
Room and equipment. Has been Haito to shaped a feeling of opening co "City House Sengawa Midorigaoka" is, It has achieved a 55% corner dwelling unit ratio. The rich goodness of lighting and breathability, Relaxation in the carefree space, We propose a house wrapped every day in such a comfort.  ※ living ・ dining Model Room D-type shooting (March 2013)
Has been Haito to shaped a feeling of opening co "City House Sengawa Midorigaoka" is, It has achieved a 55% corner dwelling unit ratio. The rich goodness of lighting and breathability, Relaxation in the carefree space, We propose a house wrapped every day in such a comfort. ※ living ・ dining Model Room D-type shooting (March 2013)

Buildings and facilities

Buildings and facilities. While I feel the refined sharpness of the vertical louver, Bright entrance green calm greet comfortably for visitors. Magnificent height and friendly facial expressions, It would just be an image of intelligence and sensibility of those who live here.
While I feel the refined sharpness of the vertical louver, Bright entrance green calm greet comfortably for visitors. Magnificent height and friendly facial expressions, It would just be an image of intelligence and sensibility of those who live here.

Surrounding environment

Surrounding environment. Keio Line to comfortably cover the access to the city main station "Sengawa" station. Achieve a smart access to business and shopping centers. Also spread footwork of the holiday, not only on weekdays. (Access view)
Keio Line to comfortably cover the access to the city main station "Sengawa" station. Achieve a smart access to business and shopping centers. Also spread footwork of the holiday, not only on weekdays. (Access view)

Surrounding environment. "Sengawa" station than is lined with museums and theaters in the street was decorated in dogwood spanning the entire length of about 400m, which was designed by Tadao Ando, ​​Building Research Institute in the east (Tadao Ando Street (aka) About 990m ・ Walk 13 minutes). Green harmony of concrete driving range building and the dogwood is, It exudes a unique view of the world.
"Sengawa" station than is lined with museums and theaters in the street was decorated in dogwood spanning the entire length of about 400m, which was designed by Tadao Ando, ​​Building Research Institute in the east (Tadao Ando Street (aka) About 990m ・ Walk 13 minutes). Green harmony of concrete driving range building and the dogwood is, It exudes a unique view of the world.

Surrounding environment. Bustling shopping street in front of the station, Queens Isetan around the station has a convenient commercial facilities equipped to shopping, such as large supermarkets (about 1130m ・ A 15-minute walk)
Bustling shopping street in front of the station, Queens Isetan around the station has a convenient commercial facilities equipped to shopping, such as large supermarkets (about 1130m ・ A 15-minute walk)

Kitchen

Kitchen.  [Face-to-face counter] Kitchen has adopted a face-to-face counter of depth up to about 230mm. Or temporarily placed the dishes before serving, Or decorate a flower, You can use a variety of applications. Less likely water is scattering because there is a difference in level between the sink and the counter. In addition, since face-to-face type, Guests can also enjoy a reunion with family members while the housework. (F ・ Fg ・ Fr ・ I ・ Except for the Ir type) ※ Indoor photos are all the same specification.
[Face-to-face counter] Kitchen has adopted a face-to-face counter of depth up to about 230mm. Or temporarily placed the dishes before serving, Or decorate a flower, You can use a variety of applications. Less likely water is scattering because there is a difference in level between the sink and the counter. In addition, since face-to-face type, Guests can also enjoy a reunion with family members while the housework. (F ・ Fg ・ Fr ・ I ・ Except for the Ir type) ※ Indoor photos are all the same specification.

Kitchen.  [Schott glass top plate] Adopt a glass plate that are both beauty and durability. It is loved all over the world, Germany ・ Adopt a shot manufactured by heat-resistant ceramic glass top plate. Not only beautiful, Strongly to heat and shock, Difficult dirty luck, It is easy to clean.
[Schott glass top plate] Adopt a glass plate that are both beauty and durability. It is loved all over the world, Germany ・ Adopt a shot manufactured by heat-resistant ceramic glass top plate. Not only beautiful, Strongly to heat and shock, Difficult dirty luck, It is easy to clean.

Kitchen.  [Quiet sink] By affixing the damping material to the sink bottom, To reduce the harsh sound of when the shower water and tableware hits the sink, Was consideration to such conversations reunion of families. Also, Is washable comfortably lot of tableware and vegetables at a time, Draining plate was also adopted a large sink with. This is very convenient when you wash a large wok or frying pan.  ※ The size of the sink depends on the type.
[Quiet sink] By affixing the damping material to the sink bottom, To reduce the harsh sound of when the shower water and tableware hits the sink, Was consideration to such conversations reunion of families. Also, Is washable comfortably lot of tableware and vegetables at a time, Draining plate was also adopted a large sink with. This is very convenient when you wash a large wok or frying pan. ※ The size of the sink depends on the type.

Kitchen.  [Sliding storage] Storage of system kitchens, It can be effectively utilized in the prone cabinet in a dead space, It has adopted a sliding storage.
[Sliding storage] Storage of system kitchens, It can be effectively utilized in the prone cabinet in a dead space, It has adopted a sliding storage.

Kitchen.  [Door opening prevention mechanism] The door of the kitchen of the hanging cupboard and vanity of the triple mirror housing, Installing a latch to lock the door to sense the shaking of an earthquake. To protect the live towards safety. Secure the shelves in a more nails for shelf dropout prevention so as not to come off the shelves.
[Door opening prevention mechanism] The door of the kitchen of the hanging cupboard and vanity of the triple mirror housing, Installing a latch to lock the door to sense the shaking of an earthquake. To protect the live towards safety. Secure the shelves in a more nails for shelf dropout prevention so as not to come off the shelves.

Bathing-wash room

Bathing-wash room.  [Three-sided mirror with vanity] It has adopted a three-sided mirror with vanity, which also includes a three-sided mirror under mirror tailored to the child's point of view. Ensure the storage rack on the back side of the three-sided mirror. You can organize clutter, such as skin care and hair care products.
[Three-sided mirror with vanity] It has adopted a three-sided mirror with vanity, which also includes a three-sided mirror under mirror tailored to the child's point of view. Ensure the storage rack on the back side of the three-sided mirror. You can organize clutter, such as skin care and hair care products.

Bathing-wash room.  [Step with integrated bowl] It was provided with a space to put a like wet cups and soap in the sink bowl. Keep the counter clean, Saving you the hassle of cleaning.
[Step with integrated bowl] It was provided with a space to put a like wet cups and soap in the sink bowl. Keep the counter clean, Saving you the hassle of cleaning.

Bathing-wash room.  [Single lever faucet] The vanity is, Head is pulled out, It has adopted a convenient single-lever faucet, for example, when you wash basin bowl.
[Single lever faucet] The vanity is, Head is pulled out, It has adopted a convenient single-lever faucet, for example, when you wash basin bowl.

Bathing-wash room.  [Low-floor type unit bus] Suppress the straddle sales to bath to about 450mm, Steps of the entrance was also as much as possible resolved, It has adopted a unit bus of the low-floor design. further, Installing a handrail on the wall. Corresponding to the aging society can and out of the bathtub while caught in the handrail, Is a specification-friendly people. Since the tub edge is wide puts sitting at the time of bathing.
[Low-floor type unit bus] Suppress the straddle sales to bath to about 450mm, Steps of the entrance was also as much as possible resolved, It has adopted a unit bus of the low-floor design. further, Installing a handrail on the wall. Corresponding to the aging society can and out of the bathtub while caught in the handrail, Is a specification-friendly people. Since the tub edge is wide puts sitting at the time of bathing.

Bathing-wash room.  [TES-type bathroom heater dryer] TES-type bathroom heater dryer of Tokyo gas is ventilation in the bathroom, It reduces the occurrence of mold. further, It is also convenient to dry out the laundry on a rainy day in the drying function.
[TES-type bathroom heater dryer] TES-type bathroom heater dryer of Tokyo gas is ventilation in the bathroom, It reduces the occurrence of mold. further, It is also convenient to dry out the laundry on a rainy day in the drying function.

Bathing-wash room.  [Warm bath] It was unlikely to cool the hot water warmed dedicated Furofuta and a dedicated bath heat insulation material. Once the boil, Because the hot water temperature is long-lasting and economical can save Reheating and adding hot water. (Conceptual diagram)
[Warm bath] It was unlikely to cool the hot water warmed dedicated Furofuta and a dedicated bath heat insulation material. Once the boil, Because the hot water temperature is long-lasting and economical can save Reheating and adding hot water. (Conceptual diagram)

Bathing-wash room.  [Mist sauna] Unlike dry sauna, Mist sauna is low temperature ・ Relax and you can enjoy without stuffy with high humidity. When you can not bathtub bathing, Even when you want to quickly bathing late at night or early in the morning, You can easily feel in a short period of time the warmth and relaxing effects, such as to realize in if mist bath tub bathing. further, Moisturizing skin, sweating, We can also expect effects such as promoting blood circulation.
[Mist sauna] Unlike dry sauna, Mist sauna is low temperature ・ Relax and you can enjoy without stuffy with high humidity. When you can not bathtub bathing, Even when you want to quickly bathing late at night or early in the morning, You can easily feel in a short period of time the warmth and relaxing effects, such as to realize in if mist bath tub bathing. further, Moisturizing skin, sweating, We can also expect effects such as promoting blood circulation.

Bathing-wash room.  [Music remote control] When you connect a music player to the kitchen remote control, You can enjoy the music and audio programs in the bathroom. Flow from the bathroom remote favorite song as BGM, Relaxing bath time will heal the fatigue of the day.
[Music remote control] When you connect a music player to the kitchen remote control, You can enjoy the music and audio programs in the bathroom. Flow from the bathroom remote favorite song as BGM, Relaxing bath time will heal the fatigue of the day.

Bathing-wash room.  [Thermo Floor] Easy to dry slip on the floor of the bathroom, Also adopted a hard thermo floor to feel the "coldness" of the sole. To dry in a short period of time, Dirt rest also will be less.
[Thermo Floor] Easy to dry slip on the floor of the bathroom, Also adopted a hard thermo floor to feel the "coldness" of the sole. To dry in a short period of time, Dirt rest also will be less.

Toilet

Toilet.  [Water-saving low tank toilet] Adopting the cleaning water consumption is less low tank toilet. Also be a reduction of CO2 emissions to the water-saving, Friendly specifications also an environmental perspective in economic.
[Water-saving low tank toilet] Adopting the cleaning water consumption is less low tank toilet. Also be a reduction of CO2 emissions to the water-saving, Friendly specifications also an environmental perspective in economic.

Toilet.  [Toilet with hand washing counter] The toilet, It has established a style of hand washing counter loaded with compact hand wash basin on top of the counter. I felt a wide and clear even to the eye, Easy-to-use design in a compact.
[Toilet with hand washing counter] The toilet, It has established a style of hand washing counter loaded with compact hand wash basin on top of the counter. I felt a wide and clear even to the eye, Easy-to-use design in a compact.

Other

Other.  [TES hot water floor heating] living ・ The dining, Adopt the TES hot water floor heating of Tokyo Gas. Warm comfortable room from the ground by using a hot water, It is a heating system to achieve a "Zukansokunetsu" which is said to be ideal.
[TES hot water floor heating] living ・ The dining, Adopt the TES hot water floor heating of Tokyo Gas. Warm comfortable room from the ground by using a hot water, It is a heating system to achieve a "Zukansokunetsu" which is said to be ideal.

Other.  [Full-flat design] Such as falling stumbled, As much as possible to eliminate the floor level difference in the dwelling unit in order to avoid unexpected accidents in the dwelling unit, It has achieved a full flat floor. (Entrance, balcony, Except for the doorway of the bathroom)
[Full-flat design] Such as falling stumbled, As much as possible to eliminate the floor level difference in the dwelling unit in order to avoid unexpected accidents in the dwelling unit, It has achieved a full flat floor. (Entrance, balcony, Except for the doorway of the bathroom)

Other.  [Eco Jaws] Adoption of high efficiency gas water heater "Eco Jaws" of the Tokyo Gas. kitchen, Bathroom, Of course, smooth hot water supply to the powder room, It supports up to floor heating and bathroom heating dryer in total. Also, The heat source system, Exhaust heat which has been wastefully discarded conventional, Has become a energy-saving specifications boil water by the latent heat efficiently recovered, Friendly to the environment as compared to the conventional water heater, Also provides excellent economy in terms of annual running cost.
[Eco Jaws] Adoption of high efficiency gas water heater "Eco Jaws" of the Tokyo Gas. kitchen, Bathroom, Of course, smooth hot water supply to the powder room, It supports up to floor heating and bathroom heating dryer in total. Also, The heat source system, Exhaust heat which has been wastefully discarded conventional, Has become a energy-saving specifications boil water by the latent heat efficiently recovered, Friendly to the environment as compared to the conventional water heater, Also provides excellent economy in terms of annual running cost.

Security

Security.  [S-GUARD (Esugado)] A 24-hour online system, Central Security Patrols (Ltd.) (CSP) has led to the command center. Gas leak in each dwelling unit, Emergency button, Security sensors, and each dwelling unit, When the alarm by the fire in the common areas is transmitted, Central Security Patrols guards rushed to the scene of the (stock), Correspondence will be made, such as the required report. Also, Promptly conducted a field check guards of Central Security Patrols also in the case, which has received the abnormal signal of the common area facilities Co., Ltd., It will contribute to the rapid and appropriate response.
[S-GUARD (Esugado)] A 24-hour online system, Central Security Patrols (Ltd.) (CSP) has led to the command center. Gas leak in each dwelling unit, Emergency button, Security sensors, and each dwelling unit, When the alarm by the fire in the common areas is transmitted, Central Security Patrols guards rushed to the scene of the (stock), Correspondence will be made, such as the required report. Also, Promptly conducted a field check guards of Central Security Patrols also in the case, which has received the abnormal signal of the common area facilities Co., Ltd., It will contribute to the rapid and appropriate response.

Security.  [Double auto-lock system] To strengthen the intrusion measures of a suspicious person compared to the company's traditional apartments, It has adopted an auto-lock system is in two places on the approach of the main visitor.  Unlocking the auto-lock after confirming with audio and video in the intercom with color monitor visitors in the dwelling units that are in the windbreak room (1). Is the security system of the peace of mind that can be checked in a similar two-stage even further entrance hall. Also it comes with video recording also recording function that can also check visitors at the time of your absence.
[Double auto-lock system] To strengthen the intrusion measures of a suspicious person compared to the company's traditional apartments, It has adopted an auto-lock system is in two places on the approach of the main visitor. Unlocking the auto-lock after confirming with audio and video in the intercom with color monitor visitors in the dwelling units that are in the windbreak room (1). Is the security system of the peace of mind that can be checked in a similar two-stage even further entrance hall. Also it comes with video recording also recording function that can also check visitors at the time of your absence.

Security.  [Electric shutter gate (with private remote control)] The entrance of the parking lot, It established the shutter gate to enhance the safety and crime prevention. Open the shutter gate with a dedicated remote control, Since it closes automatically, You can operate without having to get down from the car. (Same specifications) ※ Except parking for disabled guests ※ The image is an example of a parking can be car.
[Electric shutter gate (with private remote control)] The entrance of the parking lot, It established the shutter gate to enhance the safety and crime prevention. Open the shutter gate with a dedicated remote control, Since it closes automatically, You can operate without having to get down from the car. (Same specifications) ※ Except parking for disabled guests ※ The image is an example of a parking can be car.

Security.  [Progressive cylinder key] Entrance key of the dwelling unit is, It has adopted a progressive cylinder key of the reversible type with enhanced response to the incorrect tablet, such as picking.
[Progressive cylinder key] Entrance key of the dwelling unit is, It has adopted a progressive cylinder key of the reversible type with enhanced response to the incorrect tablet, such as picking.

Security.  [Triple auto door] Kazejo room ・ Entrance hall ・ At the entrance of the first floor common corridor, Each was adopted auto door. Back and forth in a wheelchair Ya by adjusting the non-touch key of the auto-lock system, Way of holding a luggage can also be carried out smoothly.
[Triple auto door] Kazejo room ・ Entrance hall ・ At the entrance of the first floor common corridor, Each was adopted auto door. Back and forth in a wheelchair Ya by adjusting the non-touch key of the auto-lock system, Way of holding a luggage can also be carried out smoothly.

Security.  [Crime prevention laminated glass] Some dwelling unit of the window, Use the security laminated glass. Sandwiched between two glass special intermediate film (film) will exert an effect on the anti-intrusion by the glass breaking. Also, Because the risk of scattering and falling of the glass less also has excellent safety.  ※ For more information please contact the person in charge.
[Crime prevention laminated glass] Some dwelling unit of the window, Use the security laminated glass. Sandwiched between two glass special intermediate film (film) will exert an effect on the anti-intrusion by the glass breaking. Also, Because the risk of scattering and falling of the glass less also has excellent safety. ※ For more information please contact the person in charge.

Features of the building

Features of the building.  [entrance] Live better course, Entrance to greet beautifully for visitors (March 2013 shooting)
[entrance] Live better course, Entrance to greet beautifully for visitors (March 2013 shooting)

Features of the building.  [Pleasant courtyard feel the rest and the four seasons] In the "City House Sengawa Midorigaoka" is, Along with the number of planted 栽計 picture feel the richness of nature in the lives on the premises, It has established a courtyard. Color of the four seasons, which is felt in the eyes, It brings the healing time to live people. (Site layout illustration)
[Pleasant courtyard feel the rest and the four seasons] In the "City House Sengawa Midorigaoka" is, Along with the number of planted 栽計 picture feel the richness of nature in the lives on the premises, It has established a courtyard. Color of the four seasons, which is felt in the eyes, It brings the healing time to live people. (Site layout illustration)

Building structure

Building structure.  [Spread foundation] The bottom of the building as a solid foundation of reinforced concrete, Support the building in the face by improved ground has adopted a "direct basis". Driving the pile into deep underground, Unlike the pile foundation to support the building at the point, Surface to support the building just below the building, It is a stable foundation structure.
[Spread foundation] The bottom of the building as a solid foundation of reinforced concrete, Support the building in the face by improved ground has adopted a "direct basis". Driving the pile into deep underground, Unlike the pile foundation to support the building at the point, Surface to support the building just below the building, It is a stable foundation structure.

Building structure.  [Welding closed girdle muscular] The main pillar portion was welded to the connecting portion of the band muscle, Adopted a welding closed girdle muscular. By ensuring stable strength by factory welding, To suppress the conceive out of the main reinforcement at the time of earthquake, It enhances the binding force of the concrete.
[Welding closed girdle muscular] The main pillar portion was welded to the connecting portion of the band muscle, Adopted a welding closed girdle muscular. By ensuring stable strength by factory welding, To suppress the conceive out of the main reinforcement at the time of earthquake, It enhances the binding force of the concrete.

Building structure.  [outer wall] Concrete thickness of the outer wall, About 150mm ~ To ensure about 180mm, To suppress the neutralization of concrete as a tile pasted finish we have extended durability. In addition to the indoor side by blowing insulation, Also with consideration to energy saving.
[outer wall] Concrete thickness of the outer wall, About 150mm ~ To ensure about 180mm, To suppress the neutralization of concrete as a tile pasted finish we have extended durability. In addition to the indoor side by blowing insulation, Also with consideration to energy saving.

Building structure.  [Low-E glass pair] Some dwelling unit, Coated with a special metal film (Low-E film) on the glass surface, With high thermal insulation properties due to the hollow layer of reflective and Low-E film and double-glazing of solar heat, Reduce the load on the heating and cooling both. It has excellent energy-saving effect.  ※ For more information please contact the person in charge.
[Low-E glass pair] Some dwelling unit, Coated with a special metal film (Low-E film) on the glass surface, With high thermal insulation properties due to the hollow layer of reflective and Low-E film and double-glazing of solar heat, Reduce the load on the heating and cooling both. It has excellent energy-saving effect. ※ For more information please contact the person in charge.

Building structure.  [Housing Performance Evaluation Report] In the "City House Sengawa Midorigaoka", Based on the "Law on the Promotion of the Housing Quality Assurance (Housing Quality Act).", We have received a performance evaluation by the "Housing Performance Indication System". Design housing performance evaluation report (all households) been acquired.  ※ For more information see "Housing term large Dictionary"
[Housing Performance Evaluation Report] In the "City House Sengawa Midorigaoka", Based on the "Law on the Promotion of the Housing Quality Assurance (Housing Quality Act).", We have received a performance evaluation by the "Housing Performance Indication System". Design housing performance evaluation report (all households) been acquired. ※ For more information see "Housing term large Dictionary"

Other

Other.  [Delivery Box (with arrival display function)] The luggage that arrived at the time of going out, To operate the box in a non-touch keys, Others can be received at any time 24 hours, Shipping and cleaning request of home delivery products can be done. Also, Home delivery products shipping fee ・ You can also settle the cleaning fee with a credit card. You can see by the arrival display that you have arrived luggage in dwelling units within the intercom base unit. (Same specifications)
[Delivery Box (with arrival display function)] The luggage that arrived at the time of going out, To operate the box in a non-touch keys, Others can be received at any time 24 hours, Shipping and cleaning request of home delivery products can be done. Also, Home delivery products shipping fee ・ You can also settle the cleaning fee with a credit card. You can see by the arrival display that you have arrived luggage in dwelling units within the intercom base unit. (Same specifications)

Other.  [Earthquake Early Warning Distribution Service] Analyzes the waveform of the initial tremor is observed in the seismic observation point of the Japan Meteorological Agency close to the epicenter immediately after the earthquake (P-wave), Predicted seismic intensity received by the receiver to install the information earlier in the apartment from the main motion (S-wave) ・ Calculate the expected arrival time, If you exceed a certain seismic intensity, Dwelling units within the intercom base unit ・ Voice reporting from the common areas speaker, Emergency opening of the auto door, And elevator emergency stop is done.
[Earthquake Early Warning Distribution Service] Analyzes the waveform of the initial tremor is observed in the seismic observation point of the Japan Meteorological Agency close to the epicenter immediately after the earthquake (P-wave), Predicted seismic intensity received by the receiver to install the information earlier in the apartment from the main motion (S-wave) ・ Calculate the expected arrival time, If you exceed a certain seismic intensity, Dwelling units within the intercom base unit ・ Voice reporting from the common areas speaker, Emergency opening of the auto door, And elevator emergency stop is done.

Other.  [Moving your free pack] In the "City House Sengawa Midorigaoka", Introduction plan your move free pack. Carry-out of the offer and luggage of packing materials ・ Transportation ・ Carry-in, such as, Support your move for free. Also, Various services, such as home appliances installation and trunk room arrangements, if necessary also performs in the option (paid).  ※ Is there is a limit to the use of services. For more information please contact the person in charge.
[Moving your free pack] In the "City House Sengawa Midorigaoka", Introduction plan your move free pack. Carry-out of the offer and luggage of packing materials ・ Transportation ・ Carry-in, such as, Support your move for free. Also, Various services, such as home appliances installation and trunk room arrangements, if necessary also performs in the option (paid). ※ Is there is a limit to the use of services. For more information please contact the person in charge.

Surrounding environment

Surrounding environment. Inageya Chofu Sengawa store (about 560m ・ 7-minute walk)
Inageya Chofu Sengawa store (about 560m ・ 7-minute walk)

Surrounding environment. Keiosutoa Sengawa Station Building store (about 920m ・ A 12-minute walk)
Keiosutoa Sengawa Station Building store (about 920m ・ A 12-minute walk)

Surrounding environment. Midorigaoka nursery school (about 310m ・ 4-minute walk)
Midorigaoka nursery school (about 310m ・ 4-minute walk)

Surrounding environment. Chofu Municipal Midorigaoka elementary school (about 90m ・ A 2-minute walk)
Chofu Municipal Midorigaoka elementary school (about 90m ・ A 2-minute walk)

Surrounding environment. Chofu Municipal eighth Junior High School (about 630m ・ An 8-minute walk)
Chofu Municipal eighth Junior High School (about 630m ・ An 8-minute walk)

Surrounding environment. Sengawa Station park (about 1140m ・ A 15-minute walk)
Sengawa Station park (about 1140m ・ A 15-minute walk)

Surrounding environment. Midorigaoka Forests for Everyone (about 110m ・ A 2-minute walk)
Midorigaoka Forests for Everyone (about 110m ・ A 2-minute walk)

Surrounding environment. Midorigaoka third good friends square (about 60m ・ 1-minute walk)
Midorigaoka third good friends square (about 60m ・ 1-minute walk)

Surrounding environment. Citizen Midorigaoka Tennis Court (about 470m ・ 6-minute walk)
Citizen Midorigaoka Tennis Court (about 470m ・ 6-minute walk)

Surrounding environment. Hachiman Shrine (about 330m ・ A 5-minute walk)
Hachiman Shrine (about 330m ・ A 5-minute walk)

Surrounding environment. Tokyo Art Museum (about 1340m ・ 17 minutes walk)
Tokyo Art Museum (about 1340m ・ 17 minutes walk)

Surrounding environment. Sengawa sugar clinic (about 670m ・ A 9-minute walk)
Sengawa sugar clinic (about 670m ・ A 9-minute walk)

Surrounding environment. Kishioka ophthalmology (about 940m ・ A 12-minute walk)
Kishioka ophthalmology (about 940m ・ A 12-minute walk)

Surrounding environment. Midorigaoka community welfare center (about 170m ・ A 3-minute walk)
Midorigaoka community welfare center (about 170m ・ A 3-minute walk)

Floor: 3LD ・ K + 2N (storeroom) + WIC (walk-in closet), the occupied area: 67.05 sq m, Price: 47,900,000 yen, now on sale

Floor: 3LD ・ K + 2N (storeroom) + WIC (walk-in closet), the occupied area: 67.05 sq m, Price: 47,900,000 yen, now on sale
Floor: 3LD ・ K + 2N (storeroom) + WIC (walk-in closet), the occupied area: 67.05 sq m, Price: 47,900,000 yen, now on sale

Floor: 3LD ・ K + N (storeroom) + WIC (walk-in closet), the occupied area: 67 sq m, Price: 46,900,000 yen, now on sale

Floor: 3LD ・ K + N (storeroom) + WIC (walk-in closet), the occupied area: 67 sq m, Price: 46,900,000 yen, now on sale

Floor: 3LD ・ K + N (storeroom) + WIC (walk-in closet), the occupied area: 67 sq m, Price: 44,900,000 yen, now on sale

Floor: 3LD ・ K + N (storeroom) + WIC (walk-in closet), the occupied area: 67 sq m, Price: 44,900,000 yen, now on sale

Floor: 3LD ・ K + WIC (Walk link rosette) + SIC (shoes closet), the occupied area: 67.18 sq m, Price: 49,500,000 yen, now on sale

Floor: 3LD ・ K + WIC (Walk link rosette) + SIC (shoes closet), the occupied area: 67.18 sq m, Price: 49,500,000 yen, now on sale
Floor: 3LD ・ K + WIC (Walk link rosette) + SIC (shoes closet), the occupied area: 67.18 sq m, Price: 49,500,000 yen, now on sale


Location