New Apartments » Kanto » Tokyo » Edogawa


Property name
Adenium Kitakoiwa
Time residents
July 2014 in late schedule
Expected price range
35 million yen ~ 46 million yen
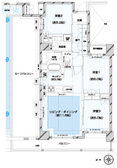
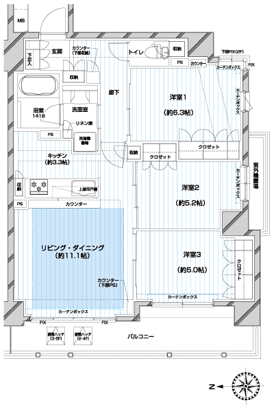
Floor plan
3LDK
Units sold
9 units
Occupied area
66.1 sq m ~ 74.81 sq m
Address
Edogawa-ku, Tokyo Kitakoiwa 3-294-1
Traffic
Keisei Main Line "Edogawa" walk 5 minutes
JR Sobu Line "Koiwa" walk 17 minutes
Sale schedule
Sales scheduled to start 2014 in late January ※ The price is undecided. ※ Acts that lead to secure the contract or reservation of the application and the application order to sale can not be absolutely.
Completion date
June 2014 mid-scheduled
Number of units
9 units
Administrative expense
An unspecified amount
Management reserve
An unspecified amount
Repair reserve
An unspecified amount
Repair reserve fund
An unspecified amount
Other area
Balcony area: 8.33 sq m ~ 12.16 sq m , Roof balcony: 24.3 sq m ~ 32.98 sq m (use fee TBD), Private garden: 2.59 sq m (use fee TBD), Terrace: 11.24 sq m (use fee TBD)
Other limitations
Urbanization promotion area ・ Quasi-fire zones ・ City planning area ・ Second kind altitude district
Property type
Mansion
Total units
41 units (including administrative office 1 units)
Structure-storey
RC7 story
Construction area
751.7 sq m
Building floor area
3308.82 sq m
Site area
1413.23 sq m
Site of the right form
Share of ownership
Use district
First-class residential area
Parking lot
15 cars on-site (fee TBD)
Bicycle-parking space
80 cars (fee TBD)
Bike shelter
4 cars (price TBD)
Management form
Consignment (commuting)
Other overview
Building confirmation number: No. UHEC Ken確 24,728 (2013 March 29, 2008),
The UHEC Ken確 24,728 strange No. 1 (2013, October 4, 2009)
About us
<Employer ・ Seller> Minister of Land, Infrastructure and Transport (4) No. 5600 (one company) National Housing Industry Association (Corporation) metropolitan area real estate Fair Trade Council member Co., Ltd. joint ・ Corporation Yubinbango150-0011 Shibuya-ku, Tokyo Higashi 3-16-3
Construction
Tada Corporation (Corporation)
Management
Undecided


Buildings and facilities

Buildings and facilities. It provides a broad range of residential units and corners dwelling unit with a roof balcony in terraced form of two buildings construction. (Exterior view)
It provides a broad range of residential units and corners dwelling unit with a roof balcony in terraced form of two buildings construction. (Exterior view)

Buildings and facilities. Appearance form of terraced shape, designed in a monotone color ring by white and gray, Shines in this nature is familiar ground, Each other sound beautiful landscape of the town. (Exterior view)
Appearance form of terraced shape, designed in a monotone color ring by white and gray, Shines in this nature is familiar ground, Each other sound beautiful landscape of the town. (Exterior view)

Buildings and facilities. Elegance fragrant white wall. Even sophisticated face of urban living is among the design was a monotone theme, The entrance expressed its features. (Entrance Rendering)
Elegance fragrant white wall. Even sophisticated face of urban living is among the design was a monotone theme, The entrance expressed its features. (Entrance Rendering)

Room and equipment

Room and equipment. It embodies the sense of beauty that I put in architectural design to interior space. Spend the time relaxing in a high-quality space to be filled in the gentle light. (Model Room E type)
It embodies the sense of beauty that I put in architectural design to interior space. Spend the time relaxing in a high-quality space to be filled in the gentle light. (Model Room E type)

Surrounding environment

Surrounding environment. Station 5-minute walk location of. primary school ・ Koiwa of forest park is in a 1-minute walk, Happy living environment in the family. I could live comfortably likely Libre Keisei (super) also is in front of the station. (Local peripheral Illustration)
Station 5-minute walk location of. primary school ・ Koiwa of forest park is in a 1-minute walk, Happy living environment in the family. I could live comfortably likely Libre Keisei (super) also is in front of the station. (Local peripheral Illustration)

Surrounding environment. In addition to the 5-minute walk Keisei Main Line "Edogawa" station, Sobu Line "Koiwa" station also 2 station 2 routes available in walking distance. 16 minutes to "Tokyo", 19 minutes to "Nihonbashi", Providing a comfortable access to the city center. (Traffic view)
In addition to the 5-minute walk Keisei Main Line "Edogawa" station, Sobu Line "Koiwa" station also 2 station 2 routes available in walking distance. 16 minutes to "Tokyo", 19 minutes to "Nihonbashi", Providing a comfortable access to the city center. (Traffic view)

Living

Living.  [living ・ dining] Family living of everyone is loose and relax fine nestled ・ dining. (Indoor photo model room E the following types of posts)
[living ・ dining] Family living of everyone is loose and relax fine nestled ・ dining. (Indoor photo model room E the following types of posts)

Living.  [Western-style 1] The Western-style 1, which is the main bedroom set up a walk-in closet of a large capacity.
[Western-style 1] The Western-style 1, which is the main bedroom set up a walk-in closet of a large capacity.

Living.  [Western-style 3] Private space that can be a variety utilized to match, such as the life style den or hobby room.
[Western-style 3] Private space that can be a variety utilized to match, such as the life style den or hobby room.

Kitchen

Kitchen.  [kitchen] While the cooking enjoy a conversation with the living of your family open counter kitchen. Sink has become a silent type to reduce the water wings sound, It has adopted a bull motion functions close to the quiet in the drawer.
[kitchen] While the cooking enjoy a conversation with the living of your family open counter kitchen. Sink has become a silent type to reduce the water wings sound, It has adopted a bull motion functions close to the quiet in the drawer.

Kitchen.  [Water purifier integrated shower faucet] Water purification ・ Raw water ・ straight ・ Adopt a design highly water purifier single lever mixing faucet with integrated shower the switching of the shower can be easily lever operation. I pulled out the nozzle of the water faucet, Handy to wash up every nook and corner of the sink.
[Water purifier integrated shower faucet] Water purification ・ Raw water ・ straight ・ Adopt a design highly water purifier single lever mixing faucet with integrated shower the switching of the shower can be easily lever operation. I pulled out the nozzle of the water faucet, Handy to wash up every nook and corner of the sink.

Kitchen.  [The top plate] The top plate adopts the top plate of the hyper-glass coating with excellent durability. Strongly to heat and shock, It is easy to clean. (Except for some)
[The top plate] The top plate adopts the top plate of the hyper-glass coating with excellent durability. Strongly to heat and shock, It is easy to clean. (Except for some)

Kitchen.  [Kitchen before enamel panel] Strongly to heat and moisture before the kitchen, Strong and adopt a strong enamel kitchen panel to shock. Dirty luck difficult is easy to clean.
[Kitchen before enamel panel] Strongly to heat and moisture before the kitchen, Strong and adopt a strong enamel kitchen panel to shock. Dirty luck difficult is easy to clean.

Kitchen.  [Slide cabinet] Deep in the wide, Also we have established an all-slide cabinet that can be out on the smooth, such as large-size cookware.
[Slide cabinet] Deep in the wide, Also we have established an all-slide cabinet that can be out on the smooth, such as large-size cookware.

Kitchen.  [Drawer function (Bull motion function)] The drawer, Soften the impact when the close, It has adopted a bull motion functions close to the quiet. (Except for some)
[Drawer function (Bull motion function)] The drawer, Soften the impact when the close, It has adopted a bull motion functions close to the quiet. (Except for some)

Bathing-wash room

Bathing-wash room.  [Bathroom] Hot water tension at the touch of a button ・ Reheating ・ Otobasu system that can warm the Ya, Bathroom with comfortable facilities, including massage function with a shower.
[Bathroom] Hot water tension at the touch of a button ・ Reheating ・ Otobasu system that can warm the Ya, Bathroom with comfortable facilities, including massage function with a shower.

Bathing-wash room.  [Thermos bathtub] Adopted to realize the excellent heat insulation performance by the thermal insulation structure "thermos bathtub". Once you have the lid to the tub, Because it does not escape the warm like a thermos, Even after 6 hours, This bath can be economic without reheating the following people. Also, Tub edge is firmly with the hand, Grasped safe design. Also incorporate universal design. (Conceptual diagram)
[Thermos bathtub] Adopted to realize the excellent heat insulation performance by the thermal insulation structure "thermos bathtub". Once you have the lid to the tub, Because it does not escape the warm like a thermos, Even after 6 hours, This bath can be economic without reheating the following people. Also, Tub edge is firmly with the hand, Grasped safe design. Also incorporate universal design. (Conceptual diagram)

Bathing-wash room.  [TES bathroom heating dryer] Drying ・ ventilation ・ heating ・ Adopted TES bathroom heating dryer with a cool breeze function. It is also useful to dry on a rainy day in and night laundry. Discharged quickly moisture in the one-touch operation, Also reduces the occurrence of mold. Also, Also reduces heat shock phenomenon caused by the temperature difference between the living room by the heating function in cold season.
[TES bathroom heating dryer] Drying ・ ventilation ・ heating ・ Adopted TES bathroom heating dryer with a cool breeze function. It is also useful to dry on a rainy day in and night laundry. Discharged quickly moisture in the one-touch operation, Also reduces the occurrence of mold. Also, Also reduces heat shock phenomenon caused by the temperature difference between the living room by the heating function in cold season.

Bathing-wash room.  [TES Energy look remote control ・ Music remote control] Gas used in the TES heat source machine ・ Fee for use of water, Utility rate ・ It employs a remote control which can confirm the estimate of the quantity of CO2 emissions on the screen of the kitchen and bathroom. Just connect your existing music player in the kitchen of the remote control, You can listen to music in the bathroom and kitchen. (Same specifications)
[TES Energy look remote control ・ Music remote control] Gas used in the TES heat source machine ・ Fee for use of water, Utility rate ・ It employs a remote control which can confirm the estimate of the quantity of CO2 emissions on the screen of the kitchen and bathroom. Just connect your existing music player in the kitchen of the remote control, You can listen to music in the bathroom and kitchen. (Same specifications)

Bathing-wash room.  [Powder Room] Care easy, Wash room to wash the bowl of a beautiful artificial marble counter integrated in appearance provided. Three-sided mirror back storage Ya, Abundant storage space such as a linen cabinet has also been secured.
[Powder Room] Care easy, Wash room to wash the bowl of a beautiful artificial marble counter integrated in appearance provided. Three-sided mirror back storage Ya, Abundant storage space such as a linen cabinet has also been secured.

Bathing-wash room.  [Large three-sided mirror] Set up a convenient large three-sided mirror in the housing, such as cosmetics and accessories. You can keep a beautiful vanity around. Also, Provided also tissue spaces and dryer hook, Also consideration of the day-to-day usability.
[Large three-sided mirror] Set up a convenient large three-sided mirror in the housing, such as cosmetics and accessories. You can keep a beautiful vanity around. Also, Provided also tissue spaces and dryer hook, Also consideration of the day-to-day usability.

Receipt

Receipt.  [System storage] Adopt a system storage "cartel" that boasts a traditional style and sophisticated design of the Italian taste. By combining the optional parts (paid), You can create a storage space to suit your lifestyle. (Same specifications)
[System storage] Adopt a system storage "cartel" that boasts a traditional style and sophisticated design of the Italian taste. By combining the optional parts (paid), You can create a storage space to suit your lifestyle. (Same specifications)

Receipt.  [Walk-in closet] Clothing is also like of course travel bag, Organize collectively ・ Installing the storage can walk in closet. Storage capacity is high walk-in closet brings a room to the entire room. (Except for some)
[Walk-in closet] Clothing is also like of course travel bag, Organize collectively ・ Installing the storage can walk in closet. Storage capacity is high walk-in closet brings a room to the entire room. (Except for some)

Receipt.  [Thor type footwear input] The entrance, To was effectively using the height of the ceiling - Installation Le type footwear input. Firmly storage shoes that frequency of use is biased depending on the season, such as boots and sandals ・ You can organize. (Except for some)
[Thor type footwear input] The entrance, To was effectively using the height of the ceiling - Installation Le type footwear input. Firmly storage shoes that frequency of use is biased depending on the season, such as boots and sandals ・ You can organize. (Except for some)

Other

Other.  [High efficiency TES heat source machine "eco Jaws"] Conventional, Exhaust heat which has not been utilized ・ Adopt energy-saving specifications for hot water supply to efficiently recover the latent heat. In the total cost of the year, And competitive economic benefits.
[High efficiency TES heat source machine "eco Jaws"] Conventional, Exhaust heat which has not been utilized ・ Adopt energy-saving specifications for hot water supply to efficiently recover the latent heat. In the total cost of the year, And competitive economic benefits.

Other.  [Floor heating (TES)] Of all dwelling units living ・ Installing the TES gas hot water floor heating in the dining. Floor heating to warm soften the whole room from feet, Prevent drying of the air and skin, It is no healthy heating winding up the house dust. (Same specifications)
[Floor heating (TES)] Of all dwelling units living ・ Installing the TES gas hot water floor heating in the dining. Floor heating to warm soften the whole room from feet, Prevent drying of the air and skin, It is no healthy heating winding up the house dust. (Same specifications)

Shared facilities

Shared facilities.  [appearance] By making the entire building to the monotone of color, Produce a unified beauty. Marion to create a vertical line will form a sharp image. (Rendering)
[appearance] By making the entire building to the monotone of color, Produce a unified beauty. Marion to create a vertical line will form a sharp image. (Rendering)

Shared facilities.  [Entrance hall] Solve the mind is a tiled space was lit by the soft light, Calm and neat entrance hall. (Rendering)
[Entrance hall] Solve the mind is a tiled space was lit by the soft light, Calm and neat entrance hall. (Rendering)

Security

Security.  [Mansion security system] Adopting the security system to watch 24 hours a day an apartment. In the unlikely event it contains the information to the management company, Report also to the relevant authorities. I rushed patrol staff to quickly, And respond appropriately.
[Mansion security system] Adopting the security system to watch 24 hours a day an apartment. In the unlikely event it contains the information to the management company, Report also to the relevant authorities. I rushed patrol staff to quickly, And respond appropriately.

Security.  [Security magnet sensor] The dwelling unit of the window, Set up a crime prevention magnet sensor in order to inform the suspicious person of intrusion. If it goes wrong, Alarm rang, Lamp is lit. It tells you quickly abnormal. Even at the time of night and long-term absence, On behalf of the residents to protect the safety of the residence. (Except for some)
[Security magnet sensor] The dwelling unit of the window, Set up a crime prevention magnet sensor in order to inform the suspicious person of intrusion. If it goes wrong, Alarm rang, Lamp is lit. It tells you quickly abnormal. Even at the time of night and long-term absence, On behalf of the residents to protect the safety of the residence. (Except for some)

Security.  [Color TV auto lock system with monitor] Adopt an auto-lock system to be able to unlock the door from the check the visitor in the color TV monitor in the dwelling unit. The camera-equipped set intercom installed in the windbreak room, This is a system of peace of mind that you can limit the entry and exit of a suspicious person and useless sales. Also, The intercom in the dwelling unit, It has also been equipped with emergency button.
[Color TV auto lock system with monitor] Adopt an auto-lock system to be able to unlock the door from the check the visitor in the color TV monitor in the dwelling unit. The camera-equipped set intercom installed in the windbreak room, This is a system of peace of mind that you can limit the entry and exit of a suspicious person and useless sales. Also, The intercom in the dwelling unit, It has also been equipped with emergency button.

Security.  [Non-touch key system] Unlocking can be auto-lock key in simply by waving to the sensor adopts non-touch key system to release the auto lock by electromagnetic induction wave.
[Non-touch key system] Unlocking can be auto-lock key in simply by waving to the sensor adopts non-touch key system to release the auto lock by electromagnetic induction wave.

Security.  [Crime prevention thumb turn] The lock on the inside of the front door of each dwelling unit, Equipped with a prevention device of the modus operandi "thumb turning" of incorrect tablets. It will prevent suspicious person of invasion because it does not work on biased force of such a tool. When the switch is pressed in at the top and bottom of the thumb, you can turn the thumb-turn.
[Crime prevention thumb turn] The lock on the inside of the front door of each dwelling unit, Equipped with a prevention device of the modus operandi "thumb turning" of incorrect tablets. It will prevent suspicious person of invasion because it does not work on biased force of such a tool. When the switch is pressed in at the top and bottom of the thumb, you can turn the thumb-turn.

Security.  [PR (progressive) cylinder key] Adopt a "PR cylinder" of valid dimple key type in picking measures to the front door lock. The key difference between the number of theoretical There are over ways 100 billion. Also high processing accuracy is required, Replicate the cross-sectional shape of the key is for the proprietary specification is extremely difficult. further, Exert a high security performance even for bar attack equipped with a sickle dead bolt, More will further enhance the security effect. Also, Since the direction in which the plug of the key is free, Opening and closing of the key can be done smoothly.
[PR (progressive) cylinder key] Adopt a "PR cylinder" of valid dimple key type in picking measures to the front door lock. The key difference between the number of theoretical There are over ways 100 billion. Also high processing accuracy is required, Replicate the cross-sectional shape of the key is for the proprietary specification is extremely difficult. further, Exert a high security performance even for bar attack equipped with a sickle dead bolt, More will further enhance the security effect. Also, Since the direction in which the plug of the key is free, Opening and closing of the key can be done smoothly.

Earthquake ・ Disaster-prevention measures

earthquake ・ Disaster-prevention measures.  [Entrance door with TaiShinwaku] During an earthquake, So as not confined within dwelling unit by the deformation of the door frame, Adopted TaiShinwaku corresponding to the deformation. To ensure the evacuation route, It enhances safety.
[Entrance door with TaiShinwaku] During an earthquake, So as not confined within dwelling unit by the deformation of the door frame, Adopted TaiShinwaku corresponding to the deformation. To ensure the evacuation route, It enhances safety.

earthquake ・ Disaster-prevention measures.  [Elevator safety device] Preliminary tremor of the earthquake that exceeds a certain value in the elevator operating (P-wave) ・ And automatic landing to the nearest floor and sensing a major motion (S-wave). During power failure, First stop on the spot power failure lamp is lit. after that, You then implanted to the nearest floor switch the power supply to the battery. Also, Contact with the outside is also possible in the intercom.
[Elevator safety device] Preliminary tremor of the earthquake that exceeds a certain value in the elevator operating (P-wave) ・ And automatic landing to the nearest floor and sensing a major motion (S-wave). During power failure, First stop on the spot power failure lamp is lit. after that, You then implanted to the nearest floor switch the power supply to the battery. Also, Contact with the outside is also possible in the intercom.

earthquake ・ Disaster-prevention measures.  [Security lighting with brightness sensor] It senses the brightness, Darkening the lights, Brighter and adopt the brightness of the security lighting with sensors that turn off. In addition to increasing the automatic lighting and safety in the event of a power failure, It is useful because it can be used as a flashlight to remove.
[Security lighting with brightness sensor] It senses the brightness, Darkening the lights, Brighter and adopt the brightness of the security lighting with sensors that turn off. In addition to increasing the automatic lighting and safety in the event of a power failure, It is useful because it can be used as a flashlight to remove.

Building structure

Building structure.  [Off-the-shelf pile expanding root compaction method] Adopted expanding root compaction method that dedicated to robust underground piles supporting firmly the building. Driving off-the-shelf steel pipe winding concrete pile in the N-value of 50 or more of the ground in the basement about 15m, To construct a root compaction bulbs by soil cement has enhanced the durability to tip.
[Off-the-shelf pile expanding root compaction method] Adopted expanding root compaction method that dedicated to robust underground piles supporting firmly the building. Driving off-the-shelf steel pipe winding concrete pile in the N-value of 50 or more of the ground in the basement about 15m, To construct a root compaction bulbs by soil cement has enhanced the durability to tip.

Building structure.  [Plated dual-floor] For the upper and lower floors of the living sound, I thought that to reduce from both sides of the structural material and coverings, Equipped with anti-vibration rubber to absorb the vibration to the support leg, ΔLL- (II) -3 adopted plated type double bed with a grade equivalent of sound insulation. In order to minimize the weight impact sound transmitted shaking the precursor such as footsteps, The slab thickness of the floor about 200mm ~ It was to about 240mm.
[Plated dual-floor] For the upper and lower floors of the living sound, I thought that to reduce from both sides of the structural material and coverings, Equipped with anti-vibration rubber to absorb the vibration to the support leg, ΔLL- (II) -3 adopted plated type double bed with a grade equivalent of sound insulation. In order to minimize the weight impact sound transmitted shaking the precursor such as footsteps, The slab thickness of the floor about 200mm ~ It was to about 240mm.

Building structure.  [Double ceiling] Adopt a double ceiling hanging the ceiling from the concrete slab. Maintenance and future renovation of wiring can be easily performed. Also, In order to reduce the transmitted of the upper and lower floors dwelling unit of living sound, Slab thickness of between dwelling units is about 200mm ~ Has secured about 240mm.
[Double ceiling] Adopt a double ceiling hanging the ceiling from the concrete slab. Maintenance and future renovation of wiring can be easily performed. Also, In order to reduce the transmitted of the upper and lower floors dwelling unit of living sound, Slab thickness of between dwelling units is about 200mm ~ Has secured about 240mm.

Building structure.  [Pair glass] It employs a pair glass superimposed providing a clearance between two sheets of glass. Not only increase the thermal insulation effect, Also effective to prevent dew condensation on the glass surface due to the temperature difference between the indoor and outdoor. Efficient ・ Effectively available Air, And contribute to the reduction of CO2 emissions. (Except for some)
[Pair glass] It employs a pair glass superimposed providing a clearance between two sheets of glass. Not only increase the thermal insulation effect, Also effective to prevent dew condensation on the glass surface due to the temperature difference between the indoor and outdoor. Efficient ・ Effectively available Air, And contribute to the reduction of CO2 emissions. (Except for some)

Building structure.  [Air tight sash] Adopt an air tight sash of high sound insulation T-2 grade. It has extended sound insulation against sound from outside. (Or more posted illustrations conceptual diagram)
[Air tight sash] Adopt an air tight sash of high sound insulation T-2 grade. It has extended sound insulation against sound from outside. (Or more posted illustrations conceptual diagram)

Building structure.  [Housing Performance Evaluation (design ・ construction)] The third-party organization that has received the registration of the Minister of Land, Infrastructure and Transport, At the time of stability and fire of the structure of the house, such as safety, We strictly evaluated for each performance. The comparison is easy to evaluation are displayed in grade and numbers, It is objective and fair. In "Adenium Kitakoiwa", Get this "design Housing Performance Evaluation Report". Further, after completion, It is scheduled acquisition of the "construction Housing Performance Evaluation Report".  ※ For more information see "Housing term large Dictionary"
[Housing Performance Evaluation (design ・ construction)] The third-party organization that has received the registration of the Minister of Land, Infrastructure and Transport, At the time of stability and fire of the structure of the house, such as safety, We strictly evaluated for each performance. The comparison is easy to evaluation are displayed in grade and numbers, It is objective and fair. In "Adenium Kitakoiwa", Get this "design Housing Performance Evaluation Report". Further, after completion, It is scheduled acquisition of the "construction Housing Performance Evaluation Report". ※ For more information see "Housing term large Dictionary"

Other

Other.  [Home delivery locker] Set up a home delivery locker in the entrance. Shi take your home delivery luggage at the time of absence, Take-out is possible at any time 24 hours. Your receipt is also possible of further food delivery service "food distribution lab".  ※ The available registration is required to tie-up company. (More than the published photograph of the same specifications)
[Home delivery locker] Set up a home delivery locker in the entrance. Shi take your home delivery luggage at the time of absence, Take-out is possible at any time 24 hours. Your receipt is also possible of further food delivery service "food distribution lab". ※ The available registration is required to tie-up company. (More than the published photograph of the same specifications)

Other.  [Pets live possible] As a member of the family, The role of the pet to bring peace has been attention to the people. In accordance with the management contract, Living with pets has become possible within the dwelling unit. (The photograph is an example of a pet that can live at home)
[Pets live possible] As a member of the family, The role of the pet to bring peace has been attention to the people. In accordance with the management contract, Living with pets has become possible within the dwelling unit. (The photograph is an example of a pet that can live at home)

Other.  [Broadband Internet] (Ltd.) corresponding to the apartment Internet system "e-mansion" by Net Communications to connect. Introducing the optical fiber access lines. Stress-free high-speed Internet and IP phone and you can take advantage of 24-hour.
[Broadband Internet] (Ltd.) corresponding to the apartment Internet system "e-mansion" by Net Communications to connect. Introducing the optical fiber access lines. Stress-free high-speed Internet and IP phone and you can take advantage of 24-hour.

Surrounding environment

Surrounding environment. Koiwa of Forest Park (about 50m ・ 1-minute walk)
Koiwa of Forest Park (about 50m ・ 1-minute walk)

Surrounding environment. Koiwa Urban Plaza (about 170m ・ A 3-minute walk)
Koiwa Urban Plaza (about 170m ・ A 3-minute walk)

Surrounding environment. Medium Koiwa Elementary School (about 80m ・ 1-minute walk)
Medium Koiwa Elementary School (about 80m ・ 1-minute walk)

Surrounding environment. Edogawa Green & Edogawa (about 440m ・ 6-minute walk)
Edogawa Green & Edogawa (about 440m ・ 6-minute walk)

Surrounding environment. Koiwa library (about 750m ・ A 10-minute walk)
Koiwa library (about 750m ・ A 10-minute walk)

Surrounding environment. Ito-Yokado Koiwa store (about 1230m ・ 16-minute walk)
Ito-Yokado Koiwa store (about 1230m ・ 16-minute walk)

Floor: 3LDK, the area occupied: 66.1 sq m, Price: TBD

Floor: 3LDK, the area occupied: 66.1 sq m, Price: TBD
Floor: 3LDK, the area occupied: 66.1 sq m, Price: TBD

Floor: 3LDK, occupied area: 71.52 sq m, Price: TBD

Floor: 3LDK, occupied area: 71.52 sq m, Price: TBD
Floor: 3LDK, occupied area: 71.52 sq m, Price: TBD

Floor: 3LDK, occupied area: 73.84 sq m, Price: TBD

Floor: 3LDK, occupied area: 73.84 sq m, Price: TBD
Floor: 3LDK, occupied area: 73.84 sq m, Price: TBD

Floor: 3LDK, occupied area: 70.06 sq m, Price: TBD

Floor: 3LDK, occupied area: 70.06 sq m, Price: TBD
Floor: 3LDK, occupied area: 70.06 sq m, Price: TBD
Floor: 3LDK, occupied area: 70.06 sq m, Price: TBD
Floor: 3LDK, occupied area: 70.06 sq m, Price: TBD

Floor: 3LDK, occupied area: 74.52 sq m, Price: TBD

Floor: 3LDK, occupied area: 74.52 sq m, Price: TBD
Floor: 3LDK, occupied area: 74.52 sq m, Price: TBD

Floor: 3LDK, occupied area: 71.59 sq m, Price: TBD

Floor: 3LDK, occupied area: 71.59 sq m, Price: TBD
Floor: 3LDK, occupied area: 71.59 sq m, Price: TBD

Floor: 3LDK, occupied area: 74.81 sq m, Price: TBD

Floor: 3LDK, occupied area: 74.81 sq m, Price: TBD
Floor: 3LDK, occupied area: 74.81 sq m, Price: TBD

Floor: 3LDK, occupied area: 74.61 sq m, Price: TBD

Floor: 3LDK, occupied area: 74.61 sq m, Price: TBD
Floor: 3LDK, occupied area: 74.61 sq m, Price: TBD


Location