New Apartments » Kanto » Tokyo » Kita-ku


Property name
City House Akabaneminami Parkside Court
Time residents
Immediate Available (various procedures end as soon as Available)
Price
42,100,000 yen ~ 46,500,000 yen
Floor plan
3LDK
Units sold
9 units
Occupied area
66.68 sq m ~ 66.91 sq m
Address
Kita-ku, Tokyo Kamiya 2-45-1
Traffic
JR Saikyo Line "Akabane" walk 12 minutes
Tokyo Metro Nanboku Line "Shimo" walk 11 minutes
JR Yamanote Line "Ikebukuro" 40 minutes by bus, "Akabane Station West" Tomafu 14 minutes
Sale schedule
First-come-first-served basis application acceptance time / 10:00AM ~ 6:00 PM location / Akabane Mansion Pavilion ※ At the time of application is, 2011 ・ Of 24 years worth of income certificate and personal seal, Identification document is required. ※ Because of the first-come-first-served basis accepted, Please pardon the case of a contract already.
Completion date
July 13, 2012 (Completed)
Number of units
9 units
Administrative expense
10,386 yen / Month
Management reserve
10,386 yen (lump sum)
Repair reserve
5180 yen ~ 5200 yen / Month
Repair reserve fund
359,800 yen ~ 361,100 yen (lump sum)
Other area
Balcony area: 9.61 sq m ~ 11.16 sq m , Roof balcony: 47.35 sq m (use fee 470 yen / Month), Terrace: 15.34 sq m (use fee Mu), Porch: 3.37 sq m
Property type
Mansion
Total units
87 units
Structure-storey
RC8 story
Construction area
1313.59 sq m
Building floor area
6726.6 sq m
Site area
2977.62 sq m
Site of the right form
Share of ownership
Use district
Semi-industrial area
Parking lot
61 cars on-site (fee 10,000 yen ~ 16,000 yen / Month, Second unit contract Allowed ※ Conditions in the contract ・ Constraints Yes)
Bicycle-parking space
174 cars (100 yen fee ~ 200 yen / Month)
Bike shelter
4 cars (1,500 yen fee ~ 2000 yen / Month)
Mini bike shelter
1 cars (fee 1000 yen / Month)
Management form
Consignment (commuting)
Other overview
Building confirmation number: No. ERI11012799 (2011 May 20 date), No. ERI11025376 (July 2011 25 date)
About us
<Seller> Minister of Land, Infrastructure and Transport (14) No. 38 (one company) Real Estate Association (Corporation) metropolitan area real estate Fair Trade Council member Sumitomo Realty & Development Co., Ltd. Yubinbango163-0820 Tokyo Nishi-Shinjuku, Shinjuku-ku, 2-4-1 (Shinjuku NS Building)
Construction
(Ltd.) Okumura Corporation
Management
Sumitomo Realty & Development Building Service Co., Ltd.


Buildings and facilities

Buildings and facilities. Siemens Kamiya park on the site south (about 10m / 1 minute walk) from the shooting site (August 2012). South-facing the center of the peace of mind that can watch their children play in the park. Since the square is surrounded by road, Room of the space is maintained between the adjacent building, This daylighting ・ We grant a land plan with excellent sense of openness to gouty.
Siemens Kamiya park on the site south (about 10m / 1 minute walk) from the shooting site (August 2012). South-facing the center of the peace of mind that can watch their children play in the park. Since the square is surrounded by road, Room of the space is maintained between the adjacent building, This daylighting ・ We grant a land plan with excellent sense of openness to gouty.

Buildings and facilities. Independent city-ku, which is surrounded on all four sides on the road. Goodness of the south-facing center sunny big attraction. Enjoy an open feeling of the green there is a south to municipal Kamiya park (about 10m). Small location of anxiety about the future, which is surrounded by a park and the ward of the facility. (Site layout drawing ※ Convenience of construction ・ It may be slightly changed by the improvement. )
Independent city-ku, which is surrounded on all four sides on the road. Goodness of the south-facing center sunny big attraction. Enjoy an open feeling of the green there is a south to municipal Kamiya park (about 10m). Small location of anxiety about the future, which is surrounded by a park and the ward of the facility. (Site layout drawing ※ Convenience of construction ・ It may be slightly changed by the improvement. )

Room and equipment

Room and equipment. The wide windows full, Green pleasant wind and park, Spread is bright sunshine, There is a sense of open living. South-facing center ・ Enjoy the comfort of the Park Front. (70B 'type ・ 8 floor of the building in the model room ※ September 2013 shooting). Friendly living environment attractive to child-rearing family while working.
The wide windows full, Green pleasant wind and park, Spread is bright sunshine, There is a sense of open living. South-facing center ・ Enjoy the comfort of the Park Front. (70B 'type ・ 8 floor of the building in the model room ※ September 2013 shooting). Friendly living environment attractive to child-rearing family while working.

Buildings and facilities

Buildings and facilities. Suitable for calm residential area, Dignified entrance (August 2012 shooting). Gorgeous design there is a canopy, It is comfortable it can be getting on and off in the car smoothly.  ※ Surrounding environment ・ View might change in the future.
Suitable for calm residential area, Dignified entrance (August 2012 shooting). Gorgeous design there is a canopy, It is comfortable it can be getting on and off in the car smoothly. ※ Surrounding environment ・ View might change in the future.

Buildings and facilities. Green planting flies beautifully through the glass, There is a sense of open entrance hall (June 2013 shooting). Also etc. to introduce a 24-hour online security system of Sumitomo Realty & Development, Systems and equipment also enriched the family can live in peace.
Green planting flies beautifully through the glass, There is a sense of open entrance hall (June 2013 shooting). Also etc. to introduce a 24-hour online security system of Sumitomo Realty & Development, Systems and equipment also enriched the family can live in peace.

Surrounding environment

Surrounding environment. Parurodo spread to JR Akabane Station. Akabane Apire ・ Bibio ・ Ito-Yokado Akabane store, etc., Large-scale shopping facilities are also living area. Of course, shopping on the way home from the train station, Very convenient for day-to-day shopping (June 2013 shooting)
Parurodo spread to JR Akabane Station. Akabane Apire ・ Bibio ・ Ito-Yokado Akabane store, etc., Large-scale shopping facilities are also living area. Of course, shopping on the way home from the train station, Very convenient for day-to-day shopping (June 2013 shooting)

Living

Living.  [Living Dining] Family is the central space of the longest spend dwelling LD. In order to comfortably produce a reunion and relaxation of the moment, Size and visibility that room that you can enjoy the exceptional brightness and sense of openness has realized the opening spread to wide.
[Living Dining] Family is the central space of the longest spend dwelling LD. In order to comfortably produce a reunion and relaxation of the moment, Size and visibility that room that you can enjoy the exceptional brightness and sense of openness has realized the opening spread to wide.

Living.  [Living Dining] Two-sided lighting living ・ dining. A type, Daylighting ・ Ventilation rich corner dwelling unit. It is more favor layout a sense opened by the three-sided opening.  ※ Building in the model room (70A type ・ 4th floor ※ September 2013 shooting)
[Living Dining] Two-sided lighting living ・ dining. A type, Daylighting ・ Ventilation rich corner dwelling unit. It is more favor layout a sense opened by the three-sided opening. ※ Building in the model room (70A type ・ 4th floor ※ September 2013 shooting)

Living.  [A depth terrace] Convenient Minishinku Ya gardening is on the terrace, Installed a convenient waterproof outlet use various. Since the depth also, Sense of openness will be further felt. Peace of mind can watch while doing housework a figure playing full blast out a plastic pool in the summer in the kitchen at home you have a small child.  ※ Building in the model room (70B't type) 2013 June shooting
[A depth terrace] Convenient Minishinku Ya gardening is on the terrace, Installed a convenient waterproof outlet use various. Since the depth also, Sense of openness will be further felt. Peace of mind can watch while doing housework a figure playing full blast out a plastic pool in the summer in the kitchen at home you have a small child. ※ Building in the model room (70B't type) 2013 June shooting

Living.  [Living Dining Kitchen] The photographs The following is obtained by photographing the building in the model room (70B 'type). Furniture and furnishings optional specifications are not included in the sale price.  ※ Specification of the model room, Convenience of on construction ・ It may be subject to change in part by improvements and the like. (October 2012 shooting)
[Living Dining Kitchen] The photographs The following is obtained by photographing the building in the model room (70B 'type). Furniture and furnishings optional specifications are not included in the sale price. ※ Specification of the model room, Convenience of on construction ・ It may be subject to change in part by improvements and the like. (October 2012 shooting)

Living.  [Living Dining] By opening a movable partition door of LD and Western, It can be used as a wider space LD. The child's playground Akehanashi, Various also Tsukaimichi and in the drawing-room closed.  ※ A ・ B ・ B 'type only
[Living Dining] By opening a movable partition door of LD and Western, It can be used as a wider space LD. The child's playground Akehanashi, Various also Tsukaimichi and in the drawing-room closed. ※ A ・ B ・ B 'type only

Kitchen

Kitchen.  [Kitchen storage] Easy to take out slide housed Ya, And it can be stored a kitchen knife at hand handy smart pocket (With Child Lock), Spiral rack and feet sliding storage, etc., Kitchen feature-packed.
[Kitchen storage] Easy to take out slide housed Ya, And it can be stored a kitchen knife at hand handy smart pocket (With Child Lock), Spiral rack and feet sliding storage, etc., Kitchen feature-packed.

Kitchen.  [Schott glass top plate] It is loved all over the world, Germany ・ Adopt a shot manufactured by heat-resistant ceramic glass top plate. Not only beautiful, Strongly to heat and shock, Difficult dirty luck, It is easy to clean.  ※ Less than, Published photograph of the thing that was taken the model room (70B type). Furniture and furnishings optional specifications are not included in the sale price.  ※ Specification of the model room, Convenience of on construction ・ It may be subject to change in part by improvements and the like. (May 2012 shooting)
[Schott glass top plate] It is loved all over the world, Germany ・ Adopt a shot manufactured by heat-resistant ceramic glass top plate. Not only beautiful, Strongly to heat and shock, Difficult dirty luck, It is easy to clean. ※ Less than, Published photograph of the thing that was taken the model room (70B type). Furniture and furnishings optional specifications are not included in the sale price. ※ Specification of the model room, Convenience of on construction ・ It may be subject to change in part by improvements and the like. (May 2012 shooting)

Kitchen.  [Single lever shower faucet] The amount of water in the lever operation one, Installing the temperature adjustable single-lever faucet. Since the pull out the shower head, It is also useful, such as sink cleaning. Also, It has a built-in water purification cartridge.  ※ Cartridge replacement costs separately paid.
[Single lever shower faucet] The amount of water in the lever operation one, Installing the temperature adjustable single-lever faucet. Since the pull out the shower head, It is also useful, such as sink cleaning. Also, It has a built-in water purification cartridge. ※ Cartridge replacement costs separately paid.

Bathing-wash room

Bathing-wash room.  [Powder Room] Three-sided mirror with vanity, which also includes a three-sided mirror under mirror tailored to the child's point of view. Ensure the storage rack on the back side of the three-sided mirror. Integrated bowl with a step to keep the counter clean and eliminates the need of cleaning.
[Powder Room] Three-sided mirror with vanity, which also includes a three-sided mirror under mirror tailored to the child's point of view. Ensure the storage rack on the back side of the three-sided mirror. Integrated bowl with a step to keep the counter clean and eliminates the need of cleaning.

Bathing-wash room.  [Bath Room] Adopt a large unit bus of about 1.4m × about 1.8m that can bathe comfortably. In low-floor type in consideration of the safety, Floor FRP panel, The wall is a half mirror decorative panel. Also a point of interest enhance the functional aspects of music such as a remote controller to feel free to enjoy a TES type bathroom heating dryer and music.
[Bath Room] Adopt a large unit bus of about 1.4m × about 1.8m that can bathe comfortably. In low-floor type in consideration of the safety, Floor FRP panel, The wall is a half mirror decorative panel. Also a point of interest enhance the functional aspects of music such as a remote controller to feel free to enjoy a TES type bathroom heating dryer and music.

Bathing-wash room.  [Hot water is cold hard to keep warm tub] It was unlikely to cool the hot water warmed dedicated Furofuta and a dedicated bath heat insulation material. Once the boil, Because the hot water temperature is long-lasting and economical can save Reheating and adding hot water. (Conceptual diagram)
[Hot water is cold hard to keep warm tub] It was unlikely to cool the hot water warmed dedicated Furofuta and a dedicated bath heat insulation material. Once the boil, Because the hot water temperature is long-lasting and economical can save Reheating and adding hot water. (Conceptual diagram)

Receipt

Receipt.  [Walk-in closet] Walk-in closet that can confirm the stored items at a glance is, Large-scale storage with the size of the room. In addition to the storage of a number of clothing, Drawer to feet and chest, You can put even shoe box.
[Walk-in closet] Walk-in closet that can confirm the stored items at a glance is, Large-scale storage with the size of the room. In addition to the storage of a number of clothing, Drawer to feet and chest, You can put even shoe box.

Receipt.  [Storeroom] Sports such as golf bag ・ From outdoor goods, Until the season of life supplies, Also it can be stored large volume.  ※ A ・ At ・ E ・ Except Er type.
[Storeroom] Sports such as golf bag ・ From outdoor goods, Until the season of life supplies, Also it can be stored large volume. ※ A ・ At ・ E ・ Except Er type.

Receipt.  [Thor type footwear input] The entrance, Set up a footwear input of tall type there is a height of up to ceiling near. A number of footwear, of course, Until the boots and umbrella, You can clean storage. Also, Convenient accessory tray in the glove compartment, such as a seal ・ It has established a net basket. In the center, Installing a cabinet with a counter and down lights that can produce a foyer individuality richly.  ※ Some dwelling unit is, Set up a distribution board or the like to the top.  ※ E ・ Except Er type.
[Thor type footwear input] The entrance, Set up a footwear input of tall type there is a height of up to ceiling near. A number of footwear, of course, Until the boots and umbrella, You can clean storage. Also, Convenient accessory tray in the glove compartment, such as a seal ・ It has established a net basket. In the center, Installing a cabinet with a counter and down lights that can produce a foyer individuality richly. ※ Some dwelling unit is, Set up a distribution board or the like to the top. ※ E ・ Except Er type.

Interior

Interior. Hobby Room
Hobby Room

Interior. Master Bed Room
Master Bed Room

Interior. Kids Room
Kids Room

Other

Other.  [TES hot water floor heating] living ・ The dining, Adopt the TES hot water floor heating of Tokyo Gas. Warm comfortable room from the ground by using a hot water, It is a heating system to achieve a "Zukansokunetsu" which is said to be ideal. (Same specifications)
[TES hot water floor heating] living ・ The dining, Adopt the TES hot water floor heating of Tokyo Gas. Warm comfortable room from the ground by using a hot water, It is a heating system to achieve a "Zukansokunetsu" which is said to be ideal. (Same specifications)

Other.  [Double-glazing] To opening, By providing an air layer between two sheets of glass, Adopt a multi-layered glass, which has also been observed energy-saving effect and exhibit high thermal insulation properties. Also it reduces the occurrence of condensation on the glass surface. (Conceptual diagram)
[Double-glazing] To opening, By providing an air layer between two sheets of glass, Adopt a multi-layered glass, which has also been observed energy-saving effect and exhibit high thermal insulation properties. Also it reduces the occurrence of condensation on the glass surface. (Conceptual diagram)

Shared facilities

Shared facilities.  [Upscale modern entrance] Place the planting to the eaves of the previous which extends to the north direction from the entrance. By cutting the eaves only planted 栽上 part, Creating a bright space where sunlight pours, It will be accompanied by a color to day-to-day life. (2012.8 shooting)
[Upscale modern entrance] Place the planting to the eaves of the previous which extends to the north direction from the entrance. By cutting the eaves only planted 栽上 part, Creating a bright space where sunlight pours, It will be accompanied by a color to day-to-day life. (2012.8 shooting)

Shared facilities.  [South park] From the window of the south-facing dwelling unit is, You can admire the green of the abundant trees arranged in the park. This open and moisture full vista, It brings brightness and freshness in every day life, It will produce a large peace in everyday family. (Location concept illustration)
[South park] From the window of the south-facing dwelling unit is, You can admire the green of the abundant trees arranged in the park. This open and moisture full vista, It brings brightness and freshness in every day life, It will produce a large peace in everyday family. (Location concept illustration)

Variety of services

Variety of services.  [Seiyu Net Super receive service] In the same property is, Introduction scheduled for Seiyu Net Super receive service. Products receive when you order in Seiyu online supermarket than a personal computer or mobile phone from Seiyu to your home, If you absence is a useful service that will deliver the goods to the delivery box (planned).  ※ conditions ・ Restricted. Service contents, etc., are those of the plan of the planning stage, It is subject to change in the future.
[Seiyu Net Super receive service] In the same property is, Introduction scheduled for Seiyu Net Super receive service. Products receive when you order in Seiyu online supermarket than a personal computer or mobile phone from Seiyu to your home, If you absence is a useful service that will deliver the goods to the delivery box (planned). ※ conditions ・ Restricted. Service contents, etc., are those of the plan of the planning stage, It is subject to change in the future.

Variety of services.  [Moving your free pack] In the same property is, Introduction scheduled for moving your free pack service. Carry-out of the offer and luggage of packing materials ・ Transportation ・ It supports transferring the free. Also, Various services, such as home appliances installation and trunk room arrangements, if necessary also performs in the option (paid).  ※ conditions ・ Restricted. For more information please contact the person in charge.
[Moving your free pack] In the same property is, Introduction scheduled for moving your free pack service. Carry-out of the offer and luggage of packing materials ・ Transportation ・ It supports transferring the free. Also, Various services, such as home appliances installation and trunk room arrangements, if necessary also performs in the option (paid). ※ conditions ・ Restricted. For more information please contact the person in charge.

Variety of services.  [Closet Select flights] It is okay to not fit into the clothes are many storage. Such as winter clothing, This service entrusted to us up to 9 months after the cleaning (planned).  ※ conditions ・ Restricted. Service contents, etc., are those of the plan of the planning stage, It is subject to change in the future.
[Closet Select flights] It is okay to not fit into the clothes are many storage. Such as winter clothing, This service entrusted to us up to 9 months after the cleaning (planned). ※ conditions ・ Restricted. Service contents, etc., are those of the plan of the planning stage, It is subject to change in the future.

Security

Security.  [24-hour online security system S-GUARD] A 24-hour online system, Central Security Patrols (Ltd.) (CSP) has led to the command center. Gas leak in each dwelling unit, Emergency button, Security sensors, and each dwelling unit, When the alarm by the fire in the common areas is transmitted, Central Security Patrols guards rushed to the scene of the (stock), Correspondence will be made, such as the required report. Also, Promptly conducted a field check guards of Central Security Patrols also in the case, which has received the abnormal signal of the common area facilities Co., Ltd., It will contribute to the rapid and appropriate response. (Conceptual diagram)
[24-hour online security system S-GUARD] A 24-hour online system, Central Security Patrols (Ltd.) (CSP) has led to the command center. Gas leak in each dwelling unit, Emergency button, Security sensors, and each dwelling unit, When the alarm by the fire in the common areas is transmitted, Central Security Patrols guards rushed to the scene of the (stock), Correspondence will be made, such as the required report. Also, Promptly conducted a field check guards of Central Security Patrols also in the case, which has received the abnormal signal of the common area facilities Co., Ltd., It will contribute to the rapid and appropriate response. (Conceptual diagram)

Security.  [Crime prevention laminated glass] Some dwelling unit of the window, Use the security laminated glass. Sandwiched between two glass special intermediate film (film) will exert an effect on the anti-intrusion by the glass breaking. Also, Because the risk of scattering and falling of the glass less also has excellent safety.  ※ For more information please contact the person in charge. (Conceptual diagram)
[Crime prevention laminated glass] Some dwelling unit of the window, Use the security laminated glass. Sandwiched between two glass special intermediate film (film) will exert an effect on the anti-intrusion by the glass breaking. Also, Because the risk of scattering and falling of the glass less also has excellent safety. ※ For more information please contact the person in charge. (Conceptual diagram)

Earthquake ・ Disaster-prevention measures

earthquake ・ Disaster-prevention measures.  [Earthquake Early Warning Distribution Service] Analyzes the waveform of the initial tremor is observed in the seismic observation point of the Japan Meteorological Agency close to the epicenter immediately after the earthquake (P-wave), Predicted seismic intensity received by the receiver to install the information earlier in the apartment from the main motion (S-wave) ・ Calculate the expected arrival time, If you exceed a certain seismic intensity, Dwelling units within the intercom base unit ・ Voice reporting from the common areas speaker, Emergency opening of the auto door, And elevator emergency stop is done.
[Earthquake Early Warning Distribution Service] Analyzes the waveform of the initial tremor is observed in the seismic observation point of the Japan Meteorological Agency close to the epicenter immediately after the earthquake (P-wave), Predicted seismic intensity received by the receiver to install the information earlier in the apartment from the main motion (S-wave) ・ Calculate the expected arrival time, If you exceed a certain seismic intensity, Dwelling units within the intercom base unit ・ Voice reporting from the common areas speaker, Emergency opening of the auto door, And elevator emergency stop is done.

earthquake ・ Disaster-prevention measures.  [Elevator safety device] During elevator operation, Receiver in the apartment receives the earthquake early warning, Or preliminary tremor of the earthquake earthquake control device exceeds a certain value (P-wave) ・ Upon sensing the main motion (S-wave), Stop as soon as possible to the nearest floor. Also, The automatic landing system during a power outage is when a power failure occurs, And automatic stop to the nearest floor, further, Other ceiling of power failure light illuminates the inside of the elevator lit instantly, Because the intercom can be used, Contact with the outside is also possible.
[Elevator safety device] During elevator operation, Receiver in the apartment receives the earthquake early warning, Or preliminary tremor of the earthquake earthquake control device exceeds a certain value (P-wave) ・ Upon sensing the main motion (S-wave), Stop as soon as possible to the nearest floor. Also, The automatic landing system during a power outage is when a power failure occurs, And automatic stop to the nearest floor, further, Other ceiling of power failure light illuminates the inside of the elevator lit instantly, Because the intercom can be used, Contact with the outside is also possible.

earthquake ・ Disaster-prevention measures.  [Tai Sin door frame] During the event of an earthquake, Also distorted frame of the entrance door, By providing increased clearance between the frame and the door, It was adopted Tai Sin door frame with consideration to allow the opening of the door to easy.
[Tai Sin door frame] During the event of an earthquake, Also distorted frame of the entrance door, By providing increased clearance between the frame and the door, It was adopted Tai Sin door frame with consideration to allow the opening of the door to easy.

earthquake ・ Disaster-prevention measures.  [Door opening prevention mechanism] The door of the kitchen of the hanging cupboard and vanity of the triple mirror housing, To lock the door to sense the shaking of an earthquake, Installing a latch. To protect the live towards safety. Secure the shelves in a more nails for shelf dropout prevention so as not to come off the shelves. (Same specifications)
[Door opening prevention mechanism] The door of the kitchen of the hanging cupboard and vanity of the triple mirror housing, To lock the door to sense the shaking of an earthquake, Installing a latch. To protect the live towards safety. Secure the shelves in a more nails for shelf dropout prevention so as not to come off the shelves. (Same specifications)

earthquake ・ Disaster-prevention measures.  [Door to door to disaster prevention Luc] We will be given the disaster prevention backpack to each household at the time of delivery. Luc flame-retardant processing has been performed, Disaster save for drinking water, Canned bread that can be long-term storage, Cotton work gloves to dust mask, Compact size of the siren with radio light (with battery), Rescue sheet that can be used as an alternative to the blanket and overcoat because of the cold weather effect, It is lots of 7-piece set.
[Door to door to disaster prevention Luc] We will be given the disaster prevention backpack to each household at the time of delivery. Luc flame-retardant processing has been performed, Disaster save for drinking water, Canned bread that can be long-term storage, Cotton work gloves to dust mask, Compact size of the siren with radio light (with battery), Rescue sheet that can be used as an alternative to the blanket and overcoat because of the cold weather effect, It is lots of 7-piece set.

Building structure

Building structure.  [41 pieces of pile the pouring (gate, Except mechanical parking lot)] ground / The high strength building development, It is important to support the ground a robust stratum. In the same property is, Underground about 22m ~ About 27m deeper, The N value of 50 or more of gravel layer it is supporting the ground to support the building. Foundation pile / In the same property is, Precast concrete pile in the gravel layer [pile diameter of about 500mm ~ 12 about 600mm], Cast-in-place concrete pile [Kui径 (shaft diameter) of about 1500mm ~ About 1700mm] has devoted 29 This.
[41 pieces of pile the pouring (gate, Except mechanical parking lot)] ground / The high strength building development, It is important to support the ground a robust stratum. In the same property is, Underground about 22m ~ About 27m deeper, The N value of 50 or more of gravel layer it is supporting the ground to support the building. Foundation pile / In the same property is, Precast concrete pile in the gravel layer [pile diameter of about 500mm ~ 12 about 600mm], Cast-in-place concrete pile [Kui径 (shaft diameter) of about 1500mm ~ About 1700mm] has devoted 29 This.

Building structure.  [Double reinforcement] Rebar major wall, It has adopted a double reinforcement which arranged the rebar to double in the concrete. ( ※ Except for some) to ensure high earthquake resistance than compared to a single reinforcement.
[Double reinforcement] Rebar major wall, It has adopted a double reinforcement which arranged the rebar to double in the concrete. ( ※ Except for some) to ensure high earthquake resistance than compared to a single reinforcement.

Building structure.  [Welding closed girdle muscular] The main pillar portion was welded to the connecting portion of the band muscle, Adopted a welding closed girdle muscular. By ensuring stable strength by factory welding, To suppress the conceive out of the main reinforcement at the time of earthquake, It enhances the binding force of the concrete.
[Welding closed girdle muscular] The main pillar portion was welded to the connecting portion of the band muscle, Adopted a welding closed girdle muscular. By ensuring stable strength by factory welding, To suppress the conceive out of the main reinforcement at the time of earthquake, It enhances the binding force of the concrete.

Other

Other.  [Tokyo Metropolitan Environmental performance display] Based on the efforts of the building environment plan that building owners will be submitted to the Tokyo Metropolitan Government, 5 has been evaluated in three stages for items.  ※ For more information see "Housing term large Dictionary"
[Tokyo Metropolitan Environmental performance display] Based on the efforts of the building environment plan that building owners will be submitted to the Tokyo Metropolitan Government, 5 has been evaluated in three stages for items. ※ For more information see "Housing term large Dictionary"

Other.  [Eco Jaws] Adoption of high efficiency gas water heater "Eco Jaws" of the Tokyo Gas. kitchen, Bathroom, Of course, smooth hot water supply to the powder room, It supports up to floor heating and bathroom heating dryer in total. Also, The heat source system, Exhaust heat which has been wastefully discarded conventional, Has become a energy-saving specifications boil water by the latent heat efficiently recovered, Environmentally friendly, Also provides excellent economy in terms of annual running cost.
[Eco Jaws] Adoption of high efficiency gas water heater "Eco Jaws" of the Tokyo Gas. kitchen, Bathroom, Of course, smooth hot water supply to the powder room, It supports up to floor heating and bathroom heating dryer in total. Also, The heat source system, Exhaust heat which has been wastefully discarded conventional, Has become a energy-saving specifications boil water by the latent heat efficiently recovered, Environmentally friendly, Also provides excellent economy in terms of annual running cost.

Surrounding environment

Surrounding environment. Seiyu Akabane store (about 940m ・ A 12-minute walk)
Seiyu Akabane store (about 940m ・ A 12-minute walk)

Surrounding environment. Ito-Yokado Akabane store (about 1120m ・ A 14-minute walk)
Ito-Yokado Akabane store (about 1120m ・ A 14-minute walk)

Surrounding environment. Daiei Akabanekita main street shops (about 320m ・ 4-minute walk)
Daiei Akabanekita main street shops (about 320m ・ 4-minute walk)

Surrounding environment. JR "Akabane" station (about 930m ・ A 12-minute walk)
JR "Akabane" station (about 930m ・ A 12-minute walk)

Surrounding environment. Ward Kamiya elementary school (about 180m ・ A 3-minute walk)
Ward Kamiya elementary school (about 180m ・ A 3-minute walk)

Surrounding environment. Municipal Kamiya junior high school (about 10m ・ 1-minute walk)
Municipal Kamiya junior high school (about 10m ・ 1-minute walk)

Surrounding environment. North Sports Park (about 70m ・ 1-minute walk)
North Sports Park (about 70m ・ 1-minute walk)

Surrounding environment. Kamiya park (about 10m ・ 1-minute walk)
Kamiya park (about 10m ・ 1-minute walk)

Surrounding environment. Akabane Central General Hospital (about 530m ・ 7-minute walk)
Akabane Central General Hospital (about 530m ・ 7-minute walk)

Surrounding environment. Municipal Minami Shimo nursery school (about 360m ・ A 5-minute walk)
Municipal Minami Shimo nursery school (about 360m ・ A 5-minute walk)

Surrounding environment. Genki Plaza (about 400m ・ A 5-minute walk). Heated pool you can enjoy.
Genki Plaza (about 400m ・ A 5-minute walk). Heated pool you can enjoy.

Surrounding environment. Akabane Apire (about 1020m ・ Walk 13 minutes)
Akabane Apire (about 1020m ・ Walk 13 minutes)

Other

Other. Large supermarket Daiei and kindergartens, small ・ Junior high school, Park, etc., Family happy facility is gathered within a 5-minute walk (location concept illustration) ※ It is a conceptual diagram for explaining the location status, Building location ・ height ・ distance ・ Scale, etc. is slightly different actual and. Also, Surrounding environment ・ View might change in the future. Some road ・ We have written an excerpt of the facilities, etc..
Large supermarket Daiei and kindergartens, small ・ Junior high school, Park, etc., Family happy facility is gathered within a 5-minute walk (location concept illustration) ※ It is a conceptual diagram for explaining the location status, Building location ・ height ・ distance ・ Scale, etc. is slightly different actual and. Also, Surrounding environment ・ View might change in the future. Some road ・ We have written an excerpt of the facilities, etc..

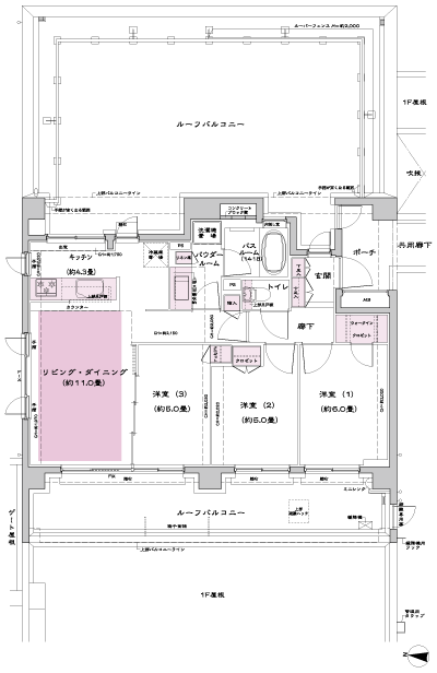
Floor: 3LD ・ K + WIC (walk-in closet), the occupied area: 66.68 sq m, Price: 44,800,000 yen, now on sale

Floor: 3LD ・ K + WIC (walk-in closet), the occupied area: 66.68 sq m, Price: 44,800,000 yen, now on sale
Floor: 3LD ・ K + WIC (walk-in closet), the occupied area: 66.68 sq m, Price: 44,800,000 yen, now on sale

Floor: 3LD ・ K + N (storeroom) + WIC (walk-in closet), the occupied area: 66.68 sq m, Price: 46,500,000 yen, now on sale

Floor: 3LD ・ K + N (storeroom) + WIC (walk-in closet), the occupied area: 66.68 sq m, Price: 46,500,000 yen, now on sale
Floor: 3LD ・ K + N (storeroom) + WIC (walk-in closet), the occupied area: 66.68 sq m, Price: 46,500,000 yen, now on sale

Floor: 3LD ・ K + N (storeroom) + WIC (walk-in closet), the occupied area: 66.68 sq m, Price: 42,100,000 yen, now on sale

Floor: 3LD ・ K + N (storeroom) + WIC (walk-in closet), the occupied area: 66.68 sq m, Price: 42,100,000 yen, now on sale
Floor: 3LD ・ K + N (storeroom) + WIC (walk-in closet), the occupied area: 66.68 sq m, Price: 42,100,000 yen, now on sale

Floor: 3LD ・ K + WIC (walk-in closet), the occupied area: 66.91 sq m, Price: 42,800,000 yen, now on sale

Floor: 3LD ・ K + WIC (walk-in closet), the occupied area: 66.91 sq m, Price: 42,800,000 yen, now on sale
Floor: 3LD ・ K + WIC (walk-in closet), the occupied area: 66.91 sq m, Price: 42,800,000 yen, now on sale


Location