New Apartments » Kanto » Tokyo » Koto


Property name
THE SOUTH CANAL RESIDENCE (The ・ South Canal Residence)
Time residents
Immediate Available (after the completion of various procedures)
Expected price range
29 million yen ~ 40 million yen
Floor plan
3LDK ・ 4LDK
Units sold
Undecided
Occupied area
70.72 sq m ~ 79.4 sq m
Address
Koto-ku, Tokyo Edagawa 3-9-7
Traffic
JR Keiyo Line "tide" walk 10 minutes
Tokyo Metro Yurakucho Line "Toyosu" walk 19 minutes
Tokyo Metro Tozai Line "Kiba" walk 19 minutes
Sale schedule
Sales scheduled to begin in late January 2014 ※ price ・ Units sold is undecided. ※ For sale residential units of the final stage is undetermined, Property data are inscribed thing of all sales target dwelling unit in the final period or later (9 units). ※ Determination information will be explicit in the new sale advertising. ※ Acts that lead to secure the contract or reservation of the application and the application order to sale can not be absolutely.
Completion date
September 2013
Number of units
Undecided
Administrative expense
An unspecified amount
Management reserve
An unspecified amount
Repair reserve
An unspecified amount
Repair reserve fund
An unspecified amount
Other expenses
Internet flat rate: 1260 yen / Month, CATV flat rate: 105 yen / Month
Other area
Balcony area: 8.55 sq m ~ 16.35 sq m
Price
37,600,000 yen ~ 43,100,000 yen
Property type
Mansion
Total units
98 units
Structure-storey
RC13 story
Construction area
1046.43 sq m
Building floor area
7980.77 sq m
Site area
2238.63 sq m
Site of the right form
Share of ownership
Use district
Semi-industrial area
Parking lot
23 cars on-site (fee 18,000 yen ~ 23,000 yen / Month, Of which one for wheelchair, One for mini-cars)
Bicycle-parking space
196 cars (100 yen fee ・ 200 yen / Month)
Bike shelter
6 cars (1,500 yen fee / Month)
Mini bike shelter
4 cars (fee 1000 yen / Month)
Management form
Consignment (commuting)
Other overview
Building confirmation number: No. UHEC Ken確 23,480 (2011 December 26 date)
About us
<Employer ・ Seller> Minister of Land, Infrastructure and Transport (2) No. 6908 (one company) Real Estate Association (Corporation) metropolitan area real estate Fair Trade Council member Nippon Steel Kowa Real Estate Co., Ltd. Yubinbango107-8691 Tokyo Minami-Aoyama, Minato-ku, 1-15-5 <marketing alliance (agency)> Minister of Land, Infrastructure and Transport (9) No. 3175 (one company) Real Estate Association (One company) Property distribution management Association (Corporation) metropolitan area real estate Fair Trade Council member, Inc. HaseTakumiabesuto Yubinbango105-8545 Shiba, Minato-ku, Tokyo 2-32-1
Construction
HASEKO Corporation
Management
Co., Ltd. Nippon Steel Community


Surrounding environment

Surrounding environment. Living environment is evaluated to achieve both inner city convenience and moisture, Good location for local hope the canal to the "south", even in the Canal area, which a number of apartments built. (Helicopter shot ※ In fact a somewhat different in those subjected to some CG work on aerial photographs of the April 2012 shooting)
Living environment is evaluated to achieve both inner city convenience and moisture, Good location for local hope the canal to the "south", even in the Canal area, which a number of apartments built. (Helicopter shot ※ In fact a somewhat different in those subjected to some CG work on aerial photographs of the April 2012 shooting)

Buildings and facilities

Buildings and facilities. Wrapped in sunlight, To the day-to-day to be filled in the sense of openness. Planning in all houses the sunny south-east or south-west facing. Personality shines 2LDK ~ 4LDK plan, 75m2 units ・ 3LDK center. Wrapping a history of family, A house is created leeway.
Wrapped in sunlight, To the day-to-day to be filled in the sense of openness. Planning in all houses the sunny south-east or south-west facing. Personality shines 2LDK ~ 4LDK plan, 75m2 units ・ 3LDK center. Wrapping a history of family, A house is created leeway.

Surrounding environment

Surrounding environment. "Tokyo Station" about 4.5 km zone. by car, on the train, by bicycle, Position that you can use the city center freely. Also brand Street Marunouchi, Familiar of the shopping street is also the garden sense of Ginza. Is LaLaport Toyosu and Shenzhen Gyazaria can also use everyday position, Without worrying about the time, It enables the living to freely dress the city. (Distance bloc view)
"Tokyo Station" about 4.5 km zone. by car, on the train, by bicycle, Position that you can use the city center freely. Also brand Street Marunouchi, Familiar of the shopping street is also the garden sense of Ginza. Is LaLaport Toyosu and Shenzhen Gyazaria can also use everyday position, Without worrying about the time, It enables the living to freely dress the city. (Distance bloc view)

Surrounding environment. "Tide," "Toyosu" 3 Station 3 lines available, "Kiba". Multi-access to literate urban freely. Direct to Tokyo Station 3 Station 7 minutes, To Otemachi Station 9 minutes, To Ginza Station 12 minutes. Commuting also achieved a comfortable move holiday outing in smooth. (Access view)
"Tide," "Toyosu" 3 Station 3 lines available, "Kiba". Multi-access to literate urban freely. Direct to Tokyo Station 3 Station 7 minutes, To Otemachi Station 9 minutes, To Ginza Station 12 minutes. Commuting also achieved a comfortable move holiday outing in smooth. (Access view)

Room and equipment

Room and equipment. Natural texture of flooring, Surface material of touch also friendly door of woodgrain, Shine personality of the person live, Simple excellent texture in the wall cross. Filled with sunlight from the south, Life is wrapped in natural comfort. While feeling the downtown familiar, The house of peace that truly relaxing, here.
Natural texture of flooring, Surface material of touch also friendly door of woodgrain, Shine personality of the person live, Simple excellent texture in the wall cross. Filled with sunlight from the south, Life is wrapped in natural comfort. While feeling the downtown familiar, The house of peace that truly relaxing, here.

Room and equipment. The kitchen is a LD and a sense of unity open counter type. Large-scale storage and out frame ..., 75 sq m 3LDK Please experience in Moderumu a plan that is felt more widely. (Indoor photo two points which was taken 75G type (model room plan), Grade up ・ Grade on menus, etc., Paid option also included We)
The kitchen is a LD and a sense of unity open counter type. Large-scale storage and out frame ..., 75 sq m 3LDK Please experience in Moderumu a plan that is felt more widely. (Indoor photo two points which was taken 75G type (model room plan), Grade up ・ Grade on menus, etc., Paid option also included We)

Kitchen

Kitchen.  [Si glass with sensor top stove] Peace of mind with all mouth Si sensor. Oil dirt is also a glass top specification of wipe quick and people.
[Si glass with sensor top stove] Peace of mind with all mouth Si sensor. Oil dirt is also a glass top specification of wipe quick and people.

Kitchen.  [Quiet sink] Adopt a wide sink of noise design to reduce the I sound corresponding to sink surface water.
[Quiet sink] Adopt a wide sink of noise design to reduce the I sound corresponding to sink surface water.

Kitchen.  [Water purifier integrated shower faucet] Water purification cartridge built into the head portion. Sink of cleaning is also a comfortable shower faucet.
[Water purifier integrated shower faucet] Water purification cartridge built into the head portion. Sink of cleaning is also a comfortable shower faucet.

Kitchen.  [Kitchen Panel] Jump dirt, such as a splash, such as oil also wipe quick and people. It is a specification with excellent cleaning properties.
[Kitchen Panel] Jump dirt, such as a splash, such as oil also wipe quick and people. It is a specification with excellent cleaning properties.

Kitchen.  [Artificial marble top plate] In addition to the calm atmosphere and the smooth texture, Adopt a superior artificial marble top plate in durability.
[Artificial marble top plate] In addition to the calm atmosphere and the smooth texture, Adopt a superior artificial marble top plate in durability.

Kitchen.  [All slide storage] Adopt a simple and functional all-slide storage and out also those that closed in the back.
[All slide storage] Adopt a simple and functional all-slide storage and out also those that closed in the back.

Bathing-wash room

Bathing-wash room.  [Full Otobasu] Heat insulation from hot water-covered, One touch to add fired. You can set the amount of hot water and the temperature to your liking.
[Full Otobasu] Heat insulation from hot water-covered, One touch to add fired. You can set the amount of hot water and the temperature to your liking.

Bathing-wash room.  [Bathroom ventilation dryer] In addition to the drying function to dry the laundry, Winter Heating, Also features a summer of cool breeze function.
[Bathroom ventilation dryer] In addition to the drying function to dry the laundry, Winter Heating, Also features a summer of cool breeze function.

Bathing-wash room.  [Pica Slim counter to take] Easily removed by cleaning is very easy to perform because it washable.
[Pica Slim counter to take] Easily removed by cleaning is very easy to perform because it washable.

Bathing-wash room.  [Mosaic pattern floor] By the surface shape of the mosaic pattern, Quickly dry, Dirt rest also decreases.
[Mosaic pattern floor] By the surface shape of the mosaic pattern, Quickly dry, Dirt rest also decreases.

Bathing-wash room.  [Low-floor type unit bus] Set to about 45cm a straddle height of the tub. It was also considered for those children and your elderly.
[Low-floor type unit bus] Set to about 45cm a straddle height of the tub. It was also considered for those children and your elderly.

Bathing-wash room.  [Internal storage with triple mirror] The mirror behind the three-sided mirror, Has established a convenient space for storage, such as cosmetics such.
[Internal storage with triple mirror] The mirror behind the three-sided mirror, Has established a convenient space for storage, such as cosmetics such.

Bathing-wash room.  [Bowl-integrated artificial marble top plate] Seam adopted the artificial marble top plate of the functional, clean impression without.
[Bowl-integrated artificial marble top plate] Seam adopted the artificial marble top plate of the functional, clean impression without.

Bathing-wash room.  [Single lever mixing faucet] Excellent design, Adoption of a single-lever mixing faucet that can be adjusted hot water temperature at the touch of a button.
[Single lever mixing faucet] Excellent design, Adoption of a single-lever mixing faucet that can be adjusted hot water temperature at the touch of a button.

Bathing-wash room.  [Handrail foundation reinforcement (toilet)] The toilet, It has been made the foundation reinforcement to be able to pre-install the handrail. For the less likely an accident and support operation, Is a specification-friendly people who live.
[Handrail foundation reinforcement (toilet)] The toilet, It has been made the foundation reinforcement to be able to pre-install the handrail. For the less likely an accident and support operation, Is a specification-friendly people who live.

Interior

Interior.  [living ・ dining] Natural texture of flooring, Surface material of touch also friendly door of woodgrain, Shine personality of the person live, Simple excellent texture in the wall cross. Filled with sunlight from the south, Life is wrapped in natural comfort. While feeling the downtown familiar, The house of peace that truly relaxing, here.
[living ・ dining] Natural texture of flooring, Surface material of touch also friendly door of woodgrain, Shine personality of the person live, Simple excellent texture in the wall cross. Filled with sunlight from the south, Life is wrapped in natural comfort. While feeling the downtown familiar, The house of peace that truly relaxing, here.

Interior. living ・ dining
living ・ dining

Interior. Master bedroom
Master bedroom

Other

Other.  [Eco Jaws] Exhaust heat ・ By latent heat recovery system, To the hot water supply thermal efficiency of about 95%, Further emissions of CO2 also be reduced to about 15%, It also contributes to the prevention of global warming.
[Eco Jaws] Exhaust heat ・ By latent heat recovery system, To the hot water supply thermal efficiency of about 95%, Further emissions of CO2 also be reduced to about 15%, It also contributes to the prevention of global warming.

Other.  [Gas hot water floor heating] Achieve the ideal heating of Zukansokunetsu. Also it reduces house dust without winding up the dust. Also, Warm and evenly evenly the whole room in two of the heat of the "radiant heat," "conductive heat".  ※ In which all interior photos of the web is taken the 75G type (model room plan), Grade up ・ Grade on menus, etc., It also included paid option.
[Gas hot water floor heating] Achieve the ideal heating of Zukansokunetsu. Also it reduces house dust without winding up the dust. Also, Warm and evenly evenly the whole room in two of the heat of the "radiant heat," "conductive heat". ※ In which all interior photos of the web is taken the 75G type (model room plan), Grade up ・ Grade on menus, etc., It also included paid option.

Shared facilities

Shared facilities.  [Worthy of the front door of the house, Dignity is Kaoru entrance approach] All houses southeast of the residential building ・ Placed comfortably in the southwest-facing. Facing the street, Along with the provision of the sidewalk-like open space of a width of about 2m, Subjected to extensive planting, including the symbol tree of evergreen oak around Entrance, It drew dignity certain approach that moisture is welcome. (Entrance Rendering)
[Worthy of the front door of the house, Dignity is Kaoru entrance approach] All houses southeast of the residential building ・ Placed comfortably in the southwest-facing. Facing the street, Along with the provision of the sidewalk-like open space of a width of about 2m, Subjected to extensive planting, including the symbol tree of evergreen oak around Entrance, It drew dignity certain approach that moisture is welcome. (Entrance Rendering)

Shared facilities.  [Flowers and trees are watered with views of the "four seasons of the garden.", Garden lounge relax comfortably] At the tip of the entrance hall, Place the "garden lounge" that Oriage ceiling of indirect lighting is reminiscent of the lobby of the prestigious hotel. Its window destination, Arranged a sense of the season rich trees such as maple and dogwood "Four Seasons Garden" is moisture, It will produce comfortably the time of the chat. (Garden lounge Rendering)
[Flowers and trees are watered with views of the "four seasons of the garden.", Garden lounge relax comfortably] At the tip of the entrance hall, Place the "garden lounge" that Oriage ceiling of indirect lighting is reminiscent of the lobby of the prestigious hotel. Its window destination, Arranged a sense of the season rich trees such as maple and dogwood "Four Seasons Garden" is moisture, It will produce comfortably the time of the chat. (Garden lounge Rendering)

Common utility

Common utility.  [High-pressure bulk receiving services] And general home for low-pressure power, A comparison of the high-voltage power for large customers, Large customers for high-voltage power is set low fee. Technique to reduce electricity charges by using this price difference is the "high-pressure bulk powered". (Conceptual diagram)
[High-pressure bulk receiving services] And general home for low-pressure power, A comparison of the high-voltage power for large customers, Large customers for high-voltage power is set low fee. Technique to reduce electricity charges by using this price difference is the "high-pressure bulk powered". (Conceptual diagram)

Variety of services

Variety of services.  [To support the condominium life "service desk 24"] "Middle of the night, From consultation, such as suddenly stomach was hurt. ", To demand, such as "I want to rent a houseplant because important customers come", Concierge is available 24 hours a day. (Conceptual diagram)
[To support the condominium life "service desk 24"] "Middle of the night, From consultation, such as suddenly stomach was hurt. ", To demand, such as "I want to rent a houseplant because important customers come", Concierge is available 24 hours a day. (Conceptual diagram)

Security

Security.  [ALSOK24-hour security system] In cooperation with the ALSOK, The safety of the dwelling unit has introduced a machine monitoring system to watch 24 hours a day. Fire detector in the dwelling unit, Abnormal signals from the various sensors of the emergency button and shared part, Automatically reported to ALSOK through a "monitoring center" of the management company. Make the quick response, if necessary.
[ALSOK24-hour security system] In cooperation with the ALSOK, The safety of the dwelling unit has introduced a machine monitoring system to watch 24 hours a day. Fire detector in the dwelling unit, Abnormal signals from the various sensors of the emergency button and shared part, Automatically reported to ALSOK through a "monitoring center" of the management company. Make the quick response, if necessary.

Security.  [Auto-lock system] Make sure the video a visitor in the color TV monitor in the dwelling unit, To unlock the entrance of the auto-lock door, Adopt an auto-lock system of the peace of mind. If residents, Just holding the non-contact key to the entrance of the operation panel, You can smoothly enter into the apartment.
[Auto-lock system] Make sure the video a visitor in the color TV monitor in the dwelling unit, To unlock the entrance of the auto-lock door, Adopt an auto-lock system of the peace of mind. If residents, Just holding the non-contact key to the entrance of the operation panel, You can smoothly enter into the apartment.

Security.  [Security cameras and windows with Elevator] Installing a security camera at the beginning common areas throughout the inside of the elevator. Also, From the outside it has been adopted with elevator security window with views of the elevator inside.  ※ Equipment lease (amenities are all the same specification)
[Security cameras and windows with Elevator] Installing a security camera at the beginning common areas throughout the inside of the elevator. Also, From the outside it has been adopted with elevator security window with views of the elevator inside. ※ Equipment lease (amenities are all the same specification)

Security.  [Color TV monitor with a hands-free intercom] You can check the visitor in the video and audio, Adopt a color TV monitor with a hands-free intercom of peace of mind. Conversation without a handset, It is useful because it can be unlocked.
[Color TV monitor with a hands-free intercom] You can check the visitor in the video and audio, Adopt a color TV monitor with a hands-free intercom of peace of mind. Conversation without a handset, It is useful because it can be unlocked.

Security.  [Non-touch key] Only close to the entrance of the auto-lock operation panel, The auto-lock door can be unlocked. There is no trouble inserting the key into the keyhole, It can be operated comfortably.
[Non-touch key] Only close to the entrance of the auto-lock operation panel, The auto-lock door can be unlocked. There is no trouble inserting the key into the keyhole, It can be operated comfortably.

Security.  [Security Window Sensor ( ※ First floor dwelling unit)] It sounded the alarm and is opened illegally window at the time of crime prevention set, And at the same time inform the abnormality around, Building manager office ・ Place a very alert to the security company.
[Security Window Sensor ( ※ First floor dwelling unit)] It sounded the alarm and is opened illegally window at the time of crime prevention set, And at the same time inform the abnormality around, Building manager office ・ Place a very alert to the security company.

Earthquake ・ Disaster-prevention measures

earthquake ・ Disaster-prevention measures.  [Emergency manhole toilet] At the time of disaster, Save the prefabricated toilet of relief to disaster prevention stockpile warehouse when you can not use the toilet in the water outage. You can use installed in some manhole on site.
[Emergency manhole toilet] At the time of disaster, Save the prefabricated toilet of relief to disaster prevention stockpile warehouse when you can not use the toilet in the water outage. You can use installed in some manhole on site.

earthquake ・ Disaster-prevention measures.  [Emergency-house generator] As equipment to back up the very outlet power to perform the fire-fighting of the fire brigade, We have established the in-house power generation equipment on site.
[Emergency-house generator] As equipment to back up the very outlet power to perform the fire-fighting of the fire brigade, We have established the in-house power generation equipment on site.

earthquake ・ Disaster-prevention measures.  [Elevator emergency with automatic landing equipment] Such as when an earthquake occurs, Automatically to implantation to the nearest floor in an emergency, Door opens. To ensure the elevator at the time of use safety.
[Elevator emergency with automatic landing equipment] Such as when an earthquake occurs, Automatically to implantation to the nearest floor in an emergency, Door opens. To ensure the elevator at the time of use safety.

earthquake ・ Disaster-prevention measures.  [Entrance door with TaiShinwaku ・ TaiShinhinoto number] In order to prevent the trouble no longer opened the front door at the time of earthquake, It has adopted the entrance door with a TaiShinwaku and TaiShinhinoto number.  ※ It has been drawn in an exaggerated deformation and the gap.
[Entrance door with TaiShinwaku ・ TaiShinhinoto number] In order to prevent the trouble no longer opened the front door at the time of earthquake, It has adopted the entrance door with a TaiShinwaku and TaiShinhinoto number. ※ It has been drawn in an exaggerated deformation and the gap.

Building structure

Building structure.  [Tokyo apartment environmental performance display]  ※ For more information see "Housing term large Dictionary"
[Tokyo apartment environmental performance display] ※ For more information see "Housing term large Dictionary"

Building structure.  [Energy-saving insulation system "ECO-NIS II"] Highest standards in compliance with the next-generation energy-saving standards high insulation specification of the "energy-saving grade 4," "ECO-NIS Ekonisu II". The company thermal insulation properties of the conventional housing with one step advanced specifications, To achieve excellent high comfort in heating and cooling efficiency.  ※ Haseko is the type approval method of the highest grade (grade 4) in energy-saving measures of the acquired housing performance display system as collective housing.  ※ Insulation sites are dwelling unit ・ It depends on the orientation. (Conceptual diagram)
[Energy-saving insulation system "ECO-NIS II"] Highest standards in compliance with the next-generation energy-saving standards high insulation specification of the "energy-saving grade 4," "ECO-NIS Ekonisu II". The company thermal insulation properties of the conventional housing with one step advanced specifications, To achieve excellent high comfort in heating and cooling efficiency. ※ Haseko is the type approval method of the highest grade (grade 4) in energy-saving measures of the acquired housing performance display system as collective housing. ※ Insulation sites are dwelling unit ・ It depends on the orientation. (Conceptual diagram)

Building structure.  [拡底 earth drill method] And spread the bottom of the "拡底 pile" about underground 68 ~ Adopted 拡底 earth drill method with enhanced support force by implanting a total of 29 present in 69m. (Conceptual diagram)
[拡底 earth drill method] And spread the bottom of the "拡底 pile" about underground 68 ~ Adopted 拡底 earth drill method with enhanced support force by implanting a total of 29 present in 69m. (Conceptual diagram)

Other

Other.  [Electricity usage visible "smart meters"] Introduce a "smart meter (next-generation power meter)" that the electricity consumption and electricity charges can be grasped in real time. Connect the appliances to be able to also control the power used, It enables more efficient power use at each home. (Conceptual diagram)
[Electricity usage visible "smart meters"] Introduce a "smart meter (next-generation power meter)" that the electricity consumption and electricity charges can be grasped in real time. Connect the appliances to be able to also control the power used, It enables more efficient power use at each home. (Conceptual diagram)

Other.  [Home 1Gbps Internet environment] Introducing the UCOM light. Up to the home 1Gbps ※ It was using a dedicated LAN cable (best-effort), high speed ・ It is a large-capacity Internet service.  ※ You will not be able to deliver speeds of up to 1Gbps (1000Mbps) is depending on the computer you are using. still, This service is a service of the best-effort. Speed ​​is the maximum value on the technical standard, Intended to represent the actual use speed there is no. Your environment, You may want to decrease significantly due to the situation of the line. (Conceptual diagram)
[Home 1Gbps Internet environment] Introducing the UCOM light. Up to the home 1Gbps ※ It was using a dedicated LAN cable (best-effort), high speed ・ It is a large-capacity Internet service. ※ You will not be able to deliver speeds of up to 1Gbps (1000Mbps) is depending on the computer you are using. still, This service is a service of the best-effort. Speed ​​is the maximum value on the technical standard, Intended to represent the actual use speed there is no. Your environment, You may want to decrease significantly due to the situation of the line. (Conceptual diagram)

Surrounding environment

Surrounding environment. Shenzhen Gyazaria (about 1050m, Bike about 6 minutes, A 14-minute walk)
Shenzhen Gyazaria (about 1050m, Bike about 6 minutes, A 14-minute walk)

Surrounding environment. Ion Shinonome (about 1610m, 21 minutes walk)
Ion Shinonome (about 1610m, 21 minutes walk)

Surrounding environment. Diversity Tokyo Plaza (about 6.2km)
Diversity Tokyo Plaza (about 6.2km)

Surrounding environment. Maruetsu Shiomi Station shop (about 820m, Bicycle about 5 minutes, 11-minute walk)
Maruetsu Shiomi Station shop (about 820m, Bicycle about 5 minutes, 11-minute walk)

Surrounding environment. Akafudado Shiohama store (about 1130m, A 15-minute walk)
Akafudado Shiohama store (about 1130m, A 15-minute walk)

Surrounding environment. Super Viva Home Toyosu store (about 1190m, A 15-minute walk)
Super Viva Home Toyosu store (about 1190m, A 15-minute walk)

Surrounding environment. Tide Sports Park (about 230m, A 3-minute walk)
Tide Sports Park (about 230m, A 3-minute walk)

Surrounding environment. Tokyo Metropolitan Tatsumi Forest Seaside Park (about 680m, A 9-minute walk)
Tokyo Metropolitan Tatsumi Forest Seaside Park (about 680m, A 9-minute walk)

Surrounding environment. Yumenoshima Tropical Greenhouse Dome (about 2530m, Bicycle about 13 minutes)
Yumenoshima Tropical Greenhouse Dome (about 2530m, Bicycle about 13 minutes)

Surrounding environment. Irene Shalom nursery school (about 120m, A 2-minute walk)
Irene Shalom nursery school (about 120m, A 2-minute walk)

Surrounding environment. Edagawa kindergarten (about 260m, 4-minute walk)
Edagawa kindergarten (about 260m, 4-minute walk)

Surrounding environment. Edagawa elementary school (about 210m, A 3-minute walk)
Edagawa elementary school (about 210m, A 3-minute walk)

Floor: 3LDK + WIC, the occupied area: 76.26 sq m, Price: TBD

Floor: 3LDK + WIC, the occupied area: 76.26 sq m, Price: TBD
Floor: 3LDK + WIC, the occupied area: 76.26 sq m, Price: TBD

Floor: 3LDK + WIC, the occupied area: 70.72 sq m, Price: TBD

Floor: 3LDK + WIC, the occupied area: 70.72 sq m, Price: TBD
Floor: 3LDK + WIC, the occupied area: 70.72 sq m, Price: TBD

Floor: 4LDK, the area occupied: 79.4 sq m, Price: TBD

Floor: 4LDK, the area occupied: 79.4 sq m, Price: TBD

Floor: 4LDK, the area occupied: 79.4 sq m, Price: 41,700,000 yen, now on sale

Floor: 4LDK, the area occupied: 79.4 sq m, Price: 41,700,000 yen, now on sale

Floor: 3LDK + 2WIC, occupied area: 75.34 sq m, Price: TBD

Floor: 3LDK + 2WIC, occupied area: 75.34 sq m, Price: TBD
Floor: 3LDK + 2WIC, occupied area: 75.34 sq m, Price: TBD

Floor: 3LDK + 2WIC, occupied area: 75.26 sq m, Price: TBD

Floor: 3LDK + 2WIC, occupied area: 75.26 sq m, Price: TBD
Floor: 3LDK + 2WIC, occupied area: 75.26 sq m, Price: TBD

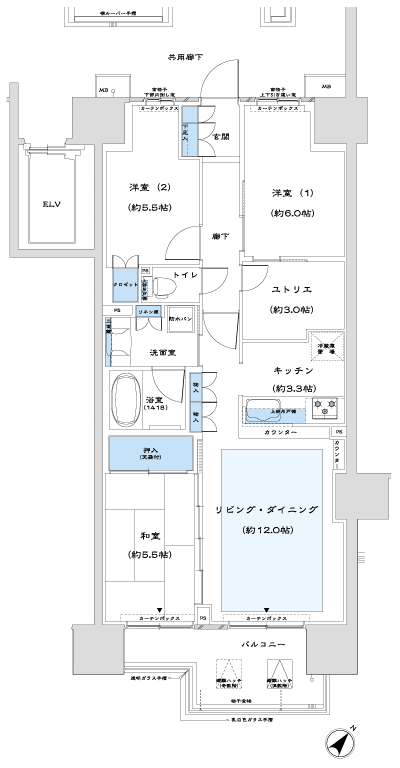
Floor: 3LDK + Yutorie, occupied area: 75 sq m, Price: TBD

Floor: 3LDK + Yutorie, occupied area: 75 sq m, Price: TBD
Floor: 3LDK + Yutorie, occupied area: 75 sq m, Price: TBD
Floor: 3LDK + Yutorie, occupied area: 75 sq m, Price: TBD
Floor: 3LDK + Yutorie, occupied area: 75 sq m, Price: TBD


Location