New Apartments » Kanto » Tokyo » Machida


Property name
Abidasu cho Tanaka-cho
Time residents
February 2014 late schedule
Price
38,900,000 yen ~ 45,900,000 yen
Floor plan
3LDK
Units sold
3 units
Occupied area
70 sq m ・ 70.66 sq m
Address
Machida, Tokyo Nakamachi 1-462-3
Traffic
Odakyu line "Machida" walk 8 minutes
JR Yokohama Line "Machida" walk 12 minutes
Sale schedule
First-come-first-served basis Application accepted during office hours / Weekdays noon ~ 8:00PM, soil ・ Day ・ Public holidays 10:00 AM ~ 6:00 PM reception location / Mansion Gallery ※ Identity verification documents (health insurance card at the time of application, Driver's license or passport) and personal seal, 2011, You must have income certificate of 24 years.
Completion date
January 2014 late schedule
Number of units
3 units
Administrative expense
13,500 yen ・ 13,600 yen / Month
Management reserve
16,200 yen ・ 16,320 yen (lump sum)
Repair reserve
5460 yen / Month
Repair reserve fund
436,800 yen (lump sum)
Other expenses
Town fee: 150 yen / Month, Internet flat rate: 1323 yen / Month, TV Facilities fee: 578 yen / Month
Other area
Balcony area: 12.6 sq m , Roof balcony: 49.06 sq m (use fee 1500 yen / Month), Porch: 8.21 sq m
Property type
Mansion
Total units
56 units (East / 30 units, Waist / 26 units)
Structure-storey
RC14 floors 1 underground floors (East), RC14 story (West)
Construction area
353.3 sq m (East), 249.45 sq m (West)
Building floor area
2673.27 sq m (East), 2362.15 sq m (West)
Site area
1126.1 sq m , (East / 558.72 sq m , Waist / 567.38 sq m )
Site of the right form
Share of ownership
Use district
Neighborhood commercial district
Parking lot
18 cars on-site (fee 14,000 yen ~ 21,000 yen / Month, East / 10 units (mechanical eight, Flat one place, One Place for disabled guests flat), Waist / Eight (flat seven, Place for disabled guests flat one))
Bicycle-parking space
92 cars (fee 150 yen ・ 300 yen / Month) (East / 54 cars, Waist / 38 units)
Bike shelter
6 cars (fee 3,000 yen / Month) (East)
Mini bike shelter
6 cars (fee 1000 yen / Month) (East)
Management form
Consignment (commuting)
Other overview
Building confirmation number: No. BVJ-L12-10-0152 (2012 October 2 date) Other
About us
<Seller> Minister of Land, Infrastructure and Transport (12) No. 1083 Minister of Land, Infrastructure and Transport (JP -21) Aoki No. 2843 Asunaro Construction Co., Ltd. Yubinbango105-0014 Shiba, Minato-ku, Tokyo 4-8-2
Construction
Aoki Asunaro Construction Co., Ltd.
Management
(Corporation) Japan Kensho


Buildings and facilities

Buildings and facilities. Exterior - Rendering ※ Each rendering of the web is one that caused draw based on the drawings, In fact and it may be slightly different. Also like the surrounding buildings are omitted.
Exterior - Rendering ※ Each rendering of the web is one that caused draw based on the drawings, In fact and it may be slightly different. Also like the surrounding buildings are omitted.

Surrounding environment

Surrounding environment. <Abidasu cho-cho Tanaka> empty around shooting (October 2012 shooting) ※ It has been made a part of CG processing. In fact a slightly different.
<Abidasu cho-cho Tanaka> empty around shooting (October 2012 shooting) ※ It has been made a part of CG processing. In fact a slightly different.

Surrounding environment. Traffic guide map
Traffic guide map

Buildings and facilities

Buildings and facilities. Entrance Rendering
Entrance Rendering

Buildings and facilities. East / Entrance Hall Rendering
East / Entrance Hall Rendering

Buildings and facilities. Waist / Entrance Hall Rendering
Waist / Entrance Hall Rendering

Living

Living.  [living ・ dining]  ※ Following publication photograph of the model room G type
[living ・ dining] ※ Following publication photograph of the model room G type

Living. living ・ dining
living ・ dining

Kitchen

Kitchen. Kitchen
Kitchen

Kitchen.  [Slide-type dishwasher] We prepared the dishwasher. Efficiently, Also has excellent water-saving effect on top I'll wash a lot of dishes. Also, Because of the sliding, It is possible and out of in a comfortable position.
[Slide-type dishwasher] We prepared the dishwasher. Efficiently, Also has excellent water-saving effect on top I'll wash a lot of dishes. Also, Because of the sliding, It is possible and out of in a comfortable position.

Kitchen.  [Door pocket storage] Door pocket storage utilizing the thickness of the door. Handy for storage, such as a kitchen knife.
[Door pocket storage] Door pocket storage utilizing the thickness of the door. Handy for storage, such as a kitchen knife.

Balcony ・ terrace ・ Private garden

balcony ・ terrace ・ Private garden. Balcony
Balcony

Interior

Interior. Bedroom
Bedroom

Interior. Children's room
Children's room

Interior. Japanese style room
Japanese style room

Other

Other.  [Gas hot water floor heating] Living of all households ・ The dining, Not too warm less CO2 emissions, A gas hot-water floor heating to natural no unevenness of the temperature of "warmth" is spread was standard equipment. (Same specifications)
[Gas hot water floor heating] Living of all households ・ The dining, Not too warm less CO2 emissions, A gas hot-water floor heating to natural no unevenness of the temperature of "warmth" is spread was standard equipment. (Same specifications)

Other.  [Crime prevention thumb turn] Prevent the "thumb once" due to non-answer Tablets. To prevent unlawful intrusion.
[Crime prevention thumb turn] Prevent the "thumb once" due to non-answer Tablets. To prevent unlawful intrusion.

Other.  [Sickle-type dead bolt lock ・ Double lock lock] Since the bar double lock specification of strong sickle-type dead bolt lock to pry in such, It is effective in crime prevention measures.
[Sickle-type dead bolt lock ・ Double lock lock] Since the bar double lock specification of strong sickle-type dead bolt lock to pry in such, It is effective in crime prevention measures.

Security

Security.  [Installed security cameras in common areas] Place for storing bicycles, Security cameras installed in the common areas, such as parking, We recorded all the time. (Same specifications)
[Installed security cameras in common areas] Place for storing bicycles, Security cameras installed in the common areas, such as parking, We recorded all the time. (Same specifications)

Security.  [surveillance camera] Kazejo room, Installing a security camera in the elevator. Elevator is equipped with security window (except for the first floor). (Same specifications)
[surveillance camera] Kazejo room, Installing a security camera in the elevator. Elevator is equipped with security window (except for the first floor). (Same specifications)

Security.  [Non-contact key (IC key) corresponding auto-lock system ・ Camera with shared interphone] Unlock the auto-lock by holding the IC key in a non-contact key corresponding to the IC receiver. It captures the visitor intercom of the camera, You can unlock after confirming the image from within the dwelling unit. (Same specifications)
[Non-contact key (IC key) corresponding auto-lock system ・ Camera with shared interphone] Unlock the auto-lock by holding the IC key in a non-contact key corresponding to the IC receiver. It captures the visitor intercom of the camera, You can unlock after confirming the image from within the dwelling unit. (Same specifications)

Building structure

Building structure.  [Firmly support concrete pile building] Pouring a pile until the underground about 17m there is a rigid support layer. Total of 18 (East: ten, West: pile of eight) is, We support the huge weight of the building. (Conceptual diagram)
[Firmly support concrete pile building] Pouring a pile until the underground about 17m there is a rigid support layer. Total of 18 (East: ten, West: pile of eight) is, We support the huge weight of the building. (Conceptual diagram)

Building structure.  [Double reinforcement with enhanced structural strength] To the main structure portion, Adopt a double reinforcement which arranged the rebar to double in the concrete. It enhances the durability and structural strength. (Conceptual diagram)
[Double reinforcement with enhanced structural strength] To the main structure portion, Adopt a double reinforcement which arranged the rebar to double in the concrete. It enhances the durability and structural strength. (Conceptual diagram)

Building structure.  [Use concrete having a durability] Pillar ・ wall ・ Liang ・ On the floor slab, 27N to withstand the compression of about 2,700t per 1 sq m / Strength of m sq m (maximum 45N / Use concrete having a m sq m) and durability. It increases the service life of the building.  ※ Concrete strength (durable design criteria strength was defined as the standard value in the JASS5 of the Architectural Institute of Japan 24N / We are using the m sq m or more of concrete.   ※ Building construction standard specification ・ Same commentary reinforced concrete construction  ※ Outdoor facility, Mechanical parking pit is excluded. )
[Use concrete having a durability] Pillar ・ wall ・ Liang ・ On the floor slab, 27N to withstand the compression of about 2,700t per 1 sq m / Strength of m sq m (maximum 45N / Use concrete having a m sq m) and durability. It increases the service life of the building. ※ Concrete strength (durable design criteria strength was defined as the standard value in the JASS5 of the Architectural Institute of Japan 24N / We are using the m sq m or more of concrete. ※ Building construction standard specification ・ Same commentary reinforced concrete construction ※ Outdoor facility, Mechanical parking pit is excluded. )

Building structure.  [Double floor in consideration of the sound insulation performance ・ Double ceiling] Adjacent dwelling unit is a collection housing, Especially is like life noise and AV equipment of sound from the upper floor is a problem. there, The slab thickness of the concrete building frame and about 200mm (except the bottom floor and roof slabs), It has undergone a careful sound insulation measures by the double floor to adopt the product with the appropriate sound insulation performance mainly. (Conceptual diagram)
[Double floor in consideration of the sound insulation performance ・ Double ceiling] Adjacent dwelling unit is a collection housing, Especially is like life noise and AV equipment of sound from the upper floor is a problem. there, The slab thickness of the concrete building frame and about 200mm (except the bottom floor and roof slabs), It has undergone a careful sound insulation measures by the double floor to adopt the product with the appropriate sound insulation performance mainly. (Conceptual diagram)

Building structure.  [Tosakaikabe will ensure the thickness 200mm] Tosakaikabe is to secure the concrete thickness of 200mm in consideration of the sound insulation. (Conceptual diagram)
[Tosakaikabe will ensure the thickness 200mm] Tosakaikabe is to secure the concrete thickness of 200mm in consideration of the sound insulation. (Conceptual diagram)

Building structure.  [Sound insulation measures of the pipe space] In the drainage pipe that penetrates the inside of the dwelling unit in a vertical, You may be running water sound is. there, If the pipe space and water around is adjacent to the living room is, Paste the plasterboard around the pipe space, The drainage pipe wrapped around a sound insulation sheet we have extended sound insulation. (Conceptual diagram)
[Sound insulation measures of the pipe space] In the drainage pipe that penetrates the inside of the dwelling unit in a vertical, You may be running water sound is. there, If the pipe space and water around is adjacent to the living room is, Paste the plasterboard around the pipe space, The drainage pipe wrapped around a sound insulation sheet we have extended sound insulation. (Conceptual diagram)

Building structure.  [Sound insulation grade of the sash is kept more than the T-2 grade] To reduce the sound to enter the room, We consider the sound insulation. A 500Hz sound of has adopted the T-2 grade or more of the sash that has the ability to reduce the order of 30dB.  ※ In performance value in the glass alone sound insulation grade (including what is expected to be equal), Not the performance value in the state in combination with the sash. Also, We do not guarantee the actually the installed window performance of. (Conceptual diagram)
[Sound insulation grade of the sash is kept more than the T-2 grade] To reduce the sound to enter the room, We consider the sound insulation. A 500Hz sound of has adopted the T-2 grade or more of the sash that has the ability to reduce the order of 30dB. ※ In performance value in the glass alone sound insulation grade (including what is expected to be equal), Not the performance value in the state in combination with the sash. Also, We do not guarantee the actually the installed window performance of. (Conceptual diagram)

Building structure.  [Get the deterioration countermeasure grade 3 (highest grade)] Head thickness of concrete covering the rebar properly secured, By further reduce the water-cement ratio, It has extended the durability of concrete. In order to prevent the deterioration of the reinforcing steel for a long period of time, Degradation measures grade 3 was acquired (the highest grade). (Conceptual diagram)
[Get the deterioration countermeasure grade 3 (highest grade)] Head thickness of concrete covering the rebar properly secured, By further reduce the water-cement ratio, It has extended the durability of concrete. In order to prevent the deterioration of the reinforcing steel for a long period of time, Degradation measures grade 3 was acquired (the highest grade). (Conceptual diagram)

Building structure.  [Housing Performance Evaluation Report] "Abidasu cho Tanaka town" is, Construction housing performance evaluation report to be acquired is the apartment by a third party evaluation organization that has received the registration of country. In the legal system, which was stipulated in the "Act (goods 確法) on the Promotion of the Housing Quality Assurance" (application is optional), Objective and fair quality will be evaluated. (All houses) ※ For more information see "Housing term large Dictionary"
[Housing Performance Evaluation Report] "Abidasu cho Tanaka town" is, Construction housing performance evaluation report to be acquired is the apartment by a third party evaluation organization that has received the registration of country. In the legal system, which was stipulated in the "Act (goods 確法) on the Promotion of the Housing Quality Assurance" (application is optional), Objective and fair quality will be evaluated. (All houses) ※ For more information see "Housing term large Dictionary"

Other

Other.  [Available 24 hours a courier box] Home delivery product that came in during the outing was established to receive store delivery box. It can be retrieved at any time for 24 hours. (Same specifications)
[Available 24 hours a courier box] Home delivery product that came in during the outing was established to receive store delivery box. It can be retrieved at any time for 24 hours. (Same specifications)

Other.  [Double-glazing with excellent thermal insulation effect] Adopt a multi-layer glass provided with a hollow layer between two sheets of flat glass in the window side of the dwelling unit. To improve the efficiency of heating and cooling excellent heat insulation effect, Also contributes to energy conservation. (Conceptual diagram)
[Double-glazing with excellent thermal insulation effect] Adopt a multi-layer glass provided with a hollow layer between two sheets of flat glass in the window side of the dwelling unit. To improve the efficiency of heating and cooling excellent heat insulation effect, Also contributes to energy conservation. (Conceptual diagram)

Other.  [Comfortable life along with the pet. Also installed pet for foot-washing facilities] Pets can be breeding. Elevator to inform the walk way home from foot washing plants and pets rides that washable pet foot in at the sign was also installed.  ※ Frog kind of pets according to the management contract.  ※ The photograph is an example of a pet frog.
[Comfortable life along with the pet. Also installed pet for foot-washing facilities] Pets can be breeding. Elevator to inform the walk way home from foot washing plants and pets rides that washable pet foot in at the sign was also installed. ※ Frog kind of pets according to the management contract. ※ The photograph is an example of a pet frog.

Surrounding environment

Surrounding environment. Machida City Hall (about 810m / 11-minute walk)
Machida City Hall (about 810m / 11-minute walk)

Surrounding environment. Machida Central Library (about 1130m / A 15-minute walk)
Machida Central Library (about 1130m / A 15-minute walk)

Surrounding environment. Machida Marui (about 940m / A 12-minute walk)
Machida Marui (about 940m / A 12-minute walk)

Surrounding environment. Seiyu Machida (about 850m / 11-minute walk)
Seiyu Machida (about 850m / 11-minute walk)

Surrounding environment. LUMINE Machida (about 950m / A 12-minute walk)
LUMINE Machida (about 950m / A 12-minute walk)

Surrounding environment. Odakyu Department Store Machida (about 630m / An 8-minute walk)
Odakyu Department Store Machida (about 630m / An 8-minute walk)

Surrounding environment. Serigaya park (about 590m / An 8-minute walk)
Serigaya park (about 590m / An 8-minute walk)

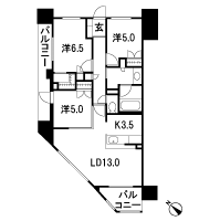
Floor: 3LDK + WIC, the occupied area: 73.49 sq m

Floor: 3LDK + WIC, the occupied area: 73.49 sq m
Floor: 3LDK + WIC, the occupied area: 73.49 sq m

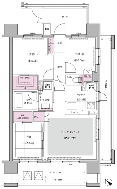
Floor: 3LDK + WIC, the area occupied: 74.2 sq m

Floor: 3LDK + WIC, the area occupied: 74.2 sq m
Floor: 3LDK + WIC, the area occupied: 74.2 sq m

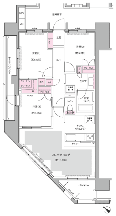
Floor: 3LDK + WIC, the occupied area: 70 sq m

Floor: 3LDK + WIC, the occupied area: 70 sq m
Floor: 3LDK + WIC, the occupied area: 70 sq m
Floor: 3LDK + WIC, the occupied area: 70 sq m
Floor: 3LDK + WIC, the occupied area: 70 sq m
Floor: 3LDK + WIC, the occupied area: 70 sq m
Floor: 3LDK + WIC, the occupied area: 70 sq m

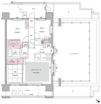
Floor: 3LDK + WIC, the occupied area: 70.66 sq m

Floor: 3LDK + WIC, the occupied area: 70.66 sq m
Floor: 3LDK + WIC, the occupied area: 70.66 sq m

Floor: 3LDK + WIC, the occupied area: 70 sq m

Floor: 3LDK + WIC, the occupied area: 70 sq m
Floor: 3LDK + WIC, the occupied area: 70 sq m


Location