New Apartments » Kanto » Tokyo » Nakano


Property name
Gratia Higashi-Nakano
Time residents
March 2015 in late schedule
Floor plan
2LDK + S (storeroom) ・ 3LDK
Units sold
2 units
Occupied area
67.09 sq m ・ 71.84 sq m
Address
Nakano-ku, Tokyo Higashi-Nakano 1-88-2
Traffic
JR Sobu Line "Higashi-Nakano" walk 3 minutes
Toei Oedo Line "Higashi-Nakano" walk 4 minutes
Tokyo Metro Marunouchi Line "Nakanosakaue" walk 10 minutes
Sale schedule
First-come-first-served basis Application accepted during office hours / 10:00 AM ~ 6:00 PM reception location / <Gratia Higashi-Nakano> Mansion Gallery ※ Application money 100,000 yen at the time of application, Private seal, 2011 ・ 24 years' worth of income proof (withholding slip copy, Tax return copy (last three years), and the like), Identity verification documents (driver's license, Health insurance card, etc.), It is required.
Completion date
Mid-scheduled February 2015
Number of units
2 units
Price
54,980,000 yen ・ 62,980,000 yen
Administrative expense
13,820 yen ・ 14,800 yen / Month
Management reserve
20,000 yen (lump sum)
Repair reserve
6040 yen ・ 6470 yen / Month
Repair reserve fund
362,400 yen ・ 388,200 yen (lump sum)
Other expenses
Comfortable life support club business expenses: 300 yen / Month
Other area
Balcony area: 10.62 sq m , Private garden: 26.59 sq m (use fee 1330 yen / Month), Terrace: 10.71 sq m (use fee Mu)
Other limitations
The first kind altitude district
Property type
Mansion
Total units
76 units
Structure-storey
RC5 story
Construction area
1736.26 sq m
Building floor area
6433.22 sq m
Site area
2903.85 sq m
Site of the right form
Share of ownership
Use district
First-class medium and high-rise exclusive residential area
Parking lot
19 cars on-site (fee 28,000 yen ~ 35,000 yen / Month, Mechanical 16 units, One for disabled guests, One for visitors, Service one vehicle)
Bicycle-parking space
152 cars (100 yen fee ~ 300 yen / Month)
Management form
Consignment (commuting)
Other overview
Building confirmation number: No. BVJ-Y13-10-0117 (2013 April 9, 2009)
About us
<Seller> Minister of Land, Infrastructure and Transport (1) No. 7949 (one company) Real Estate Association (Corporation) metropolitan area real estate Fair Trade Council member Sotetsu Real Estate Co., Ltd. Yubinbango220-0004 Kanagawa Prefecture, Nishi-ku, Yokohama-shi Kitasaiwai 2-9-14 <marketing alliance (agency)> Minister of Land, Infrastructure and Transport (14) No. 408 (one company) Real Estate Association (One company) Property distribution management Association (Corporation) metropolitan area real estate Fair Trade Council member Mitsubishi Estate Co., Ltd. Residence Yubinbango100-8189 Otemachi, Chiyoda-ku, Tokyo, 1-6-1 Otemachi Building <marketing alliance (agency)> Minister of Land, Infrastructure and Transport (2) No. 6809 (one company) Real Estate Association (One company) Property distribution management Association (Corporation) metropolitan area real estate Fair Trade Council member Sotetsu Real Estate Sales Co., Ltd. Yubinbango220-0004 Kanagawa Prefecture, Nishi-ku, Yokohama-shi Kitasaiwai 2-9-14
Construction
(Ltd.) NB construction
Management
(Ltd.) Sotetsu living support


<Gratia Higashi-Nakano> Entrance Rendering CG
<Gratia Higashi-Nakano> Entrance Rendering CG

Nakano-ku, Tokyo Higashi-Nakano 1-88-2
Nakano-ku, Tokyo Higashi-Nakano 1-88-2
Nakano-ku, Tokyo Higashi-Nakano 1-88-2
Nakano-ku, Tokyo Higashi-Nakano 1-88-2
<Gratia Higashi-Nakano> Exterior CG   ※ Which was to synthesize a complete forecast CG to view photos (June 2013 shooting), In fact a slightly different. View photo is taken from the local 5th floor equivalent, Which was subjected to some CG processing, Unlike is the actual view from the dwelling unit.
<Gratia Higashi-Nakano> Exterior CG ※ Which was to synthesize a complete forecast CG to view photos (June 2013 shooting), In fact a slightly different. View photo is taken from the local 5th floor equivalent, Which was subjected to some CG processing, Unlike is the actual view from the dwelling unit.

<Gratia Higashi-Nakano> Entrance Rendering CG
<Gratia Higashi-Nakano> Entrance Rendering CG

<Gratia Higashi-Nakano> Entrance Hall Rendering CG
<Gratia Higashi-Nakano> Entrance Hall Rendering CG

route map
route map

Isetan Shinjuku (about 2730m / Bicycle about 11 minutes)
Isetan Shinjuku (about 2730m / Bicycle about 11 minutes)

route map
route map

living ・ Overlooking the balcony from dining
living ・ Overlooking the balcony from dining

living ・ Overlooking the DEN from dining
living ・ Overlooking the DEN from dining

Relax while feeling the refreshing breeze on the balcony
Relax while feeling the refreshing breeze on the balcony

Kitchen
Kitchen

Overlooking the hallway from the entrance
Overlooking the hallway from the entrance

Master bedroom
Master bedroom

Multi-seller (kitchen floor storage) ※ Only the first floor dwelling unit
Multi-seller (kitchen floor storage) ※ Only the first floor dwelling unit

Triple closet of the master bedroom
Triple closet of the master bedroom

Powder Room
Powder Room

Mom pocket
Mom pocket

Directions to the model room (a word from the person in charge)
Directions to the model room (a word from the person in charge)

Birth to the mansion area of ​​high ground of south slope overlooking the Shinjuku
Birth to the mansion area of ​​high ground of south slope overlooking the Shinjuku

Gratia Higashi-Nakano

Gratia Higashi-Nakano. (living ・ kitchen ・ bath ・ bathroom ・ toilet ・ balcony ・ terrace ・ Private garden ・ Storage, etc.)
(living ・ kitchen ・ bath ・ bathroom ・ toilet ・ balcony ・ terrace ・ Private garden ・ Storage, etc.)

Entrance Rendering CG
Entrance Rendering CG

Use district conceptual diagram
Use district conceptual diagram

Hikawa Shrine (about 320m / 4-minute walk)
Hikawa Shrine (about 320m / 4-minute walk)

Around local streets (about 630m)
Around local streets (about 630m)

Model Room (BD type) Living ・ Dining (shooting in July 2013)
Model Room (BD type) Living ・ Dining (shooting in July 2013)

Living

Living.  [living ・ dining] And cosmopolitan image in the active, Okuyukashi of the historic mansion district. Inspired by the characteristics of the location that combines both, Calm atmosphere and seems mansion, Fusion of modernism feel the city of, We created a luxurious space of <gratia Higashi-Nakano> unique.  ※ All interior photos of the web is model room BD type. Some including option (paid ・ Application deadline Yes)
[living ・ dining] And cosmopolitan image in the active, Okuyukashi of the historic mansion district. Inspired by the characteristics of the location that combines both, Calm atmosphere and seems mansion, Fusion of modernism feel the city of, We created a luxurious space of <gratia Higashi-Nakano> unique. ※ All interior photos of the web is model room BD type. Some including option (paid ・ Application deadline Yes)

Living.  [living ・ dining] It was adopted with carefully selected materials of the beautiful wood in flooring and joinery. Natural texture feel the warmth, It brings out the entire space ornate.
[living ・ dining] It was adopted with carefully selected materials of the beautiful wood in flooring and joinery. Natural texture feel the warmth, It brings out the entire space ornate.

Living.  [living ・ dining] In response to the bright and breezy sunshine from the balcony, Span full of pleasant peace and beauty in everyday life.
[living ・ dining] In response to the bright and breezy sunshine from the balcony, Span full of pleasant peace and beauty in everyday life.

Kitchen

Kitchen.  [kitchen] The aim of the one from the concept of work space to cook, Shine in space as part of the Interior, Aimed a nice kitchen, such as furniture. It is fun to stand in this place, It is beautifully designed kitchen such that want to brag and show.
[kitchen] The aim of the one from the concept of work space to cook, Shine in space as part of the Interior, Aimed a nice kitchen, such as furniture. It is fun to stand in this place, It is beautifully designed kitchen such that want to brag and show.

Kitchen.  [Dishwasher] Cleaning course You can choose depending on the degree of contamination. A quieter operating sound, Is a high ecological specification of water-saving effect compared to hand washing.
[Dishwasher] Cleaning course You can choose depending on the degree of contamination. A quieter operating sound, Is a high ecological specification of water-saving effect compared to hand washing.

Kitchen.  [Sliding cabinet ・ With soft-close] Even taking out easy design of sliding cabinet thing back. So slowly and quietly drawer is closed, It helps finger scissors prevention.
[Sliding cabinet ・ With soft-close] Even taking out easy design of sliding cabinet thing back. So slowly and quietly drawer is closed, It helps finger scissors prevention.

Kitchen.  [Teflon ・ Aluminum top stove] Teflon high durability to the beautiful aluminum top plate ・ Adopt a platinum coating. Dirt has become easy to easy to be every day of care dropped.
[Teflon ・ Aluminum top stove] Teflon high durability to the beautiful aluminum top plate ・ Adopt a platinum coating. Dirt has become easy to easy to be every day of care dropped.

Kitchen.  [Low-noise specification wide sink] Hard low-noise specifications that also put a high-spirited well water worried about the sound of water splashing. Large dish is also easy to wash wide sink.
[Low-noise specification wide sink] Hard low-noise specifications that also put a high-spirited well water worried about the sound of water splashing. Large dish is also easy to wash wide sink.

Kitchen.  [disposer] You can accept the waste water with ground water the garbage. It is possible to reduce the time and effort of the amount and the garbage disposal of garbage, Also not worried about unpleasant smell.  ※ There is a regulation that can not be garbage and use can not be part of treatment.
[disposer] You can accept the waste water with ground water the garbage. It is possible to reduce the time and effort of the amount and the garbage disposal of garbage, Also not worried about unpleasant smell. ※ There is a regulation that can not be garbage and use can not be part of treatment.

Bathing-wash room

Bathing-wash room.  [bathroom] Safety and functionality, In addition to the convenience and ecology quality of care, Relax function was also to enrich bathroom. Beautiful skin effect heal fatigue can also be mist sauna Ya expected, We plan and soft bathed comfort of the air-in shower that includes the air.
[bathroom] Safety and functionality, In addition to the convenience and ecology quality of care, Relax function was also to enrich bathroom. Beautiful skin effect heal fatigue can also be mist sauna Ya expected, We plan and soft bathed comfort of the air-in shower that includes the air.

Bathing-wash room.  [Air-in shower] By including air in the water, Large the every grain of water. It has achieved a comfortable bathed in comfort while water-saving compared to conventional.
[Air-in shower] By including air in the water, Large the every grain of water. It has achieved a comfortable bathed in comfort while water-saving compared to conventional.

Bathing-wash room.  [Mist sauna]  Mist sauna enveloping the whole body in a mist of hot water. low temperature ・ Without suffocating because of high humidity, Refresh the feelings heal tired. (Same specifications)
[Mist sauna] Mist sauna enveloping the whole body in a mist of hot water. low temperature ・ Without suffocating because of high humidity, Refresh the feelings heal tired. (Same specifications)

Bathing-wash room.  [bathroom] Something bits and pieces the bits and bobs is concentrated tend to wash room. That's why always in for a tidy clean and full of a feeling of space, It was rich ensure the functional storage space. Such as natural stone counter tops and mosaic tiles, It also stuck to the pomp and beauty of appearance.
[bathroom] Something bits and pieces the bits and bobs is concentrated tend to wash room. That's why always in for a tidy clean and full of a feeling of space, It was rich ensure the functional storage space. Such as natural stone counter tops and mosaic tiles, It also stuck to the pomp and beauty of appearance.

Bathing-wash room.  [Three-sided mirror housing] The storage space your family each of the bits and bobs is that Shimae clean on the back side of the three-sided mirror. It is very convenient and can easily tidy.
[Three-sided mirror housing] The storage space your family each of the bits and bobs is that Shimae clean on the back side of the three-sided mirror. It is very convenient and can easily tidy.

Bathing-wash room.  [Counter tops of natural stone] Basin in vanity counter top has adopted the same natural stone kitchen. It enhances beautifully clean feeling and the sense of quality of the wash room.
[Counter tops of natural stone] Basin in vanity counter top has adopted the same natural stone kitchen. It enhances beautifully clean feeling and the sense of quality of the wash room.

Toilet

Toilet.  [Water-saving tankless toilet] It brought the room to space, You will receive a hand to every corner even when you are cleaning easy tankless toilet. Operation is also easy because the remote-control.
[Water-saving tankless toilet] It brought the room to space, You will receive a hand to every corner even when you are cleaning easy tankless toilet. Operation is also easy because the remote-control.

Toilet.  [Toilet hand washing counter] It adopted a counter integrated hand washing bowl, We worked to effective use of space. The bottom has become the cabinet, such as toilet roll can hold.
[Toilet hand washing counter] It adopted a counter integrated hand washing bowl, We worked to effective use of space. The bottom has become the cabinet, such as toilet roll can hold.

Receipt

Receipt.  [Multi-seller (kitchen floor storage) Rendering] It has established a large storage space in the kitchen under the floor of the first floor dwelling unit. Not only as a food warehouse, Such as outdoor goods and suitcase, It is very convenient can store plenty others of things and large you do not usually use.  ※ Only the first floor dwelling unit
[Multi-seller (kitchen floor storage) Rendering] It has established a large storage space in the kitchen under the floor of the first floor dwelling unit. Not only as a food warehouse, Such as outdoor goods and suitcase, It is very convenient can store plenty others of things and large you do not usually use. ※ Only the first floor dwelling unit

Receipt.  [System closet] Shelves and hanger pipe can be moveable, System closet of clean design. Since it is tailored to the application of those for housing, It can functionally storage.
[System closet] Shelves and hanger pipe can be moveable, System closet of clean design. Since it is tailored to the application of those for housing, It can functionally storage.

Other

Other. (Shared facilities ・ Common utility ・ Pet facility ・ Variety of services ・ Security ・ Earthquake countermeasures ・ Disaster-prevention measures ・ Building structure ・ Such as the characteristics of the building)
(Shared facilities ・ Common utility ・ Pet facility ・ Variety of services ・ Security ・ Earthquake countermeasures ・ Disaster-prevention measures ・ Building structure ・ Such as the characteristics of the building)

Shared facilities

Shared facilities.  [Exterior - Rendering] <Gratia Higashi-Nakano>, Mansion on the ground five-story nestled on top of the hill. It is poised in a suitable simple and elegant design in this land calm, Home to clear some living space that wraps around the living large, Mansion to continue quietly watching and self-possessed the verge of skyscrapers. As mellow stage of life, All 76 House to be creative in the land of silence deepens.
[Exterior - Rendering] <Gratia Higashi-Nakano>, Mansion on the ground five-story nestled on top of the hill. It is poised in a suitable simple and elegant design in this land calm, Home to clear some living space that wraps around the living large, Mansion to continue quietly watching and self-possessed the verge of skyscrapers. As mellow stage of life, All 76 House to be creative in the land of silence deepens.

Shared facilities.  [Entrance Rendering] The base color of beige accompanied by a straight line of dark brown as an accent, Form that emphasizes the low-rise sense of stout calm. Carefully selected a commitment of materials such as custom-made tiles and natural stone with a texture, I expressed the feeling of luxury and pomp.
[Entrance Rendering] The base color of beige accompanied by a straight line of dark brown as an accent, Form that emphasizes the low-rise sense of stout calm. Carefully selected a commitment of materials such as custom-made tiles and natural stone with a texture, I expressed the feeling of luxury and pomp.

Shared facilities. Entrance Hall Rendering
Entrance Hall Rendering

Security

Security.  [24-hour security system] Day-to-day security management of a 24-hour security system by online monitoring. Instant to determine the abnormality in the Security Center. Corresponding to the speedy emergency response personnel. In addition under the supervision of 24 hours a day, 365 days a year, Respond quickly to emergencies. Disaster prevention in the apartment ・ Security Center and the online connection of the crime prevention sense Sotetsukigyo and ALSOK. To protect the safety of the day-to-day due to a comprehensive security system.
[24-hour security system] Day-to-day security management of a 24-hour security system by online monitoring. Instant to determine the abnormality in the Security Center. Corresponding to the speedy emergency response personnel. In addition under the supervision of 24 hours a day, 365 days a year, Respond quickly to emergencies. Disaster prevention in the apartment ・ Security Center and the online connection of the crime prevention sense Sotetsukigyo and ALSOK. To protect the safety of the day-to-day due to a comprehensive security system.

Security. Auto-lock system
Auto-lock system

Security.  [surveillance camera] Monitoring the suspicious person from entering the main point is security cameras shared part. We watch over the safety of residents.  ※ Same specifications all of the following listed amenities of
[surveillance camera] Monitoring the suspicious person from entering the main point is security cameras shared part. We watch over the safety of residents. ※ Same specifications all of the following listed amenities of

Security.  [Dimple key] Dimple key of high-performance reversible cylinder with excellent security and operability. Increments of the key is complex, Replication is difficult, Exhibit a high security feature. (Conceptual diagram)
[Dimple key] Dimple key of high-performance reversible cylinder with excellent security and operability. Increments of the key is complex, Replication is difficult, Exhibit a high security feature. (Conceptual diagram)

Security.  [Ring shutter gate] Protect the car, Electric shutter gate. Operation can be done by remote control from the driver's seat while riding.
[Ring shutter gate] Protect the car, Electric shutter gate. Operation can be done by remote control from the driver's seat while riding.

Security.  [Movable louver surface lattice] Crime prevention, ventilation, Adopted excellent louver surface lattice in lighting of. Also increase the privacy of. (FIX window portion is fixed louver surface lattice) ※ AA type addition
[Movable louver surface lattice] Crime prevention, ventilation, Adopted excellent louver surface lattice in lighting of. Also increase the privacy of. (FIX window portion is fixed louver surface lattice) ※ AA type addition

Earthquake ・ Disaster-prevention measures

earthquake ・ Disaster-prevention measures.  [Seismic door frame] Hard out trouble to open and close by the distortion of the door frame during an earthquake, It has adopted a seismic door frame.
[Seismic door frame] Hard out trouble to open and close by the distortion of the door frame during an earthquake, It has adopted a seismic door frame.

earthquake ・ Disaster-prevention measures.  [Emergency drinking water generation system] The event of a disaster, Supplies temporarily living water, Emergency domestic water generation system. Because it can operate even during a power outage, It is safe even in case of emergency.
[Emergency drinking water generation system] The event of a disaster, Supplies temporarily living water, Emergency domestic water generation system. Because it can operate even during a power outage, It is safe even in case of emergency.

earthquake ・ Disaster-prevention measures.  [Manhole toilet] Standing installation possible disaster for manhole toilet in manhole. A disaster countermeasure equipment of peace of mind at the time that can not use the toilet in the suspension of water supply by the disaster.
[Manhole toilet] Standing installation possible disaster for manhole toilet in manhole. A disaster countermeasure equipment of peace of mind at the time that can not use the toilet in the suspension of water supply by the disaster.

Building structure

Building structure.  [Double floor ・ Double ceiling] About 260mm of void concrete slab double bed (part about 200mm concrete slab) to the base ・ Adopt a double ceiling structure.
[Double floor ・ Double ceiling] About 260mm of void concrete slab double bed (part about 200mm concrete slab) to the base ・ Adopt a double ceiling structure.

Building structure.  [Outer wall & Tosakaikabe] Tosakaikabe about 150mm partitioning between the outer wall and the dwelling unit ~ To ensure the concrete thickness of 200mm, It was friendly sound insulation.
[Outer wall & Tosakaikabe] Tosakaikabe about 150mm partitioning between the outer wall and the dwelling unit ~ To ensure the concrete thickness of 200mm, It was friendly sound insulation.

Building structure.  [Welding closed shear reinforcement] Adopt a welding closed shear reinforcement in a band muscle of the concrete pillar. Compared to the company's traditional band muscle, Strength becomes uniform to prevent a decrease in strength.
[Welding closed shear reinforcement] Adopt a welding closed shear reinforcement in a band muscle of the concrete pillar. Compared to the company's traditional band muscle, Strength becomes uniform to prevent a decrease in strength.

Building structure.  [Tokyo apartment environmental performance display]  ※ For more information see "Housing term large Dictionary"
[Tokyo apartment environmental performance display] ※ For more information see "Housing term large Dictionary"

Building structure.  [Performance evaluation report] By a third party organization, Objective evaluation is done in the evaluation criteria of the 10 items, such as safety and durability. (All houses) ※ For more information see "Housing term large Dictionary"
[Performance evaluation report] By a third party organization, Objective evaluation is done in the evaluation criteria of the 10 items, such as safety and durability. (All houses) ※ For more information see "Housing term large Dictionary"

Other

Other.  [Courier BOX] Home delivery locker that can receive the courier even at the time of absence.
[Courier BOX] Home delivery locker that can receive the courier even at the time of absence.

Other.  [24-hour garbage can discarded] Installing a garbage yard on the first floor. Without worrying about the collection date of the garbage can trash any time 24 hours.
[24-hour garbage can discarded] Installing a garbage yard on the first floor. Without worrying about the collection date of the garbage can trash any time 24 hours.

Other.  [Pet breeding Allowed] Pets also say a member of the family. You can enjoy the life with dog.  .  ※ The size of the pet ・ type ・ Suto to there are restrictions.  ※ Published photograph of is an example of a pet frog.
[Pet breeding Allowed] Pets also say a member of the family. You can enjoy the life with dog.  . ※ The size of the pet ・ type ・ Suto to there are restrictions. ※ Published photograph of is an example of a pet frog.

Surrounding environment

Surrounding environment. Life Higashi-Nakano store (about 510m ・ 7-minute walk)
Life Higashi-Nakano store (about 510m ・ 7-minute walk)

Surrounding environment. Higashi-Nakano the Ginza shopping district (about 410m ・ 6-minute walk)
Higashi-Nakano the Ginza shopping district (about 410m ・ 6-minute walk)

Surrounding environment. Atorevi Higashi-Nakano (about 270m ・ 4-minute walk)
Atorevi Higashi-Nakano (about 270m ・ 4-minute walk)

Surrounding environment. Pole Pole Higashi-Nakano (about 350m ・ A 5-minute walk)
Pole Pole Higashi-Nakano (about 350m ・ A 5-minute walk)

Surrounding environment. Unison mall (about 480m ・ 6-minute walk)
Unison mall (about 480m ・ 6-minute walk)

Surrounding environment. Harmony Square (about 930m ・ A 12-minute walk)
Harmony Square (about 930m ・ A 12-minute walk)

Surrounding environment. west53rd Japan Pavilion (about 510m ・ 7-minute walk)
west53rd Japan Pavilion (about 510m ・ 7-minute walk)

Surrounding environment. Kanda River (about 700m ・ A 9-minute walk)
Kanda River (about 700m ・ A 9-minute walk)

Surrounding environment. Hikawa Shrine (about 320m ・ 4-minute walk)
Hikawa Shrine (about 320m ・ 4-minute walk)

Surrounding environment. Hill nursery of Sunny (about 870m ・ 11-minute walk)
Hill nursery of Sunny (about 870m ・ 11-minute walk)

Surrounding environment. Nakano Ward Tashan elementary school (about 500m ・ 7-minute walk)
Nakano Ward Tashan elementary school (about 500m ・ 7-minute walk)

Surrounding environment. Nakano Ward third junior high school (about 530m ・ 7-minute walk)
Nakano Ward third junior high school (about 530m ・ 7-minute walk)

Surrounding environment. Taoyuan River green road (about 460m ・ 6-minute walk)
Taoyuan River green road (about 460m ・ 6-minute walk)

Surrounding environment. Sakurayama park (about 700m ・ A 9-minute walk)
Sakurayama park (about 700m ・ A 9-minute walk)

Surrounding environment. Kanda clean water park (about 700m ・ A 9-minute walk)
Kanda clean water park (about 700m ・ A 9-minute walk)

Floor: 3LDK + WIC + MC + TR, the occupied area: 67.09 sq m, Price: 54,980,000 yen, now on sale

Floor: 3LDK + WIC + MC + TR, the occupied area: 67.09 sq m, Price: 54,980,000 yen, now on sale
Floor: 3LDK + WIC + MC + TR, the occupied area: 67.09 sq m, Price: 54,980,000 yen, now on sale

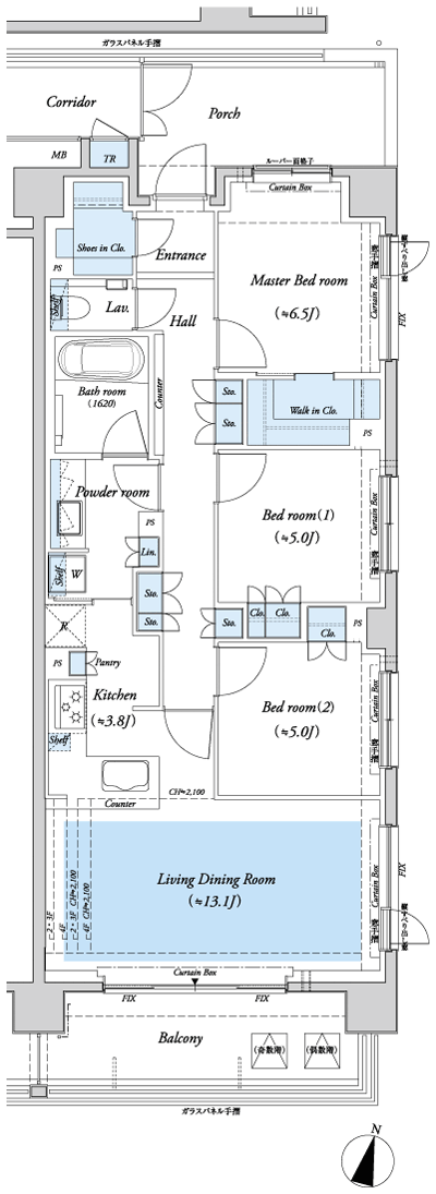
Floor: 2LDK + SR + WIC + WIP + TR, the occupied area: 71.84 sq m, Price: 62,980,000 yen, now on sale

Floor: 2LDK + SR + WIC + WIP + TR, the occupied area: 71.84 sq m, Price: 62,980,000 yen, now on sale

Floor: 2LDK + SR + WIC + WIP + TR, the occupied area: 71.84 sq m, Price: 69,980,000 yen, now on sale

Floor: 2LDK + SR + WIC + WIP + TR, the occupied area: 71.84 sq m, Price: 69,980,000 yen, now on sale

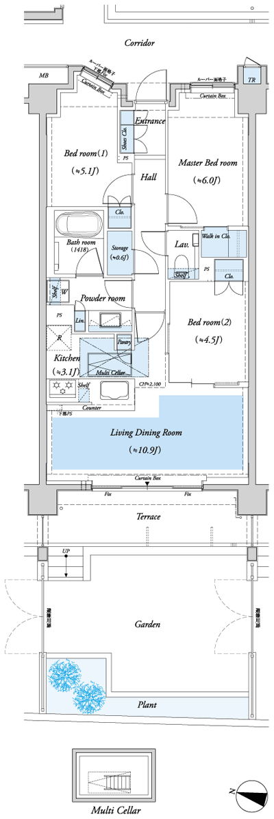
Floor: 3LDK + WIC + MC + TR, the occupied area: 67.52 sq m, Price: 56,880,000 yen, now on sale

Floor: 3LDK + WIC + MC + TR, the occupied area: 67.52 sq m, Price: 56,880,000 yen, now on sale
Floor: 3LDK + WIC + MC + TR, the occupied area: 67.52 sq m, Price: 56,880,000 yen, now on sale

Floor: 2LDK + TR, the area occupied: 56.1 sq m, Price: 53,880,000 yen, now on sale

Floor: 2LDK + TR, the area occupied: 56.1 sq m, Price: 53,880,000 yen, now on sale
Floor: 2LDK + TR, the area occupied: 56.1 sq m, Price: 53,880,000 yen, now on sale

Floor: 3LDK + TR, the occupied area: 74.02 sq m, Price: 67,680,000 yen, now on sale

Floor: 3LDK + TR, the occupied area: 74.02 sq m, Price: 67,680,000 yen, now on sale
Floor: 3LDK + TR, the occupied area: 74.02 sq m, Price: 67,680,000 yen, now on sale

Floor: 3LDK + WIC + SIC + TR, the occupied area: 84.36 sq m, Price: 86,480,000 yen, now on sale

Floor: 3LDK + WIC + SIC + TR, the occupied area: 84.36 sq m, Price: 86,480,000 yen, now on sale
Floor: 3LDK + WIC + SIC + TR, the occupied area: 84.36 sq m, Price: 86,480,000 yen, now on sale

Floor: 3LDK + WIC + TR, the occupied area: 70.32 sq m, Price: 63,980,000 yen, now on sale

Floor: 3LDK + WIC + TR, the occupied area: 70.32 sq m, Price: 63,980,000 yen, now on sale
Floor: 3LDK + WIC + TR, the occupied area: 70.32 sq m, Price: 63,980,000 yen, now on sale

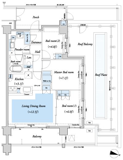
Floor: 3LDK + WIC + SIC + TR, the occupied area: 74.46 sq m, Price: 76,980,000 yen, now on sale

Floor: 3LDK + WIC + SIC + TR, the occupied area: 74.46 sq m, Price: 76,980,000 yen, now on sale
Floor: 3LDK + WIC + SIC + TR, the occupied area: 74.46 sq m, Price: 76,980,000 yen, now on sale


Location