New Apartments » Kanto » Tokyo » Setagaya


Property name
Garden Glass Osan Chitose
Time residents
Immediate available
Price
46,800,000 yen ・ 49,500,000 yen (model room sales only)
Floor plan
3LDK ・ 4LDK
Units sold
2 units
Occupied area
91.98 sq m ・ 92.52 sq m
Address
Setagaya-ku, Tokyo Kyuden 5-6-24 (residence display)
Traffic
Keio Line "Osan Chitose" walk 20 minutes
Keio Line "Sengawa" walk 19 minutes
Keio Line "Osan Chitose" bus 6 minutes "north Kyuden" Tomafu 6 minutes
Sale schedule
First-come-first-served basis application in the accepted time / Weekdays 11:00 AM ~ 7:00 PM, Saturdays, Sundays, and holidays 10:00 AM ~ 6:00 PM (Wednesday, Second Tuesday regular holiday) place / "Garden Glass Osan Chitose" building in the sales center ※ When you sign up, Seal and the (private seal) 2011 ・ Please bring 24 years' worth of income certificate. ※ Per first-come-first-served basis, Please pardon if already sold.
Completion date
November 28, 2012
Number of units
2 units
Administrative expense
10,300 yen / Month
Management reserve
23,000 yen ・ 23,200 yen (lump sum)
Repair reserve
8280 yen ・ 8330 yen / Month
Repair reserve fund
506,000 yen ・ 509,000 yen (lump sum)
Other expenses
Internet flat rate: 945 yen / Month
Other area
Balcony area: 16.93 sq m ・ 17.23 sq m , Roof balcony: 16.62 sq m ・ 17.16 sq m (use fee 500 yen ・ 520 yen / Month), Porch: 16.15 sq m ・ 16.75 sq m
Other
■ Payment example
92-Vr type 3LDK(92.52 sq m ) If 4680 yen The first five years
Monthly payments / 126,197 yen (12 times a year)
Bonus when additional amount / 0 yen
down payment / 0 yen
Monthly principal of debt / 46,800,000 yen
Principal amount of bonus payment of debt / 0 yen
Loan interest rates ・ Kind / Annual interest rate of 0.725% (floating rate)
Repayment period / 35 years
※ Although interest rates will be reviewed twice a year, In repayment is constant even five years changed to apply interest rates, It will be adjusted every five years (except, 1.25 times the limit of prepayments).
■ Guidance of loan
Cooperation loan
Affiliated financial institutions / City bank
The proportion of lending limits on the sale price / 100% within
Loan limit / 500,000 yen more than 100 million within yen (10,000 yen)
Repayment period / 1 year ~ 35 years (one year unit)
Interest rate / Annual interest rate of 0.725% (floating rate) (-1.75% than over-the-counter interest rate 2.475%)
Loan mediation fees / 52,500 yen
Administrative fee / 31,500 yen
※ Loans are certain requirements applicable who are eligible. The applied interest rate is a thing of the time of loan execution, It may be different from the interest rates that are labeled. Interest rate of December 2013
Property type
Mansion
Total units
89 units
Structure-storey
RC5 story
Construction area
2140.23 sq m
Building floor area
7898.09 sq m
Site area
4024.45 sq m
Site of the right form
Share of ownership
Use district
First-class residential area, The second kind medium and high-rise exclusive residential area
Parking lot
15 cars on-site (fee 14,000 yen ~ 18,000 yen / Month, All accommodation number: mechanical 44 units, Two flat postfix expression (including including one for disabled guests))
Bicycle-parking space
178 cars (100 yen fee ~ 200 yen / Month) two-stage rack type
Bike shelter
5 cars (fee 2000 yen / Month)
Mini bike shelter
5 cars (1,500 yen fee / Month)
Management form
Consignment (commuting)
Other overview
Building confirmation number: first UHEC Ken確 23,463 strange No. 1 (2012 September 25 date)
About us
<Employer ・ Seller> Minister of Land, Infrastructure and Transport (4) No. 5786 (Corporation) Tokyo Metropolitan Government Building Lots and Buildings Transaction Business Association (Corporation) National realty business guarantee Association (One company) Japan Housing Construction Industry Association (Corporation) metropolitan area real estate Fair Trade Council member Credit Saison Group Co., Ltd. Atrium Realty 100-0011 Chiyoda-ku, Tokyo Uchisaiwaicho 1-5-2 <marketing alliance (agency)> Minister of Land, Infrastructure and Transport (9) No. 3175 (one company) Real Estate Association (One company) Property distribution management Association (Corporation) metropolitan area real estate Fair Trade Council member, Inc. HaseTakumiabesuto Yubinbango105-8545 Shiba, Minato-ku, Tokyo 2-32-1
Construction
HASEKO Corporation
Management
(Ltd.) Hasekokomyuniti


Buildings and facilities

Buildings and facilities. Produce a sense of the season by arranging a variety of planting on site. Auto-lock system Ya, Also it features a security of a longer period of periodic inspection "Haseko premium after-sales service," such as collective housing unique. (Appearance photo January 2013 shooting)
Produce a sense of the season by arranging a variety of planting on site. Auto-lock system Ya, Also it features a security of a longer period of periodic inspection "Haseko premium after-sales service," such as collective housing unique. (Appearance photo January 2013 shooting)

Buildings and facilities. Low-rise five-story to the large site, It consists of three buildings the configuration of the south-facing center <Garden Glass Osan Chitose>. Solar panels, Electric bicycle rental, Advanced equipment has been enhanced plus α such as 24-hour garbage disposal. (Appearance photo January 2013 shooting)
Low-rise five-story to the large site, It consists of three buildings the configuration of the south-facing center <Garden Glass Osan Chitose>. Solar panels, Electric bicycle rental, Advanced equipment has been enhanced plus α such as 24-hour garbage disposal. (Appearance photo January 2013 shooting)

Surrounding environment

Surrounding environment. Fashionable town and child-rearing is a good environment, "Osan Chitose," "Sengawa" is living area. Wide sky, Lush greenery, It drifts calm atmosphere spread is spacious streets. (Osan Street / About 600m, An 8-minute walk)
Fashionable town and child-rearing is a good environment, "Osan Chitose," "Sengawa" is living area. Wide sky, Lush greenery, It drifts calm atmosphere spread is spacious streets. (Osan Street / About 600m, An 8-minute walk)

Room and equipment

Room and equipment. living ・ Dining ensure the lighting in two faces. Other, TES hot water floor heating, Water purifier integrated shower faucet of the kitchen, Dishwasher, Bidet facilities for comfortable living, such as toilet ・ It features a specification. (living ・ dining / 92-Vr type building in the model room)
living ・ Dining ensure the lighting in two faces. Other, TES hot water floor heating, Water purifier integrated shower faucet of the kitchen, Dishwasher, Bidet facilities for comfortable living, such as toilet ・ It features a specification. (living ・ dining / 92-Vr type building in the model room)

Room and equipment. Comfortably live as storage was also fully prepared. Footwear input there until the detached sense of porch and ceiling height, The master bedroom walk-in closet, etc., There is enough storage to the point that is required, You can use to enable a spacious space. (Master bedroom / 92-Vr type building in the model room)
Comfortably live as storage was also fully prepared. Footwear input there until the detached sense of porch and ceiling height, The master bedroom walk-in closet, etc., There is enough storage to the point that is required, You can use to enable a spacious space. (Master bedroom / 92-Vr type building in the model room)

Room and equipment. New price announcement: 51,600,000 yen → 4680 yen. You can spend a relaxed family living in Minna, Size of the room is offers the charm of the plan. (92Vr type / 3LDK+DEN+2WIC+N, Occupied area / 92.52 sq m , Balcony area / 17.23 sq m )
New price announcement: 51,600,000 yen → 4680 yen. You can spend a relaxed family living in Minna, Size of the room is offers the charm of the plan. (92Vr type / 3LDK+DEN+2WIC+N, Occupied area / 92.52 sq m , Balcony area / 17.23 sq m )

Living

Living.  [Up to about 18 Pledge of living ・ dining] By Wall door to vary freely space, Up to about 18 Pledge of living ・ To achieve the dining. (living ・ dining / 78-K type)
[Up to about 18 Pledge of living ・ dining] By Wall door to vary freely space, Up to about 18 Pledge of living ・ To achieve the dining. (living ・ dining / 78-K type)

Living.  [Horizontal living room facing the balcony ・ dining] Family gather living ・ Dining, Is the space of the room facing the wide to the south-facing balcony. (living ・ dining / 86-E type)
[Horizontal living room facing the balcony ・ dining] Family gather living ・ Dining, Is the space of the room facing the wide to the south-facing balcony. (living ・ dining / 86-E type)

Living.  [TES hot water floor heating] living ・ The dining, Standard equipped with a floor heating to warm up from the feet. Since the heating by the width morphism heat from the floor is high economic efficiency, It does not pollute the air in the room.
[TES hot water floor heating] living ・ The dining, Standard equipped with a floor heating to warm up from the feet. Since the heating by the width morphism heat from the floor is high economic efficiency, It does not pollute the air in the room.

Kitchen

Kitchen.  [Dishwasher] Clean drop the dirt at a high temperature washing. Furthermore easy to operate. It eliminates the need for hand washing and drying, To reduce the burden of housework.
[Dishwasher] Clean drop the dirt at a high temperature washing. Furthermore easy to operate. It eliminates the need for hand washing and drying, To reduce the burden of housework.

Kitchen.  [Three-necked glass coat stove] High-performance gas stove which has been subjected to function and ingenuity to simplify the care. Dirt is also easy to clean with wipe person, such as boiling over.
[Three-necked glass coat stove] High-performance gas stove which has been subjected to function and ingenuity to simplify the care. Dirt is also easy to clean with wipe person, such as boiling over.

Kitchen.  [Water purifier integrated shower faucet] Mixing faucet with a built-in water purifier to make a delicious water. Water purification ・ Switching of the raw water is also possible at the touch of a button. Withdraw the shower head, Clean keep the inside of the sink.
[Water purifier integrated shower faucet] Mixing faucet with a built-in water purifier to make a delicious water. Water purification ・ Switching of the raw water is also possible at the touch of a button. Withdraw the shower head, Clean keep the inside of the sink.

Kitchen.  [Quiet specification wide sink] Sink quiet specification that can suppress the occurrence of running water sound or falling sound. Pot is also easy to wash wide design, etc..
[Quiet specification wide sink] Sink quiet specification that can suppress the occurrence of running water sound or falling sound. Pot is also easy to wash wide design, etc..

Kitchen.  [Enamel rectification Backed range hood] Adopt a range hood of clean design. Speedy in ventilation due to the effect of the current plate. Made of enamel, It is easy to clean.
[Enamel rectification Backed range hood] Adopt a range hood of clean design. Speedy in ventilation due to the effect of the current plate. Made of enamel, It is easy to clean.

Kitchen.  [Spice rack] Adopt a spice rack that can be functionally housed together seasoning. It is one of the consideration to the cooking space and neat.
[Spice rack] Adopt a spice rack that can be functionally housed together seasoning. It is one of the consideration to the cooking space and neat.

Bathing-wash room

Bathing-wash room.  [Bathroom vanity] Vanity was the Mrs. of the voice in shape "Dresser II". design ・ In vanity was to enrich the function, It will produce the comfortable amenities scene every day. (78-K type)
[Bathroom vanity] Vanity was the Mrs. of the voice in shape "Dresser II". design ・ In vanity was to enrich the function, It will produce the comfortable amenities scene every day. (78-K type)

Bathing-wash room.  [Bathroom ventilation heating dryer] Heating in the bathroom before bathing in the winter, After bathing dried suppress generation of mold. It will also come in handy clothes drying on a rainy day.
[Bathroom ventilation heating dryer] Heating in the bathroom before bathing in the winter, After bathing dried suppress generation of mold. It will also come in handy clothes drying on a rainy day.

Bathing-wash room.  [Otobasu] From hot water-covered, Keep warm, Adopted Otobasu performed automatically at the touch of a button to reheating. Operation from the kitchen is also available.
[Otobasu] From hot water-covered, Keep warm, Adopted Otobasu performed automatically at the touch of a button to reheating. Operation from the kitchen is also available.

Bathing-wash room.  [Mosaic pattern floor] In well-drained surface shape, Mosaic pattern floor that can be dried in a short period of time. Keep the inside of the bathroom always clean.
[Mosaic pattern floor] In well-drained surface shape, Mosaic pattern floor that can be dried in a short period of time. Keep the inside of the bathroom always clean.

Bathing-wash room.  [Pica Slim counter to take] Easy to dirt, The groove and the back side of the care is troublesome counter, You can clean up every nook and corner is easily removed.
[Pica Slim counter to take] Easy to dirt, The groove and the back side of the care is troublesome counter, You can clean up every nook and corner is easily removed.

Bathing-wash room.  [Bidet function with toilet seat] Equipped with clean bidet function with a toilet seat and healthy. Because with heating toilet seat function, Cold season is also comfortable.
[Bidet function with toilet seat] Equipped with clean bidet function with a toilet seat and healthy. Because with heating toilet seat function, Cold season is also comfortable.

Receipt

Receipt. Family cloak / 78-K type
Family cloak / 78-K type

Receipt. Family Black - click / 78-K type
Family Black - click / 78-K type

Receipt.  [Western style room ・ Walk-in closet / 78-K type]  ※ All Listings amenities are the same specification.
[Western style room ・ Walk-in closet / 78-K type] ※ All Listings amenities are the same specification.

Other

Other.  [Eco Jaws] For reusing waste heat, With less consumption, The company similar to the conventional heating gas water heater that effect can be obtained. To achieve a friendly high efficiency hot water supply to households to Earth.
[Eco Jaws] For reusing waste heat, With less consumption, The company similar to the conventional heating gas water heater that effect can be obtained. To achieve a friendly high efficiency hot water supply to households to Earth.

Other.  [24 hours low air flow ventilation system] The 24-hour low-wind ventilation system, Weak wind circulation in the dwelling unit. Always incorporating the fresh outside air, You can keep the indoor environment comfortable. (Conceptual diagram)
[24 hours low air flow ventilation system] The 24-hour low-wind ventilation system, Weak wind circulation in the dwelling unit. Always incorporating the fresh outside air, You can keep the indoor environment comfortable. (Conceptual diagram)

Shared facilities

Shared facilities.  [Create a rich green glossy landscape] By applying the extensive planting on site, We care so that you can more familiar and enjoy the scenery of moisture some green. (Exterior photos)
[Create a rich green glossy landscape] By applying the extensive planting on site, We care so that you can more familiar and enjoy the scenery of moisture some green. (Exterior photos)

Shared facilities.  [Doorway of walking vehicles separation] On-site is designed to divide the doorway of pedestrian and car. You can approach smoothly. (Exterior photos)
[Doorway of walking vehicles separation] On-site is designed to divide the doorway of pedestrian and car. You can approach smoothly. (Exterior photos)

Shared facilities.  [Low-rise residences of the south-facing center] While creating a more south-facing dwelling unit, It has adopted a low-rise building with a profound feeling for the vast site. (Site layout illustration)
[Low-rise residences of the south-facing center] While creating a more south-facing dwelling unit, It has adopted a low-rise building with a profound feeling for the vast site. (Site layout illustration)

Shared facilities.  [Entrance hall] Entrance Hall of luxury feeling, For us gently greeted the visitors.
[Entrance hall] Entrance Hall of luxury feeling, For us gently greeted the visitors.

Shared facilities.  [entrance] A profound sense of entrance, It greeted bright at night.
[entrance] A profound sense of entrance, It greeted bright at night.

Shared facilities.  [Spot garden] The Tsuboniwa in the center of the building, For us brightens the elevator hall in front of the eye.
[Spot garden] The Tsuboniwa in the center of the building, For us brightens the elevator hall in front of the eye.

Common utility

Common utility.  [Solar panels] illumination, The shared lighting load of the electrical outlet, etc., Adopt a solar panel system of natural energy use. To contribute to energy saving, We consider the environment. (Exterior photos) ※ Listings building photo is all January 2013 shooting.
[Solar panels] illumination, The shared lighting load of the electrical outlet, etc., Adopt a solar panel system of natural energy use. To contribute to energy saving, We consider the environment. (Exterior photos) ※ Listings building photo is all January 2013 shooting.

Common utility.  [EV car correspondence] A charging device corresponding to the EV car has been set up on site. It is one of the advanced performance with an eye to the era of the future EV car.  ※ The photograph is an example of the EV car-friendly vehicles.
[EV car correspondence] A charging device corresponding to the EV car has been set up on site. It is one of the advanced performance with an eye to the era of the future EV car. ※ The photograph is an example of the EV car-friendly vehicles.

Common utility.  [Electric bicycle rental] Ease even if your luggage in with electric assist function. It offers a bicycle rental available at the time of little errands.  ※ The photograph is an example of a bicycle that can be rented.
[Electric bicycle rental] Ease even if your luggage in with electric assist function. It offers a bicycle rental available at the time of little errands. ※ The photograph is an example of a bicycle that can be rented.

Security

Security.  [24-hour security system] In cooperation with ALSOK, Introducing a security system "Owl 24" to watch the live 24 hours a day, 365 days a year. By any chance, Dwelling units within or union if you start abnormal situation a fire occurs in such facilities, Such as security guards rush to the scene, To respond quickly. (Conceptual diagram)
[24-hour security system] In cooperation with ALSOK, Introducing a security system "Owl 24" to watch the live 24 hours a day, 365 days a year. By any chance, Dwelling units within or union if you start abnormal situation a fire occurs in such facilities, Such as security guards rush to the scene, To respond quickly. (Conceptual diagram)

Security.  [Auto-lock system] In conjunction with the color monitor with intercom in each dwelling unit, After confirming the visitors in the image and sound, You can unlock. You can shut out the suspicious person to enter the system or annoying sales in the entrance, This is a system of peace of mind. (Conceptual diagram)
[Auto-lock system] In conjunction with the color monitor with intercom in each dwelling unit, After confirming the visitors in the image and sound, You can unlock. You can shut out the suspicious person to enter the system or annoying sales in the entrance, This is a system of peace of mind. (Conceptual diagram)

Security.  [surveillance camera] Set up a surveillance camera in various places of the site. Enhance the deterrent effect of the crime, We support the safe and secure living. (Same specifications)
[surveillance camera] Set up a surveillance camera in various places of the site. Enhance the deterrent effect of the crime, We support the safe and secure living. (Same specifications)

Earthquake ・ Disaster-prevention measures

earthquake ・ Disaster-prevention measures.  [TaiShinwaku entrance door] To ensure the clearance between the door and the frame of the front door, Door prevents a situation in which no longer held at the deformation caused by the earthquake. (Conceptual diagram)
[TaiShinwaku entrance door] To ensure the clearance between the door and the frame of the front door, Door prevents a situation in which no longer held at the deformation caused by the earthquake. (Conceptual diagram)

earthquake ・ Disaster-prevention measures.  [Seismic control operation function Elevator] Upon sensing a strong earthquake, Opening the door to stop the nearest floor immediately, Equipped with seismic control operation function. (Conceptual diagram)
[Seismic control operation function Elevator] Upon sensing a strong earthquake, Opening the door to stop the nearest floor immediately, Equipped with seismic control operation function. (Conceptual diagram)

earthquake ・ Disaster-prevention measures.  [Disaster prevention stockpile warehouse] As consideration for the peace of mind that era sought. In preparation for the event of a disaster, A warehouse that can be standing disaster prevention items have been established on site. (Same specifications)
[Disaster prevention stockpile warehouse] As consideration for the peace of mind that era sought. In preparation for the event of a disaster, A warehouse that can be standing disaster prevention items have been established on site. (Same specifications)

Building structure

Building structure.  ["Direct basis" in Musashino gravel layer] Kanto loam layer from the surface after about 1.0m and support ground, Adopted support the building in terms "direct basis (solid foundation)". A robust ground and foundation structure, Support the peace of mind of the house and the living. (Conceptual diagram)
["Direct basis" in Musashino gravel layer] Kanto loam layer from the surface after about 1.0m and support ground, Adopted support the building in terms "direct basis (solid foundation)". A robust ground and foundation structure, Support the peace of mind of the house and the living. (Conceptual diagram)

Building structure.  [Double ceiling suitable for maintenance] Ceiling is a double structure, By passing the piping here, It has been achieved easy to structure the future of reform. To further reduce the weight floor impact sound, The thickness of the floor slab (under the floor concrete) was able to secure more than about 200mm. (Conceptual diagram)
[Double ceiling suitable for maintenance] Ceiling is a double structure, By passing the piping here, It has been achieved easy to structure the future of reform. To further reduce the weight floor impact sound, The thickness of the floor slab (under the floor concrete) was able to secure more than about 200mm. (Conceptual diagram)

Building structure.  [Tokyo apartment environmental performance display] Mansion of environmental performance display Tokyo Metropolitan oblige. We have to get the three of environmental performance.  ※ See "Housing term large dictionary" for more information.
[Tokyo apartment environmental performance display] Mansion of environmental performance display Tokyo Metropolitan oblige. We have to get the three of environmental performance. ※ See "Housing term large dictionary" for more information.

Other

Other.  [Haseko premium after-sales service] Start a regular service of the proprietary part, Also sharing unit was not of the inspection by the construction company until now, Perform an inspection to check, We will strive to early detection of problems. (Conceptual diagram)
[Haseko premium after-sales service] Start a regular service of the proprietary part, Also sharing unit was not of the inspection by the construction company until now, Perform an inspection to check, We will strive to early detection of problems. (Conceptual diagram)

Other.  [Pet breeding Allowed] Be able to deliver a comfortable apartment life to those who live with important partners, It is pet possible breeding.  ※ The photograph is an example of a pet frog.  ※ The breeding of pet you will comply with the management contract. Also, type ・ size ・ There is a limit to the number of horses.
[Pet breeding Allowed] Be able to deliver a comfortable apartment life to those who live with important partners, It is pet possible breeding. ※ The photograph is an example of a pet frog. ※ The breeding of pet you will comply with the management contract. Also, type ・ size ・ There is a limit to the number of horses.

Surrounding environment

Surrounding environment. Maxvalu (about 600m, An 8-minute walk)
Maxvalu (about 600m, An 8-minute walk)

Surrounding environment. frente Sengawa (about 1650m, Bicycle about 9 minutes)
frente Sengawa (about 1650m, Bicycle about 9 minutes)

Surrounding environment. Kyuden elementary school (about 800m, A 10-minute walk)
Kyuden elementary school (about 800m, A 10-minute walk)

Surrounding environment. Osan Bahnhofstrasse shopping street (about 1680m, Bicycle about 9 minutes)
Osan Bahnhofstrasse shopping street (about 1680m, Bicycle about 9 minutes)

Surrounding environment. George's Sengawa store (about 1500m, Bicycle about 8 minutes)
George's Sengawa store (about 1500m, Bicycle about 8 minutes)

Surrounding environment. Tokyo Art Museum (about 1750m, Bicycle about 9 minutes)
Tokyo Art Museum (about 1750m, Bicycle about 9 minutes)

Surrounding environment. Local neighborhood (about 230m, A 3-minute walk)
Local neighborhood (about 230m, A 3-minute walk)

Surrounding environment. Osan Street (about 600m, An 8-minute walk)
Osan Street (about 600m, An 8-minute walk)

Surrounding environment. Nakagawa promenade (about 700m, A 9-minute walk)
Nakagawa promenade (about 700m, A 9-minute walk)

Other

Other.  [View with a view of Mount Fuji] I want to fulfill a number of the residence of the ideal. All, In Setagaya, Begins met with the residence is "relaxed". Is the living environment through which the familiar and peaceful time also natural. (Local 5th floor equivalent / 2013 January shooting)
[View with a view of Mount Fuji] I want to fulfill a number of the residence of the ideal. All, In Setagaya, Begins met with the residence is "relaxed". Is the living environment through which the familiar and peaceful time also natural. (Local 5th floor equivalent / 2013 January shooting)

Other.  [Height difference conceptual diagram] At the apex of the Ome, In alluvial fan gravel that has been transported by the Tama River a few million years ago, you could do deposition, Pour in the Tama River Sengawa, Eroded in dendritic by such Nogawa, We made a complex terrain where there is undulating hills and valleys.
[Height difference conceptual diagram] At the apex of the Ome, In alluvial fan gravel that has been transported by the Tama River a few million years ago, you could do deposition, Pour in the Tama River Sengawa, Eroded in dendritic by such Nogawa, We made a complex terrain where there is undulating hills and valleys.

Other.  [Terrain conceptual diagram] On top of the Musashino Plateau is, If it is consolidating the ground because it is covered in the Kanto loam layer, Has been with the shaking, even if an earthquake occurs less likely to be amplified.
[Terrain conceptual diagram] On top of the Musashino Plateau is, If it is consolidating the ground because it is covered in the Kanto loam layer, Has been with the shaking, even if an earthquake occurs less likely to be amplified.

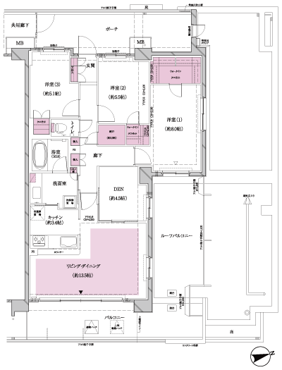
Floor: 4LDK + Wic, the occupied area: 91.98 sq m, Price: 49,500,000 yen, now on sale

Floor: 4LDK + Wic, the occupied area: 91.98 sq m, Price: 49,500,000 yen, now on sale
Floor: 4LDK + Wic, the occupied area: 91.98 sq m, Price: 49,500,000 yen, now on sale

Floor: 3LDK + DEN + 2Wic + N, the occupied area: 92.52 sq m, Price: 46,800,000 yen, now on sale

Floor: 3LDK + DEN + 2Wic + N, the occupied area: 92.52 sq m, Price: 46,800,000 yen, now on sale
Floor: 3LDK + DEN + 2Wic + N, the occupied area: 92.52 sq m, Price: 46,800,000 yen, now on sale


Location