New Apartments » Kanto » Tokyo » Shinagawa


Property name
Rimuterasu Nishikoyama
Time residents
2014 end of January schedule
Expected price range
46 million yen ・ 48 million yen
Floor plan
2LDK + S (storeroom) ・ 3LDK
Units sold
Undecided
Occupied area
78.15 sq m ・ 80.17 sq m
Address
Shinagawa-ku, Tokyo Ebara 5-16-3 (residence display)
Traffic
Tokyu Meguro Line "Nishikoyama" walk 5 minutes
Oimachi Line Tokyu "Hatanodai" walk 14 minutes
Tokyu Ikegami Line "Hatanodai" walk 14 minutes
Sale schedule
Sales scheduled to start 2014 mid-January ※ price ・ Units sold is undecided. Not been finalized or sale divided by the number term or whole sell, Property data for sale dwelling unit has not yet been finalized are inscribed things of all sales target dwelling unit. Determination information will be explicit in the new sale advertising. Acts that lead to secure the contract or reservation of the application and the application order to sale can not be absolutely.
Completion date
2014 end of January schedule
Number of units
Undecided
Administrative expense
7260 yen ・ 7450 yen / Month
Repair reserve
3570 yen ・ 4180 yen / Month
Repair reserve fund
169,280 yen ・ 173,650 yen (lump sum)
Other area
Balcony area: 3.55 sq m ・ 7.1 sq m , Private Garden: 5 sq m ・ 7 sq m (use fee Mu), Porch: 0.72 sq m
Other limitations
Quasi-fire zones, Third kind altitude district
Property type
Townhouse
Total units
5 units
Structure-storey
Thin lightweight shape steel structure three-story
Construction area
151.04 sq m
Building floor area
415.57 sq m
Site area
296.05 sq m
Site of the right form
Share of ownership
Use district
First-class residential area
Parking lot
Nothing
Bicycle-parking space
15 cars (fee Mu)
Bike shelter
Nothing
Management form
Consignment (cyclic)
Other overview
Building confirmation number: Shinaken confirmed 13 No. 00143 (2013 June 30, 2010)
About us
<Employer> Governor of Tokyo (5) No. 71458 (public corporation) All Japan Real Estate Association (Corporation) real estate guarantee Association (One company) National Housing Industry Association (Corporation) metropolitan area real estate Fair Trade Council member, Ltd. Sumika Yubinbango153-0051 Meguro-ku, Tokyo Kamimeguro 1-26-9 <employer ・ Seller> Governor of Tokyo (1) No. 95537 (Corporation) National realty business guarantee Association (Corporation) metropolitan area real estate Fair Trade Council member, Inc. El plus Yubinbango154-0024 Setagaya-ku, Tokyo Sangenjaya 1-37-8 Wakore Sangenchaya 64 building 9F <marketing alliance (agency)> Governor of Tokyo (4) No. 76830 (Corporation) National realty business guarantee Association (Corporation) metropolitan area real estate Fair Trade Council member, Inc. Max Brain Yubinbango101-0051, Chiyoda-ku, Tokyo Jinbōchō 2-8 Izumiya building 5F
Construction
(Ltd.) Gaia field
Management
(Ltd.) Gaia field


Buildings and facilities

Buildings and facilities. High durability and at the same time, Steel house with a flexibility that can repair to match the changes in the family. It is a form of housing that can cherish their own lifestyle. (Exterior view)
High durability and at the same time, Steel house with a flexibility that can repair to match the changes in the family. It is a form of housing that can cherish their own lifestyle. (Exterior view)

Surrounding environment

Surrounding environment. Though it is just a 5-minute walk from the train station, This tranquility is unbelievably city center. Shopping street that extends from the station square is also emotionally rich. In parallel with the mall row of cherry trees will bloom a beautiful flower in the spring, Summer and makes the cool shade of a tree. (Local guide map)
Though it is just a 5-minute walk from the train station, This tranquility is unbelievably city center. Shopping street that extends from the station square is also emotionally rich. In parallel with the mall row of cherry trees will bloom a beautiful flower in the spring, Summer and makes the cool shade of a tree. (Local guide map)

Surrounding environment. Tokyu Meguro line from "Nishikoyama" Station, 2 station 3 minutes to Meguro Station. Mutual direct operation of the Toei Mita and Nanboku, It is freely such as the transfer of the JR. (Access view)
Tokyu Meguro line from "Nishikoyama" Station, 2 station 3 minutes to Meguro Station. Mutual direct operation of the Toei Mita and Nanboku, It is freely such as the transfer of the JR. (Access view)

Kitchen

Kitchen.  [System kitchen] Stylish kitchen to meet every lifestyle. Convenience and functionality, The "fun to use" has been pursued from every angle.  ※ Amenities of me are all the same specifications photos
[System kitchen] Stylish kitchen to meet every lifestyle. Convenience and functionality, The "fun to use" has been pursued from every angle. ※ Amenities of me are all the same specifications photos

Kitchen.  [Water purifier built-in shower faucet] Plenty of clean water per minute 4 liters, Automatic cleaning cartridge is always clean. It is a handy shower faucet that can be used in a drawer.
[Water purifier built-in shower faucet] Plenty of clean water per minute 4 liters, Automatic cleaning cartridge is always clean. It is a handy shower faucet that can be used in a drawer.

Bathing-wash room

Bathing-wash room.  [Bathroom] Not only stuck to the ease of use such as the bathroom heating dryer and air-in shower, Equipped with a variety of functions to keep the clean space.
[Bathroom] Not only stuck to the ease of use such as the bathroom heating dryer and air-in shower, Equipped with a variety of functions to keep the clean space.

Bathing-wash room.  [Thermos bathtub] It will be kept warm longer in the heat insulation structure. Tightly cover the periphery of the tub with a heat insulating material, Preeminent thermal effect by insulation bath lid. Even coming home late, Put to immediately warm bath. Also eco-friendly washing in warm remaining water. "Thermos tub" Even the next morning, It is the lukewarm water of the state. This is said to bring out the power of the detergent difficult to damage the fabric, Temperature perfect for washing, Water-saving ・ It will also be the energy saving. (Conceptual diagram)
[Thermos bathtub] It will be kept warm longer in the heat insulation structure. Tightly cover the periphery of the tub with a heat insulating material, Preeminent thermal effect by insulation bath lid. Even coming home late, Put to immediately warm bath. Also eco-friendly washing in warm remaining water. "Thermos tub" Even the next morning, It is the lukewarm water of the state. This is said to bring out the power of the detergent difficult to damage the fabric, Temperature perfect for washing, Water-saving ・ It will also be the energy saving. (Conceptual diagram)

Bathing-wash room.  [Hot Karari floor] Sit as it is, Hizaotsuku ・  ・  ・ Such behavior can also be naturally, Soft and comfortable floor. Each time of bathing and cleaning, "Relieved" and the mind is calm.
[Hot Karari floor] Sit as it is, Hizaotsuku ・ ・ ・ Such behavior can also be naturally, Soft and comfortable floor. Each time of bathing and cleaning, "Relieved" and the mind is calm.

Bathing-wash room.  [Air-in shower] While a water-saving, It has been achieved bathed comfort of kindness full of new sensation. It is the beginning of the shower time to meet the mind.
[Air-in shower] While a water-saving, It has been achieved bathed comfort of kindness full of new sensation. It is the beginning of the shower time to meet the mind.

Bathing-wash room.  [Air Heating dryer] In bathroom, Clothes drying of laundry also safe on a rainy day ・ ventilation ・ Equipped with a bathroom ventilation heating dryer that can bathroom heating.
[Air Heating dryer] In bathroom, Clothes drying of laundry also safe on a rainy day ・ ventilation ・ Equipped with a bathroom ventilation heating dryer that can bathroom heating.

Bathing-wash room.  [Vanity with a three-sided mirror back storage] To form a sanitary room comfortably spend a modern design and feature-rich. The top plate is a chic texture of artificial marble.
[Vanity with a three-sided mirror back storage] To form a sanitary room comfortably spend a modern design and feature-rich. The top plate is a chic texture of artificial marble.

Bathing-wash room.  [Faucet draw] Care Ease shower faucet that can be used in a drawer.
[Faucet draw] Care Ease shower faucet that can be used in a drawer.

Bathing-wash room.  [High-back counter] Prevent the guard to dirty the water wings. Also is easy daily care.
[High-back counter] Prevent the guard to dirty the water wings. Also is easy daily care.

Other

Other.  [Low-E double-glazing adoption] To prevent the movement of heat in it to create an air layer between two sheets of glass. Summer is hard to be transmitted outside of the hot air into the room, Winter will increase the heating effect in the room. (Conceptual diagram)
[Low-E double-glazing adoption] To prevent the movement of heat in it to create an air layer between two sheets of glass. Summer is hard to be transmitted outside of the hot air into the room, Winter will increase the heating effect in the room. (Conceptual diagram)

Security

Security.  [Secom 24-hour security system] As a pioneer in security industry, Introducing a security system of a trusted and proven Secom. Fire in the dwelling unit in a 24-hour-a-day, Emergency communication, Intrusion abnormality control center monitoring. In addition when you go out, Since it is crime prevention set when the put the key in the front door, You can go out smoothly, To protect the lives of comfort and safety. (Conceptual diagram)
[Secom 24-hour security system] As a pioneer in security industry, Introducing a security system of a trusted and proven Secom. Fire in the dwelling unit in a 24-hour-a-day, Emergency communication, Intrusion abnormality control center monitoring. In addition when you go out, Since it is crime prevention set when the put the key in the front door, You can go out smoothly, To protect the lives of comfort and safety. (Conceptual diagram)

Security.  [Color monitor intercom & auto lock] Within the dwelling unit, Operation also set up a simple color monitor with a hands-free intercom with touch panel. You can also check the image on the monitor not only the voice. (Same specifications)
[Color monitor intercom & auto lock] Within the dwelling unit, Operation also set up a simple color monitor with a hands-free intercom with touch panel. You can also check the image on the monitor not only the voice. (Same specifications)

Security.  [Dimple key cylinder lock] The complex configuration the pin tumbler, 17.2 billion kinds of key patterns can be created in, it can be extremely difficult to unlock at the picking. In order to prevent the unauthorized copying of the key, it is safe system to register the customer's key management. In addition, you can go out with confidence by adopting a double lock (double lock). (Conceptual diagram)
[Dimple key cylinder lock] The complex configuration the pin tumbler, 17.2 billion kinds of key patterns can be created in, it can be extremely difficult to unlock at the picking. In order to prevent the unauthorized copying of the key, it is safe system to register the customer's key management. In addition, you can go out with confidence by adopting a double lock (double lock). (Conceptual diagram)

Security.  [On the first floor room, Installing a shutter (shutters)] Friendly crime prevention surface, On the first floor of the room, It offers a shutter.  ※ Also there if it has not been installed. For more information, please check with the local sales representative (same specifications)
[On the first floor room, Installing a shutter (shutters)] Friendly crime prevention surface, On the first floor of the room, It offers a shutter. ※ Also there if it has not been installed. For more information, please check with the local sales representative (same specifications)

Security.  [Adopt a strong sickle lock up and down Tomoko same-breaking double lock] Sickle attached to the dead bolt (bolt) is firmly hair mate to receive tablets. (Same specifications)
[Adopt a strong sickle lock up and down Tomoko same-breaking double lock] Sickle attached to the dead bolt (bolt) is firmly hair mate to receive tablets. (Same specifications)

Security.  [Peace of mind because the thumb turn can remove] If you remove at the time and going to bed go out, Put a hand or a tool to beat the glass, There is no worry about, such as turn the thumb-turn. (Same specifications)
[Peace of mind because the thumb turn can remove] If you remove at the time and going to bed go out, Put a hand or a tool to beat the glass, There is no worry about, such as turn the thumb-turn. (Same specifications)

Building structure

Building structure.  [Steel frame framework construction method (thin lightweight type structure)] Wooden 2 × is the method by replacing the frame material to a thickness of 1 mm before and after the steel used in the construction method 4. In comparison with the wooden 2 × 4 house has a strength of about 1.5 times. Also, Aging seen in the wooden (dry due to the contraction, distortion, warp, Without cracking) and deflection, Keeps the structure does not change with the new construction even after decades.
[Steel frame framework construction method (thin lightweight type structure)] Wooden 2 × is the method by replacing the frame material to a thickness of 1 mm before and after the steel used in the construction method 4. In comparison with the wooden 2 × 4 house has a strength of about 1.5 times. Also, Aging seen in the wooden (dry due to the contraction, distortion, warp, Without cracking) and deflection, Keeps the structure does not change with the new construction even after decades.

Building structure.  [Thermal insulation properties] Since it has the "outside Zhang insulation system" that covers comfortably the entire building with a heat insulating material in the steel house and criteria adopted, Condensation prevention measures is to ensure, It has extended durability of the steel. Also, Also corresponds to the energy saving, such as power-saving, So you can easily change the thickness of the insulation material, The control of the thermal insulation performance, Can freely, Maintaining the temperature of the room constant, You can reduce the wasteful energy consumption. (Conceptual diagram)
[Thermal insulation properties] Since it has the "outside Zhang insulation system" that covers comfortably the entire building with a heat insulating material in the steel house and criteria adopted, Condensation prevention measures is to ensure, It has extended durability of the steel. Also, Also corresponds to the energy saving, such as power-saving, So you can easily change the thickness of the insulation material, The control of the thermal insulation performance, Can freely, Maintaining the temperature of the room constant, You can reduce the wasteful energy consumption. (Conceptual diagram)

Building structure.  [Sound insulation] Using the excellent double-walled sound insulation, Such as car and pedestrian traffic, Outside of the noise, of course, It greatly reduces the sound from the adjacent dwelling unit. (Sound insulation performance conceptual diagram of Sakaikabe)
[Sound insulation] Using the excellent double-walled sound insulation, Such as car and pedestrian traffic, Outside of the noise, of course, It greatly reduces the sound from the adjacent dwelling unit. (Sound insulation performance conceptual diagram of Sakaikabe)

Building structure.  [Fire resistance] If 3m distant neighbor became fire, The surface temperature of the outer wall after 30 minutes from the fire is said to reach 840 ℃. The frame material of steel house is not exactly burning even in such a high temperature, It does not go out even smoke. Also, A ceramic siding of noncombustible material on an outer wall material, Reference employs an outer clad insulation system providing the air layer and the heat insulating material on its rear surface. Also used the noncombustible in soffit and roof, It boasts a high fire performance. (A cross-sectional schematic diagram)
[Fire resistance] If 3m distant neighbor became fire, The surface temperature of the outer wall after 30 minutes from the fire is said to reach 840 ℃. The frame material of steel house is not exactly burning even in such a high temperature, It does not go out even smoke. Also, A ceramic siding of noncombustible material on an outer wall material, Reference employs an outer clad insulation system providing the air layer and the heat insulating material on its rear surface. Also used the noncombustible in soffit and roof, It boasts a high fire performance. (A cross-sectional schematic diagram)

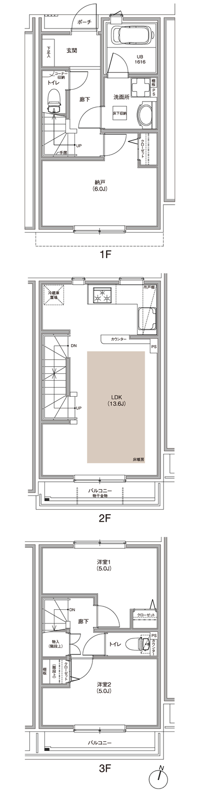
Floor: 3LDK, occupied area: 80.17 sq m, price: 48 million yen (tentative)

Floor: 3LDK, occupied area: 80.17 sq m, price: 48 million yen (tentative)
Floor: 3LDK, occupied area: 80.17 sq m, price: 48 million yen (tentative)

Floor: 2LDK + S, the occupied area: 78.15 sq m, price: 46 million yen (tentative)

Floor: 2LDK + S, the occupied area: 78.15 sq m, price: 46 million yen (tentative)
Floor: 2LDK + S, the occupied area: 78.15 sq m, price: 46 million yen (tentative)


Location