2010October
59,800,000 yen, 1LDK, 98.84 sq m
New Apartments » Kanto » Tokyo » Shinagawa
 
| Property name 物件名 | | Resenu platinum millionaires round 59,800,000 yen (1LDK) レセーヌ白金長者丸 5980万円(1LDK) | Units sold 販売戸数 | | 1 units 1戸 | Price 価格 | | 59,800,000 yen 5980万円 | Administrative expense 管理費 | | 23,530 yen / Month (consignment (commuting)) 2万3530円/月(委託(通勤)) | Repair reserve 修繕積立金 | | 17,980 yen / Month 1万7980円/月 | Floor plan 間取り | | 1LDK 1LDK | Occupied area 専有面積 | | 98.84 sq m (center line of wall) 98.84m2(壁芯) | Completion date 完成時期(築年月) | | October 2010 2010年10月 | Whereabouts floor 所在階 | | 3rd floor 3階 | Direction 向き | | Southeast 南東 | Location 所在地 | | Shinagawa-ku, Tokyo Kamiosaki 2 東京都品川区上大崎2 | Traffic 交通 | | JR Yamanote Line "Meguro" walking 11 minutes
JR山手線「目黒」歩11分
| Structure-storey 構造・階建て | | RC6 floors 1 underground story RC6階地下1階建 | Site of the right form 敷地の権利形態 | | Ownership 所有権 | Use district 用途地域 | | One low-rise, One middle and high 1種低層、1種中高 | Parking lot 駐車場 | | The exclusive right to use with parking (30,000 yen / Month) 専用使用権付駐車場(3万円/月) | Company profile 会社概要 | | <Mediation> Governor of Tokyo (3) No. 077117 (Ltd.) Let's Creation Yubinbango151-0053, Shibuya-ku, Tokyo Yoyogi 1-29-4 <仲介>東京都知事(3)第077117号(株)レッツクリエイション〒151-0053 東京都渋谷区代々木1-29-4 | Contact お問い合せ先 | | TEL: 0800-603-3218 [Toll free] mobile phone ・ Also available from PHS Caller ID is not notified Please contact the "we saw SUUMO (Sumo)" If it does not lead, If the real estate company License number: Governor of Tokyo (3) The 077,117 Issue trading aspect: <mediation> business hours: AM10: 00 ~ PM8:00 / Closed: Every Wednesday the first ・ Third Tuesday TEL:0800-603-3218【通話料無料】携帯電話・PHSからもご利用いただけます 発信者番号は通知されません 「SUUMO(スーモ)を見た」と問い合わせください つながらない方、不動産会社の方は 免許番号:東京都知事(3)第077117号取引態様:<仲介>営業時間:AM10:00 ~ PM8:00 / 定休日:毎週水曜日 第1・第3火曜日
| Construction 施工 | | Nishimura Construction Co., Ltd. 西村建設(株) |
 Living
リビング
 Living
リビング
 Kitchen
キッチン
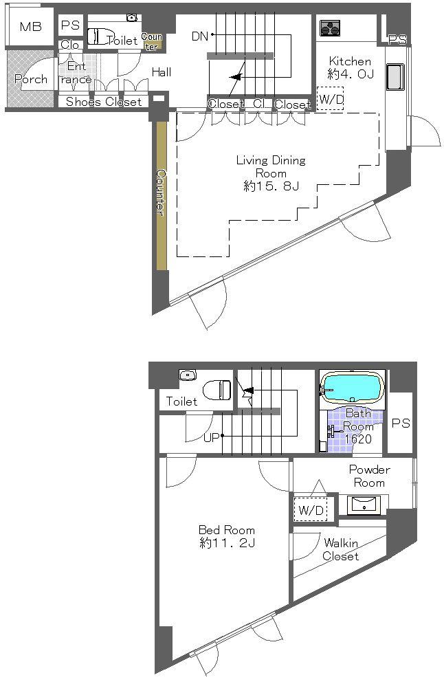
Floor plan間取り図  1LDK, Price 59,800,000 yen, Occupied area 98.84 sq m
1LDK、価格5980万円、専有面積98.84m2
 Non-living room
リビング以外の居室
Wash basin, toilet洗面台・洗面所  Vibration Control ・ Seismic isolation ・ Earthquake resistant / System kitchen / Bathroom Dryer / Yang per good / A quiet residential area / LDK15 tatami mats or more / 24 hours garbage disposal Allowed / Toilet 2 places / Plane parking / Southeast direction / Otobasu / High speed Internet correspondence / Leafy residential area / All living room flooring / BS ・ CS ・ CATV / Floor heating / Delivery Box
制震・免震・耐震 / システムキッチン / 浴室乾燥機 / 陽当り良好 / 閑静な住宅地 / LDK15畳以上 / 24時間ゴミ出し可 / トイレ2ヶ所 / 平面駐車場 / 東南向き / オートバス / 高速ネット対応 / 緑豊かな住宅地 / 全居室フローリング / BS・CS・CATV / 床暖房 / 宅配ボックス
Location
|