New Apartments » Kanto » Tokyo » Shinjuku ward


Property name
Central Residence Gaien Nishi Street
Time residents
April 2014 early schedule
Floor plan
2LDK + S (storeroom) ~ 3LDK
Units sold
3 units
Occupied area
75.67 sq m ~ 101.39 sq m
Address
Shinjuku-ku, Tokyo Daikyo cho # 24 2
Traffic
Tokyo Metro Marunouchi Line "Yotsuya-chome" walk 8 minutes
Tokyo Metro Marunouchi Line "Shinjuku Gyoen before" walk 9 minutes
JR Chuo Line "Sendagaya" walk 10 minutes
Sale schedule
First-come-first-served basis application being accepted ※ It will be accepted during business hours. ※ The location is Shinjuku Museum comprehensive Mansion Gallery. ※ Seal and income certificate at the time of the application (in 2011 ・ 24 years), Identification (such as driver's license) is required.
Completion date
February 2014 late schedule
Number of units
3 units
Price
74,800,000 yen ~ 98 million yen
Administrative expense
19,267 yen ~ 25,397 yen / Month
Management reserve
19,267 yen ~ 25,397 yen (lump sum)
Repair reserve
6400 yen ~ 8580 yen / Month
Repair reserve fund
384,180 yen ~ 514,760 yen (lump sum)
Other area
Balcony area: 4.17 sq m ~ 9.32 sq m , Service balcony area: 1.88 sq m ~ 2.47 sq m
Property type
Mansion
Total units
60 units
Structure-storey
RC10 story
Construction area
1001.01 sq m
Building floor area
5990.77 sq m
Site area
1374.01 sq m
Site of the right form
Share of ownership
Use district
Neighborhood commercial district, First-class residential area
Parking lot
18 cars on-site (fee 32,000 yen ~ 45,000 yen / Month)
Bicycle-parking space
61 cars (fee 300 yen ・ 350 yen / Month)
Bike shelter
4 cars (fee 6,000 yen / Month)
Management form
Consignment (commuting)
Other overview
Building confirmation number: No. ERI12040345 (2012 September 27, date),
Modify building confirmation number: No. ERI12053055 (Heisei date 24 November 28)
About us
<Seller> Minister of Land, Infrastructure and Transport (14) No. 38 (one company) Real Estate Association (Corporation) metropolitan area real estate Fair Trade Council member Sumitomo Realty & Development Co., Ltd. Yubinbango163-0820 Tokyo Nishi-Shinjuku, Shinjuku-ku, 2-4-1 (Shinjuku NS Building)
Construction
(Strain) Obayashi Tokyo head office
Management
Sumitomo Realty & Development Building Service Co., Ltd.


Exterior - Rendering ( ※ 2)
Exterior - Rendering ( ※ 2)

Rendering ( ※ 2) ※ In the building Rendering that caused draw based on the drawings of the planning stage to the photo of the peripheral site (2013 February shooting) those CG synthesis and processing, In fact a slightly different.  ※ In road repair work in Tokyo, from now on, Scheduled to street trees is changed planted before the local (2013 of October)
Rendering ( ※ 2) ※ In the building Rendering that caused draw based on the drawings of the planning stage to the photo of the peripheral site (2013 February shooting) those CG synthesis and processing, In fact a slightly different. ※ In road repair work in Tokyo, from now on, Scheduled to street trees is changed planted before the local (2013 of October)

Entrance Hall Rendering ( ※ 2) on the floor of natural stone tone tile, Adopted a profound sense of natural stone on the walls. By disposing the louver in part of the wall, It has become a magnificent height and warmth drifts shared space. Feel the status of the person who live here, It spreads such elegance
Entrance Hall Rendering ( ※ 2) on the floor of natural stone tone tile, Adopted a profound sense of natural stone on the walls. By disposing the louver in part of the wall, It has become a magnificent height and warmth drifts shared space. Feel the status of the person who live here, It spreads such elegance

living ・ Dining (model room ・ 100M-2 type. March 2013 shooting.  ※ 3)
living ・ Dining (model room ・ 100M-2 type. March 2013 shooting. ※ 3)

Entrance (model room ・ 100M-2 type. March 2013 shooting.  ※ 3))
Entrance (model room ・ 100M-2 type. March 2013 shooting. ※ 3))

 ■ 40B type ・ 1LDK + WIC occupied area / 37.95 sq m balcony area / 4.46 sq m service balcony area / 1.08 sq m
■ 40B type ・ 1LDK + WIC occupied area / 37.95 sq m balcony area / 4.46 sq m service balcony area / 1.08 sq m

 ■ 75E type ・ 3LDK + N footprint / 75.67 sq m balcony area / 4.17 sq m service balcony area / 1.88 sq m
■ 75E type ・ 3LDK + N footprint / 75.67 sq m balcony area / 4.17 sq m service balcony area / 1.88 sq m

 ■ 100M type ・ 3LDK + 2N + 2WIC footprint / 100.20 sq m balcony area / 8.50 sq m service balcony area / 1.32 sq m
■ 100M type ・ 3LDK + 2N + 2WIC footprint / 100.20 sq m balcony area / 8.50 sq m service balcony area / 1.32 sq m

 ■ 40B type ・ 1LDK + WIC occupied area / 37.95 sq m balcony area / 4.46 sq m service balcony area / 1.08 sq m
■ 40B type ・ 1LDK + WIC occupied area / 37.95 sq m balcony area / 4.46 sq m service balcony area / 1.08 sq m

Buildings and facilities

Buildings and facilities. Exterior - Rendering ※ Rendering of the web is one that caused draw based on the drawings of the planning stage, In fact a slightly different. Also, We have omitted details and equipment, etc. of shape.  ※ Trees such as the on-site is what drew the image of the location after you've grown. Also, Shades of leaves and flowers, Tree form, etc. is different from the actual is an image. It should be noted, Since the planting 栽計 images are subject to change, Please note.
Exterior - Rendering ※ Rendering of the web is one that caused draw based on the drawings of the planning stage, In fact a slightly different. Also, We have omitted details and equipment, etc. of shape. ※ Trees such as the on-site is what drew the image of the location after you've grown. Also, Shades of leaves and flowers, Tree form, etc. is different from the actual is an image. It should be noted, Since the planting 栽計 images are subject to change, Please note.

Surrounding environment

Surrounding environment. aerial photograph ※ Photos posted, To those obtained by photographing the south direction from the vicinity of the sky Shinjuku Tomihisa-cho, (September 2012), CG synthesis such as the local portion of the light ・ Is that where the processing. Also, Surrounding environment might change in the future.
aerial photograph ※ Photos posted, To those obtained by photographing the south direction from the vicinity of the sky Shinjuku Tomihisa-cho, (September 2012), CG synthesis such as the local portion of the light ・ Is that where the processing. Also, Surrounding environment might change in the future.

Surrounding environment. In a 10-minute walk 5 Station 3 routes available. Multi-access of the Yamanote Line inside unique. Skyscrapers are concentrated "Shinjuku", Epicenter of the trend "Shibuya" is, of course, You can also access smoothly by train to line up a number of long-established and brand shop "Ginza" business district "Otemachi". (Access view)
In a 10-minute walk 5 Station 3 routes available. Multi-access of the Yamanote Line inside unique. Skyscrapers are concentrated "Shinjuku", Epicenter of the trend "Shibuya" is, of course, You can also access smoothly by train to line up a number of long-established and brand shop "Ginza" business district "Otemachi". (Access view)

Surrounding environment. In the lives of the "Central Residence Gaien West Street", Recommended bicycle would like to. Little outing on the weekend of pleasant sunny day. The station around the area feel free to go in such a stroll mood, A number of large-scale commercial facilities and theater, Movie theater, Popular restaurants such as, Attractive spot is equipped. (Bicycle area map)
In the lives of the "Central Residence Gaien West Street", Recommended bicycle would like to. Little outing on the weekend of pleasant sunny day. The station around the area feel free to go in such a stroll mood, A number of large-scale commercial facilities and theater, Movie theater, Popular restaurants such as, Attractive spot is equipped. (Bicycle area map)

Surrounding environment. "Meiji Jingu Outer Gardens", which has a magnificent forest was born to bring together 献木 and modernization of wisdom from across the country. While remaining on the inner side of the JR Yamanote Line, This project will be born in the area to show the appearance that has been wrapped in lush greenery. (Meiji Jingu Gaien / About 750m ・ A 10-minute walk)
"Meiji Jingu Outer Gardens", which has a magnificent forest was born to bring together 献木 and modernization of wisdom from across the country. While remaining on the inner side of the JR Yamanote Line, This project will be born in the area to show the appearance that has been wrapped in lush greenery. (Meiji Jingu Gaien / About 750m ・ A 10-minute walk)

Surrounding environment. "Central Residence Gaien Nishi Street" is, A 2-minute drive Metropolitan Expressway No. 4 Shinjuku line to the "Outer Gardens" entrance (about 750m). Of course on weekdays of private car commuting, If the holiday a little stretch the legs, Hakone ・ Kawaguchiko direction and access to speedy also to leisure attractions such as sunlight direction. Regardless of the on-off, You can enjoy nimble car life. (High-speed road map)
"Central Residence Gaien Nishi Street" is, A 2-minute drive Metropolitan Expressway No. 4 Shinjuku line to the "Outer Gardens" entrance (about 750m). Of course on weekdays of private car commuting, If the holiday a little stretch the legs, Hakone ・ Kawaguchiko direction and access to speedy also to leisure attractions such as sunlight direction. Regardless of the on-off, You can enjoy nimble car life. (High-speed road map)

Kitchen

Kitchen.  [Natural stone counter tops] The counter top in the kitchen, Adopt a beautiful natural stone. It will produce the upscale kitchen.  ※ 85Ir, 105J, 105Jr, 100Kg, 100L, 100M, 100Mg, 100N, 110O, 130Pr, 130Qr, 120Rr type only.  ※ Published photograph of furniture was taken the model room (100M-2 type) (March 2013) ・ Furniture etc. option specification is not included in the sale price.
[Natural stone counter tops] The counter top in the kitchen, Adopt a beautiful natural stone. It will produce the upscale kitchen. ※ 85Ir, 105J, 105Jr, 100Kg, 100L, 100M, 100Mg, 100N, 110O, 130Pr, 130Qr, 120Rr type only. ※ Published photograph of furniture was taken the model room (100M-2 type) (March 2013) ・ Furniture etc. option specification is not included in the sale price.

Kitchen.  [Schott glass top plate] It is loved all over the world, Germany ・ Adopt a shot manufactured by heat-resistant ceramic glass top plate. Not only beautiful, Strongly to heat and shock, Difficult dirty luck, It is easy to clean.
[Schott glass top plate] It is loved all over the world, Germany ・ Adopt a shot manufactured by heat-resistant ceramic glass top plate. Not only beautiful, Strongly to heat and shock, Difficult dirty luck, It is easy to clean.

Kitchen.  [Single lever shower faucet] The amount of water in the lever operation one, Installing the temperature adjustable single-lever faucet. Since the pull out the shower head, It is also useful, such as sink cleaning. Also, It has a built-in water purification cartridge.  ※ Cartridge replacement costs will be separately paid.  ※ 85Ir, 105J, 105Jr, 100Kg, 100L, 100M, 100Mg, 100N, 110O, 130Pr, 130Qr, 120Rr type only.
[Single lever shower faucet] The amount of water in the lever operation one, Installing the temperature adjustable single-lever faucet. Since the pull out the shower head, It is also useful, such as sink cleaning. Also, It has a built-in water purification cartridge. ※ Cartridge replacement costs will be separately paid. ※ 85Ir, 105J, 105Jr, 100Kg, 100L, 100M, 100Mg, 100N, 110O, 130Pr, 130Qr, 120Rr type only.

Kitchen.  [Sliding storage] Storage of system kitchens, It can be effectively utilized in the prone cabinet in a dead space, It has adopted a sliding storage.
[Sliding storage] Storage of system kitchens, It can be effectively utilized in the prone cabinet in a dead space, It has adopted a sliding storage.

Kitchen.  [Seismic latch] Hanging cupboard in the kitchen, The door of the vanity of the triple mirror housing, It will open the door by the shaking of an earthquake, As storage material does not fall, Set up a seismic latch. Live who we take care for the safety of. Secure the shelves in a more nails for shelf dropout prevention so as not to come off the shelves.  (Same specifications)
[Seismic latch] Hanging cupboard in the kitchen, The door of the vanity of the triple mirror housing, It will open the door by the shaking of an earthquake, As storage material does not fall, Set up a seismic latch. Live who we take care for the safety of. Secure the shelves in a more nails for shelf dropout prevention so as not to come off the shelves. (Same specifications)

Bathing-wash room

Bathing-wash room.  [Three-sided mirror with vanity (with fogging heater ※ With hand lighting)] It has adopted a three-sided mirror with vanity, which also includes a three-sided mirror under mirror tailored to the child's point of view. Ensure the storage rack on the back side of the three-sided mirror. You can organize clutter, such as skin care and hair care products.  ※ 85Ir, 105J, 105Jr, 100Kg, 100L, 100M, 100Mg, 100N, 110O, 130Pr, 130Qr, 120Rr type only.
[Three-sided mirror with vanity (with fogging heater ※ With hand lighting)] It has adopted a three-sided mirror with vanity, which also includes a three-sided mirror under mirror tailored to the child's point of view. Ensure the storage rack on the back side of the three-sided mirror. You can organize clutter, such as skin care and hair care products. ※ 85Ir, 105J, 105Jr, 100Kg, 100L, 100M, 100Mg, 100N, 110O, 130Pr, 130Qr, 120Rr type only.

Bathing-wash room.  [Mist sauna] Unlike dry sauna, Mist sauna is low temperature ・ Relax and you can enjoy without stuffy with high humidity. When you can not bathtub bathing, Even when you want to quickly bathing late at night or early in the morning, You can easily feel in a short period of time the warmth and relaxing effects, such as to realize in if mist bath tub bathing. further, Moisturizing skin, sweating, We can also expect effects such as promoting blood circulation.
[Mist sauna] Unlike dry sauna, Mist sauna is low temperature ・ Relax and you can enjoy without stuffy with high humidity. When you can not bathtub bathing, Even when you want to quickly bathing late at night or early in the morning, You can easily feel in a short period of time the warmth and relaxing effects, such as to realize in if mist bath tub bathing. further, Moisturizing skin, sweating, We can also expect effects such as promoting blood circulation.

Bathing-wash room.  [Eco function with hot water supply remote control] Equipped with the "eco-driving function" to the hot water supply remote control of the kitchen and bathroom. Hot water supply amount can be automatically adjusted with the push of a remote control of the eco-switch, Energy saving ・ Effectively it is to save. Also, TES heat source machine gas of the day that was used in (eco Jaws) ・ The amount of hot water, Estimated use fee, Also it comes with a "Enerukku function" that displays the amount of CO2 emissions. (Same specifications) ※ There is a possibility that thinning hot water and use the hot water in the "eco-driving function" 2 or more places to use the.
[Eco function with hot water supply remote control] Equipped with the "eco-driving function" to the hot water supply remote control of the kitchen and bathroom. Hot water supply amount can be automatically adjusted with the push of a remote control of the eco-switch, Energy saving ・ Effectively it is to save. Also, TES heat source machine gas of the day that was used in (eco Jaws) ・ The amount of hot water, Estimated use fee, Also it comes with a "Enerukku function" that displays the amount of CO2 emissions. (Same specifications) ※ There is a possibility that thinning hot water and use the hot water in the "eco-driving function" 2 or more places to use the.

Other

Other.  [Ceiling, cassette-type air conditioner] living ・ The dining, The ceiling cassette type air conditioner that can produce a clean space for the embedded type has been standard equipment. Because it also features dry function not only heating and cooling function, To achieve a comfortable environment through four seasons.  ※ 85Ir, 105J, 105Jr, 100Kg, 100L, 100M, 100Mg, 100N, 110O, 130Pr, 130Qr, 120Rr type only.
[Ceiling, cassette-type air conditioner] living ・ The dining, The ceiling cassette type air conditioner that can produce a clean space for the embedded type has been standard equipment. Because it also features dry function not only heating and cooling function, To achieve a comfortable environment through four seasons. ※ 85Ir, 105J, 105Jr, 100Kg, 100L, 100M, 100Mg, 100N, 110O, 130Pr, 130Qr, 120Rr type only.

Other.  [TES hot water floor heating] living ・ The dining, Adopt the TES hot water floor heating of Tokyo Gas. Warm comfortable room from the ground by using a hot water, It is a heating system to achieve a "Zukansokunetsu" which is said to be ideal. (Same specifications)
[TES hot water floor heating] living ・ The dining, Adopt the TES hot water floor heating of Tokyo Gas. Warm comfortable room from the ground by using a hot water, It is a heating system to achieve a "Zukansokunetsu" which is said to be ideal. (Same specifications)

Other. (Shared facilities ・ Common utility ・ Pet facility ・ Variety of services ・ Security ・ Earthquake countermeasures ・ Disaster-prevention measures ・ Building structure ・ Such as the characteristics of the building)
(Shared facilities ・ Common utility ・ Pet facility ・ Variety of services ・ Security ・ Earthquake countermeasures ・ Disaster-prevention measures ・ Building structure ・ Such as the characteristics of the building)

Security

Security.  [S-GUARD (Esugado)] A 24-hour online system, Central Security Patrols (Ltd.) (CSP) has led to the command center. Gas leak in each dwelling unit, Emergency button, Security sensors, and each dwelling unit, When the alarm by the fire in the common areas is transmitted, Central Security Patrols guards rushed to the scene of the (stock), Correspondence will be made, such as the required report. Also, Promptly conducted a field check guards of Central Security Patrols also in the case, which has received the abnormal signal of the common area facilities Co., Ltd., It will contribute to the rapid and appropriate response.
[S-GUARD (Esugado)] A 24-hour online system, Central Security Patrols (Ltd.) (CSP) has led to the command center. Gas leak in each dwelling unit, Emergency button, Security sensors, and each dwelling unit, When the alarm by the fire in the common areas is transmitted, Central Security Patrols guards rushed to the scene of the (stock), Correspondence will be made, such as the required report. Also, Promptly conducted a field check guards of Central Security Patrols also in the case, which has received the abnormal signal of the common area facilities Co., Ltd., It will contribute to the rapid and appropriate response.

Security.  [Double auto-lock system] To strengthen the intrusion measures of a suspicious person, It has adopted an auto-lock system is in two places on the approach of the main visitor.  Unlocking the auto-lock after confirming with audio and video a visitor who is in windbreak room by intercom with color monitor in the dwelling unit. Is the security system of the peace of mind that can be checked in a similar two-stage even further entrance hall. Also recording that you can also check the visitor at the time of your absence ・ Also it comes with recording function.
[Double auto-lock system] To strengthen the intrusion measures of a suspicious person, It has adopted an auto-lock system is in two places on the approach of the main visitor. Unlocking the auto-lock after confirming with audio and video a visitor who is in windbreak room by intercom with color monitor in the dwelling unit. Is the security system of the peace of mind that can be checked in a similar two-stage even further entrance hall. Also recording that you can also check the visitor at the time of your absence ・ Also it comes with recording function.

Security.  [Triple auto door] Kazejo room ・ Entrance hall ・ At the entrance of the first floor common corridor, Each was adopted auto door. Ya back and forth in a wheelchair, Way of holding a luggage can also be carried out smoothly.
[Triple auto door] Kazejo room ・ Entrance hall ・ At the entrance of the first floor common corridor, Each was adopted auto door. Ya back and forth in a wheelchair, Way of holding a luggage can also be carried out smoothly.

Security.  [Double Rock] Order to enhance crime prevention, Entrance door has a double lock specification that can be locked in the up and down two places. Because it takes also time trying to illegally unlocking, It has been with the attempted rate of crime increases. (Same specifications)
[Double Rock] Order to enhance crime prevention, Entrance door has a double lock specification that can be locked in the up and down two places. Because it takes also time trying to illegally unlocking, It has been with the attempted rate of crime increases. (Same specifications)

Security.  [Sickle dead bolt] Bar and plug in between the frame and the door, To deform the door and frame, As a countermeasure to the modus operandi of the pry to unlock and remove the dead bolt received, It has adopted a sickle dead bolt Seridasu sickle of the bracket and locking the key to the front door. (Same specifications)
[Sickle dead bolt] Bar and plug in between the frame and the door, To deform the door and frame, As a countermeasure to the modus operandi of the pry to unlock and remove the dead bolt received, It has adopted a sickle dead bolt Seridasu sickle of the bracket and locking the key to the front door. (Same specifications)

Security.  [Crime prevention thumb turn] Tool was adopted switched security thumb that corresponds to the incorrect tablet would turn the thumb placed on the inside of the door (the top one place). (Same specifications)
[Crime prevention thumb turn] Tool was adopted switched security thumb that corresponds to the incorrect tablet would turn the thumb placed on the inside of the door (the top one place). (Same specifications)

Security.  [Security sensors] Entrance door, Set up a crime prevention sensor to the dwelling unit of the window (except for the FIX window). When the opening crime prevention sensor is installed is opened while security set, Sensor reacts, It will sound the alarm in the dwelling units within the intercom master unit and the Genkanshi machine. (Same specifications)
[Security sensors] Entrance door, Set up a crime prevention sensor to the dwelling unit of the window (except for the FIX window). When the opening crime prevention sensor is installed is opened while security set, Sensor reacts, It will sound the alarm in the dwelling units within the intercom master unit and the Genkanshi machine. (Same specifications)

Security.  [Progressive cylinder key] Entrance key of the dwelling unit is, It has adopted a progressive cylinder key of the reversible type with enhanced response to the incorrect tablet, such as picking.
[Progressive cylinder key] Entrance key of the dwelling unit is, It has adopted a progressive cylinder key of the reversible type with enhanced response to the incorrect tablet, such as picking.

Features of the building

Features of the building.  [appearance] Adopt a heat-reflecting glass ※ By 1, It stands out even when viewed from a distance sparkle of glass, It claims the presence of the shine is built facing the main street. And bold black frame formed by the heavy tone of the tile, The rhythmic skyline by set-back, Sharp's facade design that tells a delicate look. Provided with the accent wall is on the lower part, It creates a soft modeling that further treat the planting, It also considered in harmony with the surrounding. (Rendering)
[appearance] Adopt a heat-reflecting glass ※ By 1, It stands out even when viewed from a distance sparkle of glass, It claims the presence of the shine is built facing the main street. And bold black frame formed by the heavy tone of the tile, The rhythmic skyline by set-back, Sharp's facade design that tells a delicate look. Provided with the accent wall is on the lower part, It creates a soft modeling that further treat the planting, It also considered in harmony with the surrounding. (Rendering)

Features of the building.  [entrance] The proud welcome entrance to those who are resident, Using the natural stone. The paste-like border of stone that was to keynote the black with a sharp image and foster a sense of quality, It has created a stately Mongamae. further, Draw a large eaves that take advantage of the white and black contrast, Carefree and beautiful horizontal line becomes bold accent to tighten the whole building, It engenders a graceful sense of unity to the entrance. (Rendering)
[entrance] The proud welcome entrance to those who are resident, Using the natural stone. The paste-like border of stone that was to keynote the black with a sharp image and foster a sense of quality, It has created a stately Mongamae. further, Draw a large eaves that take advantage of the white and black contrast, Carefree and beautiful horizontal line becomes bold accent to tighten the whole building, It engenders a graceful sense of unity to the entrance. (Rendering)

Features of the building.  [Entrance hall] The tiles on the floor natural stone tone, Adopted a profound sense of natural stone on the walls. Oriage ceiling coupled with, It is the entrance hall, which was wrapped in elegant atmosphere. In part of the wall it was accented with warmth by arranging the louver of Sulfur butterfly. By to contrast the natural texture to the majestic space, Space of human scale was born full of more elegant. (Rendering)
[Entrance hall] The tiles on the floor natural stone tone, Adopted a profound sense of natural stone on the walls. Oriage ceiling coupled with, It is the entrance hall, which was wrapped in elegant atmosphere. In part of the wall it was accented with warmth by arranging the louver of Sulfur butterfly. By to contrast the natural texture to the majestic space, Space of human scale was born full of more elegant. (Rendering)

Building structure

Building structure.  [Tokyo apartment environmental performance display]  ※ For more information see "Housing term large Dictionary"
[Tokyo apartment environmental performance display] ※ For more information see "Housing term large Dictionary"

Building structure.  [Pouring the 29 pieces of pile ※ Except a bicycle shelter] To making high (ground) strength building, It is important to support firmly the building in the pile to reach up to strong support layer. In the "Central Residence Gaien West Street", Underground about 17m ~ About 20m deeper, The N value of 50 or more of the firm ground we are supporting layer. In the (foundation piles) "Central Residence Gaien West Street", Cast-in-place concrete pile, Kui径 (shaft diameter) of about 1000mm ~ About 1700㎜ has devoted 29 This.
[Pouring the 29 pieces of pile ※ Except a bicycle shelter] To making high (ground) strength building, It is important to support firmly the building in the pile to reach up to strong support layer. In the "Central Residence Gaien West Street", Underground about 17m ~ About 20m deeper, The N value of 50 or more of the firm ground we are supporting layer. In the (foundation piles) "Central Residence Gaien West Street", Cast-in-place concrete pile, Kui径 (shaft diameter) of about 1000mm ~ About 1700㎜ has devoted 29 This.

Building structure.  [Double reinforcement] Rebar seismic wall, It has adopted a double reinforcement which arranged the rebar to double in the concrete. To ensure high earthquake resistance than compared to a single reinforcement.   ※ Low-rise building only.
[Double reinforcement] Rebar seismic wall, It has adopted a double reinforcement which arranged the rebar to double in the concrete. To ensure high earthquake resistance than compared to a single reinforcement. ※ Low-rise building only.

Building structure.  [Tosakaikabe] The Tosakaikabe between the part of the dwelling unit, And Reinforced Concrete, A thickness of about 180mm ~ About 230mm our basic. this is, With specifications that ensure the sound insulation grade Rr-50 more than the Japanese Industrial Standards stipulated, We consider the sound insulation of the Tonarito.  ※ Low-rise building only.  ※ There vinyl cross stuck part to some invisible wall.
[Tosakaikabe] The Tosakaikabe between the part of the dwelling unit, And Reinforced Concrete, A thickness of about 180mm ~ About 230mm our basic. this is, With specifications that ensure the sound insulation grade Rr-50 more than the Japanese Industrial Standards stipulated, We consider the sound insulation of the Tonarito. ※ Low-rise building only. ※ There vinyl cross stuck part to some invisible wall.

Building structure.  [Double-glazing] To opening, By providing an air layer between two sheets of glass, Adopt a multi-layered glass, which has also been observed energy-saving effect and exhibit high thermal insulation properties. Also it reduces the occurrence of condensation on the glass surface.
[Double-glazing] To opening, By providing an air layer between two sheets of glass, Adopt a multi-layered glass, which has also been observed energy-saving effect and exhibit high thermal insulation properties. Also it reduces the occurrence of condensation on the glass surface.

Other

Other.  [Delivery Box (with arrival display function)] The luggage that arrived at the time of going out, Others can be received at any time 24 hours, Shipping and cleaning request of home delivery products can be done. Also, Home delivery products shipping fee ・ You can also settle the cleaning fee with a credit card. You can see by the arrival display that you have arrived luggage in dwelling units within the intercom base unit. (Same specifications)
[Delivery Box (with arrival display function)] The luggage that arrived at the time of going out, Others can be received at any time 24 hours, Shipping and cleaning request of home delivery products can be done. Also, Home delivery products shipping fee ・ You can also settle the cleaning fee with a credit card. You can see by the arrival display that you have arrived luggage in dwelling units within the intercom base unit. (Same specifications)

Other.  [Disaster prevention equipment] In preparation for the emergency such as an earthquake, Align the disaster prevention equipment. Small loudspeaker to be used for initial assistance, Rescue tool set, Rescue rope, scoop, Features such as dust mask. Also, First-aid kit as life support equipment in the event of a disaster, Mobile phone charger ・ Flashlight function with a hand-cranked charging radio, We offer and emergency candles.  ※ The image is an example of the fixtures.
[Disaster prevention equipment] In preparation for the emergency such as an earthquake, Align the disaster prevention equipment. Small loudspeaker to be used for initial assistance, Rescue tool set, Rescue rope, scoop, Features such as dust mask. Also, First-aid kit as life support equipment in the event of a disaster, Mobile phone charger ・ Flashlight function with a hand-cranked charging radio, We offer and emergency candles. ※ The image is an example of the fixtures.

Surrounding environment

Surrounding environment. Shinjuku Gyoen (about 320m / 4-minute walk)
Shinjuku Gyoen (about 320m / 4-minute walk)

Surrounding environment. Akasaka patronized land (about 1.2km / Bike about 6 minutes)
Akasaka patronized land (about 1.2km / Bike about 6 minutes)

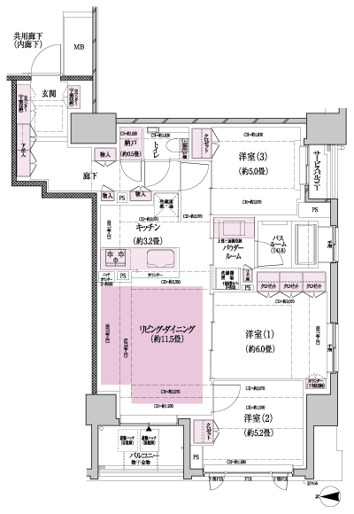
Floor: 3LD ・ K + N (storeroom), the occupied area: 75.67 sq m, Price: 74,800,000 yen, now on sale

Floor: 3LD ・ K + N (storeroom), the occupied area: 75.67 sq m, Price: 74,800,000 yen, now on sale
Floor: 3LD ・ K + N (storeroom), the occupied area: 75.67 sq m, Price: 74,800,000 yen, now on sale


Location