New Apartments » Kanto » Tokyo » Sumida


Property name
BRANZ (Brands) towing
Time residents
March 2014 in late schedule
Floor plan
3LDK
Units sold
3 units
Occupied area
65.52 sq m ~ 70.36 sq m
Address
Sumida-ku, Tokyo Kyojima 1-136-2
Traffic
Tokyo Metro Hanzomon "push-up" walk 10 minutes
Keisei Oshiage Line "Keisei towing" walk 4 minutes
Isesaki Tobu "towing" walk 6 minutes
Sale schedule
First-come-first-served basis application in the accepted time / Weekdays 10:00 AM ~ 6:00 PM Saturdays, Sundays, and holidays 10:00 AM ~ 7:00 PM location / <Brands towing> Mansion Gallery ※ When the application is seal and 2011 ・ 24 years' worth of income certificate, Identification (such as a driver's license) is required.
Completion date
February 2014 late schedule
Number of units
3 units
Price
40,900,000 yen ~ 42,700,000 yen
Administrative expense
11,800 yen ~ 12,700 yen / Month
Repair reserve
7730 yen ~ 8300 yen / Month
Repair reserve fund
431,600 yen ~ 463,500 yen (lump sum)
Other expenses
Internet flat rate: 1260 yen / Month, Optimistic cast fee: 420 yen / Month, Community formation expenses: 300 yen / Month
Other area
Balcony area: 6.21 sq m ~ 9.78 sq m
Property type
Mansion
Total units
91 units
Structure-storey
RC7 story
Construction area
1592.17 sq m
Building floor area
7868.92 sq m
Site area
2422.44 sq m
Site of the right form
Share of ownership
Use district
Commercial area, Neighborhood commercial district, Semi-industrial area
Parking lot
24 cars on-site (fee 22,000 yen ~ 23,000 yen / Month, Including one for Parking Disabled)
Bicycle-parking space
91 cars (200 yen fee ~ 400 yen / Month)
Bike shelter
Nothing
Mini bike shelter
10 cars (fee 2000 yen / Month)
Management form
Consignment (commuting)
Other overview
Building confirmation number: 24 Higashiboken 確第 0112 No. 1 (2013 January 16, 2008)
About us
<Seller> Minister of Land, Infrastructure and Transport (14) No. 45 (one company) Real Estate Association (Corporation) metropolitan area real estate Fair Trade Council member Tokyu Land Corporation 3965 Shibuya-ku, Tokyo Dogenzaka 1-21-2 <marketing alliance (agency)> Minister of Land, Infrastructure and Transport (10) No. 2611 (one company) Real Estate Association (One company) Property distribution management Association (Corporation) metropolitan area real estate Fair Trade Council member Tokyu Livable, Inc. 3965 Shibuya-ku, Tokyo Dogenzaka 1-2-2
Construction
HASEKO Corporation
Management
(Ltd.) Tokyu Community Corp.


Location concept illustrations
Location concept illustrations

Exterior CG  ※ Rendering of the web is one that caused draw based on the drawings, If a slightly different, Or there is a case to be changed.
Exterior CG ※ Rendering of the web is one that caused draw based on the drawings, If a slightly different, Or there is a case to be changed.

O type floor plan 3LDK+WIC+SIC  ■ Occupied area / 65.52 sq m   ■ Balcony area / 6.21 sq m
O type floor plan 3LDK+WIC+SIC ■ Occupied area / 65.52 sq m ■ Balcony area / 6.21 sq m

P type floor plan 3LDK+WIC  ■ Occupied area / 67.13 sq m (trunk room including area 2.13 sq m)  ■ Balcony area / 7.02 sq m
P type floor plan 3LDK+WIC ■ Occupied area / 67.13 sq m (trunk room including area 2.13 sq m) ■ Balcony area / 7.02 sq m

Living room Haisasshi of southwest surface enhances a sense of open ・ dining. You can use the adjacent of DEN Tomohito continued (outside the window vista photo was processed and taken in November 2012 than about than local 20m (7 floor or equivalent), In fact as the slightly different with views from the dwelling unit)
Living room Haisasshi of southwest surface enhances a sense of open ・ dining. You can use the adjacent of DEN Tomohito continued (outside the window vista photo was processed and taken in November 2012 than about than local 20m (7 floor or equivalent), In fact as the slightly different with views from the dwelling unit)

Living with depth ・ Dining, Taste is also a sense of unity with the face-to-face kitchen, It brings a lively family gatherings that conversation is not extinct
Living with depth ・ Dining, Taste is also a sense of unity with the face-to-face kitchen, It brings a lively family gatherings that conversation is not extinct

Full of clean face-to-face counter kitchen. Help the housework equipment also has been enhanced
Full of clean face-to-face counter kitchen. Help the housework equipment also has been enhanced

living ・ Dining DEN of adjacent, Or tell me the homework or read a book with their children, Space communication deepens
living ・ Dining DEN of adjacent, Or tell me the homework or read a book with their children, Space communication deepens

Western-style to ensure a 7.5-mat size and breadth of the room (1) is worthy of the master bedroom, Walk-in closet has also been installed
Western-style to ensure a 7.5-mat size and breadth of the room (1) is worthy of the master bedroom, Walk-in closet has also been installed

Footwear put the two series is up to the ceiling in height, Capacity plenty. Shimae family of shoes is sufficiently, You can organize the entrance
Footwear put the two series is up to the ceiling in height, Capacity plenty. Shimae family of shoes is sufficiently, You can organize the entrance

Walk-in closet, which is installed in a Western-style (1). Easily taken out because Seikatachi a, Sister easy to store
Walk-in closet, which is installed in a Western-style (1). Easily taken out because Seikatachi a, Sister easy to store

Trunk room provided facing the shared hallway. This is useful for storage of sports equipment and large luggage
Trunk room provided facing the shared hallway. This is useful for storage of sports equipment and large luggage

Water-saving tankless toilet of ECO6 that greatly reduces the amount of water used. It has also been installed hand-washing counter
Water-saving tankless toilet of ECO6 that greatly reduces the amount of water used. It has also been installed hand-washing counter

Directions to the model room (a word from the person in charge)
Directions to the model room (a word from the person in charge)

Mansion Gallery Isesaki Tobu (Tobu Sky Tree line) ・ 1-minute walk to the left out of the tobu kameido line "towing" station east exit wicket. TIMES has been provided in the coin parking. For more information, please refer to the local guide map to come out by clicking on the "view map" in the lower right. I sat in the apartment gallery ・ Available at seeing babysitter of day. Please feel free to visitors with children.
Mansion Gallery Isesaki Tobu (Tobu Sky Tree line) ・ 1-minute walk to the left out of the tobu kameido line "towing" station east exit wicket. TIMES has been provided in the coin parking. For more information, please refer to the local guide map to come out by clicking on the "view map" in the lower right. I sat in the apartment gallery ・ Available at seeing babysitter of day. Please feel free to visitors with children.

Living

Living.  [living ・ dining] In a space where light wrap, Flowing family time.  ※ Facilities photo posted below, Model Room G type menu plan, Some options (paid ・ Application deadline Yes) Includes.
[living ・ dining] In a space where light wrap, Flowing family time. ※ Facilities photo posted below, Model Room G type menu plan, Some options (paid ・ Application deadline Yes) Includes.

Living. living ・ dining
living ・ dining

Living. Bedroom
Bedroom

Kitchen

Kitchen.  [Water purifier integrated mixing faucet] Water purifier integrated mixing faucet clean water can be used at any time.  ※ It will be the shower switching function.
[Water purifier integrated mixing faucet] Water purifier integrated mixing faucet clean water can be used at any time. ※ It will be the shower switching function.

Kitchen.  [Silent type wide sink] Water has adopted a quiet specification wide sink to reduce the I sound.
[Silent type wide sink] Water has adopted a quiet specification wide sink to reduce the I sound.

Kitchen.  [Sliding cabinet] To be drawn, Soft-close function with cabinet close to the quiet.
[Sliding cabinet] To be drawn, Soft-close function with cabinet close to the quiet.

Kitchen.  [Non-filter range hood] Because the non-filter, Only oil dirt also wipe whip, You can easily clean.
[Non-filter range hood] Because the non-filter, Only oil dirt also wipe whip, You can easily clean.

Kitchen.  [Kitchen Panel] Only oil dirt also wipe whip, You can easily clean care.
[Kitchen Panel] Only oil dirt also wipe whip, You can easily clean care.

Kitchen.  [Glass top stove] Beautiful appearance, Adopt a strong glass top plate to the heat and dirt.
[Glass top stove] Beautiful appearance, Adopt a strong glass top plate to the heat and dirt.

Bathing-wash room

Bathing-wash room.  [Three-sided mirror] The three-sided mirror, It has adopted a large mirror to direct more widely beautiful wash room. You with a storage space on the back side.
[Three-sided mirror] The three-sided mirror, It has adopted a large mirror to direct more widely beautiful wash room. You with a storage space on the back side.

Bathing-wash room.  [Integrated Square bowl] Seamless to the top plate and bowl, Easily integrated counter of cleaning has been adopted.
[Integrated Square bowl] Seamless to the top plate and bowl, Easily integrated counter of cleaning has been adopted.

Bathing-wash room.  [Health meter space] At the bottom of the wash basin, Secure a space that is clean and matches such as health meter.
[Health meter space] At the bottom of the wash basin, Secure a space that is clean and matches such as health meter.

Bathing-wash room.  [Full Otobasu] Automatic hot water clad in one switch ・ Keep warm ・ Reheating ・ Adopt a full Otobasu system that hot water function with plus.
[Full Otobasu] Automatic hot water clad in one switch ・ Keep warm ・ Reheating ・ Adopt a full Otobasu system that hot water function with plus.

Bathing-wash room.  [Thermos bathtub] Achieve high thermal insulation performance hard to cool the hot water for a long time by the tub to double insulation structure, such as a "thermos".
[Thermos bathtub] Achieve high thermal insulation performance hard to cool the hot water for a long time by the tub to double insulation structure, such as a "thermos".

Bathing-wash room.  [Wonder beat click shower] In "Wonder beat" TOTO of their own to create a spiral of high-speed water discharge, Also relaxes tired of body. Equipped with a click waterproof function.
[Wonder beat click shower] In "Wonder beat" TOTO of their own to create a spiral of high-speed water discharge, Also relaxes tired of body. Equipped with a click waterproof function.

Bathing-wash room.  [Water-saving tankless toilet] ECO6 tankless toilet that greatly reduces the amount of water to be used in comparison with the INAX Corp. conventional. Cleaning is easy.
[Water-saving tankless toilet] ECO6 tankless toilet that greatly reduces the amount of water to be used in comparison with the INAX Corp. conventional. Cleaning is easy.

Bathing-wash room.  [Toilet in the restroom counter] Set up a counter for hand washing in the toilet. To produce a feeling of luxury.
[Toilet in the restroom counter] Set up a counter for hand washing in the toilet. To produce a feeling of luxury.

Other

Other.  [new ・ Mansion criteria "ecollaboration"] Adopt a new standard ecollaboration was to form a commitment to energy saving. It improved the hot water supply efficiency up to about 95% "Eco Jaws", Adopt a high heating efficiency TES floor heating system. We propose the ecological lifestyle that are friendly to environment.
[new ・ Mansion criteria "ecollaboration"] Adopt a new standard ecollaboration was to form a commitment to energy saving. It improved the hot water supply efficiency up to about 95% "Eco Jaws", Adopt a high heating efficiency TES floor heating system. We propose the ecological lifestyle that are friendly to environment.

Other.  [TES hot water floor heating] Not pollute the air, Difficult Standing dust by heating wind, Adopt a comfortable TES hot water floor heating in the clean. Warm the whole moderately in the radiant heat from the floor surface. (Same specifications)
[TES hot water floor heating] Not pollute the air, Difficult Standing dust by heating wind, Adopt a comfortable TES hot water floor heating in the clean. Warm the whole moderately in the radiant heat from the floor surface. (Same specifications)

Other.  [the internet] To be able to provide a comfortable and advanced life, Family net ・ We have introduced the Internet service of Japan.  ※ It does not guarantee the line speed.
[the internet] To be able to provide a comfortable and advanced life, Family net ・ We have introduced the Internet service of Japan. ※ It does not guarantee the line speed.

Security

Security.  [24-hour online security system] A 24-hour online security system by Tokyu community partnered with ALSOK. 24hours ・ 365 days is possible correspondence. Communal area is a fire alarm, In addition to the surveillance camera, Back up the safety in humans regime. At the time of any chance of abnormal development of proprietary part, A very alert and automatic transfer, Is ALSOK of security guards from the nearest of the waiting station to express.
[24-hour online security system] A 24-hour online security system by Tokyu community partnered with ALSOK. 24hours ・ 365 days is possible correspondence. Communal area is a fire alarm, In addition to the surveillance camera, Back up the safety in humans regime. At the time of any chance of abnormal development of proprietary part, A very alert and automatic transfer, Is ALSOK of security guards from the nearest of the waiting station to express.

Security.  [Security sensors] Entrance door of each dwelling unit ・ Installing the security sensors in the window. It will send an emergency signal to the security company and to sense an abnormal. (Less than, Amenities are all (same specifications)) ※ FIX unit and the surface lattice installation portion except
[Security sensors] Entrance door of each dwelling unit ・ Installing the security sensors in the window. It will send an emergency signal to the security company and to sense an abnormal. (Less than, Amenities are all (same specifications)) ※ FIX unit and the surface lattice installation portion except

Security.  [Louver surface lattice] Adopt the louver surface grid to prevent intruders from the window to the shared corridor side. Blindfold, Modulated light, The angle adjustment with the ability to exert an effect on ventilation.  ※ Except for some FIX unit, and the like
[Louver surface lattice] Adopt the louver surface grid to prevent intruders from the window to the shared corridor side. Blindfold, Modulated light, The angle adjustment with the ability to exert an effect on ventilation. ※ Except for some FIX unit, and the like

Security.  [Intercom with TV monitor] We established the TV monitor with intercom that can be found in color screen the visitor.
[Intercom with TV monitor] We established the TV monitor with intercom that can be found in color screen the visitor.

Security.  [Progressive cylinder] Dwelling unit entrance key, I have a theory on about 1,000 billion kinds of key pattern, Replication has adopted almost impossible progressive cylinder. (Conceptual diagram)
[Progressive cylinder] Dwelling unit entrance key, I have a theory on about 1,000 billion kinds of key pattern, Replication has adopted almost impossible progressive cylinder. (Conceptual diagram)

Security.  [surveillance camera] Installed security cameras in common areas. The camera of the video have been a period of time recorded in the recorder in the control room, Retroactively playback is possible.
[surveillance camera] Installed security cameras in common areas. The camera of the video have been a period of time recorded in the recorder in the control room, Retroactively playback is possible.

Earthquake ・ Disaster-prevention measures

earthquake ・ Disaster-prevention measures.  [Disaster prevention stockpile warehouse] Just in case of a disaster such as an earthquake, I placed the stockpile warehouse of disaster prevention for the shared space. (Same specifications) washing manhole toilet for major equipment disaster of disaster prevention stockpile warehouse, Gas generator, Radio Light Halogen floodlight, Insulation pliers, cutter, Packing tape, Tarpaulin, plywood, Hand megaphone, Handy stretcher, etc.
[Disaster prevention stockpile warehouse] Just in case of a disaster such as an earthquake, I placed the stockpile warehouse of disaster prevention for the shared space. (Same specifications) washing manhole toilet for major equipment disaster of disaster prevention stockpile warehouse, Gas generator, Radio Light Halogen floodlight, Insulation pliers, cutter, Packing tape, Tarpaulin, plywood, Hand megaphone, Handy stretcher, etc.

earthquake ・ Disaster-prevention measures.  [Elevator] Fire control operation and seismic sensor (P-wave ・ Equipped with a P-wave sensor), etc., Also provided in the event of a disaster. The main function of the elevator  ・ Power failure during the automatic landing system  ・ Nearest floor low-speed automatic landing operation  ・ Fire control operation
[Elevator] Fire control operation and seismic sensor (P-wave ・ Equipped with a P-wave sensor), etc., Also provided in the event of a disaster. The main function of the elevator ・ Power failure during the automatic landing system ・ Nearest floor low-speed automatic landing operation ・ Fire control operation

earthquake ・ Disaster-prevention measures.  [Seismic entrance door frame] With respect to the deformation of the door by the earthquake, Has adopted a seismic entrance door frame took moderately increasing the clearance of the door and the door frame.
[Seismic entrance door frame] With respect to the deformation of the door by the earthquake, Has adopted a seismic entrance door frame took moderately increasing the clearance of the door and the door frame.

Building structure

Building structure.  [Construction] 1. concrete slab and the floor ・ It has secured the space between the ceiling material. 2. was made to a maximum ceiling height of the room about 2450㎜. 3. to ensure concrete thickness of about 180㎜ (over) Tosakaikabe. It is a conscious structure to the sound insulation of living sound from the adjacent dwelling unit. 4. Tosakaikabe ・ RC walls of the dwelling unit outer wall, It is double reinforcement rebar. Nor increasing difficult durability happened cracking compared to a single reinforcement, Also we have gained strong structural strength.
[Construction] 1. concrete slab and the floor ・ It has secured the space between the ceiling material. 2. was made to a maximum ceiling height of the room about 2450㎜. 3. to ensure concrete thickness of about 180㎜ (over) Tosakaikabe. It is a conscious structure to the sound insulation of living sound from the adjacent dwelling unit. 4. Tosakaikabe ・ RC walls of the dwelling unit outer wall, It is double reinforcement rebar. Nor increasing difficult durability happened cracking compared to a single reinforcement, Also we have gained strong structural strength.

Building structure.  [Floor slab thickness (about 220㎜ ~ 220㎜)] The floor of the dwelling unit is, Concrete slab thickness of about 200 mm ~ It has secured a 220mm.  ※ Except the first floor floor
[Floor slab thickness (about 220㎜ ~ 220㎜)] The floor of the dwelling unit is, Concrete slab thickness of about 200 mm ~ It has secured a 220mm. ※ Except the first floor floor

Building structure.  [Pile foundation] Fundamental is at the bottom of the building, The weight of the building plays a role that is transmitted to the ground. Beat the pile until firm ground of the underground, Convey the weight of the building has adopted a "pile foundation".
[Pile foundation] Fundamental is at the bottom of the building, The weight of the building plays a role that is transmitted to the ground. Beat the pile until firm ground of the underground, Convey the weight of the building has adopted a "pile foundation".

Building structure.  [Concrete strength] Major structural design reference strength of concrete being used for (Article 2 of the Building Standards Law) is, About 27N / And m sq m or more, We have to ensure the durability.
[Concrete strength] Major structural design reference strength of concrete being used for (Article 2 of the Building Standards Law) is, About 27N / And m sq m or more, We have to ensure the durability.

Building structure.  [Welding closed shear reinforcement] The main structure in (Building Standards Law, Article 2) pillar of the (except underground beam inside of the pillars), Has adopted a welding closed high-performance shear reinforcement of welded seams as Obi muscle.
[Welding closed shear reinforcement] The main structure in (Building Standards Law, Article 2) pillar of the (except underground beam inside of the pillars), Has adopted a welding closed high-performance shear reinforcement of welded seams as Obi muscle.

Building structure.  [Double-glazing] An air layer is provided between the two glass, To suppress the heat conduction, Adopt a multi-layer glass to improve the heating and cooling effect. Also reduces the occurrence of condensation.
[Double-glazing] An air layer is provided between the two glass, To suppress the heat conduction, Adopt a multi-layer glass to improve the heating and cooling effect. Also reduces the occurrence of condensation.

Building structure.  [Tokyo apartment environmental performance display] Of Tokyo in was established in the "Ordinance on the environment to ensure the health and safety of citizens", "apartment environmental performance display system.", In the 'thermal insulation of the building, "" equipment of energy conservation. ", We have to get the stars 3 above the level of environmental considerations that laws and regulations seek.  ※ For more information see "Housing term large Dictionary"
[Tokyo apartment environmental performance display] Of Tokyo in was established in the "Ordinance on the environment to ensure the health and safety of citizens", "apartment environmental performance display system.", In the 'thermal insulation of the building, "" equipment of energy conservation. ", We have to get the stars 3 above the level of environmental considerations that laws and regulations seek. ※ For more information see "Housing term large Dictionary"

Building structure.  [Performance evaluation] It supports the housing performance evaluation by a third party that was registered to the Minister of Land, Infrastructure and Transport. In addition to the "design Housing Performance Evaluation Report" (already all houses acquisition), All houses to be acquired the "construction Housing Performance Evaluation Report". It is safe in terms of quality.  ※ For more information see "Housing term large Dictionary"
[Performance evaluation] It supports the housing performance evaluation by a third party that was registered to the Minister of Land, Infrastructure and Transport. In addition to the "design Housing Performance Evaluation Report" (already all houses acquisition), All houses to be acquired the "construction Housing Performance Evaluation Report". It is safe in terms of quality. ※ For more information see "Housing term large Dictionary"

Other

Other.  [Bulk receiving services] A high-voltage power that has been drawn into the apartment Haseko Anessis is contracted at once, Service is to supply electricity to every household. The monthly electric bill of a customer 5% discount. (Conceptual diagram) ※ It will be discounted from the metered electric light contract fee of TEPCO.  ■ No service 9,591 yen / Month,  ■ Service there is 9,111 yen / Month  ※ Than the above-mentioned amount of money the Ministry of Internal Affairs and Communications household survey report FY 2011 preliminary results, It quotes from two or more household electrical Daitsuki average amount.
[Bulk receiving services] A high-voltage power that has been drawn into the apartment Haseko Anessis is contracted at once, Service is to supply electricity to every household. The monthly electric bill of a customer 5% discount. (Conceptual diagram) ※ It will be discounted from the metered electric light contract fee of TEPCO. ■ No service 9,591 yen / Month, ■ Service there is 9,111 yen / Month ※ Than the above-mentioned amount of money the Ministry of Internal Affairs and Communications household survey report FY 2011 preliminary results, It quotes from two or more household electrical Daitsuki average amount.

Other.  [24-hour garbage can out] Regardless of the garbage collection day, It established a garbage station that can daily garbage disposal.
[24-hour garbage can out] Regardless of the garbage collection day, It established a garbage station that can daily garbage disposal.

Other.  [Pet breeding Allowed] Heals the mind, I could live happily and is a member of your family pet.  ※ There are restrictions and breeding regulations, such as size. For more information, please contact ※ Photo, Frog is an example of a pet.
[Pet breeding Allowed] Heals the mind, I could live happily and is a member of your family pet. ※ There are restrictions and breeding regulations, such as size. For more information, please contact ※ Photo, Frog is an example of a pet.

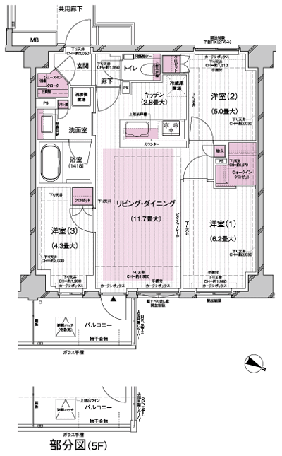
Floor: 3LDK + WIC, the occupied area: 70.36 sq m, Price: 41,700,000 yen, now on sale

Floor: 3LDK + WIC, the occupied area: 70.36 sq m, Price: 41,700,000 yen, now on sale
Floor: 3LDK + WIC, the occupied area: 70.36 sq m, Price: 41,700,000 yen, now on sale

Floor: 3LDK + WIC + SIC, the occupied area: 65.52 sq m, Price: 40,900,000 yen, now on sale

Floor: 3LDK + WIC + SIC, the occupied area: 65.52 sq m, Price: 40,900,000 yen, now on sale

Floor: 3LDK + WIC, the occupied area: 67.13 sq m, Price: 42,700,000 yen, now on sale

Floor: 3LDK + WIC, the occupied area: 67.13 sq m, Price: 42,700,000 yen, now on sale


Location