New Apartments » Kanto » Tokyo » Sumida


Property name
Al code towing Koh Kong
Time residents
May 2014 late schedule
Price
29,900,000 yen ~ 40,900,000 yen
Floor plan
2LDK + S (storeroom) ~ 4LDK
Units sold
3 units
Occupied area
65.84 sq m ~ 81.62 sq m
Address
Sumida-ku, Tokyo Yahiro 2-37
Traffic
Keisei Oshiage Line "Keisei towing" walk 11 minutes
Isesaki Tobu "towing" walk 16 minutes
Kameidosen Tobu "small Murai" walk 7 minutes
Sale schedule
First-come-first-served basis application being accepted <appointment> Hours / 10:00AM ~ 7:00 PM reception location / "Al Code towing Koh Kong" Mansion Gallery ※ When you sign up, Application money 100,000 yen, Seal (your private seal) ・ 2011, 24 years' worth of income certificate (withholding tax, etc.) ・ Identification card (driver's license ・ Please bring your health insurance card, etc.). ※ Application and you will your application a preliminary review of the mortgage at the same time. ※ Per first-come-first-served basis accepted, Dwelling unit of hope is there is a case of pre-conclusion of a contract. Please note. ※ For more details please contact "Al code towing Koh Kong" Mansion Gallery.
Completion date
April 2014 late schedule
Number of units
3 units
Administrative expense
8900 yen ~ 11,000 yen / Month
Management reserve
8900 yen ~ 11,000 yen (lump sum)
Repair reserve
4000 yen ~ 4900 yen / Month
Repair reserve fund
395,000 yen ~ 489,700 yen (lump sum)
Other expenses
C5 fee: 1575 yen / Month
Other area
Balcony area: 19.45 sq m , Private garden: 19.63 sq m ~ 24.17 sq m (use fee 400 yen ~ 500 yen / Month), Terrace: 9.19 sq m (use fee Mu), Outdoor unit yard area: 1.26 sq m ~ 1.74 sq m
Property type
Mansion
Total units
36 units
Structure-storey
RC6 story
Construction area
639.65 sq m
Building floor area
3160.59 sq m
Site area
988.02 sq m
Site of the right form
Share of ownership
Use district
Commercial area, Semi-industrial area
Parking lot
One site (fee 25,000 yen / Month, (Flat position), In addition to on-site flat postfix expression condominium parking (optional purchase) one (price: 3.9 million yen, Administrative expenses: 3300 yen / Month, Management reserve: 3300 yen / Lump-sum payment, Repair reserve: 1400 yen / Month, Repair reserve fund: 144,600 yen / Lump-sum payment, Area: 24.10 sq m))
Bicycle-parking space
72 cars (100 yen fee ・ 300 yen / Month)
Bike shelter
5 cars (fee 2000 yen ・ 3500 yen / Month)
Management form
Consignment (commuting)
Other overview
Building confirmation number: No. UHEC Ken確 25037,
※ 1 South-facing center ・ About 83%: all 36 Eucommia 30 units
※ 2 Corner dwelling unit rate ・ 50%: All 36 Eucommia 18 units
※ 3 Custom order system: free of charge, Application deadline There
Time required details
※ From Keisei Oshiage Line "Keisei towing" station, The push-up station ... Keisei Oshiage Line use Toei Asakusa Line Airport free special transfer at Asakusa Station ... Oshiage Station Akihabara Station ... Oshiage Station (Direct) Toei Asakusa free special use, JR at Asakusabashi Station Sobu Line Transfer Toei Asakusa Line Airport free special transfer at Ochanomizu Station ... Oshiage Station, Higashi-Nihonbashi Station / Toei Shinjuku Line transfer at Bakuroyokoyama, Ogawamachi Station / Tokyo Metro at Awajichō Station Marunouchi Line Transfer Yotsuya Station ... Oshiage Station (Direct) Toei Asakusa Line limited express use, JR at Asakusabashi Station Sobu Line Transfer, JR Chuo Line Rapid Transit at Ochanomizu Station Tokyo Metro Ginza Line transfer at Kanda Station ... Asakusa Station Tokyo Station ... Oshiage Station (Direct) Toei Asakusa Line Airport free special transfer, Higashi-Nihonbashi Station / JR at Bakurocho Station Sobu Line rapid transit Toei Asakusa Line Airport free special transfer at Ginza Station ... Oshiage Station, Transfer Tokyo Metro Ginza Line at Nihonbashi Station Tokyo Metro at Kinshicho Station ... Oshiage Station Hanzomon express transfer Toei Asakusa Line Airport free special transfer at Omotesando Station ... Oshiage Station, Transfer Tokyo Metro Ginza Line at Shinbashi Station Nihonbashi Station ・ Shinbashi Station ... Toei Asakusa Line power input direct
※ From Tobu Sky Tree Line "towing" station, Shinagawa Station ・ Tokyo Metro from Gotanda Station ... Tobu Sky Tree line use the push-up station Hanzomon NoIri, JR at Kinshicho Station Sobu Line Rapid Transit, JR Tokyo Station Yamanote Line Transfer Shibuya Station ... Tokyo Metro Hanzomon power input direct
About us
<Seller> Governor of Tokyo (4) No. 76220 (public corporation) All Japan Real Estate Association (Corporation) real estate guarantee Association (Corporation) metropolitan area real estate Fair Trade Council member, Inc. suggest Yubinbango150-0012 Shibuya-ku, Tokyo Hiroo 1-7-20 DOT
Construction
Tada Corporation (Corporation)
Management
(Ltd.) Leben Community


Buildings and facilities

Buildings and facilities. The outer wall tile of off-white to the base and accent the gray tile, Skillfully combined concrete Uchihanashi, Facade design elegance and modernism is finished in the impression that harmony.  ※ Exterior - Rendering
The outer wall tile of off-white to the base and accent the gray tile, Skillfully combined concrete Uchihanashi, Facade design elegance and modernism is finished in the impression that harmony. ※ Exterior - Rendering

Buildings and facilities. Mongamae by Torapachin and natural your Carved stone of natural stone full of texture, Glass auto door of sharp design. Wraps the carefully selected material with a soft indirect lighting, It was accompanied by a symbol tree. Gently insist on space configuration is high sophistication with a sense of depth and clarity that has been superimposed over and over again.  ※ Entrance Rendering
Mongamae by Torapachin and natural your Carved stone of natural stone full of texture, Glass auto door of sharp design. Wraps the carefully selected material with a soft indirect lighting, It was accompanied by a symbol tree. Gently insist on space configuration is high sophistication with a sense of depth and clarity that has been superimposed over and over again. ※ Entrance Rendering

Buildings and facilities. Depict in texture high material and bold layout, Preface to the peace. It is the entrance hall which is a combination of tasteful plaster painted by skilled craftsmen.  ※ Entrance Hall Rendering
Depict in texture high material and bold layout, Preface to the peace. It is the entrance hall which is a combination of tasteful plaster painted by skilled craftsmen. ※ Entrance Hall Rendering

Buildings and facilities. While leaving the taste, Location to start a new dynamism "towing area". Also Masu fun Me "Sumida River fireworks display" from the rooftop terrace.  ※ Exterior - Rendering Local rooftop (7th floor) fireworks to view photos from the corresponding (July 2013 shooting), Which was the appearance Rendering such as CG synthesis, In fact a slightly different.
While leaving the taste, Location to start a new dynamism "towing area". Also Masu fun Me "Sumida River fireworks display" from the rooftop terrace. ※ Exterior - Rendering Local rooftop (7th floor) fireworks to view photos from the corresponding (July 2013 shooting), Which was the appearance Rendering such as CG synthesis, In fact a slightly different.

Room and equipment

Room and equipment. Standard adopted diatomaceous earth wall in the living room and toilet. Diatomaceous earth color can be selected from six combination patterns.  ※ Which was the model room F type shooting a living (September 2013), Custom order system ( ※ 3) are included.
Standard adopted diatomaceous earth wall in the living room and toilet. Diatomaceous earth color can be selected from six combination patterns. ※ Which was the model room F type shooting a living (September 2013), Custom order system ( ※ 3) are included.

Room and equipment. According to the lifestyle, Choose freely ・ combine ・ Adopt a "custom order system" that can be changed. Plans and accent color and equipment, such as, It is possible to select at no charge in the sense, such as choose from a catalog, Facility ・ With respect to specifications, The one you like best from among the 30 items, 300,000 pt minutes free of charge in the possible selection. Also, Also available style planning of possible change paid more space to your specifications. It can make you just made-to-order space of (application deadline Yes).
According to the lifestyle, Choose freely ・ combine ・ Adopt a "custom order system" that can be changed. Plans and accent color and equipment, such as, It is possible to select at no charge in the sense, such as choose from a catalog, Facility ・ With respect to specifications, The one you like best from among the 30 items, 300,000 pt minutes free of charge in the possible selection. Also, Also available style planning of possible change paid more space to your specifications. It can make you just made-to-order space of (application deadline Yes).

Kitchen

Kitchen.  [Kitchen] The system kitchen, Built-in functional equipment. Also consideration to the storage, Depth wide for spacious cooking you can enjoy.  ※ Indoor Listings ・ Equipment photo was taken the model room F type (September 2013), It contains a custom order system.
[Kitchen] The system kitchen, Built-in functional equipment. Also consideration to the storage, Depth wide for spacious cooking you can enjoy. ※ Indoor Listings ・ Equipment photo was taken the model room F type (September 2013), It contains a custom order system.

Kitchen.  [Refrigerator on the storage rack] Installing the storage rack at the top of the refrigerator space. In looks stylish, This is useful as a storage space.
[Refrigerator on the storage rack] Installing the storage rack at the top of the refrigerator space. In looks stylish, This is useful as a storage space.

Kitchen.  [Kitchen pocket storage] Safety lock with a kitchen knife feed that effectively utilize the dead space. It is useful because it can retrieve the knife without bend down.
[Kitchen pocket storage] Safety lock with a kitchen knife feed that effectively utilize the dead space. It is useful because it can retrieve the knife without bend down.

Kitchen.  [Disposer (fully automatic water supply)] Garbage and finely ground in a sink drain outlet, As it is, It will flow to the waste water treatment tank. Also reduces unpleasant odor, The kitchen is at any time clean.
[Disposer (fully automatic water supply)] Garbage and finely ground in a sink drain outlet, As it is, It will flow to the waste water treatment tank. Also reduces unpleasant odor, The kitchen is at any time clean.

Kitchen.  [Dishwasher] Powerful in possible hot water wash, Dishwasher. Built-in type to produce a space to smart.
[Dishwasher] Powerful in possible hot water wash, Dishwasher. Built-in type to produce a space to smart.

Kitchen.  [Glass top stove (with grill)] Strongly to heat and oil stains, Care is also simple Germany, such as boiling over ・ Adopted Schott glass top. Also, Temperature control function stove ・ Set up a two-sided water without grill.
[Glass top stove (with grill)] Strongly to heat and oil stains, Care is also simple Germany, such as boiling over ・ Adopted Schott glass top. Also, Temperature control function stove ・ Set up a two-sided water without grill.

Bathing-wash room

Bathing-wash room.  [Bath Room] Graceful shape tub, Correspondence, such as to a variety of bathing style sitz bath and full bath. Otobasu ・ With bathroom ventilation dryer, Guests luxury comfortable every day of bus time.
[Bath Room] Graceful shape tub, Correspondence, such as to a variety of bathing style sitz bath and full bath. Otobasu ・ With bathroom ventilation dryer, Guests luxury comfortable every day of bus time.

Bathing-wash room.  [Powder Room] The base of the three-sided mirror is finished in design tile, Also adopted indirect lighting, We nestled into a space to spend the elegant temporary.
[Powder Room] The base of the three-sided mirror is finished in design tile, Also adopted indirect lighting, We nestled into a space to spend the elegant temporary.

Bathing-wash room.  [Design tile ・ With indirect lighting] Elegant tile to choose from six types that has been subjected to the base of the three-sided mirror, It will produce a stylish space that was effective accent.
[Design tile ・ With indirect lighting] Elegant tile to choose from six types that has been subjected to the base of the three-sided mirror, It will produce a stylish space that was effective accent.

Bathing-wash room.  [Basin front pocket storage] It has established a convenient pocket for storage, such as a fine make-up supplies to use at the time of the makeup.
[Basin front pocket storage] It has established a convenient pocket for storage, such as a fine make-up supplies to use at the time of the makeup.

Receipt

Receipt.  [Walk-in closet] In the space of large capacity, Walk-in closet that can be plenty of storage, including the variety of items the clothing.
[Walk-in closet] In the space of large capacity, Walk-in closet that can be plenty of storage, including the variety of items the clothing.

Receipt.  [Large storage] Is in a large storage are also installed electrical outlet, Charging is also possible, such as a cleaning robot or a rechargeable vacuum cleaner.
[Large storage] Is in a large storage are also installed electrical outlet, Charging is also possible, such as a cleaning robot or a rechargeable vacuum cleaner.

Receipt.  [niko Box] The entrance side "niko Box" is, It has secured a spacious space can be put away, such as the easy stroller and tricycle.
[niko Box] The entrance side "niko Box" is, It has secured a spacious space can be put away, such as the easy stroller and tricycle.

Receipt.  [niko Closet "Wardrobe wardrobe type"] Installing a closet with depth that can be put away well without waste efficiency. Tailored to the application, Three types (Standard Type ・ Wardrobe type ・ You can choose from the futon type).
[niko Closet "Wardrobe wardrobe type"] Installing a closet with depth that can be put away well without waste efficiency. Tailored to the application, Three types (Standard Type ・ Wardrobe type ・ You can choose from the futon type).

Receipt. niko Closet "Futon futon type"
niko Closet "Futon futon type"

Interior

Interior.  [Entrance Hall] The corridor of the floor from the front door, Adopt a luxurious tile stuck to the texture in the standard. Corridor of the floor tiles can be selected from six.
[Entrance Hall] The corridor of the floor from the front door, Adopt a luxurious tile stuck to the texture in the standard. Corridor of the floor tiles can be selected from six.

Other

Other.  [Hot water floor heating] living ・ The dining, Installing a floor heating to warm the feet. To suppress the dust you can keep clean.  ※ Same specifications
[Hot water floor heating] living ・ The dining, Installing a floor heating to warm the feet. To suppress the dust you can keep clean. ※ Same specifications

Other.  [Entrance Door] Entrance door and the original design intercom of a bright and classy wood grain is, It will produce the sophisticated space entrance in quality.
[Entrance Door] Entrance door and the original design intercom of a bright and classy wood grain is, It will produce the sophisticated space entrance in quality.

Other.  [Water-saving low tank toilet] Low silhouette does not go out of the tank gives plenty of room space at the top, Sophisticated shape of the water-saving toilets. Adopted by the standard lighting with top shelf cupboard illuminates the diatomaceous earth wall with texture.
[Water-saving low tank toilet] Low silhouette does not go out of the tank gives plenty of room space at the top, Sophisticated shape of the water-saving toilets. Adopted by the standard lighting with top shelf cupboard illuminates the diatomaceous earth wall with texture.

Security

Security.  [Non-touch key] And an IC chip is built in the head portion of the conventional key, Since the only possible unlocking bring the key, The elderly and children, You can also easily to unlock the disabled people of the body.  ※ Same specifications
[Non-touch key] And an IC chip is built in the head portion of the conventional key, Since the only possible unlocking bring the key, The elderly and children, You can also easily to unlock the disabled people of the body. ※ Same specifications

Security.  [Elevator in the security camera (with monitor)] Within the elevator, Adopt a super-wide-angle lens. Monitors in a wide range up to every corner.  ※ Same specifications
[Elevator in the security camera (with monitor)] Within the elevator, Adopt a super-wide-angle lens. Monitors in a wide range up to every corner. ※ Same specifications

Security.  [auto lock ・ Intercom ・ Elevator interlocking system] Use recognize key (non-contact key) who can is a system that was linked the elevator to the auto-lock system and intercom system that uses the. Not only the entrance door of the intrusion of non-parties, Limit the use of the elevator. auto lock ・ The intercom system, By interlocking the elevator function, It enhances the crime prevention.  ※ Conceptual diagram
[auto lock ・ Intercom ・ Elevator interlocking system] Use recognize key (non-contact key) who can is a system that was linked the elevator to the auto-lock system and intercom system that uses the. Not only the entrance door of the intrusion of non-parties, Limit the use of the elevator. auto lock ・ The intercom system, By interlocking the elevator function, It enhances the crime prevention. ※ Conceptual diagram

Security.  [24 hours online machine management system] fire ・ Plumbing installation ・ Elevator ・ An abnormal signal, such as an alarm in the dwelling unit (by design) 24 hours a day and machine management. We will deliver a high relief of guarded quality to 24-hour online security.  ※ Conceptual diagram
[24 hours online machine management system] fire ・ Plumbing installation ・ Elevator ・ An abnormal signal, such as an alarm in the dwelling unit (by design) 24 hours a day and machine management. We will deliver a high relief of guarded quality to 24-hour online security. ※ Conceptual diagram

Features of the building

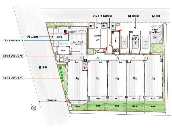
Features of the building.  [Site layout] (1) 2 places (windbreak room ・ Non-touch key system adopted in the EV Hall) (2) two-way contact road location (3) full Fusha isolation design (4) disaster prevention warehouse
[Site layout] (1) 2 places (windbreak room ・ Non-touch key system adopted in the EV Hall) (2) two-way contact road location (3) full Fusha isolation design (4) disaster prevention warehouse

Building structure

Building structure.  [Foundation] The results of geological surveys such as bowling, Check the silt mingled with fine sand layer that becomes a support ground in the basement about 32m. A diameter of about 500mm in the support layer ~ 25 This driving an off-the-shelf pile of about 800mm, Firmly attaches the support ground and buildings.
[Foundation] The results of geological surveys such as bowling, Check the silt mingled with fine sand layer that becomes a support ground in the basement about 32m. A diameter of about 500mm in the support layer ~ 25 This driving an off-the-shelf pile of about 800mm, Firmly attaches the support ground and buildings.

Building structure.  [water ・ Cement ratio of 50% or less] It is one of the indicators that affect the concrete strength, For the amount of cement in preparation, Is the weight ratio of the amount of water added. Higher proportion of water is less, Concrete becomes Mitsumi, Drying shrinkage will be less likely to occur to cause cracking, etc.. there, The water-cement ratio of 50% or less, To reduce the deterioration of the building.
[water ・ Cement ratio of 50% or less] It is one of the indicators that affect the concrete strength, For the amount of cement in preparation, Is the weight ratio of the amount of water added. Higher proportion of water is less, Concrete becomes Mitsumi, Drying shrinkage will be less likely to occur to cause cracking, etc.. there, The water-cement ratio of 50% or less, To reduce the deterioration of the building.

Building structure.  [Concrete of high strength] In "Al code towing Koh Kong", The strength of the concrete 30N / In m set to sq m (except for the part) This is withstand about 3000t ones compression in 1 sq m strength, We aim to about 100 years of durability in use limit the period in which the large-scale repair is required.  ※ Conceptual diagram
[Concrete of high strength] In "Al code towing Koh Kong", The strength of the concrete 30N / In m set to sq m (except for the part) This is withstand about 3000t ones compression in 1 sq m strength, We aim to about 100 years of durability in use limit the period in which the large-scale repair is required. ※ Conceptual diagram

Building structure.  [Double ceiling] Ceiling a double ceiling having a space between the concrete slabs, Piping ・ It is the construction of the wiring, etc.. It is correspondence easy structure for future maintenance and renovation.  ※ Conceptual diagram
[Double ceiling] Ceiling a double ceiling having a space between the concrete slabs, Piping ・ It is the construction of the wiring, etc.. It is correspondence easy structure for future maintenance and renovation. ※ Conceptual diagram

Building structure.  [Double floor] Adopt a double floor structure in which an air layer between the flooring surface and the concrete slab (about 180mm) surface. Sound insulation and heat retention, etc., We consider the variety of benefits.  ※ Conceptual diagram
[Double floor] Adopt a double floor structure in which an air layer between the flooring surface and the concrete slab (about 180mm) surface. Sound insulation and heat retention, etc., We consider the variety of benefits. ※ Conceptual diagram

Building structure.  [Double reinforcement] Rebar, such as a floor or Tosakaikabe is, Adopt a double reinforcement to partner the rebar to double in the process of assembling a rebar in a grid pattern. Compared to the single reinforcement (company ratio) to achieve high strength and durability.  ※ Conceptual view (balcony partition walls, Except for the pipe shaft)
[Double reinforcement] Rebar, such as a floor or Tosakaikabe is, Adopt a double reinforcement to partner the rebar to double in the process of assembling a rebar in a grid pattern. Compared to the single reinforcement (company ratio) to achieve high strength and durability. ※ Conceptual view (balcony partition walls, Except for the pipe shaft)

Building structure.  [Soundproofing] Sash, Adopt an excellent semi-air tight sash of sound insulation grade T-2 of the soundproof performance. If the external noise is 70db (decibels) (such as conversations and busy roads of loud), It is suppressed to 40db (decibels) (about tatami of the shuffle), To protect the quiet and calm life.  ※ Conceptual diagram (company ratio)
[Soundproofing] Sash, Adopt an excellent semi-air tight sash of sound insulation grade T-2 of the soundproof performance. If the external noise is 70db (decibels) (such as conversations and busy roads of loud), It is suppressed to 40db (decibels) (about tatami of the shuffle), To protect the quiet and calm life. ※ Conceptual diagram (company ratio)

Building structure.  [High-performance Low-E Peagurasu "Eco-glass"] Low-E glass was adopted, While having a high visible light transmittance, In addition to the high thermal insulation performance is Peagurasu which realized a high-performance thermal barrier performance.  ※ Conceptual diagram
[High-performance Low-E Peagurasu "Eco-glass"] Low-E glass was adopted, While having a high visible light transmittance, In addition to the high thermal insulation performance is Peagurasu which realized a high-performance thermal barrier performance. ※ Conceptual diagram

Building structure.  [Housing Performance Indication System] The third-party organization that has received the registration of the Minister of Land, Infrastructure and Transport, It is a system to perform the objective evaluation about the quality of the dwelling. "Al Code towing Koh Kong" is all households has been acquired in the design. Also, All houses is scheduled acquisition also for construction.  ※ For more information see "Housing term large Dictionary"
[Housing Performance Indication System] The third-party organization that has received the registration of the Minister of Land, Infrastructure and Transport, It is a system to perform the objective evaluation about the quality of the dwelling. "Al Code towing Koh Kong" is all households has been acquired in the design. Also, All houses is scheduled acquisition also for construction. ※ For more information see "Housing term large Dictionary"

Other

Other.  [NOTE indoor products] The pollen and the rainy season, The laundry Hoseru removable interior material interference is convenient in the room.  ※ Amenities (less than 3 points) is shooting a model room F type (September 2013).
[NOTE indoor products] The pollen and the rainy season, The laundry Hoseru removable interior material interference is convenient in the room. ※ Amenities (less than 3 points) is shooting a model room F type (September 2013).

Other.  [Balcony faucet] The balcony faucets come in handy, such as gardening or house of care has been standard adopted.
[Balcony faucet] The balcony faucets come in handy, such as gardening or house of care has been standard adopted.

Other.  [Balcony hook] On the balcony top, Mounting has established a capable hook of "green curtain" to reduce the increase in the temperature of the room to relieve the summer sun.
[Balcony hook] On the balcony top, Mounting has established a capable hook of "green curtain" to reduce the increase in the temperature of the room to relieve the summer sun.

Other.  [High-efficiency water heater eco Jaws] Effectively make the hot water and then re-use the exhaust heat at the time of gas burned in the secondary heat exchanger, It supports energy saving and cost saving.
[High-efficiency water heater eco Jaws] Effectively make the hot water and then re-use the exhaust heat at the time of gas burned in the secondary heat exchanger, It supports energy saving and cost saving.

Other.  [the internet] In "Al code towing Koh Kong", Easy to enjoy the Internet from the day care contract and settings you connect the unnecessary and net. Also, By retraction of the high-performance up to 1Gbps optical cable (Tonai the theoretical value up to 200Mbps), Also it has become the Internet environment of peace of mind the slowdown is not occur by using more than one at the same time. It is also a speedy downloads of video and music.  ※ It does not guarantee the line speed.
[the internet] In "Al code towing Koh Kong", Easy to enjoy the Internet from the day care contract and settings you connect the unnecessary and net. Also, By retraction of the high-performance up to 1Gbps optical cable (Tonai the theoretical value up to 200Mbps), Also it has become the Internet environment of peace of mind the slowdown is not occur by using more than one at the same time. It is also a speedy downloads of video and music. ※ It does not guarantee the line speed.

Other.  [Disaster prevention warehouse installation] It established a disaster prevention warehouse to prepare for any chance to the site of the earthquake in lessons. Latrines Ya, Emergency food ・ Including drinking water, Also it provides many of the fixtures of the peace of mind in an emergency. Also appointed prepare for disaster prevention in the "Al code towing Koh Kong".  ※ Same specifications
[Disaster prevention warehouse installation] It established a disaster prevention warehouse to prepare for any chance to the site of the earthquake in lessons. Latrines Ya, Emergency food ・ Including drinking water, Also it provides many of the fixtures of the peace of mind in an emergency. Also appointed prepare for disaster prevention in the "Al code towing Koh Kong". ※ Same specifications

Surrounding environment

Surrounding environment. Old Nakagawa waterfront park (about 660m ・ A 9-minute walk)
Old Nakagawa waterfront park (about 660m ・ A 9-minute walk)

Surrounding environment. Funahara park (about 50m ・ 1-minute walk)
Funahara park (about 50m ・ 1-minute walk)

Surrounding environment. Sumida Park (about 2.8km ・ 35-minute walk)
Sumida Park (about 2.8km ・ 35-minute walk)

Surrounding environment. Soramachi (about 1.6km ・ A 20-minute walk)
Soramachi (about 1.6km ・ A 20-minute walk)

Surrounding environment. Ito-Yokado towing shop (about 980m ・ Walk 13 minutes)
Ito-Yokado towing shop (about 980m ・ Walk 13 minutes)

Surrounding environment. Glitter Tachibana shopping street (about 340m ・ A 5-minute walk)
Glitter Tachibana shopping street (about 340m ・ A 5-minute walk)

Surrounding environment. Gourmet City Kyojima store (about 400m ・ A 5-minute walk)
Gourmet City Kyojima store (about 400m ・ A 5-minute walk)

Surrounding environment. Tokyo Saiseikai Mukojima hospital (about 920m ・ A 12-minute walk)
Tokyo Saiseikai Mukojima hospital (about 920m ・ A 12-minute walk)

Surrounding environment. Sumida Sports and Health Center (about 470m ・ 6-minute walk)
Sumida Sports and Health Center (about 470m ・ 6-minute walk)

Floor: 3LDK, occupied area: 78.11 sq m, Price: 42,300,000 yen, now on sale

Floor: 3LDK, occupied area: 78.11 sq m, Price: 42,300,000 yen, now on sale
Floor: 3LDK, occupied area: 78.11 sq m, Price: 42,300,000 yen, now on sale

Floor: 4LDK, occupied area: 83.42 sq m, Price: 43,800,000 yen, now on sale

Floor: 4LDK, occupied area: 83.42 sq m, Price: 43,800,000 yen, now on sale
Floor: 4LDK, occupied area: 83.42 sq m, Price: 43,800,000 yen, now on sale

Floor: 4LDK, occupied area: 81.62 sq m, Price: 45,300,000 yen, now on sale

Floor: 4LDK, occupied area: 81.62 sq m, Price: 45,300,000 yen, now on sale
Floor: 4LDK, occupied area: 81.62 sq m, Price: 45,300,000 yen, now on sale


Location