New Apartments » Kanto » Tokyo » Tachikawa


Property name
Proud Tachikawa Marks
Time residents
June 2015 in late schedule
Floor plan
2LDK ~ 3LDK
Units sold
Undecided
Occupied area
62.48 sq m ~ 75.62 sq m
Address
Tokyo Tachikawa Akebonocho 1-158-1
Traffic
JR Chuo Line "Tachikawa" walk 4 minutes
JR Nambu Line "Tachikawa" walk 4 minutes
Tama Monorail "Tachikawa north" walk 3 minutes
Sale schedule
Sales scheduled to start 2014 in late January ※ price ・ Units sold is undecided. For sale residential units of the second phase has not been finalized, Property data are inscribed thing of all sales target dwelling unit of the second phase later. Determination information will be explicit in the new sale advertising. Acts that lead to secure the contract or reservation of the application and the application order to sale can not be absolutely.
Completion date
Mid-May 2015
Number of units
Undecided
Predetermined price
Undecided
Will most price range
Undecided
Administrative expense
An unspecified amount
Management reserve
An unspecified amount
Repair reserve
An unspecified amount
Repair reserve fund
An unspecified amount
Other area
Balcony area: 10.24 sq m ~ 16.65 sq m
Property type
Mansion
Total units
68 units
Structure-storey
RC14 story
Construction area
728.13 sq m (building certification application area)
Building floor area
Including 6419.24 sq m (volume covered area 1056.58 sq m. Building certification application area)
Site area
1569.21 sq m , (Building certification subject area of ​​1604.78 sq m)
Site of the right form
Share of ownership
Use district
Neighborhood commercial district, Commercial area
Parking lot
32 units on-site (fee 21,000 yen ~ 28,000 yen / Month, Mechanical 30 cars, One flat., Handicapped priority flat. One)
Bicycle-parking space
110 cars (fee 300 yen / Month) (slide rack type)
Bike shelter
3 cars (fee 2000 yen / Month)
Mini bike shelter
3 cars (fee 1000 yen / Month)
Management form
Consignment (commuting)
Other overview
Building confirmation number: first UHEC Ken確 25187 strange No. 2 (2013 November 18) Other ※ There will in the future plan change application,
※ Tachikawa Station North west district first-class urban redevelopment project: 2016 fiscal year will be completed
About us
<Seller> Minister of Land, Infrastructure and Transport (12) No. 1370 (one company) Real Estate Association (Corporation) metropolitan area real estate Fair Trade Council member Nomura Real Estate Development Co., Ltd. Head Office / Yubinbango163-0566 Tokyo Nishi-Shinjuku, Shinjuku-ku, 1-26-2 Shinjuku Nomura Building
Construction
(Ltd.) Ando ・ During the Tokyo metropolitan area architecture first branch
Management
Nomura Living Support Co., Ltd. ※ Nomura Living Support Co., Ltd. is scheduled to merge with Nomura Building Management Co., Ltd. on April 1, 2014.


Proud Tachikawa Marks

Proud Tachikawa Marks. (living ・ kitchen ・ bath ・ bathroom ・ toilet ・ balcony ・ terrace ・ Private garden ・ Storage, etc.)
(living ・ kitchen ・ bath ・ bathroom ・ toilet ・ balcony ・ terrace ・ Private garden ・ Storage, etc.)

Tachikawa Station
Tachikawa Station

<Proud Tachikawa Marks> Local ・ Mansion gallery guide map
<Proud Tachikawa Marks> Local ・ Mansion gallery guide map

Entrance Hall Rendering
Entrance Hall Rendering

The inner corridor Rendering
The inner corridor Rendering

Living

Living.  [living ・ dining]  ※ Published photograph of the model room A1 type (Select Plan). Order Choice (paid) ・ Interior options (paid) are included. Order Choice ・ Interior options are subject dwelling unit ・ There is content to limit that can offer time and change. For more information, please contact an attendant.
[living ・ dining] ※ Published photograph of the model room A1 type (Select Plan). Order Choice (paid) ・ Interior options (paid) are included. Order Choice ・ Interior options are subject dwelling unit ・ There is content to limit that can offer time and change. For more information, please contact an attendant.

Living. living ・ dining
living ・ dining

Living. living ・ dining
living ・ dining

Kitchen

Kitchen. Kitchen
Kitchen

Kitchen.  [Disposer] Easy to handle the garbage to be worried about. Since the ground in a drainage port, It is possible to reduce the amount and time of garbage disposal.  ※ There is garbage and can not be used detergent can not be part of the process.
[Disposer] Easy to handle the garbage to be worried about. Since the ground in a drainage port, It is possible to reduce the amount and time of garbage disposal. ※ There is garbage and can not be used detergent can not be part of the process.

Kitchen.  [Dishwasher] You can save water compared to hand washing, Oil dirt clean, high-temperature cleaning. Type classification of the previous set in the smart car can also be comfortably.
[Dishwasher] You can save water compared to hand washing, Oil dirt clean, high-temperature cleaning. Type classification of the previous set in the smart car can also be comfortably.

Bathing-wash room

Bathing-wash room.  [Mist sauna "MiSTY"] Bathroom heating dryer with mist sauna function to support the health and beauty. It has a variety of functions that can be easily operated with a single button. (Same specifications)
[Mist sauna "MiSTY"] Bathroom heating dryer with mist sauna function to support the health and beauty. It has a variety of functions that can be easily operated with a single button. (Same specifications)

Bathing-wash room.  [Thermos bathtub] By covering the tub with a heat insulating material, A long time keep the water temperature. Such as reducing the number of add-fired, It enhances the energy-saving effect. (Conceptual diagram)
[Thermos bathtub] By covering the tub with a heat insulating material, A long time keep the water temperature. Such as reducing the number of add-fired, It enhances the energy-saving effect. (Conceptual diagram)

Bathing-wash room.  [Air-in shower] And large the particles of water by putting the air, Achieve a friendly bathed comfort. There are also about 35% of the water-saving effect. (Same specifications)
[Air-in shower] And large the particles of water by putting the air, Achieve a friendly bathed comfort. There are also about 35% of the water-saving effect. (Same specifications)

Bathing-wash room.  [Float line faucet (above the water discharge)] Eliminate the rising of the faucet water stain is anxious. Available from the top to not bend down because the water comes out, It is also possible to draw a head. (Same specifications)
[Float line faucet (above the water discharge)] Eliminate the rising of the faucet water stain is anxious. Available from the top to not bend down because the water comes out, It is also possible to draw a head. (Same specifications)

Bathing-wash room.  [Tankless shower toilet] Easy to clean with borderless shape, Powerful turning water flow is firmly flush the bowl surface, Also reduce the amount of water used.
[Tankless shower toilet] Easy to clean with borderless shape, Powerful turning water flow is firmly flush the bowl surface, Also reduce the amount of water used.

Other

Other.  [TES hot water floor heating] Warm evenly the whole room from feet, Living the floor heating, which were considered in the health ・ It has been adopted to dining. (Same specifications)
[TES hot water floor heating] Warm evenly the whole room from feet, Living the floor heating, which were considered in the health ・ It has been adopted to dining. (Same specifications)

Other.  [Security sensors] Entrance door ・ window( ※ Installed). And ringing the intercom inside the dwelling unit and sense at the time set, It will be automatically reported.  ※ FIX [Fixed glass ・ Except with no foothold window.
[Security sensors] Entrance door ・ window( ※ Installed). And ringing the intercom inside the dwelling unit and sense at the time set, It will be automatically reported. ※ FIX [Fixed glass ・ Except with no foothold window.

Other. (Shared facilities ・ Common utility ・ Pet facility ・ Variety of services ・ Security ・ Earthquake countermeasures ・ Disaster-prevention measures ・ Building structure ・ Such as the characteristics of the building)
(Shared facilities ・ Common utility ・ Pet facility ・ Variety of services ・ Security ・ Earthquake countermeasures ・ Disaster-prevention measures ・ Building structure ・ Such as the characteristics of the building)

Features of the building

Features of the building.  [Snuggle up to the dynamism of Tachikawa, Private residence of station 4 minutes walk] (Exterior - Rendering ※ Rendering is what drew based on the drawings of both the planning stage, In fact a slightly different. Also, It may be subject to change in the future. It should be noted, Details of appearance ・ Equipment ・ Piping, etc., it has some omitted or simplified. With regard to planting, Not a representation of the status of a particular season, It does not grow to about Rendering at the time of completion. Regarding tile and various member is, Thing and texture ・ There is a case where the appearance of such color is slightly different. )
[Snuggle up to the dynamism of Tachikawa, Private residence of station 4 minutes walk] (Exterior - Rendering ※ Rendering is what drew based on the drawings of both the planning stage, In fact a slightly different. Also, It may be subject to change in the future. It should be noted, Details of appearance ・ Equipment ・ Piping, etc., it has some omitted or simplified. With regard to planting, Not a representation of the status of a particular season, It does not grow to about Rendering at the time of completion. Regarding tile and various member is, Thing and texture ・ There is a case where the appearance of such color is slightly different. )

Features of the building.  [Led by corridor with depth, Entrance hall] (Entrance Hall Rendering)
[Led by corridor with depth, Entrance hall] (Entrance Hall Rendering)

Features of the building.  [The inner corridor design Produce a relaxing deep] It adopted an inner corridor design hotels like, Creating a quiet and pleasant building in an environment that does not feel the outside of the hustle and bustle. Because there is no window of the living room facing the shared hallway, Also increase the privacy of. (Inner corridor Rendering)
[The inner corridor design Produce a relaxing deep] It adopted an inner corridor design hotels like, Creating a quiet and pleasant building in an environment that does not feel the outside of the hustle and bustle. Because there is no window of the living room facing the shared hallway, Also increase the privacy of. (Inner corridor Rendering)

Features of the building.  [Openness and independence of "all mansion angle dwelling unit". Produce a relaxation deep the "inner corridor design"] The "Proud Tachikawa Marks" In all the mansion as a corner dwelling unit, Achieve openness and residence of the independence of the multifaceted opening. further, Hotel-like inner corridor will foster a deeply relaxing building environment. (Dwelling unit placement (standard floor) Illustration ※ It actual and may be slightly different in those drawn on the basis of the drawings of the planning stage. Also, It may be subject to change in the future. )
[Openness and independence of "all mansion angle dwelling unit". Produce a relaxation deep the "inner corridor design"] The "Proud Tachikawa Marks" In all the mansion as a corner dwelling unit, Achieve openness and residence of the independence of the multifaceted opening. further, Hotel-like inner corridor will foster a deeply relaxing building environment. (Dwelling unit placement (standard floor) Illustration ※ It actual and may be slightly different in those drawn on the basis of the drawings of the planning stage. Also, It may be subject to change in the future. )

Building structure

Building structure.  [Spread foundation] <Proud Tachikawa Marks> is, Situated in Musashino Plateau with a robust ground. Directly to this on the ground, Adopt a direct basis to build a foundation of reinforced concrete. Driving the pile into deep underground, Unlike the pile foundation to support the building at the point, It is a stable foundation structure in which the surface to support the building in under the floor. (Conceptual diagram)
[Spread foundation] <Proud Tachikawa Marks> is, Situated in Musashino Plateau with a robust ground. Directly to this on the ground, Adopt a direct basis to build a foundation of reinforced concrete. Driving the pile into deep underground, Unlike the pile foundation to support the building at the point, It is a stable foundation structure in which the surface to support the building in under the floor. (Conceptual diagram)

Building structure.  [Musashino Plateau] Musashino Plateau and is, North Arakawa, Diluvial plateau which is sandwiched between the south to the Tama River. In the Kanto loam layer stacked through the years more than 10,000 years on top of the gravel layer soil is deposited, It has formed a stable ground.
[Musashino Plateau] Musashino Plateau and is, North Arakawa, Diluvial plateau which is sandwiched between the south to the Tama River. In the Kanto loam layer stacked through the years more than 10,000 years on top of the gravel layer soil is deposited, It has formed a stable ground.

Building structure.  [Tokyo apartment environmental performance display] Based on the efforts of the building environment plan that building owners will be submitted to the Tokyo Metropolitan Government, 5 will be evaluated in three stages for items.  ※ For more information see "Housing term large Dictionary".
[Tokyo apartment environmental performance display] Based on the efforts of the building environment plan that building owners will be submitted to the Tokyo Metropolitan Government, 5 will be evaluated in three stages for items. ※ For more information see "Housing term large Dictionary".

Other

Other.  [Morning newspaper delivery service] It is a useful service to deliver the morning paper to the door of the dwelling unit.  ※ Depending on the type of the newspaper there is a thing that is not delivered to each dwelling unit. (Reference photograph)
[Morning newspaper delivery service] It is a useful service to deliver the morning paper to the door of the dwelling unit. ※ Depending on the type of the newspaper there is a thing that is not delivered to each dwelling unit. (Reference photograph)

Other.  [Home delivery locker] On the first floor is, Luggage of luggage, Received by the installation of the 24-hour courier locker. Especially useful tend to be home to the absence. You can conveniently operated by non-touch key. (Same specifications)
[Home delivery locker] On the first floor is, Luggage of luggage, Received by the installation of the 24-hour courier locker. Especially useful tend to be home to the absence. You can conveniently operated by non-touch key. (Same specifications)

Other.  [24 hours garbage station] On-site waste station with ventilation equipment and deodorizing equipment, 24 hours is at any time garbage disposal possible.  ※ Operational rules ・ There is a limit. (Conceptual diagram)
[24 hours garbage station] On-site waste station with ventilation equipment and deodorizing equipment, 24 hours is at any time garbage disposal possible. ※ Operational rules ・ There is a limit. (Conceptual diagram)

Other.  [Solar power system] Install the solar panels on the roof of the building. Generated by the light of the sun, Compensate for the power of lighting and outlet of the common areas, To help to reduce the CO2 reduction and running costs. (Same specifications)
[Solar power system] Install the solar panels on the roof of the building. Generated by the light of the sun, Compensate for the power of lighting and outlet of the common areas, To help to reduce the CO2 reduction and running costs. (Same specifications)

Surrounding environment

Surrounding environment. In the hands of the Tachikawa of charm to be dynamic, Also enjoyed calm recessed one step from the bustle in front of the station while station 4 minutes walk. (Posted aerial photograph of which was subjected to a CG process was taken in July 2013, You actual and slightly different. There is a possibility to change the environment, etc., It is not intended to be guaranteed over the future)
In the hands of the Tachikawa of charm to be dynamic, Also enjoyed calm recessed one step from the bustle in front of the station while station 4 minutes walk. (Posted aerial photograph of which was subjected to a CG process was taken in July 2013, You actual and slightly different. There is a possibility to change the environment, etc., It is not intended to be guaranteed over the future)

Surrounding environment. Tachikawa Isetan (about 250m ・ 4-minute walk)
Tachikawa Isetan (about 250m ・ 4-minute walk)

Surrounding environment. Tachikawa Takashimaya (about 370m ・ A 5-minute walk)
Tachikawa Takashimaya (about 370m ・ A 5-minute walk)

Surrounding environment. Loft (about 400m ・ A 5-minute walk)
Loft (about 400m ・ A 5-minute walk)

Surrounding environment. Cinema City (about 440m ・ 6-minute walk)
Cinema City (about 440m ・ 6-minute walk)

Surrounding environment. Showa Kinen Park (about 470m ・ 6-minute walk)
Showa Kinen Park (about 470m ・ 6-minute walk)

Surrounding environment. Showa Kinen Park (about 470m ・ 6-minute walk)
Showa Kinen Park (about 470m ・ 6-minute walk)

Surrounding environment. Showa Kinen Park (about 470m ・ 6-minute walk)
Showa Kinen Park (about 470m ・ 6-minute walk)

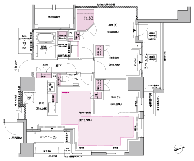
Floor: 3LDK + N + WIC + SIC, the occupied area: 74.47 sq m, Price: TBD

Floor: 3LDK + N + WIC + SIC, the occupied area: 74.47 sq m, Price: TBD
Floor: 3LDK + N + WIC + SIC, the occupied area: 74.47 sq m, Price: TBD

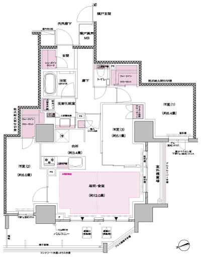
Floor: 3LDK + 2WIC + SIC, the occupied area: 75.41 sq m, Price: TBD

Floor: 3LDK + 2WIC + SIC, the occupied area: 75.41 sq m, Price: TBD
Floor: 3LDK + 2WIC + SIC, the occupied area: 75.41 sq m, Price: TBD

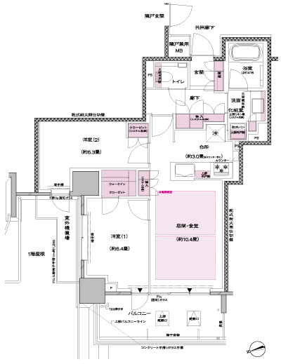
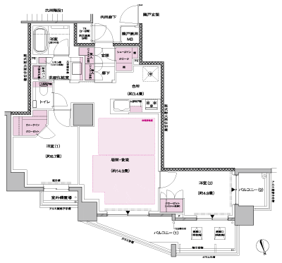
Floor: 2LDK + WIC + SIC, the occupied area: 64.81 sq m, Price: TBD

Floor: 2LDK + WIC + SIC, the occupied area: 64.81 sq m, Price: TBD
Floor: 2LDK + WIC + SIC, the occupied area: 64.81 sq m, Price: TBD

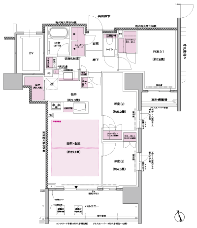
Floor: 3LDK + WIC, the occupied area: 73.01 sq m, Price: TBD

Floor: 3LDK + WIC, the occupied area: 73.01 sq m, Price: TBD
Floor: 3LDK + WIC, the occupied area: 73.01 sq m, Price: TBD

Floor: 2LDK + WIC, the occupied area: 62.48 sq m, Price: TBD

Floor: 2LDK + WIC, the occupied area: 62.48 sq m, Price: TBD
Floor: 2LDK + WIC, the occupied area: 62.48 sq m, Price: TBD


Location