New Apartments » Kanto » Tokyo » Toshima ward


Property name
Direct Tower Ikebukuro Kanamecho
Time residents
March 2015 in late schedule
Price
Undecided
Floor plan
1LDK ~ 2LDK + S (storeroom) ※ S = Service room (closet)
Units sold
Undecided
Occupied area
42.33 sq m ~ 67.58 sq m
Address
Toshima-ku, Tokyo Ikebukuro 3-13-2
Traffic
Tokyo Metro Yurakucho Line "Kanamecho" walk 1 minute
Tokyo Metro Marunouchi Line "Ikebukuro" walk 8 minutes
JR Yamanote Line "Ikebukuro" walk 13 minutes
Sale schedule
Sales scheduled to start 2014 mid-January ※ price ・ Units sold is undecided. For sale residential units of the second phase has not been finalized, Property data are inscribed thing of all sales target dwelling unit of the second phase later. Determination information will be explicit in the new sale advertising. ※ Acts that lead to secure the contract or reservation of the application and the application order to sale can not be absolutely.
Completion date
January 2015 early schedule
Number of units
Undecided
Predetermined price
Undecided
Will most price range
Undecided
Administrative expense
10,217 yen ~ 15,577 yen / Month
Management reserve
10,217 yen ~ 15,577 yen (lump sum)
Repair reserve
4530 yen ~ 7240 yen / Month
Repair reserve fund
272,000 yen ~ 434,200 yen (lump sum)
Other area
Balcony area: 2.94 sq m ~ 8.84 sq m , Trunk room: 0.68 sq m ~ Including the 0.7 sq m footprint
Property type
Mansion
Total units
91 units
Structure-storey
RC19 story
Construction area
412.26 sq m
Building floor area
6502.96 sq m (volume target area 5407.07 sq m)
Site area
902.17 sq m
Site of the right form
Share of ownership
Use district
Commercial area
Parking lot
22 cars on-site (fee 26,000 yen ~ 30,000 yen / Month, Rampant elevating 21 units ・ One for disabled guests)
Bicycle-parking space
91 cars (200 yen fee ・ 300 yen / Month) ※ Flat. 23 units ・ Two-stage 68 units
Bike shelter
Nothing
Mini bike shelter
2 cars (1,500 yen fee / Month)
Management form
Consignment (commuting)
Other overview
Building confirmation number: No. ERI13006454 (2013 March 1, 2008)
About us
<Seller> Minister of Land, Infrastructure and Transport (14) No. 38 (one company) Real Estate Association (Corporation) metropolitan area real estate Fair Trade Council member Sumitomo Realty & Development Co., Ltd. Yubinbango163-0820 Tokyo Nishi-Shinjuku, Shinjuku-ku, 2-4-1 (Shinjuku NS Building)
Construction
Nishimatsu Construction Co., Ltd.
Management
Sumitomo Realty & Development Building Service Co., Ltd.
Notice
There was less of an error at <apology and correction> December me to have been the same property ads up to 20 days. We will correct it apologize here.
(Positive) 2014 mid-January
(Mis) 2013 late December


Buildings and facilities

Buildings and facilities. Tokyo Metro Yurakucho Line ・ Fukutoshin line "Kanamecho" 1-minute walk to the station. Attractive start downtown station near life (Exterior view) ※ Which was raised to draw based on the drawings of the planning stage, In fact a slightly different. Also, We have omitted details and equipment, etc. of shape.  ※ It is easy to understand as the status of buildings and the like, Adjacent building ・ road ・ Have been drawn in perspective the Kanamecho station wall or the like of the underground. Surrounding environment might change in the future.
Tokyo Metro Yurakucho Line ・ Fukutoshin line "Kanamecho" 1-minute walk to the station. Attractive start downtown station near life (Exterior view) ※ Which was raised to draw based on the drawings of the planning stage, In fact a slightly different. Also, We have omitted details and equipment, etc. of shape. ※ It is easy to understand as the status of buildings and the like, Adjacent building ・ road ・ Have been drawn in perspective the Kanamecho station wall or the like of the underground. Surrounding environment might change in the future.

Surrounding environment

Surrounding environment. Station 1 minute walk (Exit 5 about 30m). Tokyo Metro Yurakucho Line ・ Fukutoshin line "Kanamecho" of no signal up to 5 Exit station flat sidewalk just 1 minute and straight, Station Tower Residence. While Big City Ikebukuro is within walking distance, TaniTadashi Kawaminami Midorido along the lush taste remain located in a peaceful residential area (location concept illustration) ※ It is a conceptual diagram for explaining the location status, Building location ・ height ・ distance ・ Scale, etc. is slightly different actual and.
Station 1 minute walk (Exit 5 about 30m). Tokyo Metro Yurakucho Line ・ Fukutoshin line "Kanamecho" of no signal up to 5 Exit station flat sidewalk just 1 minute and straight, Station Tower Residence. While Big City Ikebukuro is within walking distance, TaniTadashi Kawaminami Midorido along the lush taste remain located in a peaceful residential area (location concept illustration) ※ It is a conceptual diagram for explaining the location status, Building location ・ height ・ distance ・ Scale, etc. is slightly different actual and.

Surrounding environment. Tokyo Metro Fukutoshin ・ Yurakucho ・ Marunouchi Line. By using this Tokyo Metro 3 line, It is possible to direct access to the main area of ​​the city center, To enrich from the business to the private, Further to deepen the charm that live in Ikebukuro. (Subway system map) ※ During the time required during the day normal (in parentheses commuting time) it is a measure of, Slightly different by the time zone. Also, Latency ・ It does not include the transfer time.  ※ Some routes ・ It expressed an excerpt of the station, etc..
Tokyo Metro Fukutoshin ・ Yurakucho ・ Marunouchi Line. By using this Tokyo Metro 3 line, It is possible to direct access to the main area of ​​the city center, To enrich from the business to the private, Further to deepen the charm that live in Ikebukuro. (Subway system map) ※ During the time required during the day normal (in parentheses commuting time) it is a measure of, Slightly different by the time zone. Also, Latency ・ It does not include the transfer time. ※ Some routes ・ It expressed an excerpt of the station, etc..

Surrounding environment. Yurakucho ・ Fukutoshin line "Kanamecho" one stop one minute from the station to "Ikebukuro", Walk from local 8 minutes. It is a sphere of life "Ikebukuro" station west exit, Both areas of the east exit, Large-scale commercial facilities are integrated in Tokyo leading as a place of origin, such as fashion and gourmet. In addition to its surroundings, Many traditional shopping streets and supermarkets, etc., It feels familiar as the landscape to settle the local unique friendly atmosphere. (Ikebukuro area MAP) ※ Some of the following map 2-point road ・ Notation and excerpt the facilities, etc.. Minamiikebukuro chome A district first-class urban redevelopment project (FY 2015 development plan)
Yurakucho ・ Fukutoshin line "Kanamecho" one stop one minute from the station to "Ikebukuro", Walk from local 8 minutes. It is a sphere of life "Ikebukuro" station west exit, Both areas of the east exit, Large-scale commercial facilities are integrated in Tokyo leading as a place of origin, such as fashion and gourmet. In addition to its surroundings, Many traditional shopping streets and supermarkets, etc., It feels familiar as the landscape to settle the local unique friendly atmosphere. (Ikebukuro area MAP) ※ Some of the following map 2-point road ・ Notation and excerpt the facilities, etc.. Minamiikebukuro chome A district first-class urban redevelopment project (FY 2015 development plan)

Surrounding environment. Kanamecho area is surrounded by old-fashioned shopping district, Local landscape will eaves to hot a idyllic. Including the super of the 24-hour, Commercial convenience facilities are dotted with a large number of aligned everyday essentials, It supports the day-to-day life. further, Commitment gourmet facility is adorned with vivid everyday. Local neighborhood is blessed with green of moisture such as TaniTadashi Kawaminami green road and water park, While the walking distance of the Ikebukuro, This landscape will bring comfort and prosperity in mind. (Local guide map)
Kanamecho area is surrounded by old-fashioned shopping district, Local landscape will eaves to hot a idyllic. Including the super of the 24-hour, Commercial convenience facilities are dotted with a large number of aligned everyday essentials, It supports the day-to-day life. further, Commitment gourmet facility is adorned with vivid everyday. Local neighborhood is blessed with green of moisture such as TaniTadashi Kawaminami green road and water park, While the walking distance of the Ikebukuro, This landscape will bring comfort and prosperity in mind. (Local guide map)

Room and equipment

Room and equipment. Custom order condominiums to choose to suit your lifestyle
Custom order condominiums to choose to suit your lifestyle

Kitchen

Kitchen.  [Face-to-face flat counter] Kitchen has adopted a flat face-to-face counter. Since the difference in level and there is a wide depth of up to about 900mm without, It can smoothly without lifting also temporarily placed in front of the dish to serving, You can also enjoy dishes from the face-to-face side together. By not providing the hanging cupboard, Spread is bright and airy, You can also enjoy hearthstone of the family while the housework.
[Face-to-face flat counter] Kitchen has adopted a flat face-to-face counter. Since the difference in level and there is a wide depth of up to about 900mm without, It can smoothly without lifting also temporarily placed in front of the dish to serving, You can also enjoy dishes from the face-to-face side together. By not providing the hanging cupboard, Spread is bright and airy, You can also enjoy hearthstone of the family while the housework.

Kitchen.  [Schott glass top plate] Adopt a glass plate that are both beauty and durability. Not only beautiful, Difficult dirty luck, It is easy to clean.
[Schott glass top plate] Adopt a glass plate that are both beauty and durability. Not only beautiful, Difficult dirty luck, It is easy to clean.

Kitchen.  [Single lever shower faucet] Water flow in the lever operation one, Installing the temperature adjustable single-lever faucet. Since the pull out the shower head, It is also useful, such as sink cleaning. Also, It has a built-in water purification cartridge.  ※ Cartridge replacement costs will be separately paid.
[Single lever shower faucet] Water flow in the lever operation one, Installing the temperature adjustable single-lever faucet. Since the pull out the shower head, It is also useful, such as sink cleaning. Also, It has a built-in water purification cartridge. ※ Cartridge replacement costs will be separately paid.

Kitchen.  [Smart pocket (With Child Lock)] To sink before the panel portion, Kitchen knife is four Maeru pocket storage. Since frequently used kitchen knife is in the easily accessible location of the hand, And taken out smoothly and Hakadori is mise en place.  ※ 70A-1, 55-C type only.
[Smart pocket (With Child Lock)] To sink before the panel portion, Kitchen knife is four Maeru pocket storage. Since frequently used kitchen knife is in the easily accessible location of the hand, And taken out smoothly and Hakadori is mise en place. ※ 70A-1, 55-C type only.

Kitchen.  [Range food] To produce beautiful interior of the kitchen space, We have adopted a range hood of sharp Square design.
[Range food] To produce beautiful interior of the kitchen space, We have adopted a range hood of sharp Square design.

Kitchen.  [Seismic latch] The door of the kitchen of the hanging cupboard, It will open the door by the shaking of an earthquake, As storage material does not fall, Set up a seismic latch. Live We take care for the safety of the people. Secure the shelves in a more nails for shelf dropout prevention so as not to come off the shelves.
[Seismic latch] The door of the kitchen of the hanging cupboard, It will open the door by the shaking of an earthquake, As storage material does not fall, Set up a seismic latch. Live We take care for the safety of the people. Secure the shelves in a more nails for shelf dropout prevention so as not to come off the shelves.

Bathing-wash room

Bathing-wash room.  [Mist sauna] Unlike dry sauna, Mist sauna is low temperature ・ Relax and you can enjoy without stuffy with high humidity. When you can not bathtub bathing, Even when you want to quickly bathing late at night or early in the morning, You can easily feel in a short period of time the warmth and relaxing effects, such as to realize in if mist bath tub bathing. further, Moisturizing skin, sweating, We can also expect effects such as promoting blood circulation.
[Mist sauna] Unlike dry sauna, Mist sauna is low temperature ・ Relax and you can enjoy without stuffy with high humidity. When you can not bathtub bathing, Even when you want to quickly bathing late at night or early in the morning, You can easily feel in a short period of time the warmth and relaxing effects, such as to realize in if mist bath tub bathing. further, Moisturizing skin, sweating, We can also expect effects such as promoting blood circulation.

Bathing-wash room.  [Otobasu system (with remote control call function)] Hot water tension to the bathtub, Reheating, This is a system that can be automatically operated by a single switch to keep warm. Also, We can cross-talk in the controller was installed in the kitchen and bathroom.
[Otobasu system (with remote control call function)] Hot water tension to the bathtub, Reheating, This is a system that can be automatically operated by a single switch to keep warm. Also, We can cross-talk in the controller was installed in the kitchen and bathroom.

Bathing-wash room.  [Low-floor type unit bus] Suppress the straddle sales to bath to about 450mm, Steps of the entrance was also as much as possible resolved, It has adopted a unit bus of the low-floor design. further, Installing a handrail on the wall. Corresponding to the aging society can and out of the bathtub while caught in the handrail, Is a specification-friendly people. Since the tub edge is wide puts sitting at the time of bathing.
[Low-floor type unit bus] Suppress the straddle sales to bath to about 450mm, Steps of the entrance was also as much as possible resolved, It has adopted a unit bus of the low-floor design. further, Installing a handrail on the wall. Corresponding to the aging society can and out of the bathtub while caught in the handrail, Is a specification-friendly people. Since the tub edge is wide puts sitting at the time of bathing.

Bathing-wash room.  [TES-type bathroom heater dryer] TES-type bathroom heater dryer of Tokyo gas is ventilation in the bathroom, It reduces the occurrence of mold. further, It is also convenient to dry out the laundry on a rainy day in the drying function.
[TES-type bathroom heater dryer] TES-type bathroom heater dryer of Tokyo gas is ventilation in the bathroom, It reduces the occurrence of mold. further, It is also convenient to dry out the laundry on a rainy day in the drying function.

Bathing-wash room.  [Music remote control] When you connect a music player to the kitchen remote control, You can enjoy the music and audio programs in the bathroom. Flow from the bathroom remote favorite song as BGM, Relaxing bath time will heal the fatigue of the day.
[Music remote control] When you connect a music player to the kitchen remote control, You can enjoy the music and audio programs in the bathroom. Flow from the bathroom remote favorite song as BGM, Relaxing bath time will heal the fatigue of the day.

Bathing-wash room.  [Tankless toilet] Toilet, Adopted without a tank type. Since the toilet rear is space saving, To achieve a more uncluttered space. Use hot water shower comfortable, It is with advanced features that also performs automatic cleaning of the toilet in the non-touch by the seat sensor. In washing the amount of water used is small type, Water-saving is made to the reduction of CO2 emissions, Friendly specifications on the economic front.
[Tankless toilet] Toilet, Adopted without a tank type. Since the toilet rear is space saving, To achieve a more uncluttered space. Use hot water shower comfortable, It is with advanced features that also performs automatic cleaning of the toilet in the non-touch by the seat sensor. In washing the amount of water used is small type, Water-saving is made to the reduction of CO2 emissions, Friendly specifications on the economic front.

Bathing-wash room.  [Toilet with hand washing counter] The toilet, It has established a style of hand washing counter loaded with compact hand wash basin on top of the counter. I felt a wide and clear even to the eye, Easy-to-use design in a compact.
[Toilet with hand washing counter] The toilet, It has established a style of hand washing counter loaded with compact hand wash basin on top of the counter. I felt a wide and clear even to the eye, Easy-to-use design in a compact.

Bathing-wash room.  [Three-sided mirror with vanity (with hand lighting)] It has adopted a three-sided mirror with vanity, which also includes a three-sided mirror under mirror tailored to the child's point of view. Ensure the storage rack on the back side of the three-sided mirror. You can organize clutter, such as skin care and hair care products. Also storage rack is clean and maintain because it is clean and remove.
[Three-sided mirror with vanity (with hand lighting)] It has adopted a three-sided mirror with vanity, which also includes a three-sided mirror under mirror tailored to the child's point of view. Ensure the storage rack on the back side of the three-sided mirror. You can organize clutter, such as skin care and hair care products. Also storage rack is clean and maintain because it is clean and remove.

Bathing-wash room.  [Lavatory bowl] Counter and bowl in the integrally molded with no easy seam of care, Beautiful sheen of human artificial marble. A bowl of linear square form, It will produce the urban basin space.
[Lavatory bowl] Counter and bowl in the integrally molded with no easy seam of care, Beautiful sheen of human artificial marble. A bowl of linear square form, It will produce the urban basin space.

Receipt

Receipt.  [System storage] Closet of each room is, Shimae beautiful things that you want to storage, Easy to take out as placement. Tastes and lifestyle of the person you wish to use, It has adopted a system storage that can be added a part in the option (paid), depending on the room application.  ※ Except 40D-1 type.
[System storage] Closet of each room is, Shimae beautiful things that you want to storage, Easy to take out as placement. Tastes and lifestyle of the person you wish to use, It has adopted a system storage that can be added a part in the option (paid), depending on the room application. ※ Except 40D-1 type.

Receipt.  [Walk-in closet] Walk-in closet that can confirm the stored items at a glance is, Large-scale storage with the size of the room. In addition to the storage of a number of clothing, Drawers and chest to feet, You can put even shoe box.  ※ 60B-1, Except for the 55C-1 type.
[Walk-in closet] Walk-in closet that can confirm the stored items at a glance is, Large-scale storage with the size of the room. In addition to the storage of a number of clothing, Drawers and chest to feet, You can put even shoe box. ※ 60B-1, Except for the 55C-1 type.

Other

Other.  [TES hot water floor heating] living ・ The dining, Adopt the TES hot water floor heating of Tokyo Gas. Comfortable and warm the room from the ground by using a hot water, It is a heating system to achieve a "Zukansokunetsu" which is said to be ideal.
[TES hot water floor heating] living ・ The dining, Adopt the TES hot water floor heating of Tokyo Gas. Comfortable and warm the room from the ground by using a hot water, It is a heating system to achieve a "Zukansokunetsu" which is said to be ideal.

Other.  [Human sensor lighting] The entrance, And sensor detects when a person enters, Lighting is automatically turned on, It has adopted a human sensor lighting.
[Human sensor lighting] The entrance, And sensor detects when a person enters, Lighting is automatically turned on, It has adopted a human sensor lighting.

Other.  [Balcony waterproof outlet] Available at the time, such as a balcony of cleaning, It was equipped with a waterproof outlet. It is convenient to the specifications of the appliances on the balcony.  ※ Facilities are all the same specification.
[Balcony waterproof outlet] Available at the time, such as a balcony of cleaning, It was equipped with a waterproof outlet. It is convenient to the specifications of the appliances on the balcony. ※ Facilities are all the same specification.

Security

Security.  [S-GUARD (Esugado)] A 24-hour online system, Central Security Patrols (Ltd.) (CSP) has led to the command center. Gas leak in each dwelling unit, Emergency button, Security sensors and each dwelling unit, When the alarm by the fire in the common areas is transmitted, Central Security Patrols guards rushed to the scene of the (stock), Correspondence will be made, such as the required report. Also, Promptly conducted a field verification guards in case of receiving an abnormal signal of sharing unit facilities Central Security Patrols Co., Ltd., And contribute to the quick and polite deal.
[S-GUARD (Esugado)] A 24-hour online system, Central Security Patrols (Ltd.) (CSP) has led to the command center. Gas leak in each dwelling unit, Emergency button, Security sensors and each dwelling unit, When the alarm by the fire in the common areas is transmitted, Central Security Patrols guards rushed to the scene of the (stock), Correspondence will be made, such as the required report. Also, Promptly conducted a field verification guards in case of receiving an abnormal signal of sharing unit facilities Central Security Patrols Co., Ltd., And contribute to the quick and polite deal.

Security.  [Double auto-lock system] To strengthen the intrusion measures of a suspicious person, It has adopted an auto-lock system is in two places on the approach of the main visitor. Unlocking the auto-lock after confirming with audio and video a visitor who is in windbreak room by intercom with color monitor in the dwelling unit. Is the security system of the peace of mind that can be checked in a similar two-stage even further Hall. Also it comes with video recording also recording function that can also check visitors at the time of your absence.
[Double auto-lock system] To strengthen the intrusion measures of a suspicious person, It has adopted an auto-lock system is in two places on the approach of the main visitor. Unlocking the auto-lock after confirming with audio and video a visitor who is in windbreak room by intercom with color monitor in the dwelling unit. Is the security system of the peace of mind that can be checked in a similar two-stage even further Hall. Also it comes with video recording also recording function that can also check visitors at the time of your absence.

Security.  [Double Rock] Order to enhance crime prevention, Entrance door has a double lock specification that can be locked with two units at the top and bottom. Because it takes also time trying to unlock illegally, It has been with the attempted rate of crime increases.
[Double Rock] Order to enhance crime prevention, Entrance door has a double lock specification that can be locked with two units at the top and bottom. Because it takes also time trying to unlock illegally, It has been with the attempted rate of crime increases.

Security.  [Crime prevention thumb turn] Tool was adopted switched security thumb that corresponds to the incorrect tablet would turn the thumb placed on the inside of the door (the top one place).
[Crime prevention thumb turn] Tool was adopted switched security thumb that corresponds to the incorrect tablet would turn the thumb placed on the inside of the door (the top one place).

Security.  [Triple auto door] Kazejo room ・ hole ・ At the entrance of the entrance hall, Each was adopted auto door. Back and forth in a wheelchair Ya by adjusting the non-touch key of the auto-lock system, Way of holding a luggage can also be carried out smoothly.
[Triple auto door] Kazejo room ・ hole ・ At the entrance of the entrance hall, Each was adopted auto door. Back and forth in a wheelchair Ya by adjusting the non-touch key of the auto-lock system, Way of holding a luggage can also be carried out smoothly.

Security.  [Progressive cylinder key] Entrance key of the dwelling unit is, It has adopted a progressive cylinder key of the reversible type with enhanced response to the incorrect tablet, such as picking.
[Progressive cylinder key] Entrance key of the dwelling unit is, It has adopted a progressive cylinder key of the reversible type with enhanced response to the incorrect tablet, such as picking.

Features of the building

Features of the building.  [Exterior - Rendering]  ※ To building Rendering, CG synthesized view photos from the 19th floor of the building ・ In fact a slightly different is subjected to processing. Surrounding environment ・ View, etc. might change in the future.
[Exterior - Rendering] ※ To building Rendering, CG synthesized view photos from the 19th floor of the building ・ In fact a slightly different is subjected to processing. Surrounding environment ・ View, etc. might change in the future.

Features of the building.  [entrance] Tokyo Metro Yurakucho Line ・ Fukutoshin line than "Kanamecho" station Exit 5, Only 1 minute straight flat sidewalk without signal (about 30m). Also, Blocking the line of sight from the outside, Adopt a less susceptible to the inner corridor design the outside air of influence. It has extended the privacy of the people who live. (Rendering)
[entrance] Tokyo Metro Yurakucho Line ・ Fukutoshin line than "Kanamecho" station Exit 5, Only 1 minute straight flat sidewalk without signal (about 30m). Also, Blocking the line of sight from the outside, Adopt a less susceptible to the inner corridor design the outside air of influence. It has extended the privacy of the people who live. (Rendering)

Features of the building.  [Entrance hall] Open feeling with lots of glass, Materials and space beauty and attention to detail is proud of the height of the case as a Yingbin space. (Rendering)
[Entrance hall] Open feeling with lots of glass, Materials and space beauty and attention to detail is proud of the height of the case as a Yingbin space. (Rendering)

Features of the building. Site placement illustrations
Site placement illustrations

Features of the building.  [Direct Sky View] South has adopted a dynamic panoramic window with a window on one side from near the foot-to-ceiling near. From the upper part, You can enjoy the view overlooking the city center. And the overwhelming sense of openness to bring a sense of unity with the sky, You can enjoy even while sitting visibility is exceptionally dynamic views that spread to wide (Direct Sky View).  ※ 70A-1, 60B-1 type only
[Direct Sky View] South has adopted a dynamic panoramic window with a window on one side from near the foot-to-ceiling near. From the upper part, You can enjoy the view overlooking the city center. And the overwhelming sense of openness to bring a sense of unity with the sky, You can enjoy even while sitting visibility is exceptionally dynamic views that spread to wide (Direct Sky View). ※ 70A-1, 60B-1 type only

Building structure

Building structure.  [Pouring the 17 pieces of pile] To making high (ground) strength building, It is important to firmly support the building in a pile that reaches up to strong support layer. In the "direct Tower Kanamecho Ikebukuro", Underground about 37m ~ About 38m deeper, The N value of 50 or more of the firm ground we are supporting layer. In the (foundation piles) "direct Tower Kanamecho Ikebukuro", Precast concrete pile (pile diameter of about 900mm ~ About 1000mm) We have implanted the 17.
[Pouring the 17 pieces of pile] To making high (ground) strength building, It is important to firmly support the building in a pile that reaches up to strong support layer. In the "direct Tower Kanamecho Ikebukuro", Underground about 37m ~ About 38m deeper, The N value of 50 or more of the firm ground we are supporting layer. In the (foundation piles) "direct Tower Kanamecho Ikebukuro", Precast concrete pile (pile diameter of about 900mm ~ About 1000mm) We have implanted the 17.

Building structure.  [Welding closed girdle muscular] The main pillar portion was welded to the connecting portion of the band muscle, Adopted a welding closed girdle muscular. By ensuring stable strength by factory welding, To suppress the conceive out of the main reinforcement at the time of earthquake, It enhances the binding force of the concrete.
[Welding closed girdle muscular] The main pillar portion was welded to the connecting portion of the band muscle, Adopted a welding closed girdle muscular. By ensuring stable strength by factory welding, To suppress the conceive out of the main reinforcement at the time of earthquake, It enhances the binding force of the concrete.

Building structure.  [outer wall] Concrete thickness of the outer wall, About 150mm ~ To ensure about 200mm, By blowing insulation in the room side, Also with consideration to energy saving.
[outer wall] Concrete thickness of the outer wall, About 150mm ~ To ensure about 200mm, By blowing insulation in the room side, Also with consideration to energy saving.

Building structure.  [Tai Sin door frame] During the event of an earthquake, Also distorted frame of the entrance door, By providing increased clearance between the frame and the door, It was adopted Tai Sin door frame with consideration to allow the opening of the door to easy.
[Tai Sin door frame] During the event of an earthquake, Also distorted frame of the entrance door, By providing increased clearance between the frame and the door, It was adopted Tai Sin door frame with consideration to allow the opening of the door to easy.

Building structure.  [Floor slab thickness] As the weight floor impact sound measures, Concrete slab thickness between the dwelling unit upper and lower floors is to enhance the performance to ensure about 200mm.
[Floor slab thickness] As the weight floor impact sound measures, Concrete slab thickness between the dwelling unit upper and lower floors is to enhance the performance to ensure about 200mm.

Building structure.  [Tokyo apartment environmental performance display]  ※ For more information see "Housing term large Dictionary"
[Tokyo apartment environmental performance display] ※ For more information see "Housing term large Dictionary"

Other

Other.  [Garbage disposer] The garbage, This is a system that can be quickly crushed processing in the kitchen. Garbage that has been crushed by the disposer of each dwelling unit is, Since the waste water after purification by a dedicated wastewater treatment equipment, It can also reduce the load on the environment.  ※ There is also a thing that can not be part of the process.
[Garbage disposer] The garbage, This is a system that can be quickly crushed processing in the kitchen. Garbage that has been crushed by the disposer of each dwelling unit is, Since the waste water after purification by a dedicated wastewater treatment equipment, It can also reduce the load on the environment. ※ There is also a thing that can not be part of the process.

Other.  [Delivery Box (with arrival display function)] The luggage that arrived at the time of going out, Others can be received at any time 24 hours, Request of dispatch and cleaning of home delivery products can be done. Also, Courier shipping fee ・ You can also settle the cleaning fee with a credit card. You can see by the arrival display that you have arrived luggage in dwelling units within the intercom base unit.
[Delivery Box (with arrival display function)] The luggage that arrived at the time of going out, Others can be received at any time 24 hours, Request of dispatch and cleaning of home delivery products can be done. Also, Courier shipping fee ・ You can also settle the cleaning fee with a credit card. You can see by the arrival display that you have arrived luggage in dwelling units within the intercom base unit.

Surrounding environment

Surrounding environment. Maruetsu Ikebukuro (about 640m ・ 8 minutes), including the super of the 24-hour walk, Convenient facilities are aligned to the shopping of Kanamecho area everyday
Maruetsu Ikebukuro (about 640m ・ 8 minutes), including the super of the 24-hour walk, Convenient facilities are aligned to the shopping of Kanamecho area everyday

Surrounding environment. Isamiya Kanamecho shop (about 240m ・ Aligned abundance of fresh ingredients in a 3-minute) walk a 3-minute walk, It is super that will support the day-to-day life.
Isamiya Kanamecho shop (about 240m ・ Aligned abundance of fresh ingredients in a 3-minute) walk a 3-minute walk, It is super that will support the day-to-day life.

Surrounding environment. Ebisu shopping street (about 260m ・ 4 minutes) old-fashioned shopping street walk. Local surroundings, Individualistic shop of convenient shopping facilities and commitment to everyday use, Expressive mall, And to live more comfortable.
Ebisu shopping street (about 260m ・ 4 minutes) old-fashioned shopping street walk. Local surroundings, Individualistic shop of convenient shopping facilities and commitment to everyday use, Expressive mall, And to live more comfortable.

Surrounding environment. TaniTadashi Kawaminami green road adjacent (about 40m ・ Is right next to the 1-minute walk) property is perfect for green road for a walk. Both sides of the paved road is surrounded by green, You can explore the neighborhood while enjoying the seasonal flowers.
TaniTadashi Kawaminami green road adjacent (about 40m ・ Is right next to the 1-minute walk) property is perfect for green road for a walk. Both sides of the paved road is surrounded by green, You can explore the neighborhood while enjoying the seasonal flowers.

Surrounding environment. TaniTadashi river water park (about 80m ・ Walk in 1 minute) a sunny day, Hey want to walk green road or street, Peace of mind to the park to play with the dotted.
TaniTadashi river water park (about 80m ・ Walk in 1 minute) a sunny day, Hey want to walk green road or street, Peace of mind to the park to play with the dotted.

Surrounding environment. Nishi-Ikebukuro park (about 710m ・ Boasts the largest site area 9 minutes) Toshima walk "Nishi-Ikebukuro Park". Apart from the bustle of the commercial facility, There is also a lush one side is in Ikebukuro.
Nishi-Ikebukuro park (about 710m ・ Boasts the largest site area 9 minutes) Toshima walk "Nishi-Ikebukuro Park". Apart from the bustle of the commercial facility, There is also a lush one side is in Ikebukuro.

Surrounding environment. Municipal Takamatsu second nursery (about 410m ・ 6 mins) local surroundings, Including the nearest municipal Takamatsu second nursery, Kindergartens and nursery schools to attend to not cross the big street, Aligned also children's park, It is suitable for areas in child-rearing.
Municipal Takamatsu second nursery (about 410m ・ 6 mins) local surroundings, Including the nearest municipal Takamatsu second nursery, Kindergartens and nursery schools to attend to not cross the big street, Aligned also children's park, It is suitable for areas in child-rearing.

Surrounding environment. Photo Municipal Nishi-Ikebukuro second nursery (about 510m ・ 7 min walk) Other, Municipal Ikebukuro fifth nursery school (about 530m ・ 7-minute walk), Ikebukuro kindergarten (about 580m ・ An 8-minute walk), Kanamecho kindergarten (about 580m ・ An 8-minute walk), Children skip required (about 540m ・ 7 min walk ※ The school children), and the familiar.
Photo Municipal Nishi-Ikebukuro second nursery (about 510m ・ 7 min walk) Other, Municipal Ikebukuro fifth nursery school (about 530m ・ 7-minute walk), Ikebukuro kindergarten (about 580m ・ An 8-minute walk), Kanamecho kindergarten (about 580m ・ An 8-minute walk), Children skip required (about 540m ・ 7 min walk ※ The school children), and the familiar.

Surrounding environment. Seiwa dental Hirose clinics (about 30m ・ 1 minute walk), including the, There is a 2-minute walk Kanamecho hospital (about 90m ※ Internal medicine ・ Department of Gastroenterology ・ Cardiovascular department ・ Respiratory Medicine ・ neurology ・ Surgery ・ Urology ・ Plastic surgery ・ Orthopedics ・ Anesthesiology) Ya, Nerimasogobyoin other (about 2230m), Various medical institutions set peace of mind.
Seiwa dental Hirose clinics (about 30m ・ 1 minute walk), including the, There is a 2-minute walk Kanamecho hospital (about 90m ※ Internal medicine ・ Department of Gastroenterology ・ Cardiovascular department ・ Respiratory Medicine ・ neurology ・ Surgery ・ Urology ・ Plastic surgery ・ Orthopedics ・ Anesthesiology) Ya, Nerimasogobyoin other (about 2230m), Various medical institutions set peace of mind.

Surrounding environment. Ethics Ikebukuro (about 630m ・ Rather than an 8-minute walk), "Detour", "path". Upon exiting the Tokyo Metro Fukutoshin line "Ikebukuro" station, Colorful shops welcome of fun just walking Ethics. Make the accent on the way home shopping street that enhance the deli & Suites and fashion items are aligned until the "Ouchi".
Ethics Ikebukuro (about 630m ・ Rather than an 8-minute walk), "Detour", "path". Upon exiting the Tokyo Metro Fukutoshin line "Ikebukuro" station, Colorful shops welcome of fun just walking Ethics. Make the accent on the way home shopping street that enhance the deli & Suites and fashion items are aligned until the "Ouchi".

Surrounding environment. Tobu Department Store Ikebukuro (about 980m ・ Walk 13 minutes) restaurant district to the brand shop, Great Rooms, Suites and grocery Street underground. It Tachiyore feel free also on the way home.
Tobu Department Store Ikebukuro (about 980m ・ Walk 13 minutes) restaurant district to the brand shop, Great Rooms, Suites and grocery Street underground. It Tachiyore feel free also on the way home.

Surrounding environment. Seibu Ikebukuro (about 1690m ・ Walk 22 minutes ・ Bicycle about 9 minutes) In addition to the popular department store underground "Loft", It is rich in sales floor area of ​​"Muji", Daily necessities, Also attractive aligned take many household goods. Also of 9F rooftop green shop rose, Cactus, It boasts a lineup like bonsai.
Seibu Ikebukuro (about 1690m ・ Walk 22 minutes ・ Bicycle about 9 minutes) In addition to the popular department store underground "Loft", It is rich in sales floor area of ​​"Muji", Daily necessities, Also attractive aligned take many household goods. Also of 9F rooftop green shop rose, Cactus, It boasts a lineup like bonsai.

Surrounding environment. LUMINE Ikebukuro (about 1100m ・ Luminescence, which is supported from a wide range of age groups in a number of walk 14 minutes) variety of shops. High convenience by the station directly, You can stop by to feel free to school or after work.
LUMINE Ikebukuro (about 1100m ・ Luminescence, which is supported from a wide range of age groups in a number of walk 14 minutes) variety of shops. High convenience by the station directly, You can stop by to feel free to school or after work.

Surrounding environment. Tokyo Metropolitan Art Space (about 930m ・ City alive with art that are blessed to walk 12 minutes) artistic and cultural facilities, Ikebukuro. And art events are held regularly now, This is the area in which history has been passed down.
Tokyo Metropolitan Art Space (about 930m ・ City alive with art that are blessed to walk 12 minutes) artistic and cultural facilities, Ikebukuro. And art events are held regularly now, This is the area in which history has been passed down.

Surrounding environment. Sunshine City (about 2210m ・ Walk 28 minutes ・ Bicycle about 12 minutes) shopping and gourmet, of course, Attractions and Aquarium, Enjoy the planetarium, etc., It is also said commercial facilities and Ikebukuro symbol. It has been carried out at any time Event Planning, Attractions is plenty.
Sunshine City (about 2210m ・ Walk 28 minutes ・ Bicycle about 12 minutes) shopping and gourmet, of course, Attractions and Aquarium, Enjoy the planetarium, etc., It is also said commercial facilities and Ikebukuro symbol. It has been carried out at any time Event Planning, Attractions is plenty.

Other

Other. Aerial around local ※ Light, such as CG synthesis of the local portion from the Sunshine 60 was taken the west (November 2012) ・ In fact a somewhat different in that the processing. Also, Surrounding environment might change in the future.
Aerial around local ※ Light, such as CG synthesis of the local portion from the Sunshine 60 was taken the west (November 2012) ・ In fact a somewhat different in that the processing. Also, Surrounding environment might change in the future.

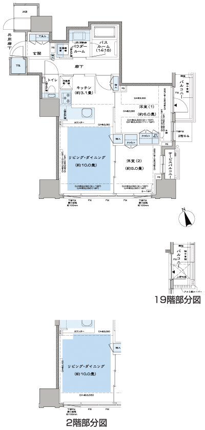
Floor: 2LD ・ K + S (service Room [Storeroom] ) + WIC (walk-in closet) + SIC (shoes closet), the occupied area: 67.58 sq m, Price: TBD

Floor: 2LD ・ K + S (service Room [Storeroom] ) + WIC (walk-in closet) + SIC (shoes closet), the occupied area: 67.58 sq m, Price: TBD
Floor: 2LD ・ K + S (service Room [Storeroom] ) + WIC (walk-in closet) + SIC (shoes closet), the occupied area: 67.58 sq m, Price: TBD

Floor: 2LD ・ K, the occupied area: 58.05 sq m, Price: TBD

Floor: 2LD ・ K, the occupied area: 58.05 sq m, Price: TBD
Floor: 2LD ・ K, the occupied area: 58.05 sq m, Price: TBD

Floor: 2LD ・ K + SIC (shoes closet), the occupied area: 54.53 sq m, Price: TBD

Floor: 2LD ・ K + SIC (shoes closet), the occupied area: 54.53 sq m, Price: TBD
Floor: 2LD ・ K + SIC (shoes closet), the occupied area: 54.53 sq m, Price: TBD

Floor: 1LD ・ K + WIC (walk-in closet) + SIC (shoes closet), the occupied area: 42.33 sq m, Price: TBD

Floor: 1LD ・ K + WIC (walk-in closet) + SIC (shoes closet), the occupied area: 42.33 sq m, Price: TBD
Floor: 1LD ・ K + WIC (walk-in closet) + SIC (shoes closet), the occupied area: 42.33 sq m, Price: TBD

Floor: 2LD ・ K + WIC (walk-in closet) + SIC (shoes closet), the occupied area: 57.54 sq m, Price: TBD

Floor: 2LD ・ K + WIC (walk-in closet) + SIC (shoes closet), the occupied area: 57.54 sq m, Price: TBD
Floor: 2LD ・ K + WIC (walk-in closet) + SIC (shoes closet), the occupied area: 57.54 sq m, Price: TBD


Location