Land/Building » Tokai » Aichi Prefecture » Miyoshi City


Aichi Prefecture, Miyoshi City
Meitetsu bus "Myochi opening" walk 12 minutes
Features pickup
Land 50 square meters or more / Or more before road 6m / Shaping land / City gas / Development subdivision in
Price
18,627,000 yen ~ 23,650,000 yen
Building coverage, floor area ratio
Kenpei rate: 60%, Volume ratio: 150%
Sales compartment
9 compartment
Total number of compartments
169 compartment
Land area
200.28 sq m ~ 227.09 sq m (60.58 tsubo ~ 68.69 square meters)
Driveway burden-road
Public road about 6m
Land situation
Vacant lot
Address
Aichi Prefecture, Miyoshi City Minamidai No. 4
Traffic
Meitetsu bus "Myochi opening" walk 12 minutes Mikawa Meitetsu "Dobashi" car 6.4km
Related links
[Related Sites of this company]
Contact
Toyota Home Aichi Co., Ltd. Sales Promotion Department condominium group ・ Real Estate Group TEL: 0800-603-1846 [Toll free] mobile phone ・ Also available from PHS
Caller ID is not notified
Please contact the "saw SUUMO (Sumo)"
If it does not lead, If the real estate company
Expenses
Other expenses: centralized Septic 2000 yen (per month), Water contribution 105000 yen (tax included) and construction costs separately required
Land of the right form
Ownership
Building condition
With
Time delivery
Consultation
Land category
Residential land
Use district
Urbanization control area
Other limitations
Minamidai district plan, Setback 1.0m, Height limit 10m, Area limit 200 sq m
Overview and notices
Facilities: Public Water Supply, Centralized septic tank, City gas, Building Permits reason: land sale by the development permit, etc., Development permit number: 23 NishiKendai Nos. 44-66
Company profile
<Marketing alliance (agency)> Governor of Aichi Prefecture (7) No. 014146 Toyota Home Aichi Co., Ltd. Sales Promotion Department condominium group ・ Real estate group Yubinbango461-0001 Nagoya, Aichi Prefecture, Higashi-ku, Izumi 1-23-22


Local land photo

Local land photo. Local (July 2013) Shooting
Local (July 2013) Shooting

Local land photo. Local (July 2013) Shooting
Local (July 2013) Shooting

The entire compartment Figure

The entire compartment Figure. Compartment figure
Compartment figure

Building plan example (Perth ・ appearance)

Building plan example (Perth ・ appearance). Building plan example (A-21 No. land)
Building plan example (A-21 No. land)

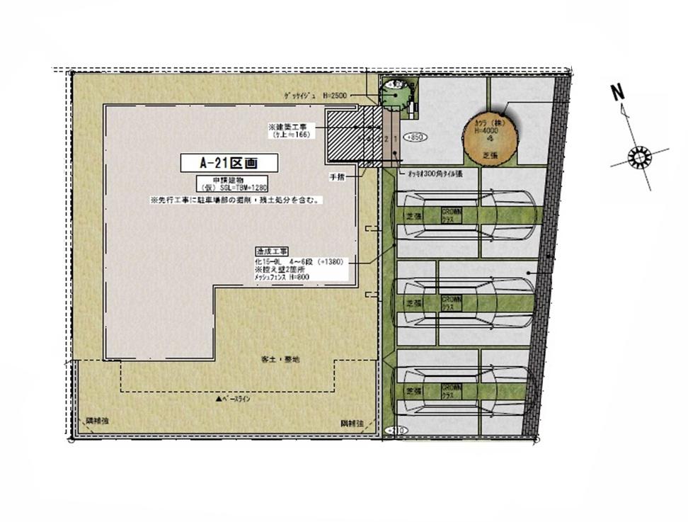
Other building plan example

Other building plan example. Building arrangement example (A-21 No. land)
Building arrangement example (A-21 No. land)



Location