|
|
Chiba Prefecture Chosei-gun, Ichinomiya-machi
千葉県長生郡一宮町
|
|
JR Sotobo "Kazusa Ichinomiya" car 1.4km
JR外房線「上総一ノ宮」車1.4km
|
|
Land 50 square meters or more, Shaping land, It is close to the city, Vacant lot passes, Immediate delivery Allowed, Within 2km to the sea, Yang per good, Around traffic fewer, No construction conditions, Mu front building, Flat terrain, Development subdivision in
土地50坪以上、整形地、市街地が近い、更地渡し、即引渡し可、海まで2km以内、陽当り良好、周辺交通量少なめ、建築条件なし、前面棟無、平坦地、開発分譲地内
|
|
Land 50 square meters or more, Shaping land, It is close to the city, Vacant lot passes, Immediate delivery Allowed, Within 2km to the sea, Yang per good, Around traffic fewer, No construction conditions, Mu front building, Flat terrain, Development subdivision in
土地50坪以上、整形地、市街地が近い、更地渡し、即引渡し可、海まで2km以内、陽当り良好、周辺交通量少なめ、建築条件なし、前面棟無、平坦地、開発分譲地内
|
Features pickup 特徴ピックアップ | | Land 50 square meters or more / Vacant lot passes / Immediate delivery Allowed / It is close to the city / Within 2km to the sea / Yang per good / Around traffic fewer / Shaping land / No construction conditions / Mu front building / Flat terrain / Development subdivision in 土地50坪以上 /更地渡し /即引渡し可 /市街地が近い /海まで2km以内 /陽当り良好 /周辺交通量少なめ /整形地 /建築条件なし /前面棟無 /平坦地 /開発分譲地内 |
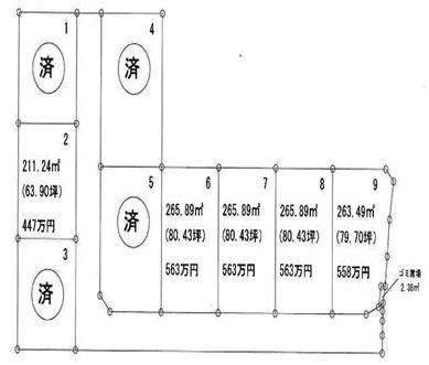
Price 価格 | | 4.47 million yen 447万円 |
Building coverage, floor area ratio 建ぺい率・容積率 | | 60% ・ 200% 60%・200% |
Sales compartment 販売区画数 | | 1 compartment 1区画 |
Total number of compartments 総区画数 | | 9 compartment 9区画 |
Land area 土地面積 | | 211.24 sq m (measured) 211.24m2(実測) |
Driveway burden-road 私道負担・道路 | | Nothing 無 |
Land situation 土地状況 | | Vacant lot 更地 |
Address 住所 | | Chiba Prefecture Chosei-gun, Ichinomiya-machi Sendokyu 千葉県長生郡一宮町船頭給 |
Traffic 交通 | | JR Sotobo "Kazusa Ichinomiya" car 1.4km JR外房線「上総一ノ宮」車1.4km
|
Contact お問い合せ先 | | (Ltd.) ShinKiyoshi Heights TEL: 0800-603-1894 [Toll free] mobile phone ・ Also available from PHS Caller ID is not notified Please contact the "saw SUUMO (Sumo)" If it does not lead, If the real estate company (株)新清ハイツTEL:0800-603-1894【通話料無料】携帯電話・PHSからもご利用いただけます 発信者番号は通知されません 「SUUMO(スーモ)を見た」と問い合わせください つながらない方、不動産会社の方は
|
Expenses 諸費用 | | Hot Springs: Hot Springs right gold Mu 温泉:温泉権利金無 |
Land of the right form 土地の権利形態 | | Ownership 所有権 |
Time delivery 引き渡し時期 | | Immediate delivery allowed 即引渡し可 |
Land category 地目 | | Hybrid land 雑種地 |
Use district 用途地域 | | Unspecified 無指定 |
Company profile 会社概要 | | <Seller> Governor of Chiba Prefecture (3) No. 013042 (Ltd.) ShinKiyoshi Heights Yubinbango298-0124 Chiba Prefecture Isumi Yamasa 267-4 <売主>千葉県知事(3)第013042号(株)新清ハイツ〒298-0124 千葉県いすみ市弥正267-4 |