|
|
Funabashi, Chiba Prefecture
千葉県船橋市
|
|
Shinkeiseisen "Misaki" walk 25 minutes
新京成線「三咲」歩25分
|
|
◇ No construction conditions. Please your favorite House manufacturer
◇建築条件なし。お好きなハウスメーカーでどうぞ
|
|
◇ because there is no east side building, Per day good ◇ hill, View good ◇ quiet residential area
◇東側建物ない為、日当り良好◇高台に付き、眺望良好◇閑静な住宅地
|
Features pickup 特徴ピックアップ | | Immediate delivery Allowed / Around traffic fewer / Located on a hill / Building plan example there 即引渡し可 /周辺交通量少なめ /高台に立地 /建物プラン例有り |
Price 価格 | | 5 million yen 500万円 |
Building coverage, floor area ratio 建ぺい率・容積率 | | Fifty percent ・ Hundred percent 50%・100% |
Sales compartment 販売区画数 | | 1 compartment 1区画 |
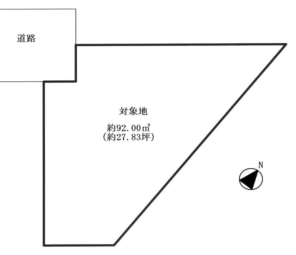
Land area 土地面積 | | 94.54 sq m (registration), Alley-like portion: 4 sq m including 94.54m2(登記)、路地状部分:4m2含 |
Driveway burden-road 私道負担・道路 | | 4 sq m , West 4m width (contact the road width 4m) 4m2、西4m幅(接道幅4m) |
Land situation 土地状況 | | Furuya There 古家有り |
Address 住所 | | Funabashi, Chiba Prefecture Oanakita 4 千葉県船橋市大穴北4 |
Traffic 交通 | | Shinkeiseisen "Misaki" walk 25 minutes Shinkeiseisen "Misaki" bus 6 minutes Oana walk 4 minutes 新京成線「三咲」歩25分 新京成線「三咲」バス6分大穴歩4分
|
Person in charge 担当者より | | Person in charge of real-estate and building Someya Tsubusezo Age: 30 Daigyokai Experience: 6 years "bright in good faith" to the motto, We will be happy to help you find your optimal you live. Anything, please consult. Thank you. 担当者宅建染谷拓造年齢:30代業界経験:6年「明るく誠実に」をモットーに、お客様の最適なお住まい探しをお手伝いさせて頂きます。何でもご相談下さい。宜しくお願い致します。 |
Contact お問い合せ先 | | TEL: 0800-603-3089 [Toll free] mobile phone ・ Also available from PHS Caller ID is not notified Please contact the "saw SUUMO (Sumo)" If it does not lead, If the real estate company TEL:0800-603-3089【通話料無料】携帯電話・PHSからもご利用いただけます 発信者番号は通知されません 「SUUMO(スーモ)を見た」と問い合わせください つながらない方、不動産会社の方は
|
Land of the right form 土地の権利形態 | | Ownership 所有権 |
Time delivery 引き渡し時期 | | Immediate delivery allowed 即引渡し可 |
Land category 地目 | | Residential land 宅地 |
Use district 用途地域 | | One low-rise 1種低層 |
Overview and notices その他概要・特記事項 | | Contact: Someya Tsubusezo, Facilities: Public Water Supply, This sewage, City gas 担当者:染谷拓造、設備:公営水道、本下水、都市ガス |
Company profile 会社概要 | | <Mediation> Governor of Chiba Prefecture (3) No. 014203 (Corporation) All Japan Real Estate Association (Corporation) metropolitan area real estate Fair Trade Council member Century 21 Nippon nest Ltd. Yubinbango273-0107 Chiba Prefecture Kamagaya Shinkamagaya 4-14-6 <仲介>千葉県知事(3)第014203号(公社)全日本不動産協会会員 (公社)首都圏不動産公正取引協議会加盟センチュリー21日本ネスト(株)〒273-0107 千葉県鎌ケ谷市新鎌ケ谷4-14-6 |