9.6 million yen, 100.1 sq m
Land/Building » Kanto » Chiba Prefecture » Kamagaya
 
| | Chiba Prefecture Kamagaya 千葉県鎌ケ谷市 |
| KitaSosen "Shinkamagaya" walk 20 minutes 北総線「新鎌ヶ谷」歩20分 |
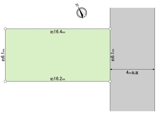
Price 価格 | | 9.6 million yen 960万円 | Building coverage, floor area ratio 建ぺい率・容積率 | | Fifty percent ・ Hundred percent 50%・100% | Sales compartment 販売区画数 | | 1 compartment 1区画 | Land area 土地面積 | | 100.1 sq m (registration) 100.1m2(登記) | Driveway burden-road 私道負担・道路 | | Nothing, Southeast 4m width (contact the road width 6.1m) 無、南東4m幅(接道幅6.1m) | Land situation 土地状況 | | Furuya There 古家有り | Address 住所 | | Chiba Prefecture Kamagaya Minamihatsutomi 2 千葉県鎌ケ谷市南初富2 | Traffic 交通 | | KitaSosen "Shinkamagaya" walk 20 minutes Shinkeiseisen "Hatsutomi" walk 13 minutes 北総線「新鎌ヶ谷」歩20分 新京成線「初富」歩13分
| Person in charge 担当者より | | Rep Sekiya Nobuhiko 担当者関屋 伸彦 | Contact お問い合せ先 | | Mitsui Rehouse Shinkamagaya shop Mitsui Fudosan Realty (Ltd.) TEL: 0120-993531 [Toll free] Please contact the "saw SUUMO (Sumo)" 三井のリハウス新鎌ヶ谷店三井不動産リアルティ(株)TEL:0120-993531【通話料無料】「SUUMO(スーモ)を見た」と問い合わせください | Land of the right form 土地の権利形態 | | Ownership 所有権 | Time delivery 引き渡し時期 | | Mid-January 2014 2014年1月中旬予定 | Land category 地目 | | Residential land 宅地 | Use district 用途地域 | | One low-rise 1種低層 | Other limitations その他制限事項 | | Because there is no lead-in to the city gas on site, When the connection will take construction costs, etc.. 都市ガスは敷地内に引込がないため、接続の際は工事費用等がかかります。 | Overview and notices その他概要・特記事項 | | Contact: Sekiya Nobuhiko 担当者:関屋 伸彦 | Company profile 会社概要 | | <Mediation> Minister of Land, Infrastructure and Transport (13) No. 000777 (one company) Property distribution management Association (Corporation) metropolitan area real estate Fair Trade Council member Mitsui Rehouse Shinkamagaya shop Mitsui Fudosan Realty Co. Yubinbango273-0107 Chiba Prefecture Kamagaya Shinkamagaya 2-19-11 Prosper first floor <仲介>国土交通大臣(13)第000777号(一社)不動産流通経営協会会員 (公社)首都圏不動産公正取引協議会加盟三井のリハウス新鎌ヶ谷店三井不動産リアルティ(株)〒273-0107 千葉県鎌ケ谷市新鎌ケ谷2-19-11 プロスパー1階 |
 Local land photo
現地土地写真
 Compartment figure
区画図
Location
|