Land/Building » Kanto » Chiba Prefecture » Matsudo
 
| | Matsudo, Chiba Prefecture 千葉県松戸市 |
| JR Joban Line "Kitamatsudo" walk 6 minutes JR常磐線「北松戸」歩6分 |
| JR Joban Line "Kita-Matsudo Station" in 6-minute walk to convenient daily life! Per yang per corner lot ・ Ventilation is good. The dream of my home in your favorite plan! There is also building a reference plan. JR常磐線『北松戸駅』徒歩6分で毎日の生活が便利に!角地につき陽当たり・通風良好です。お好きなプランで夢のマイホームを!建築参考プランもございます。 |
| ● JR Joban Line "Kita-Matsudo Station" 6-minute walk (about 480m). It is also useful in commuting and shopping near the station. ● corner lot of so per yang ・ Ventilation is good. ● [There architecture reference plan] Please feel free to contact us. Fulfill the laid-back calm life ●, It is a quiet residential area. ● First of all your phone! Please feel free to contact us as "a look at the SUUMO"! ●JR常磐線『北松戸駅』徒歩6分(約480m)。駅から近く通勤通学やお買い物にも便利です。●角地なので陽当たり・通風良好です。●【建築参考プランあり】お気軽にご相談下さい。●のんびり穏やかな生活を叶える、閑静な住宅地です。●まずはお電話を!「SUUMOを見て」とお気軽にお問い合わせください! |
Features pickup 特徴ピックアップ | | Vacant lot passes / Immediate delivery Allowed / Yang per good / A quiet residential area / Corner lot / Building plan example there 更地渡し /即引渡し可 /陽当り良好 /閑静な住宅地 /角地 /建物プラン例有り | Price 価格 | | 18,800,000 yen 1880万円 | Building coverage, floor area ratio 建ぺい率・容積率 | | 60% ・ 160% 60%・160% | Sales compartment 販売区画数 | | 1 compartment 1区画 | Land area 土地面積 | | 104.23 sq m (31.52 tsubo) (Registration) 104.23m2(31.52坪)(登記) | Driveway burden-road 私道負担・道路 | | 33.4 sq m , East 4m width, North 4m width 33.4m2、東4m幅、北4m幅 | Land situation 土地状況 | | Vacant lot 更地 | Address 住所 | | Matsudo, Chiba Prefecture Kamihongo 千葉県松戸市上本郷 | Traffic 交通 | | JR Joban Line "Kitamatsudo" walk 6 minutes JR常磐線「北松戸」歩6分 | Person in charge 担当者より | | Person in charge of real-estate and building Abe Rikiya Age: 30 Daigyokai experience: looking for 10-year housing, But I think that it is very hard, I will do my best to like set up to customers of your role, even a little. Such as consultation and listing of housing funds, What ... please consult. We are looking forward to looking forward to meeting with customers. 担当者宅建阿部 力也年齢:30代業界経験:10年住宅探しは、とても大変だと思いますが、少しでもお客様のお役にたてる様に頑張ります。住宅資金の相談や物件情報など、何なりとご相談下さい。お客様との出会いを楽しみにお待ちしております。 | Contact お問い合せ先 | | TEL: 0800-603-0713 [Toll free] mobile phone ・ Also available from PHS Caller ID is not notified Please contact the "saw SUUMO (Sumo)" If it does not lead, If the real estate company TEL:0800-603-0713【通話料無料】携帯電話・PHSからもご利用いただけます 発信者番号は通知されません 「SUUMO(スーモ)を見た」と問い合わせください つながらない方、不動産会社の方は
| Land of the right form 土地の権利形態 | | Ownership 所有権 | Building condition 建築条件 | | With 付 | Time delivery 引き渡し時期 | | Immediate delivery allowed 即引渡し可 | Land category 地目 | | Residential land 宅地 | Use district 用途地域 | | One dwelling 1種住居 | Overview and notices その他概要・特記事項 | | Contact Person: Abe Rikiya, Facilities: Public Water Supply, This sewage, City gas 担当者:阿部 力也、設備:公営水道、本下水、都市ガス | Company profile 会社概要 | | <Seller> Minister of Land, Infrastructure and Transport (11) No. 002401 (the company), Chiba Prefecture Building Lots and Buildings Transaction Business Association (Corporation) metropolitan area real estate Fair Trade Council member (Ltd.) a central residential Porras residence of Information Center Matsudokita office Yubinbango271-0064 Matsudo, Chiba Prefecture Kamihongo 900-2 <売主>国土交通大臣(11)第002401号(社)千葉県宅地建物取引業協会会員 (公社)首都圏不動産公正取引協議会加盟(株)中央住宅ポラス住まいの情報館 松戸北営業所〒271-0064 千葉県松戸市上本郷900-2 |
 Local land photo
現地土地写真
 Local land photo
現地土地写真
 Local photos, including front road
前面道路含む現地写真
Compartment figure区画図  Land price 18,800,000 yen, Land area 104.23 sq m
土地価格1880万円、土地面積104.23m2
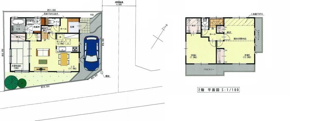
Building plan example (floor plan)建物プラン例(間取り図)  Building plan example Building price 12.3 million yen, Building area 96.46 sq m
建物プラン例 建物価格 1230万円、建物面積96.46m2
Supermarketスーパー  560m until Hello Mart diet 賓館 Kitamatsudo shop
ハローマート食賓館北松戸店まで560m
Junior high school中学校  2060m to Matsudo Municipal sixth junior high school
松戸市立第六中学校まで2060m
Primary school小学校  1270m to Matsudo Municipal Kamihongo Elementary School
松戸市立上本郷小学校まで1270m
Station駅  JR Joban Line to "Kita-Matsudo Station" 480m
JR常磐線『北松戸駅』まで480m
Location
|