17.8 million yen, 165.29 sq m
Land/Building » Kanto » Chiba Prefecture » Narashino
 
| | Narashino, Chiba Prefecture 千葉県習志野市 |
| Keisei Main Line "Mimomi" walk 19 minutes 京成本線「実籾」歩19分 |
Features pickup 特徴ピックアップ | | Land 50 square meters or more / Vacant lot passes / Super close / Yang per good / Flat to the station / A quiet residential area / Around traffic fewer / Shaping land / No construction conditions / Urban neighborhood / City gas / Flat terrain 土地50坪以上 /更地渡し /スーパーが近い /陽当り良好 /駅まで平坦 /閑静な住宅地 /周辺交通量少なめ /整形地 /建築条件なし /都市近郊 /都市ガス /平坦地 | Price 価格 | | 17.8 million yen 1780万円 | Building coverage, floor area ratio 建ぺい率・容積率 | | 60% ・ 160% 60%・160% | Sales compartment 販売区画数 | | 1 compartment 1区画 | Total number of compartments 総区画数 | | 1 compartment 1区画 | Land area 土地面積 | | 165.29 sq m (measured) 165.29m2(実測) | Driveway burden-road 私道負担・道路 | | Nothing, West 4m width (contact the road width 10m) 無、西4m幅(接道幅10m) | Land situation 土地状況 | | Vacant lot 更地 | Address 住所 | | Narashino, Chiba Prefecture Higashinarashino 5 千葉県習志野市東習志野5 | Traffic 交通 | | Keisei Main Line "Mimomi" walk 19 minutes Keisei Main Line "Yachiyodai" walk 22 minutes 京成本線「実籾」歩19分 京成本線「八千代台」歩22分
| Contact お問い合せ先 | | Pitattohausu Yachiyodai West store (Ltd.) Clio net TEL: 0800-603-3422 [Toll free] mobile phone ・ Also available from PHS Caller ID is not notified Please contact the "saw SUUMO (Sumo)" If it does not lead, If the real estate company ピタットハウス八千代台ウエスト店(株)クリオネットTEL:0800-603-3422【通話料無料】携帯電話・PHSからもご利用いただけます 発信者番号は通知されません 「SUUMO(スーモ)を見た」と問い合わせください つながらない方、不動産会社の方は
| Land of the right form 土地の権利形態 | | Ownership 所有権 | Time delivery 引き渡し時期 | | Immediate delivery allowed 即引渡し可 | Land category 地目 | | Residential land 宅地 | Use district 用途地域 | | One middle and high 1種中高 | Overview and notices その他概要・特記事項 | | Facilities: Public Water Supply, This sewage, City gas 設備:公営水道、本下水、都市ガス | Company profile 会社概要 | | <Mediation> Governor of Chiba Prefecture (2) No. 014632 (the company), Chiba Prefecture Building Lots and Buildings Transaction Business Association (Corporation) metropolitan area real estate Fair Trade Council member Pitattohausu Yachiyodai West store (Ltd.) Clio net Yubinbango276-0031 Chiba Prefecture Yachiyo Yachiyodaikita 1-10-1 Kuwabara second building 1F <仲介>千葉県知事(2)第014632号(社)千葉県宅地建物取引業協会会員 (公社)首都圏不動産公正取引協議会加盟ピタットハウス八千代台ウエスト店(株)クリオネット〒276-0031 千葉県八千代市八千代台北1-10-1桑原第二ビル1F |
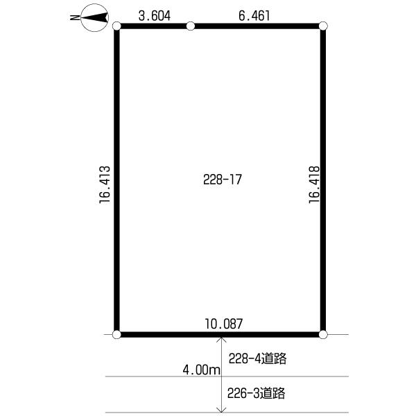
Compartment figure区画図  Land price 17.8 million yen, Land area 165.29 sq m
土地価格1780万円、土地面積165.29m2
Local land photo現地土地写真  Local (10 May 2013) Shooting
現地(2013年10月)撮影
Local photos, including front road前面道路含む現地写真  Local (10 May 2013) Shooting
現地(2013年10月)撮影
 Local (October 2, 0013 years) shooting
現地(20013年10月)撮影
Location
|