13.7 million yen, 226.5 sq m
Land/Building » Kanto » Chiba Prefecture » Noda
 
| | Chiba Prefecture Noda 千葉県野田市 |
| Tobu Noda line "Atago" bus 3 minutes infant nursery walk 2 minutes 東武野田線「愛宕」バス3分乳児保育所歩2分 |
| Gozaimasen building conditions ・ You can architecture in your favorite House manufacturer ・ Spacious grounds 建築条件ございません・お好みのハウスメーカーで建築可能です・広々敷地 |
| Spacious land area of about 68 square meters. Floor is the breadth of easy to make room. No construction conditions. It is possible your architecture at your favorite House manufacturer. I stuffed the dream of your family, Please realize the My Home Life. 広々土地面積約68坪。間取りが作りやすいゆとりの広さです。建築条件なし。お好みのハウスメーカーでご建築可能です。ご家族の夢をつめこんだ、マイホームライフをご実現下さい。 |
Price 価格 | | 13.7 million yen 1370万円 | Building coverage, floor area ratio 建ぺい率・容積率 | | 60% ・ 200% 60%・200% | Sales compartment 販売区画数 | | 1 compartment 1区画 | Land area 土地面積 | | 226.5 sq m (measured) 226.5m2(実測) | Driveway burden-road 私道負担・道路 | | Nothing 無 | Land situation 土地状況 | | Vacant lot 更地 | Address 住所 | | Chiba Prefecture Noda Nakanodaikashima cho 千葉県野田市中野台鹿島町 | Traffic 交通 | | Tobu Noda Line "Atago" bus 3 minutes infant nursery walk 2 minutes Tobu Noda line "Atago" walk 14 minutes 東武野田線「愛宕」バス3分乳児保育所歩2分東武野田線「愛宕」歩14分 | Related links 関連リンク | | [Related Sites of this company] 【この会社の関連サイト】 | Contact お問い合せ先 | | TEL: 0800-805-6286 [Toll free] mobile phone ・ Also available from PHS Caller ID is not notified Please contact the "saw SUUMO (Sumo)" If it does not lead, If the real estate company TEL:0800-805-6286【通話料無料】携帯電話・PHSからもご利用いただけます 発信者番号は通知されません 「SUUMO(スーモ)を見た」と問い合わせください つながらない方、不動産会社の方は
| Land of the right form 土地の権利形態 | | Ownership 所有権 | Time delivery 引き渡し時期 | | Consultation 相談 | Land category 地目 | | field 畑 | Use district 用途地域 | | Two dwellings 2種住居 | Overview and notices その他概要・特記事項 | | Facilities: Public Water Supply, This sewage, City gas 設備:公営水道、本下水、都市ガス | Company profile 会社概要 | | <Mediation> Minister of Land, Infrastructure and Transport (3) The 006,183 No. housing Information Center Koshigaya shop Seongnam Construction (Ltd.) Yubinbango343-0805 Saitama Prefecture Koshigaya Shinmei-cho 2-225-1 <仲介>国土交通大臣(3)第006183号住宅情報館 越谷店城南建設(株)〒343-0805 埼玉県越谷市神明町2-225-1 |
Local land photo現地土地写真  Local Photos
現地写真
Local photos, including front road前面道路含む現地写真  Frontal road
前面道路
Local land photo現地土地写真  Local Photos
現地写真
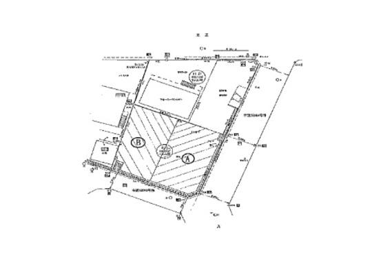
Compartment figure区画図  Land price 13.7 million yen, Land area 226.5 sq m compartment view
土地価格1370万円、土地面積226.5m2 区画図
Local land photo現地土地写真  Local Photos
現地写真
 Local Photos
現地写真
Location
|