|
|
Chiba Prefecture Yotsukaido
千葉県四街道市
|
|
JR Sobu "Yotsukaidou" walk 15 minutes
JR総武本線「四街道」歩15分
|
|
"Shimoshizushinden" district of selling land! Per southwest corner lot, Good per sun! Building conditions There is no! You can architecture in your favorite House manufacturer!
「下志津新田」地区の売地!南西角地につき、陽当たり良好!建築条件はございません!お好きなハウスメーカーで建築できます!
|
|
Survey ・ Vacant lot passes after building demolition! Water and sewage ・ Gas pipe, Residential land in the retracted Yes! "Housing loan ・ Also available upon consultation of building reference plan. "!
測量・建物解体後の更地渡し!上下水・ガス管、宅地内引込み有!「住宅ローン・建物参考プラン」のご相談も承ります!
|
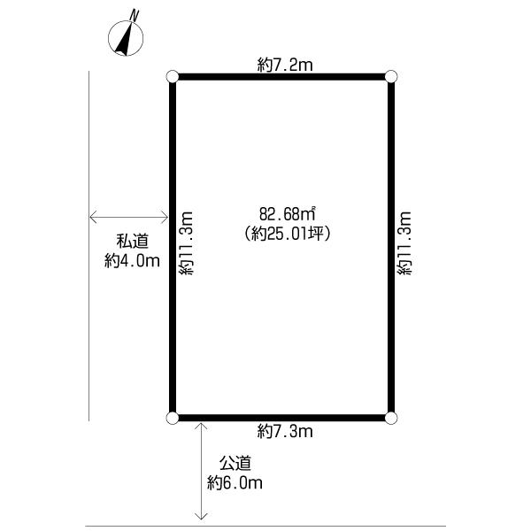
Features pickup 特徴ピックアップ | | 2 along the line more accessible / Siemens south road / Or more before road 6m / Corner lot / No construction conditions / City gas 2沿線以上利用可 /南側道路面す /前道6m以上 /角地 /建築条件なし /都市ガス |
Price 価格 | | 8 million yen 800万円 |
Building coverage, floor area ratio 建ぺい率・容積率 | | 60% ・ 200% 60%・200% |
Sales compartment 販売区画数 | | 1 compartment 1区画 |
Land area 土地面積 | | 82.68 sq m (25.01 tsubo) (Registration) 82.68m2(25.01坪)(登記) |
Driveway burden-road 私道負担・道路 | | Nothing, South 6m width (contact the road width 7.4m), West 4m width (contact the road width 11.3m) 無、南6m幅(接道幅7.4m)、西4m幅(接道幅11.3m) |
Land situation 土地状況 | | Furuya There 古家有り |
Address 住所 | | Chiba Prefecture Yotsukaido Shimoshizushinden 千葉県四街道市下志津新田 |
Traffic 交通 | | JR Sobu "Yotsukaidou" walk 15 minutes JR Sobu "Toga" walk 51 minutes Chiba city monorail "Toga" walk 51 minutes JR総武本線「四街道」歩15分 JR総武本線「都賀」歩51分 千葉都市モノレール「都賀」歩51分
|
Contact お問い合せ先 | | Pitattohausu Yotsukaidou shop Starts Pitattohausu (Ltd.) TEL: 0800-603-4166 [Toll free] mobile phone ・ Also available from PHS Caller ID is not notified Please contact the "saw SUUMO (Sumo)" If it does not lead, If the real estate company ピタットハウス四街道店スターツピタットハウス(株)TEL:0800-603-4166【通話料無料】携帯電話・PHSからもご利用いただけます 発信者番号は通知されません 「SUUMO(スーモ)を見た」と問い合わせください つながらない方、不動産会社の方は
|
Land of the right form 土地の権利形態 | | Ownership 所有権 |
Time delivery 引き渡し時期 | | Consultation 相談 |
Land category 地目 | | Residential land 宅地 |
Use district 用途地域 | | One middle and high 1種中高 |
Other limitations その他制限事項 | | The first kind altitude district 第一種高度地区 |
Overview and notices その他概要・特記事項 | | Facilities: Public Water Supply, This sewage, City gas 設備:公営水道、本下水、都市ガス |
Company profile 会社概要 | | <Mediation> Minister of Land, Infrastructure and Transport (2) the first 007,129 No. Pitattohausu Yotsukaidou shop Starts Pitattohausu Co. Yubinbango284-0003 Chiba Prefecture Yotsukaido Shikawatashi 2003-25 Takamiya building first floor <仲介>国土交通大臣(2)第007129号ピタットハウス四街道店スターツピタットハウス(株)〒284-0003 千葉県四街道市鹿渡2003-25 高宮ビル1階 |