Land/Building » Kanto » Chiba Prefecture » Yotsukaido


Chiba Prefecture Yotsukaido
JR Sobu "Yotsukaidou" walk 9 minutes
New streets to Shikawatashi ・ ・ ・ All seven sections of the subdivision! Commute ・ Why do not we start a new life in a good location of a 9-minute walk to the station I'm happy to go to school?
I'm happy also to weaker of the car driving, Seddo in and out effortlessly a 6m public road! City gas ・ Well-equipped environment water supply and sewerage systems and equipment for the deaf. Until convincing your dream of, Why do not you in the form of a plan?
Features pickup
Land 50 square meters or more / Vacant lot passes / Immediate delivery Allowed / Super close / It is close to the city / Yang per good / A quiet residential area / Around traffic fewer / Or more before road 6m / Corner lot / Shaping land / Mu front building / City gas / Maintained sidewalk / Fireworks viewing / Development subdivision in / Building plan example there
Event information
Local sales meetings (please visitors to direct local) schedule / January 11 (Saturday) ~ January 13 (Monday) Time / 10:00 ~ 16:00 Station walk 9 minutes location of All 7 compartment architecture conditional sales locations Would you like to build your My Home with a nice plan.
Price
13.4 million yen
Building coverage, floor area ratio
Fifty percent ・ Hundred percent
Sales compartment
1 compartment
Total number of compartments
7 compartment
Land area
141.84 sq m (measured)
Driveway burden-road
Nothing, West 6m width, Northeast 6m width
Land situation
Vacant lot
Address
Chiba Prefecture Yotsukaido Shikawatashi
Traffic
JR Sobu "Yotsukaidou" walk 9 minutes
Contact
TEL: 0800-603-0396 [Toll free] mobile phone ・ Also available from PHS
Caller ID is not notified
Please contact the "saw SUUMO (Sumo)"
If it does not lead, If the real estate company
Land of the right form
Ownership
Building condition
With
Time delivery
Consultation
Land category
field
Use district
One low-rise
Overview and notices
Facilities: Public Water Supply, This sewage, City gas
Company profile
<Seller> Minister of Land, Infrastructure and Transport (11) No. 001961 (the company), Chiba Prefecture Building Lots and Buildings Transaction Business Association (Corporation) metropolitan area real estate Fair Trade Council member Tokai Housing Corporation Yotsukaidou branch Yubinbango284-0005 Chiba Prefecture Yotsukaido Yotsukaido 1-6-4


Local land photo

Local land photo. Open-minded all 7 compartment!
Open-minded all 7 compartment!

Other local

Other local. Day ・ Ventilation is good!
Day ・ Ventilation is good!

Compartment figure

Compartment figure. Land price 13.4 million yen, Out effortlessly a total of seven sections of the land area 141.84 sq m car!
Land price 13.4 million yen, Out effortlessly a total of seven sections of the land area 141.84 sq m car!

Local photos, including front road
Local photos, including front road

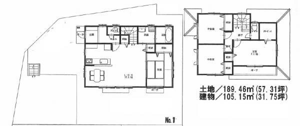
Compartment view + building plan example

Compartment view + building plan example. Plan 1 example
Plan 1 example

Primary school

Primary school. A 13-minute walk up to 1000m elementary school to middle elementary school.
A 13-minute walk up to 1000m elementary school to middle elementary school.

Other local

Other local. I'm looking forward to the construction is finished.
I'm looking forward to the construction is finished.

Access view

Access view. Commute ・ 9-minute walk to the station I'm happy to go to school!
Commute ・ 9-minute walk to the station I'm happy to go to school!

Junior high school

Junior high school. Yotsukaidou a 14-minute walk up to 1100m junior high school until junior high school.
Yotsukaidou a 14-minute walk up to 1100m junior high school until junior high school.

Other local
Other local



Location