Land/Building » Kanto » Kanagawa Prefecture » Ebina
 
| | Ebina, Kanagawa Prefecture 神奈川県海老名市 |
| Odawara Line Odakyu "Ebina" 20 minutes Ayumi Nakahara 3 minutes by bus 小田急小田原線「海老名」バス20分中原歩3分 |
| ◆ New town ◇ building of development subdivision is free design from the 15 million yen (27 tsubo) ◆ Please contact us for standard specification ◆開発分譲地の新しい街◇建物は1500万円(27坪)からの自由設計です◆標準仕様はお気軽にご連絡ください |
| Development subdivision in, Yang per good, A quiet residential area, Around traffic fewer, City gas, 2 along the line more accessible, Vacant lot passes, It is close to Tennis Court, Super close, It is close to the city, Starting station, Shaping land, Leafy residential area, Good view 開発分譲地内、陽当り良好、閑静な住宅地、周辺交通量少なめ、都市ガス、2沿線以上利用可、更地渡し、テニスコートが近い、スーパーが近い、市街地が近い、始発駅、整形地、緑豊かな住宅地、眺望良好 |
Features pickup 特徴ピックアップ | | 2 along the line more accessible / It is close to Tennis Court / Super close / It is close to the city / Yang per good / A quiet residential area / Around traffic fewer / Starting station / Shaping land / Leafy residential area / Good view / City gas / Development subdivision in 2沿線以上利用可 /テニスコートが近い /スーパーが近い /市街地が近い /陽当り良好 /閑静な住宅地 /周辺交通量少なめ /始発駅 /整形地 /緑豊かな住宅地 /眺望良好 /都市ガス /開発分譲地内 | Property name 物件名 | | ◆ ◇ ◆ Sugikubo north Development subdivision 11 compartment ◆ ◇ ◆ ◆◇◆ 杉久保北 開発分譲地11区画 ◆◇◆ | Price 価格 | | 12.8 million yen ~ 17.3 million yen 1280万円 ~ 1730万円 | Building coverage, floor area ratio 建ぺい率・容積率 | | Kenpei rate: 60%, Volume ratio: 200% 建ペい率:60%、容積率:200% | Sales compartment 販売区画数 | | 9 compartment 9区画 | Total number of compartments 総区画数 | | 11 compartment 11区画 | Land area 土地面積 | | 100.01 sq m ~ 196.2 sq m (30.25 tsubo ~ 59.35 tsubo) (Registration) 100.01m2 ~ 196.2m2(30.25坪 ~ 59.35坪)(登記) | Driveway burden-road 私道負担・道路 | | Road width: 4m ~ 4.5m, Asphaltic pavement 道路幅:4m ~ 4.5m、アスファルト舗装 | Land situation 土地状況 | | Not construction 未造成 | Construction completion time 造成完了時期 | | 2013 November schedule 平成25年11月予定 | Address 住所 | | Ebina, Kanagawa Prefecture Sugikubo north 5 神奈川県海老名市杉久保北5 | Traffic 交通 | | Odawara Line Odakyu "Ebina" 20 minutes Ayumi Nakahara 3 minutes by bus JR Sagami line "Shake" walk 36 minutes 小田急小田原線「海老名」バス20分中原歩3分 JR相模線「社家」歩36分
| Related links 関連リンク | | [Related Sites of this company] 【この会社の関連サイト】 | Person in charge 担当者より | | The person in charge Usami Shou History Age: 20's "explanation is easy to understand," "always in your eyes," conscious of the, It was good to ask the customer to "Usami's. I would like we will work hard to get used to the salesman, such as who can say that. ". 担当者 宇佐美 将史年齢:20代「説明は分かりやすく」「常にお客様目線で」を意識し、お客様に「宇佐美さんにお願いして良かった。」と言って頂けるような営業マンになれるよう頑張って行きたいと思います。 | Contact お問い合せ先 | | TEL: 0800-808-4933 [Toll free] mobile phone ・ Also available from PHS Caller ID is not notified Please contact the "saw SUUMO (Sumo)" If it does not lead, If the real estate company TEL:0800-808-4933【通話料無料】携帯電話・PHSからもご利用いただけます 発信者番号は通知されません 「SUUMO(スーモ)を見た」と問い合わせください つながらない方、不動産会社の方は
| Most price range 最多価格帯 | | 14 million yen (4 sections) 1400万円台(4区画) | Land of the right form 土地の権利形態 | | Ownership 所有権 | Time delivery 引き渡し時期 | | Consultation 相談 | Land category 地目 | | Residential land 宅地 | Use district 用途地域 | | One dwelling 1種住居 | Other limitations その他制限事項 | | Regulations have by the Landscape Act, Quasi-fire zones 景観法による規制有、準防火地域 | Overview and notices その他概要・特記事項 | | Contact Person Usami Masafumi, Facilities: Public Water Supply, This sewage, City gas, Development permit number: Atsudo Higashidai No. 61010 担当者: 宇佐美 将史、設備:公営水道、本下水、都市ガス、開発許可番号:厚土東第61010号 | Company profile 会社概要 | | <Mediation> Kanagawa Governor (2) No. 026848 (Corporation) All Japan Real Estate Association (Corporation) metropolitan area real estate Fair Trade Council member Century 21 (Ltd.) Hilo Corporation Yubinbango243-0432 Ebina, Kanagawa Prefecture center 2-9-1 <仲介>神奈川県知事(2)第026848号(公社)全日本不動産協会会員 (公社)首都圏不動産公正取引協議会加盟センチュリー21(株)ヒロコーポレーション〒243-0432 神奈川県海老名市中央2-9-1 |
Local land photo現地土地写真  Local (10 May 2013) Shooting
現地(2013年10月)撮影
 Local (10 May 2013) Shooting
現地(2013年10月)撮影
 Local (10 May 2013) Shooting
現地(2013年10月)撮影
 Construction completion expected view
造成完了予想図
 Local (10 May 2013) Shooting
現地(2013年10月)撮影
Local photos, including front road前面道路含む現地写真  Local (10 May 2013) Shooting
現地(2013年10月)撮影
Junior high school中学校  Ebina 2150m to stand Otani Junior High School
海老名市立大谷中学校まで2150m
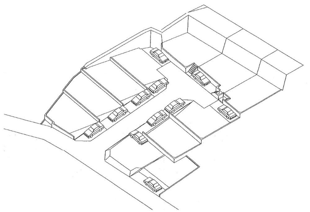
 The entire compartment Figure
全体区画図
Local land photo現地土地写真  Local (10 May 2013) Shooting
現地(2013年10月)撮影
Local photos, including front road前面道路含む現地写真  Local (10 May 2013) Shooting
現地(2013年10月)撮影
Primary school小学校  Ebina Municipal Sugikubo to elementary school 922m
海老名市立杉久保小学校まで922m
Local land photo現地土地写真  Local (10 May 2013) Shooting
現地(2013年10月)撮影
Local photos, including front road前面道路含む現地写真  Local (10 May 2013) Shooting
現地(2013年10月)撮影
Local land photo現地土地写真  Local (10 May 2013) Shooting
現地(2013年10月)撮影
Local photos, including front road前面道路含む現地写真  Local (10 May 2013) Shooting
現地(2013年10月)撮影
Local land photo現地土地写真  Local (10 May 2013) Shooting
現地(2013年10月)撮影
 Local (10 May 2013) Shooting
現地(2013年10月)撮影
 Local (10 May 2013) Shooting
現地(2013年10月)撮影
 Local (10 May 2013) Shooting
現地(2013年10月)撮影
 Local (10 May 2013) Shooting
現地(2013年10月)撮影
 Local (10 May 2013) Shooting
現地(2013年10月)撮影
 Local (10 May 2013) Shooting
現地(2013年10月)撮影
Location
|