Land/Building » Kanto » Kanagawa Prefecture » Fujisawa
 
| | Fujisawa, Kanagawa Prefecture 神奈川県藤沢市 |
| JR Tokaido Line "Tsujido" walk 18 minutes JR東海道本線「辻堂」歩18分 |
| Shaping land, Flat terrain, Flat to the station, Building plan example there, City gas, A quiet residential area, Around traffic fewer ※ Front road driveway equity Yes 整形地、平坦地、駅まで平坦、建物プラン例有り、都市ガス、閑静な住宅地、周辺交通量少なめ※前面道路私道持分有 |
| Shaping land, Flat terrain, Flat to the station, Building plan example there, City gas, A quiet residential area, Immediate delivery Allowed, Around traffic fewer, No construction conditions 整形地、平坦地、駅まで平坦、建物プラン例有り、都市ガス、閑静な住宅地、即引渡し可、周辺交通量少なめ、建築条件なし |
Features pickup 特徴ピックアップ | | Immediate delivery Allowed / Flat to the station / A quiet residential area / Around traffic fewer / Shaping land / No construction conditions / City gas / Flat terrain / Building plan example there 即引渡し可 /駅まで平坦 /閑静な住宅地 /周辺交通量少なめ /整形地 /建築条件なし /都市ガス /平坦地 /建物プラン例有り | Price 価格 | | 27,100,000 yen 2710万円 | Building coverage, floor area ratio 建ぺい率・容積率 | | Fifty percent ・ 80% 50%・80% | Sales compartment 販売区画数 | | 1 compartment 1区画 | Total number of compartments 総区画数 | | 1 compartment 1区画 | Land area 土地面積 | | 123.94 sq m (37.49 tsubo) (measured) 123.94m2(37.49坪)(実測) | Driveway burden-road 私道負担・道路 | | 9.6 sq m , Northeast 4m width (contact the road width 14.3m) 9.6m2、北東4m幅(接道幅14.3m) | Land situation 土地状況 | | Vacant lot 更地 | Address 住所 | | Fujisawa, Kanagawa Prefecture Tsujidomoto cho 4 神奈川県藤沢市辻堂元町4 | Traffic 交通 | | JR Tokaido Line "Tsujido" walk 18 minutes JR東海道本線「辻堂」歩18分
| Person in charge 担当者より | | The person in charge now fence Ken Age: become 20 Daiki property is by all means, Please let me know in the fence now. anytime, I will guide. Also, Until you find properties of your desired, Please be assured that you will be dating thoroughly! ! 担当者今垣 健年齢:20代気になる物件はぜひ、今垣にご一報くださいませ。いつでも、ご案内させていただきます。また、ご希望の物件が見つかるまで、とことんお付き合いさせて頂きますのでご安心ください!! | Contact お問い合せ先 | | TEL: 0800-808-5197 [Toll free] mobile phone ・ Also available from PHS Caller ID is not notified Please contact the "saw SUUMO (Sumo)" If it does not lead, If the real estate company TEL:0800-808-5197【通話料無料】携帯電話・PHSからもご利用いただけます 発信者番号は通知されません 「SUUMO(スーモ)を見た」と問い合わせください つながらない方、不動産会社の方は
| Land of the right form 土地の権利形態 | | Ownership 所有権 | Time delivery 引き渡し時期 | | Immediate delivery allowed 即引渡し可 | Land category 地目 | | Residential land 宅地 | Use district 用途地域 | | One low-rise 1種低層 | Other limitations その他制限事項 | | Set-back: already, Regulations have by the Landscape Act, Height ceiling Yes, Shade limit Yes セットバック:済、景観法による規制有、高さ最高限度有、日影制限有 | Overview and notices その他概要・特記事項 | | Rep: Now fence Health, Facilities: Public Water Supply, This sewage, City gas 担当者:今垣 健、設備:公営水道、本下水、都市ガス | Company profile 会社概要 | | <Mediation> Governor of Kanagawa Prefecture (5) No. 020718 (the company), Kanagawa Prefecture Building Lots and Buildings Transaction Business Association (Corporation) metropolitan area real estate Fair Trade Council member Century 21 Corporation realistic net Tsujido south entrance shop Yubinbango251-0047 Fujisawa, Kanagawa Prefecture Tsujido 1-1-8 <仲介>神奈川県知事(5)第020718号(社)神奈川県宅地建物取引業協会会員 (公社)首都圏不動産公正取引協議会加盟センチュリー21(株)リアルネット辻堂南口店〒251-0047 神奈川県藤沢市辻堂1-1-8 |
Local land photo現地土地写真  Local (12 May 2012) shooting
現地(2012年12月)撮影
Compartment figure区画図  Land price 27,100,000 yen, Land area 123.94 sq m
土地価格2710万円、土地面積123.94m2
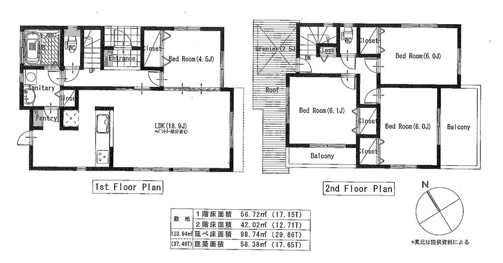
Other building plan exampleその他建物プラン例  Building plan example building price 17.5 million yen, Building area 98.74 sq m
建物プラン例建物価格1750万円、建物面積98.74m2
Local photos, including front road前面道路含む現地写真  Local (12 May 2012) shooting
現地(2012年12月)撮影
Primary school小学校  773m until the Fujisawa Municipal Tsujido Elementary School
藤沢市立辻堂小学校まで773m
Kindergarten ・ Nursery幼稚園・保育園  Tsujido Futaba to kindergarten 470m
辻堂二葉幼稚園まで470m
Location
|