Land/Building » Kanto » Kanagawa Prefecture » Hiratsuka
 
| | Hiratsuka, Kanagawa Prefecture 神奈川県平塚市 |
| Odawara Line Odakyu "Tokai University before" walk 14 minutes 小田急小田原線「東海大学前」歩14分 |
| ☆ Development sale is a district ☆ ◆ It is living environment enhancement! ◆ It is walking distance from the train station ☆開発分譲地区です☆◆住環境充実してます!◆駅から徒歩圏です |
| Vacant lot passes, A quiet residential area, Development subdivision in, Building plan example there 更地渡し、閑静な住宅地、開発分譲地内、建物プラン例有り |
Features pickup 特徴ピックアップ | | A quiet residential area / Development subdivision in / Building plan example there 閑静な住宅地 /開発分譲地内 /建物プラン例有り | Price 価格 | | 12,220,000 yen ~ 14,390,000 yen 1222万円 ~ 1439万円 | Building coverage, floor area ratio 建ぺい率・容積率 | | Kenpei rate: 50%, Volume ratio: 80% 建ペい率:50%、容積率:80% | Sales compartment 販売区画数 | | 4 compartments 4区画 | Land area 土地面積 | | 102.01 sq m ~ 132.16 sq m 102.01m2 ~ 132.16m2 | Land situation 土地状況 | | Vacant lot 更地 | Construction completion time 造成完了時期 | | November 2013 2013年11月 | Address 住所 | | Hiratsuka, Kanagawa Prefecture Sanada 神奈川県平塚市真田 | Traffic 交通 | | Odawara Line Odakyu "Tokai University before" walk 14 minutes 小田急小田原線「東海大学前」歩14分
| Related links 関連リンク | | [Related Sites of this company] 【この会社の関連サイト】 | Person in charge 担当者より | | Rep Sugimoto Ryoji age: we are a looking for properties delight customers with suggestions that unlike the 30's other real estate agent. Please leave. 担当者杉本 良二年齢:30代他の不動産屋と違ったご提案でお客様に喜んで頂ける物件探しをしています。おまかせ下さい。 | Contact お問い合せ先 | | TEL: 0800-602-4998 [Toll free] mobile phone ・ Also available from PHS Caller ID is not notified Please contact the "saw SUUMO (Sumo)" If it does not lead, If the real estate company TEL:0800-602-4998【通話料無料】携帯電話・PHSからもご利用いただけます 発信者番号は通知されません 「SUUMO(スーモ)を見た」と問い合わせください つながらない方、不動産会社の方は
| Most price range 最多価格帯 | | 12 million yen (two-compartment) 1200万円台(2区画) | Land of the right form 土地の権利形態 | | Ownership 所有権 | Building condition 建築条件 | | With 付 | Land category 地目 | | Residential land 宅地 | Use district 用途地域 | | One low-rise 1種低層 | Overview and notices その他概要・特記事項 | | Contact: Sugimoto Ryoji, Facilities: Public Water Supply, This sewage 担当者:杉本 良二、設備:公営水道、本下水 | Company profile 会社概要 | | <Mediation> Minister of Land, Infrastructure and Transport (1) the first 008,392 No. Century 21 Taise housing Corporation Atsugi headquarters Yubinbango243-0018 Atsugi City, Kanagawa Prefecture Nakamachi 4-16-6 <仲介>国土交通大臣(1)第008392号センチュリー21タイセーハウジング(株)厚木本社〒243-0018 神奈川県厚木市中町4-16-6 |
Local land photo現地土地写真  The entire local (October 2013) Shooting
現地全体 (2013年10月)撮影
 Local land photo
現地土地写真
Building plan example (introspection photo)建物プラン例(内観写真)  Example of construction
施工例
 Example of construction
施工例
Shopping centreショッピングセンター  1031m to Yorktown Kitakaname
ヨークタウン北金目まで1031m
 The entire compartment Figure
全体区画図
Building plan example (introspection photo)建物プラン例(内観写真)  Example of construction
施工例
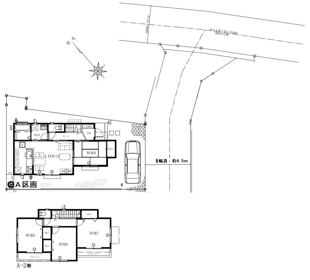
Compartment view + building plan example区画図+建物プラン例  Building plan example (A section) 4LDK, Land price 12.9 million yen, Land area 121.09 sq m , Building price 9.9 million yen, Building area 93.57 sq m
建物プラン例(A区画)4LDK、土地価格1290万円、土地面積121.09m2、建物価格990万円、建物面積93.57m2
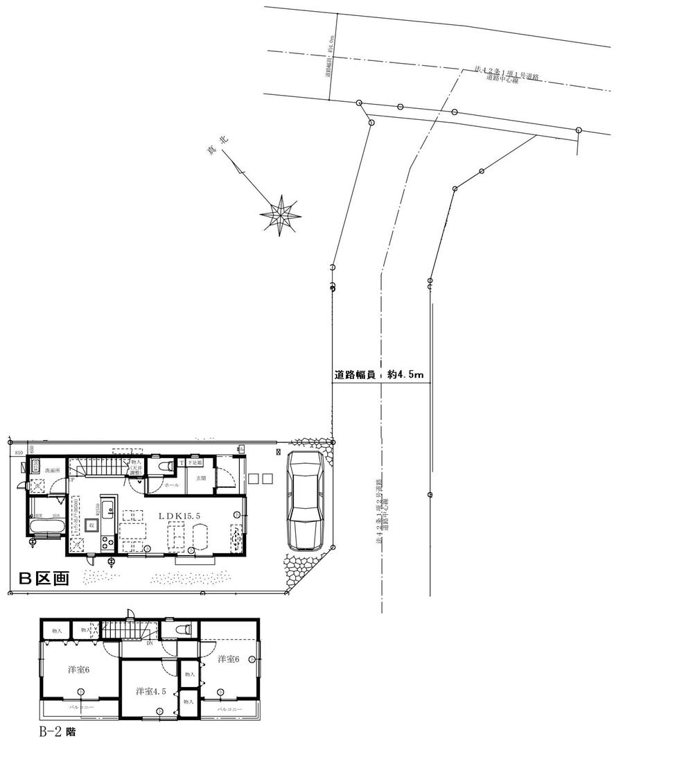
 Building plan example (B compartment) 3LDK, Land price 12,220,000 yen, Land area 102.01 sq m , Building price 8.58 million yen, Building area 81.14 sq m
建物プラン例(B区画)3LDK、土地価格1222万円、土地面積102.01m2、建物価格858万円、建物面積81.14m2
 Building plan example (F compartment) 4LDK, Land price 13,900,000 yen, Land area 132.16 sq m , Building price 9.9 million yen, Building area 93.57 sq m
建物プラン例(F区画)4LDK、土地価格1390万円、土地面積132.16m2、建物価格990万円、建物面積93.57m2
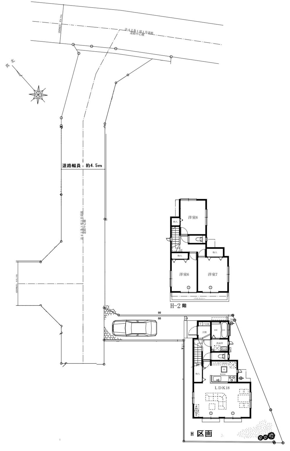
 Building plan example (H compartment) 3LDK, Land price 14,390,000 yen, Land area 120.83 sq m , Building price 9.41 million yen, Building area 89.01 sq m
建物プラン例(H区画)3LDK、土地価格1439万円、土地面積120.83m2、建物価格941万円、建物面積89.01m2
Location
|