Land/Building » Kanto » Kanagawa Prefecture » Hiratsuka
 
| | Hiratsuka, Kanagawa Prefecture 神奈川県平塚市 |
| Odawara Line Odakyu "Tokai University before" walk 14 minutes 小田急小田原線「東海大学前」歩14分 |
| ☆ There is no building conditions ☆ ◆ You can architecture in your favorite manufacturer! ◆ Development sale district! ◆ It is the living environment enhancement ☆建築条件ありません☆◆お好きなメーカーで建築出来ます!◆開発分譲地区!◆住環境充実です |
| A quiet residential area, Development subdivision in, Vacant lot passes, No construction conditions 閑静な住宅地、開発分譲地内、更地渡し、建築条件なし |
Features pickup 特徴ピックアップ | | Vacant lot passes / A quiet residential area / No construction conditions / Development subdivision in 更地渡し /閑静な住宅地 /建築条件なし /開発分譲地内 | Price 価格 | | 12.2 million yen ~ 13.8 million yen 1220万円 ~ 1380万円 | Building coverage, floor area ratio 建ぺい率・容積率 | | Kenpei rate: 50%, Volume ratio: 80% 建ペい率:50%、容積率:80% | Sales compartment 販売区画数 | | 4 compartments 4区画 | Land area 土地面積 | | 120.49 sq m ~ 121.89 sq m 120.49m2 ~ 121.89m2 | Land situation 土地状況 | | Vacant lot 更地 | Construction completion time 造成完了時期 | | November 2013 2013年11月 | Address 住所 | | Hiratsuka, Kanagawa Prefecture Sanada 神奈川県平塚市真田 | Traffic 交通 | | Odawara Line Odakyu "Tokai University before" walk 14 minutes 小田急小田原線「東海大学前」歩14分
| Related links 関連リンク | | [Related Sites of this company] 【この会社の関連サイト】 | Person in charge 担当者より | | Rep Sugimoto Ryoji age: we are a looking for properties delight customers with suggestions that unlike the 30's other real estate agent. Please leave. 担当者杉本 良二年齢:30代他の不動産屋と違ったご提案でお客様に喜んで頂ける物件探しをしています。おまかせ下さい。 | Contact お問い合せ先 | | TEL: 0800-602-4998 [Toll free] mobile phone ・ Also available from PHS Caller ID is not notified Please contact the "saw SUUMO (Sumo)" If it does not lead, If the real estate company TEL:0800-602-4998【通話料無料】携帯電話・PHSからもご利用いただけます 発信者番号は通知されません 「SUUMO(スーモ)を見た」と問い合わせください つながらない方、不動産会社の方は
| Most price range 最多価格帯 | | 13 million yen (3 compartment) 1300万円台(3区画) | Land of the right form 土地の権利形態 | | Ownership 所有権 | Land category 地目 | | Residential land 宅地 | Use district 用途地域 | | One low-rise 1種低層 | Overview and notices その他概要・特記事項 | | Contact: Sugimoto Ryoji, Facilities: Public Water Supply, This sewage 担当者:杉本 良二、設備:公営水道、本下水 | Company profile 会社概要 | | <Mediation> Minister of Land, Infrastructure and Transport (1) the first 008,392 No. Century 21 Taise housing Corporation Atsugi headquarters Yubinbango243-0018 Atsugi City, Kanagawa Prefecture Nakamachi 4-16-6 <仲介>国土交通大臣(1)第008392号センチュリー21タイセーハウジング(株)厚木本社〒243-0018 神奈川県厚木市中町4-16-6 |
Local land photo現地土地写真  Local whole (October 2013) shooting ◎ There is no building conditions. ◎ You can choose your favorite manufacturer ☆
現地全体(2013年10月)撮影◎建築条件ありません。◎お好きなメーカーをお選びいただけます☆
Building plan example (introspection photo)建物プラン例(内観写真) ![Building plan example (introspection photo). [Our living example of construction] Contract construction plan ☆](/images/kanagawa/hiratsuka/b949e50023.jpg) [Our living example of construction] Contract construction plan ☆
【当社リビング施工例】 建築プラン請け負います☆
Local land photo現地土地写真  It is walking distance from the train station!
駅から徒歩圏です!
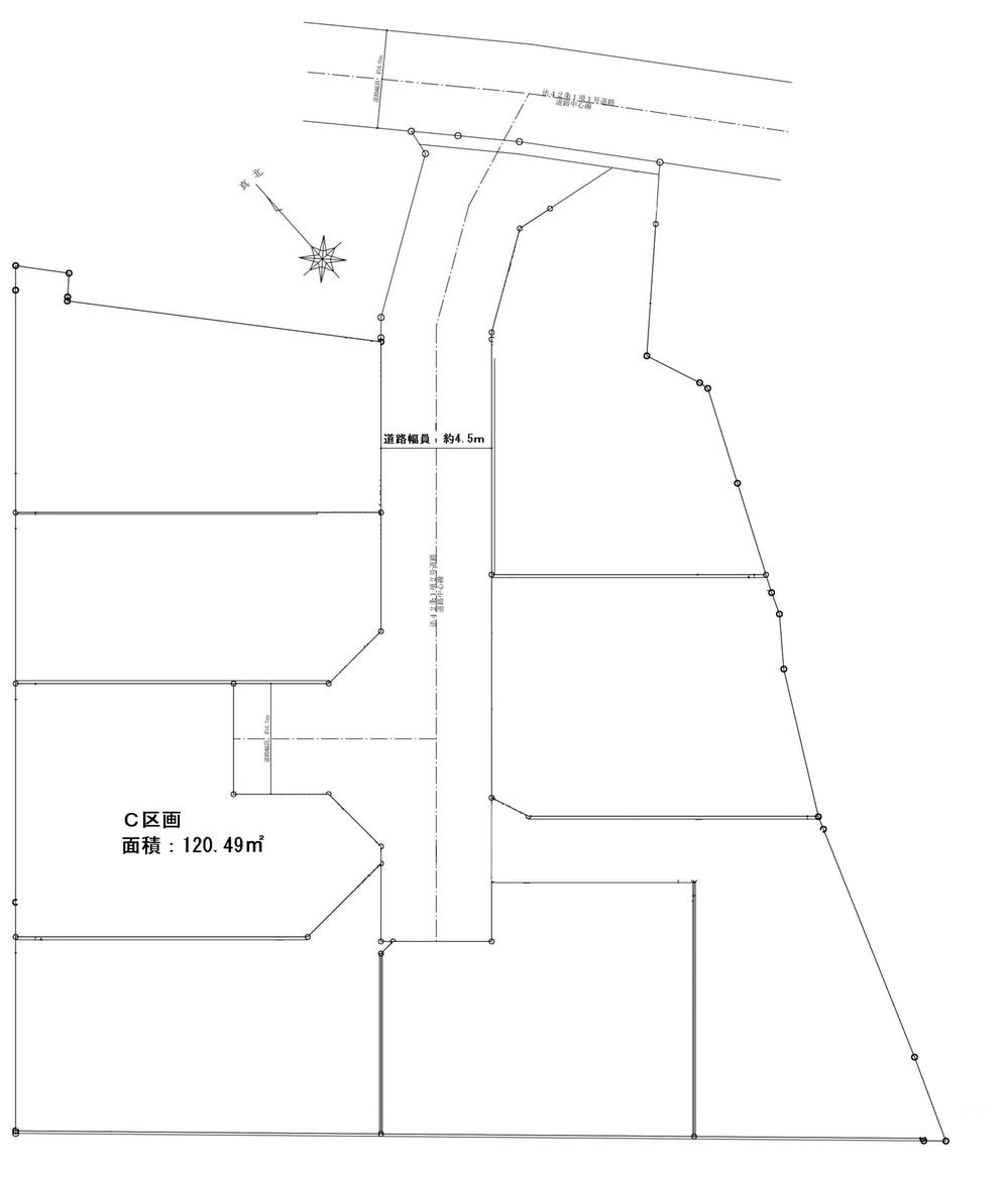
Compartment figure区画図  Land price 12.2 million yen, Land area 120.49 sq m
土地価格1220万円、土地面積120.49m2
Building plan example (introspection photo)建物プラン例(内観写真) ![Building plan example (introspection photo). [Our living example of construction] Please feel free to contact us](/images/kanagawa/hiratsuka/b949e50024.jpg) [Our living example of construction] Please feel free to contact us
【当社リビング施工例】 お気軽にご相談下さい
Shopping centreショッピングセンター  1031m to Yorktown Kitakaname
ヨークタウン北金目まで1031m
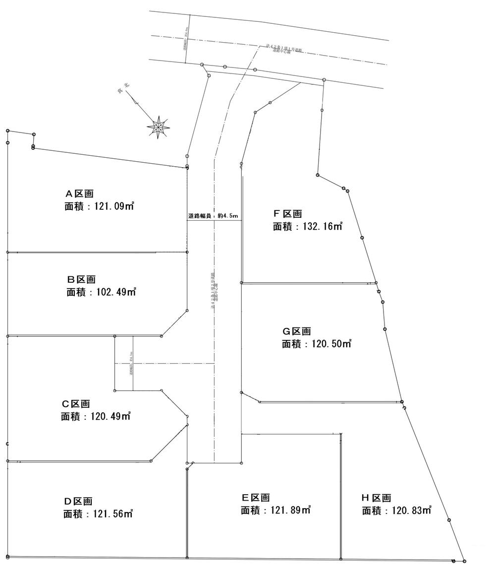
 The entire compartment Figure
全体区画図
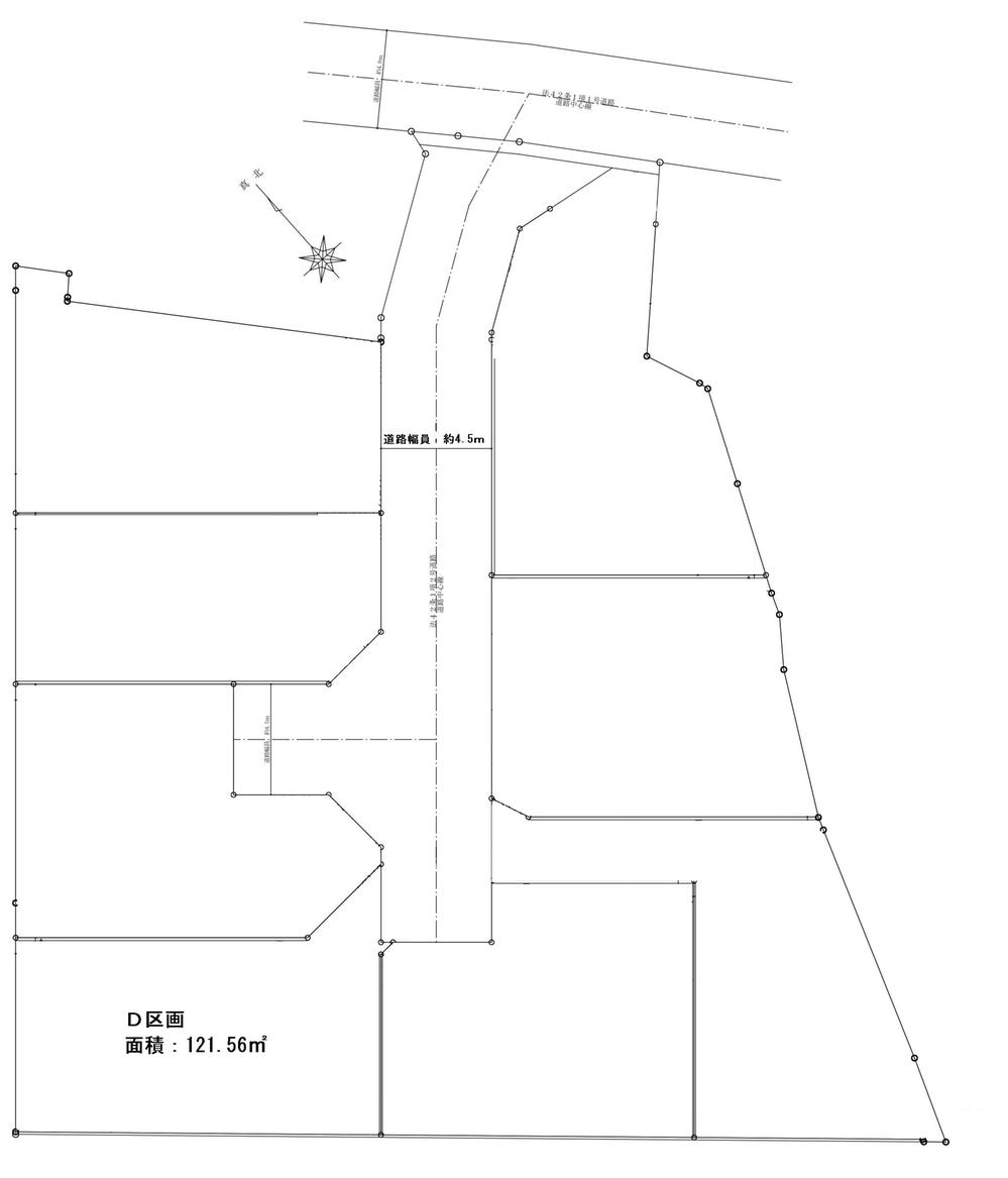
Compartment figure区画図  Land price 13.2 million yen, Land area 121.56 sq m
土地価格1320万円、土地面積121.56m2
Building plan example (introspection photo)建物プラン例(内観写真)  Our kitchen construction cases
【当社キッチン施工例】
Compartment figure区画図  Land price 13.8 million yen, Land area 121.89 sq m
土地価格1380万円、土地面積121.89m2
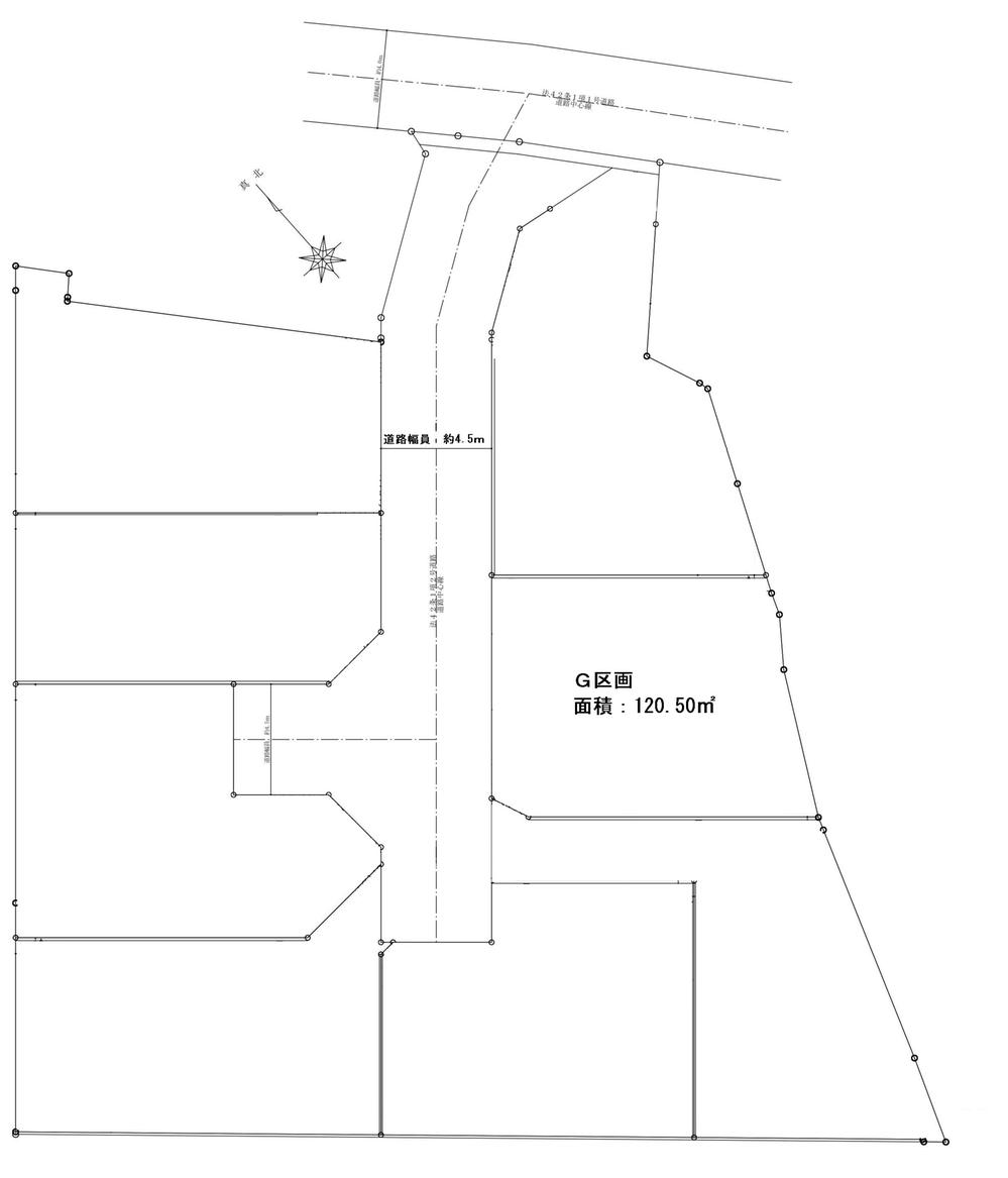
 Land price 13.6 million yen, Land area 120.5 sq m
土地価格1360万円、土地面積120.5m2
Location
|