Land/Building » Kanto » Kanagawa Prefecture » Kawasaki City Asao-ku
 
| | Kawasaki City, Kanagawa Prefecture Aso-ku 神奈川県川崎市麻生区 |
| Keio Sagamihara Line "Keio Yomiuri Land" walk 25 minutes 京王相模原線「京王よみうりランド」歩25分 |
| No construction conditions, Corner lot, Or more before road 6m, 2 along the line more accessible, Leafy residential area, City gas, Pre-ground survey, Vacant lot passes, It is close to golf course, Super close, It is close to the city, Yang per good, A quiet residential 建築条件なし、角地、前道6m以上、2沿線以上利用可、緑豊かな住宅地、都市ガス、地盤調査済、更地渡し、ゴルフ場が近い、スーパーが近い、市街地が近い、陽当り良好、閑静な住宅 |
| No construction conditions, Corner lot, Or more before road 6m, 2 along the line more accessible, Leafy residential area, City gas, Pre-ground survey, Vacant lot passes, It is close to golf course, Super close, It is close to the city, Yang per good, A quiet residential area, Around traffic fewer, Good view, Located on a hill 建築条件なし、角地、前道6m以上、2沿線以上利用可、緑豊かな住宅地、都市ガス、地盤調査済、更地渡し、ゴルフ場が近い、スーパーが近い、市街地が近い、陽当り良好、閑静な住宅地、周辺交通量少なめ、眺望良好、高台に立地 |
Features pickup 特徴ピックアップ | | Pre-ground survey / 2 along the line more accessible / Vacant lot passes / It is close to golf course / Super close / It is close to the city / Yang per good / A quiet residential area / Around traffic fewer / Or more before road 6m / Corner lot / No construction conditions / Leafy residential area / Good view / City gas / Located on a hill 地盤調査済 /2沿線以上利用可 /更地渡し /ゴルフ場が近い /スーパーが近い /市街地が近い /陽当り良好 /閑静な住宅地 /周辺交通量少なめ /前道6m以上 /角地 /建築条件なし /緑豊かな住宅地 /眺望良好 /都市ガス /高台に立地 | Price 価格 | | 24,800,000 yen ~ 27,800,000 yen 2480万円 ~ 2780万円 | Building coverage, floor area ratio 建ぺい率・容積率 | | Kenpei rate: 40%, Volume ratio: 80% 建ペい率:40%、容積率:80% | Sales compartment 販売区画数 | | 4 compartments 4区画 | Total number of compartments 総区画数 | | 4 compartments 4区画 | Land area 土地面積 | | 129.59 sq m ~ 132.4 sq m (registration) 129.59m2 ~ 132.4m2(登記) | Driveway burden-road 私道負担・道路 | | East concrete pavement 東側コンクリート舗装 | Land situation 土地状況 | | Vacant lot 更地 | Construction completion time 造成完了時期 | | January 2014 2014年1月 | Address 住所 | | Kawasaki City, Kanagawa Prefecture Aso-ku Hososan 8 神奈川県川崎市麻生区細山8 | Traffic 交通 | | Keio Sagamihara Line "Keio Yomiuri Land" walk 25 minutes Odakyu line "Yurikeoka" walk 25 minutes Odakyu line "Shinyurigaoka" bus 9 minutes Chiyo months hill nine-chome, walk 8 minutes 京王相模原線「京王よみうりランド」歩25分 小田急線「百合ヶ丘」歩25分 小田急線「新百合ヶ丘」バス9分千代ヶ丘九丁目歩8分
| Related links 関連リンク | | [Related Sites of this company] 【この会社の関連サイト】 | Person in charge 担当者より | | Person in charge of Shibuya Katsuhito Age: 40s [Favorite food] Uiro, Grilled meat [hobby] PC creating, Skiing [Word] Machida was born, Is Machida grew up. We've got more information, such as information of local. Please more and more questions! 担当者渋谷 勝仁年齢:40代【好きな食べ物】ういろう、焼肉 【趣味】パソコン作成、スキー 【一言】町田生まれ、町田育ちです。地域の情報など詳しくお伝えします。どんどん質問して下さい! | Contact お問い合せ先 | | TEL: 0800-603-2732 [Toll free] mobile phone ・ Also available from PHS Caller ID is not notified Please contact the "saw SUUMO (Sumo)" If it does not lead, If the real estate company TEL:0800-603-2732【通話料無料】携帯電話・PHSからもご利用いただけます 発信者番号は通知されません 「SUUMO(スーモ)を見た」と問い合わせください つながらない方、不動産会社の方は
| Land of the right form 土地の権利形態 | | Ownership 所有権 | Time delivery 引き渡し時期 | | January 2014 2014年1月 | Land category 地目 | | Residential land 宅地 | Use district 用途地域 | | One low-rise 1種低層 | Other limitations その他制限事項 | | Regulations have by the Landscape Act, Height district, Site area minimum Yes, Irregular land, On-site step Yes, Contact road and the step Yes, Setback Yes 景観法による規制有、高度地区、敷地面積最低限度有、不整形地、敷地内段差有、接道と段差有、壁面後退有 | Overview and notices その他概要・特記事項 | | Contact: Shibuya Katsuhito, Facilities: Public Water Supply, This sewage, City gas 担当者:渋谷 勝仁、設備:公営水道、本下水、都市ガス | Company profile 会社概要 | | <Mediation> Governor of Tokyo (1) No. 089264 (Corporation) Tokyo Metropolitan Government Building Lots and Buildings Transaction Business Association (Corporation) metropolitan area real estate Fair Trade Council member (Ltd.) Urban Home Machida branch Yubinbango194-0022 Tokyo Machida Morino 1-34-10 first Yazawa building first floor <仲介>東京都知事(1)第089264号(公社)東京都宅地建物取引業協会会員 (公社)首都圏不動産公正取引協議会加盟(株)アーバンホーム町田支店〒194-0022 東京都町田市森野1-34-10 第1矢沢ビル1階 |
Local land photo現地土地写真  Local (12 May 2013) Shooting
現地(2013年12月)撮影
View photos from the local現地からの眺望写真  Local (12 May 2013) Shooting
現地(2013年12月)撮影
Local photos, including front road前面道路含む現地写真  Local (12 May 2013) Shooting
現地(2013年12月)撮影
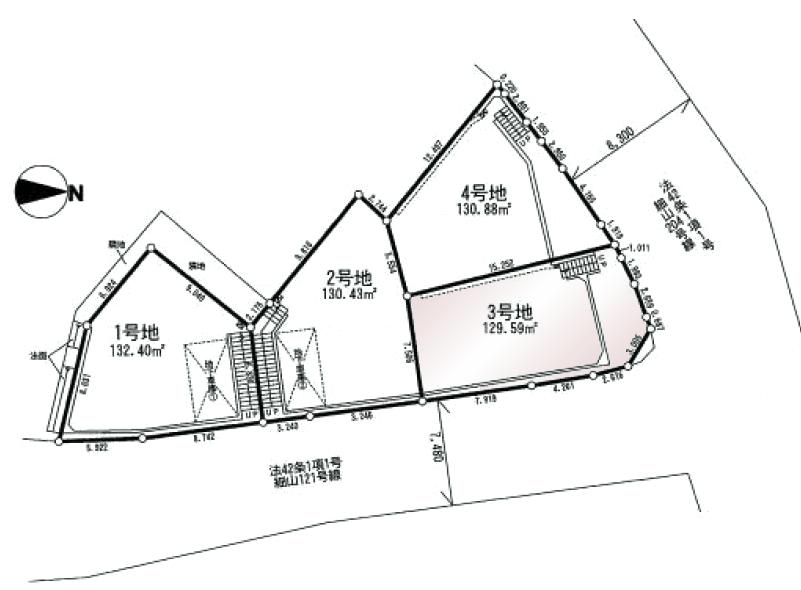
Compartment figure区画図  Land price 25,800,000 yen, Land area 129.59 sq m
土地価格2580万円、土地面積129.59m2
Local land photo現地土地写真  Local (12 May 2013) Shooting
現地(2013年12月)撮影
Local photos, including front road前面道路含む現地写真  Local (12 May 2013) Shooting
現地(2013年12月)撮影
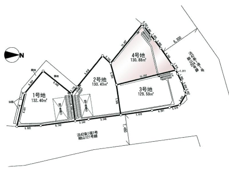
Compartment figure区画図  Land price 27,800,000 yen, Land area 132.4 sq m
土地価格2780万円、土地面積132.4m2
 Land price 26,800,000 yen, Land area 130.43 sq m
土地価格2680万円、土地面積130.43m2
 Land price 26,800,000 yen, Land area 130.43 sq m
土地価格2680万円、土地面積130.43m2
 Supermarket
スーパー
 Primary school
小学校
 Junior high school
中学校
Location
|