|
|
Kawasaki City, Kanagawa Prefecture Nakahara-ku,
神奈川県川崎市中原区
|
|
Tokyu Toyoko Line "Hiyoshi" walk 13 minutes
東急東横線「日吉」歩13分
|
|
Popular Tokyu Toyoko Line "Hiyoshi" station, The convenience of the "original Sumiyoshi" station walk 13 minutes, Detached district of all 16 compartments that combines the comfort of the latest design house is born.
人気の東急東横線「日吉」駅、「元住吉」駅徒歩13分の利便性に、最新デザイン住宅の快適性を兼ね備えた全16区画の戸建街が誕生します。
|
|
■ Popular Toyoko, "Hiyoshi" station of the Meguro line first train, Shopping district is attractive "original Sumiyoshi" station walk 13 minutes ■ Adopt a 2 × 4 construction method of strong confidence in earthquake ■ Cherry trees healing spot of Yakamigawa in the neighborhood ■ Structure building frame 10 year warranty + 10-year continuation guarantee (paid) ■ Equipment 10-year warranty ■ Termite 10-year warranty + after 10 years free re-construction ■ Ground 20-year warranty ■ Implement the inspection by a third party
■人気の東横線、目黒線始発の「日吉」駅、商店街が魅力的な「元住吉」駅徒歩13分■地震にも強い安心の2×4工法を採用■近隣にある矢上川の桜並木は癒しスポット■構造躯体10年保証+10年継続保証(有償)■設備機器10年保証■白蟻10年保証+10年後無料再施工■地盤20年保証■第三者機関による検査を実施
|
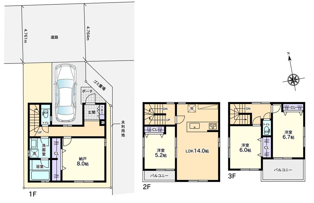
Features pickup 特徴ピックアップ | | Pre-ground survey / 2 along the line more accessible / It is close to the city / Yang per good / Flat to the station / Around traffic fewer / Starting station / Leafy residential area / Urban neighborhood / City gas / Flat terrain / Development subdivision in / Building plan example there 地盤調査済 /2沿線以上利用可 /市街地が近い /陽当り良好 /駅まで平坦 /周辺交通量少なめ /始発駅 /緑豊かな住宅地 /都市近郊 /都市ガス /平坦地 /開発分譲地内 /建物プラン例有り |
Event information イベント情報 | | Local sales meetings (Please be sure to ask in advance) schedule / During the public time / 11:00 ~ 17: 004 Building completion! Because you can your experience actual equipment specifications, , Please visit us on this occasion. 現地販売会(事前に必ずお問い合わせください)日程/公開中時間/11:00 ~ 17:004号棟完成!実際の設備仕様がご体感いただけますので、この機会にぜひご見学ください。 |
Price 価格 | | 35,300,000 yen 3530万円 |
Building coverage, floor area ratio 建ぺい率・容積率 | | Building coverage: 60% Volume ratio: 200% 建ぺい率:60% 容積率:200% |
Sales compartment 販売区画数 | | 1 compartment 1区画 |
Total number of compartments 総区画数 | | 2 compartment 2区画 |
Land area 土地面積 | | 69.54 sq m (registration) 69.54m2(登記) |
Driveway burden-road 私道負担・道路 | | 4.7m road surface, 5m development road 4.7m公道面、5m開発道路 |
Land situation 土地状況 | | Vacant lot 更地 |
Address 住所 | | Kawasaki City, Kanagawa Prefecture Nakahara-ku, Kizuki 4-59 神奈川県川崎市中原区木月4-59 |
Traffic 交通 | | Tokyu Toyoko Line "Hiyoshi" walk 13 minutes Tokyu Toyoko Line "Motosumiyoshi" walk 13 minutes JR Yokosuka Line "Kawasaki" walk 22 minutes 東急東横線「日吉」歩13分 東急東横線「元住吉」歩13分 JR横須賀線「新川崎」歩22分 |
Contact お問い合せ先 | | (Ltd.) Kurearu TEL: 045-260-6173 "saw SUUMO (Sumo)" and please contact (株)クレアールTEL:045-260-6173「SUUMO(スーモ)を見た」と問い合わせください |
Land of the right form 土地の権利形態 | | Ownership 所有権 |
Time delivery 引き渡し時期 | | Immediate delivery allowed 即引渡し可 |
Land category 地目 | | Residential land 宅地 |
Use district 用途地域 | | One dwelling 1種住居 |
Other limitations その他制限事項 | | Quasi-fire zones, Height ceiling Yes, Shade limit Yes 準防火地域、高さ最高限度有、日影制限有 |
Overview and notices その他概要・特記事項 | | Facilities: Public Water Supply, This sewage, City gas, Tokyo Electric Power Co. 設備:公営水道、本下水、都市ガス、東京電力 |
Company profile 会社概要 | | <Mediation> Governor of Kanagawa Prefecture (3) No. 023309 (Ltd.) Kurearu Yubinbango232-0014 Yokohama City, Kanagawa Prefecture, Minami-ku, Yoshino-cho 3-7-6 <仲介>神奈川県知事(3)第023309号(株)クレアール〒232-0014 神奈川県横浜市南区吉野町3-7-6 |