|
|
Kawasaki City, Kanagawa Prefecture Tama-ku,
神奈川県川崎市多摩区
|
|
Odakyu line "Noborito" walk 9 minutes
小田急線「登戸」歩9分
|
|
2 along the line 3 line Available A quiet residential area That there is no building conditions can be building in your favorite House manufacturer.
2沿線3路線利用可 閑静な住宅街 建築条件はございませんのでお好きなハウスメーカーで建築できます。
|
Features pickup 特徴ピックアップ | | 2 along the line more accessible / Vacant lot passes / Super close / A quiet residential area / No construction conditions / City gas / Flat terrain 2沿線以上利用可 /更地渡し /スーパーが近い /閑静な住宅地 /建築条件なし /都市ガス /平坦地 |
Price 価格 | | 33 million yen 3300万円 |
Building coverage, floor area ratio 建ぺい率・容積率 | | 60% ・ 200% 60%・200% |
Sales compartment 販売区画数 | | 1 compartment 1区画 |
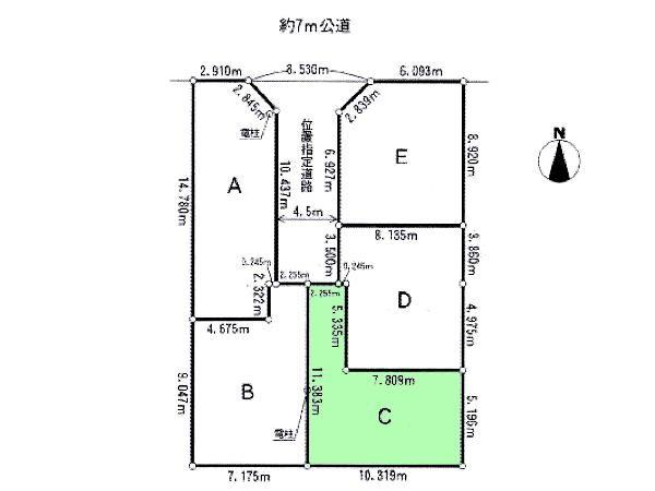
Land area 土地面積 | | 75.77 sq m (registration) 75.77m2(登記) |
Driveway burden-road 私道負担・道路 | | Share equity 60 sq m × (1 / 5), North 4.5m width 共有持分60m2×(1/5)、北4.5m幅 |
Land situation 土地状況 | | Vacant lot 更地 |
Address 住所 | | Kawasaki City, Kanagawa Prefecture Tama-ku, Shukugawara 2 神奈川県川崎市多摩区宿河原2 |
Traffic 交通 | | Odakyu line "Noborito" walk 9 minutes JR Nambu Line "Shukugawara" walk 10 minutes Odakyu line "Mukogaoka amusement" walk 10 minutes 小田急線「登戸」歩9分 JR南武線「宿河原」歩10分 小田急線「向ヶ丘遊園」歩10分
|
Related links 関連リンク | | [Related Sites of this company] 【この会社の関連サイト】 |
Person in charge 担当者より | | Person in charge of real-estate and building FP Nishimura TsuyoshiKo Age: 40 Daigyokai experience: In the eight years, Ltd. Anshin My Home, To dispel concerns about real estate purchase even a little, We offer peace of mind as a professional real estate sales. "Appropriate purchase price," "mortgage rates comparison," "disaster", etc., Please feel free to contact us. 担当者宅建FP西村 剛行年齢:40代業界経験:8年株式会社あんしんマイホームでは、不動産購入に対する不安を少しでも払拭し、不動産販売のプロとして安心をご提供いたします。「適正な購入価格」「住宅ローン金利比較」「災害」等、お気軽にご相談下さい。 |
Contact お問い合せ先 | | TEL: 0800-602-5886 [Toll free] mobile phone ・ Also available from PHS Caller ID is not notified Please contact the "saw SUUMO (Sumo)" If it does not lead, If the real estate company TEL:0800-602-5886【通話料無料】携帯電話・PHSからもご利用いただけます 発信者番号は通知されません 「SUUMO(スーモ)を見た」と問い合わせください つながらない方、不動産会社の方は
|
Land of the right form 土地の権利形態 | | Ownership 所有権 |
Time delivery 引き渡し時期 | | Consultation 相談 |
Land category 地目 | | Residential land 宅地 |
Use district 用途地域 | | One middle and high 1種中高 |
Other limitations その他制限事項 | | Regulations have by the Landscape Act, Height district, Quasi-fire zones, Height ceiling Yes, Shade limit Yes 景観法による規制有、高度地区、準防火地域、高さ最高限度有、日影制限有 |
Overview and notices その他概要・特記事項 | | Contact: Nishimura TsuyoshiKo, Facilities: Public Water Supply, This sewage, City gas 担当者:西村 剛行、設備:公営水道、本下水、都市ガス |
Company profile 会社概要 | | <Mediation> Governor of Kanagawa Prefecture (1) the first 027,909 No. FP housing counseling network Co., Ltd. Anshin My Home Yubinbango213-0011 Kawasaki City, Kanagawa Prefecture Takatsu-ku, Hisamoto 3-13-10 <仲介>神奈川県知事(1)第027909号FP住宅相談ネットワーク(株)あんしんマイホーム〒213-0011 神奈川県川崎市高津区久本3-13-10 |