Land/Building » Kanto » Kanagawa Prefecture » Kohoku-ku, Yokohama
 
| | Yokohama-shi, Kanagawa-ku, Kohoku 神奈川県横浜市港北区 |
| JR Yokohama Line "small desk" walk 4 minutes JR横浜線「小机」歩4分 |
Features pickup 特徴ピックアップ | | Vacant lot passes / Super close / Flat to the station / No construction conditions / City gas / Building plan example there 更地渡し /スーパーが近い /駅まで平坦 /建築条件なし /都市ガス /建物プラン例有り | Price 価格 | | 35,800,000 yen 3580万円 | Building coverage, floor area ratio 建ぺい率・容積率 | | Fifty percent ・ 80% 50%・80% | Sales compartment 販売区画数 | | 1 compartment 1区画 | Land area 土地面積 | | 126.36 sq m (measured) 126.36m2(実測) | Driveway burden-road 私道負担・道路 | | 4.1 sq m , West 2.7m width 4.1m2、西2.7m幅 | Land situation 土地状況 | | Vacant lot 更地 | Address 住所 | | Yokohama-shi, Kanagawa-ku, Kohoku small desk-cho 神奈川県横浜市港北区小机町 | Traffic 交通 | | JR Yokohama Line "small desk" walk 4 minutes Blue Line "Shin-Yokohama" walk 30 minutes Tokaido Shinkansen "Shin-Yokohama" walk 28 minutes JR横浜線「小机」歩4分 ブルーライン「新横浜」歩30分 東海道新幹線「新横浜」歩28分
| Related links 関連リンク | | [Related Sites of this company] 【この会社の関連サイト】 | Contact お問い合せ先 | | (Yes) Yokohama western building TEL: 0800-808-4926 [Toll free] mobile phone ・ Also available from PHS Caller ID is not notified Please contact the "saw SUUMO (Sumo)" If it does not lead, If the real estate company (有)横浜西部建物TEL:0800-808-4926【通話料無料】携帯電話・PHSからもご利用いただけます 発信者番号は通知されません 「SUUMO(スーモ)を見た」と問い合わせください つながらない方、不動産会社の方は
| Land of the right form 土地の権利形態 | | Ownership 所有権 | Time delivery 引き渡し時期 | | Consultation 相談 | Land category 地目 | | Residential land 宅地 | Use district 用途地域 | | One low-rise, Residential 1種低層、近隣商業 | Other limitations その他制限事項 | | Set-back: already, Residential land development construction regulation area, Quasi-fire zones セットバック:済、宅地造成工事規制区域、準防火地域 | Company profile 会社概要 | | <Mediation> Governor of Kanagawa Prefecture (10) No. 011391 (the company), Kanagawa Prefecture Building Lots and Buildings Transaction Business Association (Corporation) metropolitan area real estate Fair Trade Council member (with) Yokohama western building Yubinbango226-0003 Yokohama-shi, Kanagawa-ku, green lintel 3-1-10 <仲介>神奈川県知事(10)第011391号(社)神奈川県宅地建物取引業協会会員 (公社)首都圏不動産公正取引協議会加盟(有)横浜西部建物〒226-0003 神奈川県横浜市緑区鴨居3-1-10 |
Compartment figure区画図  Land price 35,800,000 yen, Land area 126.36 sq m
土地価格3580万円、土地面積126.36m2
Local land photo現地土地写真  Local (10 May 2013) Shooting
現地(2013年10月)撮影
 Local (10 May 2013) Shooting
現地(2013年10月)撮影
Local photos, including front road前面道路含む現地写真  Local (10 May 2013) Shooting
現地(2013年10月)撮影
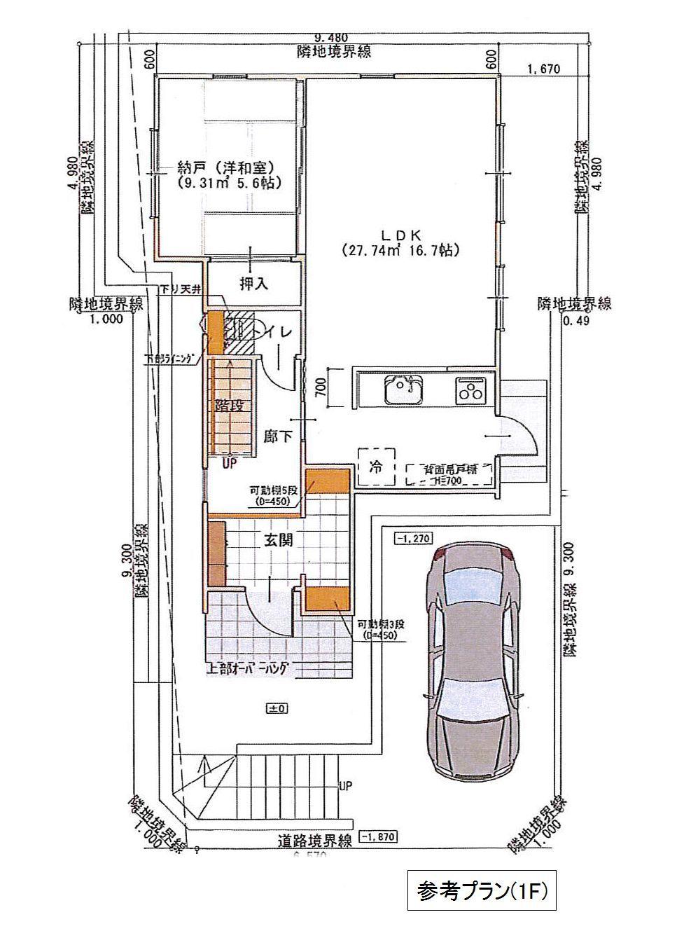
Building plan example (floor plan)建物プラン例(間取り図)  Architecture Reference Plan (1F)
建築参考プラン(1F)
 Architecture Reference Plan (2F)
建築参考プラン(2F)
Local photos, including front road前面道路含む現地写真  Local (10 May 2013) Shooting
現地(2013年10月)撮影
Convenience storeコンビニ  30m until the Lawson Store 100 Kohoku small desk-cho
ローソンストア100 港北小机町まで30m
 50m to Sunkus small desk shop
サンクス小机店まで50m
Location
|