Land/Building » Kanto » Kanagawa Prefecture » Yokohama Sakae-ku
 
| | Yokohama-shi, Kanagawa-ku Sakae 神奈川県横浜市栄区 |
| JR Keihin Tohoku Line "Konandai" walk 15 minutes JR京浜東北線「港南台」歩15分 |
| ■ No construction conditions, You can architecture in your favorite House manufacturer ■ Original Bridge subdivision in shaping land ■建築条件無し、お好きなハウスメーカーで建築可能です ■元大橋分譲地内の整形地 |
| ● up to about Sakurai Elementary School 900m, Up to about Hongo Junior High School 1300m ● Konandai about 600m from the shopping center ●桜井小学校まで約900m、本郷中学校まで約1300m●港南台ショッピングセンターまで約600m |
Features pickup 特徴ピックアップ | | Land more than 100 square meters / Yang per good / A quiet residential area / Corner lot / Shaping land / No construction conditions / City gas 土地100坪以上 /陽当り良好 /閑静な住宅地 /角地 /整形地 /建築条件なし /都市ガス | Price 価格 | | 78 million yen 7800万円 | Building coverage, floor area ratio 建ぺい率・容積率 | | Fifty percent ・ 80% 50%・80% | Sales compartment 販売区画数 | | 1 compartment 1区画 | Land area 土地面積 | | 363.32 sq m (registration) 363.32m2(登記) | Driveway burden-road 私道負担・道路 | | Nothing, South 4.5m width, West 4.5m width 無、南4.5m幅、西4.5m幅 | Land situation 土地状況 | | Furuya There 古家有り | Address 住所 | | Yokohama-shi, Kanagawa-ku Sakae Motoohashi 1 神奈川県横浜市栄区元大橋1 | Traffic 交通 | | JR Keihin Tohoku Line "Konandai" walk 15 minutes JR京浜東北線「港南台」歩15分
| Related links 関連リンク | | [Related Sites of this company] 【この会社の関連サイト】 | Person in charge 担当者より | | [Regarding this property.] ● You can architecture in your favorite House manufacturer ● 15-minute walk from JR Kōnandai Station 【この物件について】●お好きなハウスメーカーで建築できます ●JR港南台駅まで徒歩15分 | Contact お問い合せ先 | | TEL: 0800-603-0210 [Toll free] mobile phone ・ Also available from PHS Caller ID is not notified Please contact the "saw SUUMO (Sumo)" If it does not lead, If the real estate company TEL:0800-603-0210【通話料無料】携帯電話・PHSからもご利用いただけます 発信者番号は通知されません 「SUUMO(スーモ)を見た」と問い合わせください つながらない方、不動産会社の方は
| Land of the right form 土地の権利形態 | | Ownership 所有権 | Time delivery 引き渡し時期 | | Consultation 相談 | Land category 地目 | | Residential land 宅地 | Use district 用途地域 | | One low-rise 1種低層 | Other limitations その他制限事項 | | Residential land development construction regulation area, Height district, ・ Article 22 section 宅地造成工事規制区域、高度地区、・第22条区域 | Overview and notices その他概要・特記事項 | | Facilities: Public Water Supply, This sewage, City gas, Underground garage 設備:公営水道、本下水、都市ガス、地下車庫 | Company profile 会社概要 | | <Mediation> Minister of Land, Infrastructure and Transport (8) No. 003,394 (one company) Real Estate Association (Corporation) metropolitan area real estate Fair Trade Council member Taisei the back Real Estate Sales Co., Ltd. Ofuna office Yubinbango247-0056 Kamakura, Kanagawa Prefecture Ofuna 1-24-5 Yokohama Ofuna Branch building the third floor <仲介>国土交通大臣(8)第003394号(一社)不動産協会会員 (公社)首都圏不動産公正取引協議会加盟大成有楽不動産販売(株)大船営業所〒247-0056 神奈川県鎌倉市大船1-24-5 横浜銀行大船支店ビル3階 |
 Local photos, including front road
前面道路含む現地写真
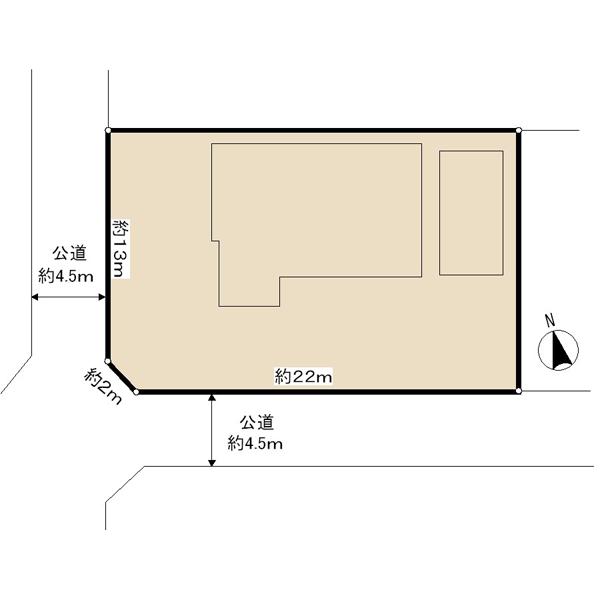
Compartment figure区画図  Land price 78 million yen, Land area 363.32 sq m
土地価格7800万円、土地面積363.32m2
 Local photos, including front road
前面道路含む現地写真
 Local photos, including front road
前面道路含む現地写真
Shopping centreショッピングセンター  Konandai 600m from the shopping center
港南台ショッピングセンターまで600m
 Local land photo
現地土地写真
 Local land photo
現地土地写真
 Local land photo
現地土地写真
 Local photos, including front road
前面道路含む現地写真
 Local photos, including front road
前面道路含む現地写真
 Local land photo
現地土地写真
 Local land photo
現地土地写真
 Local photos, including front road
前面道路含む現地写真
Primary school小学校  900m until Sakurai Elementary School
桜井小学校まで900m
Junior high school中学校  1300m to Hongo Junior High School
本郷中学校まで1300m
Station駅  JR Kōnandai Station
JR港南台駅
Location
|