100 million 11,650,000 yen, 373.43 sq m
Land/Building » Kanto » Kanagawa Prefecture » Totsuka-ku, Yokohama-shi
 
| | Kanagawa Prefecture, Totsuka-ku, Yokohama-shi 神奈川県横浜市戸塚区 |
| JR Yokosuka Line "Higashi-Totsuka" walk 13 minutes JR横須賀線「東戸塚」歩13分 |
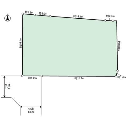
Price 価格 | | 100 million 11,650,000 yen 1億1165万円 | Building coverage, floor area ratio 建ぺい率・容積率 | | 40% ・ 80% 40%・80% | Sales compartment 販売区画数 | | 1 compartment 1区画 | Land area 土地面積 | | 373.43 sq m (registration) 373.43m2(登記) | Driveway burden-road 私道負担・道路 | | Nothing, South 5.5m width 無、南5.5m幅 | Land situation 土地状況 | | Vacant lot 更地 | Address 住所 | | Kanagawa Prefecture, Totsuka-ku, Yokohama-shi Hirado 4 神奈川県横浜市戸塚区平戸4 | Traffic 交通 | | JR Yokosuka Line "Higashi-Totsuka" walk 13 minutes JR横須賀線「東戸塚」歩13分
| Person in charge 担当者より | | Rep Mitsuhashi Kazuhito 担当者三橋 一仁 | Contact お問い合せ先 | | Tokyu Livable Inc. Higashi-Totsuka Center TEL: 0120-109082 [Toll free] Please contact the "saw SUUMO (Sumo)" 東急リバブル(株)東戸塚センターTEL:0120-109082【通話料無料】「SUUMO(スーモ)を見た」と問い合わせください | Land of the right form 土地の権利形態 | | Ownership 所有権 | Time delivery 引き渡し時期 | | Immediate delivery allowed 即引渡し可 | Land category 地目 | | Residential land 宅地 | Use district 用途地域 | | One low-rise 1種低層 | Other limitations その他制限事項 | | Former Nippon Telegraph and Telephone Public Corporation subdivision adjacent. For the south terraced, Yang per good. 旧電電公社分譲地隣接。南ひな壇の為、陽当り良好。 | Overview and notices その他概要・特記事項 | | Contact: Mitsuhashi Kazuhito 担当者:三橋 一仁 | Company profile 会社概要 | | <Mediation> Minister of Land, Infrastructure and Transport (10) No. 002611 (one company) Real Estate Association (Corporation) metropolitan area real estate Fair Trade Council member Tokyu Livable Inc. Higashi-Totsuka center Yubinbango244-0801 Kanagawa Prefecture, Totsuka-ku, Yokohama-shi Shinano-machi 516-8 Higashi-Totsuka Station East Plaza first floor <仲介>国土交通大臣(10)第002611号(一社)不動産協会会員 (公社)首都圏不動産公正取引協議会加盟東急リバブル(株)東戸塚センター〒244-0801 神奈川県横浜市戸塚区品濃町516‐8 東戸塚駅東口プラザ1階 |
Local land photo現地土地写真  Local: Good day for facing the south road
現地:南道路に面するため日当たり良好
Compartment figure区画図  Current state is the vacant lot
現況は更地です
Location
|