Land/Building » Kanto » Kanagawa Prefecture » Zushi
 
| | Kanagawa Prefecture Zushi 神奈川県逗子市 |
| JR Yokosuka Line "Zushi" walk 10 minutes JR横須賀線「逗子」歩10分 |
| ■ Shin-Zushi Station 5-minute walk ■ Zushi Station a 10-minute walk ■ Southeast road sunny ■ Zushi coast within walking distance ■ Your delivery at the vacant lot ■ Building conditions There is no. ■ A quiet residential area ■ There building reference plan. ■新逗子駅徒歩5分■逗子駅徒歩10分■東南道路日当たり良好■逗子海岸徒歩圏内■更地にてお引渡し■建築条件はございません。■閑静な住宅地■建物参考プランございます。 |
Features pickup 特徴ピックアップ | | 2 along the line more accessible / Vacant lot passes / Within 2km to the sea / Yang per good / Flat to the station / A quiet residential area / Around traffic fewer / No construction conditions / City gas / Building plan example there 2沿線以上利用可 /更地渡し /海まで2km以内 /陽当り良好 /駅まで平坦 /閑静な住宅地 /周辺交通量少なめ /建築条件なし /都市ガス /建物プラン例有り | Price 価格 | | 37,300,000 yen 3730万円 | Building coverage, floor area ratio 建ぺい率・容積率 | | Fifty percent ・ Hundred percent 50%・100% | Sales compartment 販売区画数 | | 1 compartment 1区画 | Land area 土地面積 | | 115.79 sq m (measured) 115.79m2(実測) | Driveway burden-road 私道負担・道路 | | Nothing, Southeast 4.5m width (contact the road width 7.3m) 無、南東4.5m幅(接道幅7.3m) | Land situation 土地状況 | | Furuya There vacant lot passes 古家有り更地渡し | Address 住所 | | Kanagawa Prefecture Zushi Zushi 6 神奈川県逗子市逗子6 | Traffic 交通 | | JR Yokosuka Line "Zushi" walk 10 minutes Keikyū Zushi Line "Shin Zushi" walk 5 minutes JR横須賀線「逗子」歩10分 京急逗子線「新逗子」歩5分
| Person in charge 担当者より | | Person in charge of real-estate and building Ishii MinoruSho Age: 30 Daigyokai Experience: 12 years Please feel free to contact us. 担当者宅建石井 稔尚年齢:30代業界経験:12年お気軽にご相談下さい。 | Contact お問い合せ先 | | TEL: 0800-603-9310 [Toll free] mobile phone ・ Also available from PHS Caller ID is not notified Please contact the "saw SUUMO (Sumo)" If it does not lead, If the real estate company TEL:0800-603-9310【通話料無料】携帯電話・PHSからもご利用いただけます 発信者番号は通知されません 「SUUMO(スーモ)を見た」と問い合わせください つながらない方、不動産会社の方は
| Land of the right form 土地の権利形態 | | Ownership 所有権 | Time delivery 引き渡し時期 | | Consultation 相談 | Land category 地目 | | Residential land 宅地 | Use district 用途地域 | | One low-rise 1種低層 | Overview and notices その他概要・特記事項 | | Contact: Ishii MinoruSho, Facilities: Public Water Supply, This sewage, City gas 担当者:石井 稔尚、設備:公営水道、本下水、都市ガス | Company profile 会社概要 | | <Seller> Governor of Kanagawa Prefecture (1) No. 027063 (Ltd.) Life Yubinbango249-0006 Kanagawa Prefecture Zushi Zushi 5-10-25 <売主>神奈川県知事(1)第027063号(株)ライフ〒249-0006 神奈川県逗子市逗子5-10-25 |
 Local land photo
現地土地写真
 Local photos, including front road
前面道路含む現地写真
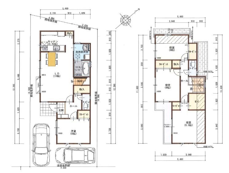
Building plan example (floor plan)建物プラン例(間取り図)  Building plan example (A section) building price 14 million yen, Building area 107.65 sq m
建物プラン例(A区画)建物価格1400万円、建物面積107.65m2
Compartment figure区画図  Land price 37,300,000 yen, Land area 115.79 sq m
土地価格3730万円、土地面積115.79m2
Primary school小学校  Zushi 700m up to elementary school
逗子小学校まで700m
 Sale already cityscape photo
分譲済街並み写真
Government office役所  Zushi 650m to City Hall
逗子市役所まで650m
Library図書館  Zushi 700m to culture Plaza
逗子文化プラザまで700m
Post office郵便局  Zushi 400m until the post office
逗子郵便局まで400m
Other Environmental Photoその他環境写真  Zushi 700m to the coast
逗子海岸まで700m
Kindergarten ・ Nursery幼稚園・保育園  Zushi 850m to kindergarten
逗子幼稚園まで850m
 200m to St. Mary's kindergarten
聖マリア幼稚園まで200m
Location
|