Land/Building » Kansai » Osaka prefecture » Minato-ku
 
| | Osaka-shi, Osaka, Minato-ku, 大阪府大阪市港区 |
| Subway Chuo Line "Asashiobashi" walk 11 minutes 地下鉄中央線「朝潮橋」歩11分 |
| Ikeshima 2-chome Land and buildings set reference price 19,800,000 yen 池島2丁目 土地建物セット参考価格1980万円 |
| ■ Ikeshima park walk 1 minute ■ The price in the newly built single-family! ! ■ Free design corresponding land !! ■池島公園徒歩1分■新築一戸建てでこの価格!!■自由設計対応土地!! |
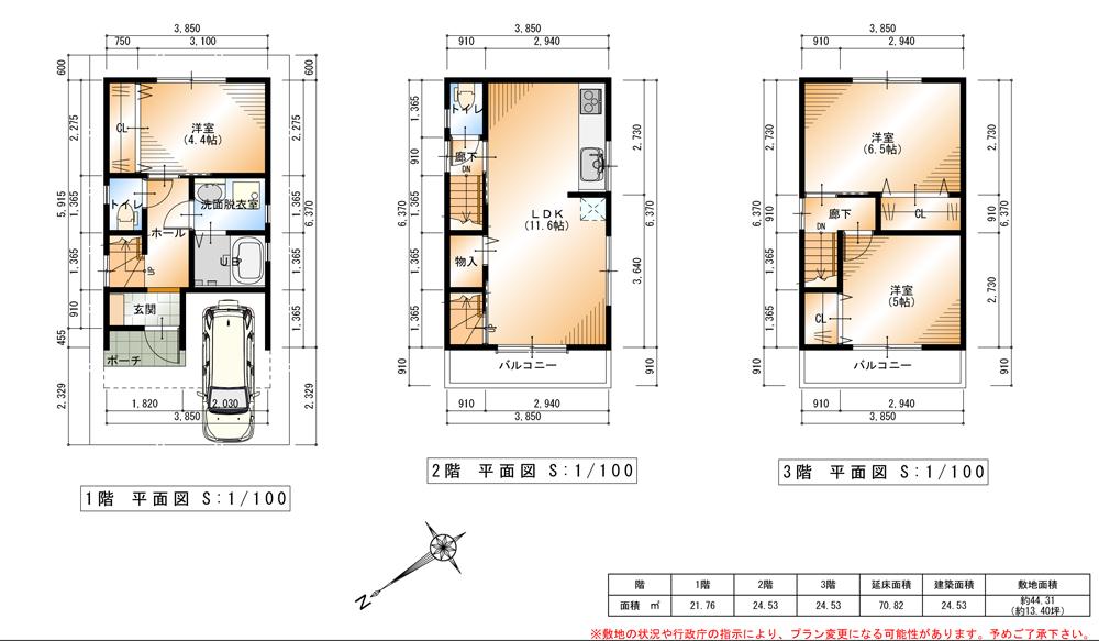
Features pickup 特徴ピックアップ | | 2 along the line more accessible / Flat to the station / A quiet residential area / Around traffic fewer / City gas / Flat terrain 2沿線以上利用可 /駅まで平坦 /閑静な住宅地 /周辺交通量少なめ /都市ガス /平坦地 | Price 価格 | | 8,240,000 yen 824万円 | Building coverage, floor area ratio 建ぺい率・容積率 | | Kenpei rate: 60%, Volume ratio: 200% (the second kind medium and high-rise exclusive residential area) 建ペい率:60%、容積率:200%(第二種中高層住居専用地域) | Sales compartment 販売区画数 | | 1 compartment 1区画 | Total number of compartments 総区画数 | | 1 compartment 1区画 | Land area 土地面積 | | 44.31 sq m (registration) 44.31m2(登記) | Driveway burden-road 私道負担・道路 | | Road width: 4m ・ , Asphaltic pavement 道路幅:4m・、アスファルト舗装 | Land situation 土地状況 | | Furuya There 古家有り | Address 住所 | | Osaka-shi, Osaka, Minato-ku, Ikeshima 2 大阪府大阪市港区池島2 | Traffic 交通 | | Subway Chuo Line "Asashiobashi" walk 11 minutes Metro center line "Osaka Port" walk 24 minutes Subway Chuo Line "Bentencho" walk 26 minutes 地下鉄中央線「朝潮橋」歩11分 地下鉄中央線「大阪港」歩24分 地下鉄中央線「弁天町」歩26分
| Related links 関連リンク | | [Related Sites of this company] 【この会社の関連サイト】 | Contact お問い合せ先 | | Sun house (Ltd.) TEL: 0800-600-8106 [Toll free] mobile phone ・ Also available from PHS Caller ID is not notified Please contact the "saw SUUMO (Sumo)" If it does not lead, If the real estate company 太陽住宅(株)TEL:0800-600-8106【通話料無料】携帯電話・PHSからもご利用いただけます 発信者番号は通知されません 「SUUMO(スーモ)を見た」と問い合わせください つながらない方、不動産会社の方は
| Land of the right form 土地の権利形態 | | Ownership 所有権 | Building condition 建築条件 | | With 付 | Land category 地目 | | Residential land 宅地 | Use district 用途地域 | | Two mid-high 2種中高 | Other limitations その他制限事項 | | Regulations have by the Landscape Act, Regulations have by the Aviation Law, Quasi-fire zones 景観法による規制有、航空法による規制有、準防火地域 | Overview and notices その他概要・特記事項 | | Facilities: Public Water Supply, This sewage, City gas 設備:公営水道、本下水、都市ガス | Company profile 会社概要 | | <Seller> governor of Osaka Prefecture (5) Article 042565 No. sun house (Ltd.) Yubinbango550-0027 Osaka-shi, Osaka, Nishi-ku, Kujo 2-14-16 <売主>大阪府知事(5)第042565号太陽住宅(株)〒550-0027 大阪府大阪市西区九条2-14-16 |
Local photos, including front road前面道路含む現地写真  December 2013 local shooting
2013年12月現地撮影
Building plan example (Perth ・ appearance)建物プラン例(パース・外観)  Building plan example Building price 11,560,000 yen Building area 70.82 sq m
建物プラン例 建物価格1156万円 建物面積70.82m2
Otherその他  December 2013 local shooting
2013年12月現地撮影
 December 2013 local shooting
2013年12月現地撮影
Other building plan exampleその他建物プラン例  Building plan example Building price 11,560,000 yen Building area 70.82 sq m
建物プラン例 建物価格1156万円 建物面積70.82m2
Park公園  Ikeshima 25m Ikeshima park to the park
池島公園まで25m 池島公園
The entire compartment Figure全体区画図  Ikeshima 2-chome All one compartment
池島2丁目 全1区画
View photos from the local現地からの眺望写真  View from the local December 2013 local shooting
現地からの眺望2013年12月現地撮影
Route map路線図 ![route map. Metro center line [Asashiobashi] station](/images/osaka/osakashiminato/417ba00034.jpg) Metro center line [Asashiobashi] station
地下鉄中央線【朝潮橋】駅
Building plan example (introspection photo)建物プラン例(内観写真)  Solar housing construction cases (kitchen)
太陽住宅施工例(キッチン)
Station駅 ![station. Metro center line [Asashiobashi] 580m underground center line to the station [Asashiobashi] station](/images/osaka/osakashiminato/417ba00022.jpg) Metro center line [Asashiobashi] 580m underground center line to the station [Asashiobashi] station
地下鉄中央線【朝潮橋】駅まで580m 地下鉄中央線【朝潮橋】駅
Local guide map現地案内図  Solar housing headquarters guide map
太陽住宅本社案内図
Otherその他  December 2013 local shooting
2013年12月現地撮影
Building plan example (introspection photo)建物プラン例(内観写真)  Solar housing construction cases (kitchen)
太陽住宅施工例(キッチン)
Park公園  Yahataya 580m Yahataya park to the park
八幡屋公園まで580m 八幡屋公園
Otherその他  December 2013 local shooting
2013年12月現地撮影
Other building plan exampleその他建物プラン例  Solar housing construction cases (kitchen)
太陽住宅施工例(キッチン)
Park公園  620m Central Gymnasium to Central Gymnasium
中央体育館まで620m 中央体育館
Location
|