|
|
Saitama Prefecture Asaka
埼玉県朝霞市
|
|
Tobu Tojo Line "Asaka" walk 9 minutes
東武東上線「朝霞」歩9分
|
|
For further information, please contact Co-Prosperity House Co., Ltd.! TEL0800-602-6138 customers who would like to see the local, please feel free to contact us. Charm of the land readjustment land within!
お問い合わせは株式会社キョウエイハウスまで!TEL0800‐602‐6138現地をご覧になりたいお客様はお気軽にお問い合わせ下さい。魅力の土地区画整理地内!
|
|
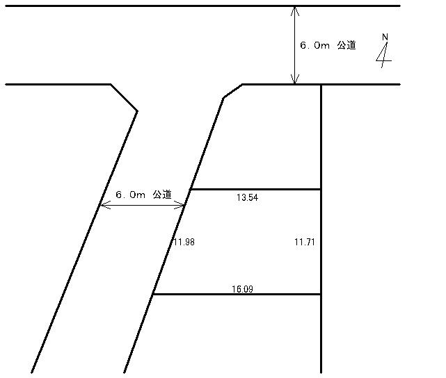
Commute ・ Commute ・ It is conveniently located to shopping, etc.! Front 6.0m is a readjustment land within the public road. There is no building conditions.
通勤・通学・お買いもの等に便利な立地です!前面6.0m公道の区画整理地内です。建築条件はありません。
|
Features pickup 特徴ピックアップ | | Super close / Yang per good / Flat to the station / A quiet residential area / Around traffic fewer / Or more before road 6m / Shaping land / No construction conditions / City gas / Flat terrain / Readjustment land within スーパーが近い /陽当り良好 /駅まで平坦 /閑静な住宅地 /周辺交通量少なめ /前道6m以上 /整形地 /建築条件なし /都市ガス /平坦地 /区画整理地内 |
Event information イベント情報 | | (Please be sure to ask in advance) (事前に必ずお問い合わせください) |
Price 価格 | | 48,800,000 yen 4880万円 |
Building coverage, floor area ratio 建ぺい率・容積率 | | 60% ・ 200% 60%・200% |
Sales compartment 販売区画数 | | 1 compartment 1区画 |
Total number of compartments 総区画数 | | 1 compartment 1区画 |
Land area 土地面積 | | 173.63 sq m (52.52 tsubo) (measured) 173.63m2(52.52坪)(実測) |
Driveway burden-road 私道負担・道路 | | Nothing, West 6m width (contact the road width 11.9m) 無、西6m幅(接道幅11.9m) |
Land situation 土地状況 | | Vacant lot 更地 |
Address 住所 | | Saitama Prefecture Asaka Negishidai 5 埼玉県朝霞市根岸台5 |
Traffic 交通 | | Tobu Tojo Line "Asaka" walk 9 minutes 東武東上線「朝霞」歩9分
|
Person in charge 担当者より | | [Regarding this property.] Asaka Station 9 minute walk ・ It is a flat road. Reserved land in the land readjustment land! Is a front road 6.0m public roads. There is no building conditions. 【この物件について】朝霞駅徒歩9分・平坦な道のりです。土地区画整理地内の保留地!前面道路6.0m公道です。建築条件はありません。 |
Contact お問い合せ先 | | Co., Ltd. Co-Prosperity House TEL: 0800-602-6138 [Toll free] mobile phone ・ Also available from PHS Caller ID is not notified Please contact the "saw SUUMO (Sumo)" If it does not lead, If the real estate company (株)キョウエイハウスTEL:0800-602-6138【通話料無料】携帯電話・PHSからもご利用いただけます 発信者番号は通知されません 「SUUMO(スーモ)を見た」と問い合わせください つながらない方、不動産会社の方は
|
Land of the right form 土地の権利形態 | | Ownership 所有権 |
Time delivery 引き渡し時期 | | Consultation 相談 |
Land category 地目 | | Residential land 宅地 |
Use district 用途地域 | | One dwelling 1種住居 |
Other limitations その他制限事項 | | Set-back: already セットバック:済 |
Overview and notices その他概要・特記事項 | | Facilities: Public Water Supply, This sewage, City gas 設備:公営水道、本下水、都市ガス |
Company profile 会社概要 | | <Mediation> Saitama Governor (1) No. 021693 (Ltd.) Kyoei House Yubinbango351-0011 Saitama Prefecture Asaka Honcho 1-20-1 <仲介>埼玉県知事(1)第021693号(株)キョウエイハウス〒351-0011 埼玉県朝霞市本町1-20-1 |