|
|
Saitama Prefecture Fukaya
埼玉県深谷市
|
|
JR Takasaki Line "Fukaya" walk 15 minutes
JR高崎線「深谷」歩15分
|
|
Schools and city hall blessed with a quiet living environment, Stations and public facilities are within walking distance, It is located in the living convenient location. Parenting is a residential area of generation and senior-friendly please contact us by all means.
閑静な住環境に恵まれ学校や市役所、駅など公共施設は徒歩圏内にあり、生活便利な立地に位置しています。子育て世代やシニア向けの住宅地ですぜひお問合わせ下さい。
|
|
Vacant lot passes, It is close to the city, A quiet residential area, Shaping land
更地渡し、市街地が近い、閑静な住宅地、整形地
|
Features pickup 特徴ピックアップ | | Vacant lot passes / It is close to the city / A quiet residential area / Shaping land 更地渡し /市街地が近い /閑静な住宅地 /整形地 |
Price 価格 | | 4,537,000 yen 453万7000円 |
Building coverage, floor area ratio 建ぺい率・容積率 | | 60% ・ 200% 60%・200% |
Sales compartment 販売区画数 | | 1 compartment 1区画 |
Land area 土地面積 | | 100 sq m (30.24 tsubo) (Registration) 100m2(30.24坪)(登記) |
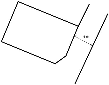
Driveway burden-road 私道負担・道路 | | Nothing, East 4m width 無、東4m幅 |
Land situation 土地状況 | | Furuya There vacant lot passes 古家有り更地渡し |
Address 住所 | | Saitama Prefecture Fukaya Uwanodai 埼玉県深谷市上野台 |
Traffic 交通 | | JR Takasaki Line "Fukaya" walk 15 minutes JR Takasaki Line "Okabe" walk 48 minutes Chichibu "Takekawa" walk 79 minutes JR高崎線「深谷」歩15分 JR高崎線「岡部」歩48分 秩父鉄道「武川」歩79分
|
Person in charge 担当者より | | Person in charge of real-estate and building Mr. house Zhuo Age: 30 Daigyokai experience: now 17 years business 17 years. Taking advantage of past experience and knowledge, We will customers to suits the property be happy to help to be able to guide you! Please come to feel free to shop. 担当者宅建氏家 卓年齢:30代業界経験:17年営業17年目になりました。これまでの経験や知識を生かし、お客様に合った物件をご案内できるようにお手伝いさせて頂きます!お気軽にお店にいらして下さい。 |
Contact お問い合せ先 | | TEL: 0800-603-3652 [Toll free] mobile phone ・ Also available from PHS Caller ID is not notified Please contact the "saw SUUMO (Sumo)" If it does not lead, If the real estate company TEL:0800-603-3652【通話料無料】携帯電話・PHSからもご利用いただけます 発信者番号は通知されません 「SUUMO(スーモ)を見た」と問い合わせください つながらない方、不動産会社の方は
|
Land of the right form 土地の権利形態 | | Ownership 所有権 |
Time delivery 引き渡し時期 | | Consultation 相談 |
Land category 地目 | | Residential land 宅地 |
Use district 用途地域 | | One dwelling 1種住居 |
Overview and notices その他概要・特記事項 | | Contact: Ujiie Table, Facilities: Public Water Supply, This sewage, Individual LPG 担当者:氏家 卓、設備:公営水道、本下水、個別LPG |
Company profile 会社概要 | | <Mediation> Gunma Prefecture Governor (8) No. 003181 (the Company), Gunma Prefecture Building Lots and Buildings Transaction Business Association (Corporation) metropolitan area real estate Fair Trade Council member Co., Ltd. Fuji development Yubinbango377-0007 Gunma Prefecture Shibukawa Ishihara 149-1 <仲介>群馬県知事(8)第003181号(社)群馬県宅地建物取引業協会会員 (公社)首都圏不動産公正取引協議会加盟(株)冨士開発〒377-0007 群馬県渋川市石原149-1 |