5.5 million yen, 243 sq m
Land/Building » Kanto » Saitama Prefecture » Honjo
 
| | Saitama Prefecture Honjo 埼玉県本庄市 |
| JR Hachikō Line "Kodama" walk 10 minutes JR八高線「児玉」歩10分 |
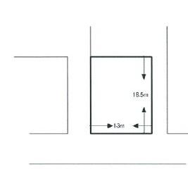
| Clear of south road a site 73.5 square meters! Day is good! South frontage 13m, Also correspondence possible to the north and south 18.5m so many different floor plans! 南道路のゆとりある敷地73.5坪!日当たり良好です!南間口13m、南北18.5mなので様々間取りにも対応可! |
| A 5-minute walk from the Kodama Elementary School! 児玉小学校まで徒歩5分! |
Features pickup 特徴ピックアップ | | Land 50 square meters or more / Siemens south road / Or more before road 6m / No construction conditions 土地50坪以上 /南側道路面す /前道6m以上 /建築条件なし | Price 価格 | | 5.5 million yen 550万円 | Building coverage, floor area ratio 建ぺい率・容積率 | | 60% ・ 200% 60%・200% | Sales compartment 販売区画数 | | 1 compartment 1区画 | Land area 土地面積 | | 243 sq m (73.50 tsubo) (Registration) 243m2(73.50坪)(登記) | Driveway burden-road 私道負担・道路 | | Nothing, South 6m width (contact the road width 13m) 無、南6m幅(接道幅13m) | Land situation 土地状況 | | Vacant lot 更地 | Address 住所 | | Saitama Prefecture Honjo Kodama-cho, Kodama 埼玉県本庄市児玉町児玉 | Traffic 交通 | | JR Hachikō Line "Kodama" walk 10 minutes JR八高線「児玉」歩10分 | Contact お問い合せ先 | | TEL: 0800-603-2213 [Toll free] mobile phone ・ Also available from PHS Caller ID is not notified Please contact the "saw SUUMO (Sumo)" If it does not lead, If the real estate company TEL:0800-603-2213【通話料無料】携帯電話・PHSからもご利用いただけます 発信者番号は通知されません 「SUUMO(スーモ)を見た」と問い合わせください つながらない方、不動産会社の方は
| Land of the right form 土地の権利形態 | | Ownership 所有権 | Time delivery 引き渡し時期 | | Consultation 相談 | Land category 地目 | | field 畑 | Use district 用途地域 | | One middle and high 1種中高 | Overview and notices その他概要・特記事項 | | Facilities: Public Water Supply, This sewage, Individual LPG 設備:公営水道、本下水、個別LPG | Company profile 会社概要 | | <Mediation> Saitama Governor (4) The 016,997 No. Pitattohausu Honjo shop (stock) at Holmes Yubinbango367-0042 Saitama Prefecture Honjo zelkova 1-2-1 <仲介>埼玉県知事(4)第016997号ピタットハウス本庄店(株)アットホームズ〒367-0042 埼玉県本庄市けや木1-2-1 |
 Local land photo
現地土地写真
Compartment figure区画図  Land price 5.5 million yen, Land area 243 sq m
土地価格550万円、土地面積243m2
Location
|