7 million yen, 60.35 sq m
Land/Building » Kanto » Saitama Prefecture » Kawaguchi city
 
| | Kawaguchi City Prefecture 埼玉県川口市 |
| Saitama high-speed rail "Araijuku" walk 7 minutes 埼玉高速鉄道「新井宿」歩7分 |
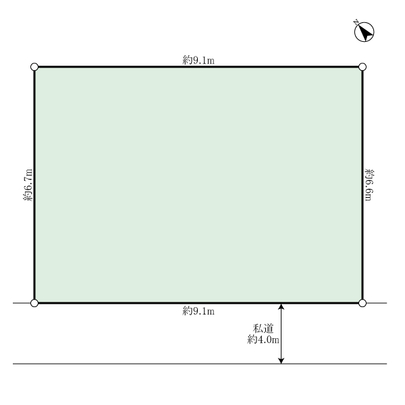
Price 価格 | | 7 million yen 700万円 | Building coverage, floor area ratio 建ぺい率・容積率 | | 60% ・ Hundred percent 60%・100% | Sales compartment 販売区画数 | | 1 compartment 1区画 | Land area 土地面積 | | 60.35 sq m (registration) 60.35m2(登記) | Driveway burden-road 私道負担・道路 | | 5.02 sq m , Southwest 4m width 5.02m2、南西4m幅 | Land situation 土地状況 | | Furuya There 古家有り | Address 住所 | | Kawaguchi City Prefecture Sakuramachi 3 埼玉県川口市桜町3 | Traffic 交通 | | Saitama high-speed rail "Araijuku" walk 7 minutes 埼玉高速鉄道「新井宿」歩7分
| Person in charge 担当者より | | Rep Morishita Shogo 担当者森下 翔伍 | Contact お問い合せ先 | | Tokyu Livable Inc. Kawaguchi Center TEL: 0800-603-0183 [Toll free] mobile phone ・ Also available from PHS Caller ID is not notified Please contact the "saw SUUMO (Sumo)" If it does not lead, If the real estate company 東急リバブル(株)川口センターTEL:0800-603-0183【通話料無料】携帯電話・PHSからもご利用いただけます 発信者番号は通知されません 「SUUMO(スーモ)を見た」と問い合わせください つながらない方、不動産会社の方は
| Land of the right form 土地の権利形態 | | Ownership 所有権 | Time delivery 引き渡し時期 | | Consultation 相談 | Land category 地目 | | Residential land 宅地 | Use district 用途地域 | | One low-rise 1種低層 | Overview and notices その他概要・特記事項 | | Contact: Morishita Shogo 担当者:森下 翔伍 | Company profile 会社概要 | | <Mediation> Minister of Land, Infrastructure and Transport (10) No. 002611 (one company) Real Estate Association (Corporation) metropolitan area real estate Fair Trade Council member Tokyu Livable Inc. Kawaguchi Center Yubinbango332-0017 Kawaguchi City Prefecture Sakae 3-5-1 Takanashi building the fourth floor <仲介>国土交通大臣(10)第002611号(一社)不動産協会会員 (公社)首都圏不動産公正取引協議会加盟東急リバブル(株)川口センター〒332-0017 埼玉県川口市栄町3-5-1 高梨ビル4階 |
Local land photo現地土地写真  2013 December shooting
平成25年12月撮影
 Compartment figure
区画図
Location
|