32,500,000 yen, 132.34 sq m
Land/Building » Kanto » Saitama Prefecture » Kawaguchi city
 
| | Kawaguchi City Prefecture 埼玉県川口市 |
| JR Musashino Line "Higashikawaguchi" walk 16 minutes JR武蔵野線「東川口」歩16分 |
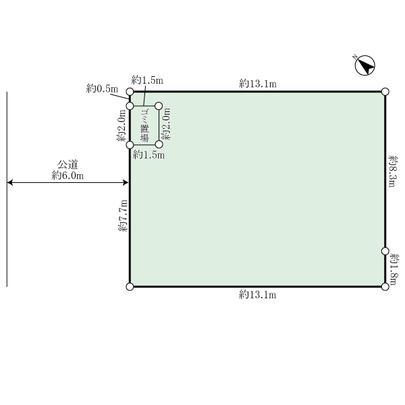
Price 価格 | | 32,500,000 yen 3250万円 | Building coverage, floor area ratio 建ぺい率・容積率 | | 60% ・ 200% 60%・200% | Sales compartment 販売区画数 | | 1 compartment 1区画 | Land area 土地面積 | | 132.34 sq m (measured) 132.34m2(実測) | Driveway burden-road 私道負担・道路 | | Nothing, Northwest 6m width 無、北西6m幅 | Land situation 土地状況 | | Vacant lot 更地 | Address 住所 | | Kawaguchi City Prefecture Higashikawaguchi 5 埼玉県川口市東川口5 | Traffic 交通 | | JR Musashino Line "Higashikawaguchi" walk 16 minutes JR武蔵野線「東川口」歩16分 | Person in charge 担当者より | | Rep Onda Masaaki 担当者恩田 雅章 | Contact お問い合せ先 | | Tokyu Livable Inc. Kawaguchi Center TEL: 0800-603-0183 [Toll free] mobile phone ・ Also available from PHS Caller ID is not notified Please contact the "saw SUUMO (Sumo)" If it does not lead, If the real estate company 東急リバブル(株)川口センターTEL:0800-603-0183【通話料無料】携帯電話・PHSからもご利用いただけます 発信者番号は通知されません 「SUUMO(スーモ)を見た」と問い合わせください つながらない方、不動産会社の方は
| Land of the right form 土地の権利形態 | | Ownership 所有権 | Time delivery 引き渡し時期 | | Immediate delivery allowed 即引渡し可 | Land category 地目 | | field 畑 | Use district 用途地域 | | One middle and high 1種中高 | Other limitations その他制限事項 | | It is not in the land with the building conditions 建築条件付きの土地ではありません | Overview and notices その他概要・特記事項 | | Contact: Onda Masaaki 担当者:恩田 雅章 | Company profile 会社概要 | | <Mediation> Minister of Land, Infrastructure and Transport (10) No. 002611 (one company) Real Estate Association (Corporation) metropolitan area real estate Fair Trade Council member Tokyu Livable Inc. Kawaguchi Center Yubinbango332-0017 Kawaguchi City Prefecture Sakae 3-5-1 Takanashi building the fourth floor <仲介>国土交通大臣(10)第002611号(一社)不動産協会会員 (公社)首都圏不動産公正取引協議会加盟東急リバブル(株)川口センター〒332-0017 埼玉県川口市栄町3-5-1 高梨ビル4階 |
Local land photo現地土地写真  local
現地
 Compartment figure
区画図
Location
|