Land/Building » Kanto » Saitama Prefecture » Koshigaya
 
| | Saitama Prefecture Koshigaya 埼玉県越谷市 |
| JR Musashino Line "Koshigaya Lake Town" walk 8 minutes JR武蔵野線「越谷レイクタウン」歩8分 |
| [Seller] Misawa Homes Co., Ltd. [Distributor] Streets of new city blocks to build in Misawa MJ Home Ltd. Misawa Homes of earthquake-resistant wooden house. 【売主】ミサワホーム株式会社【販売代理】ミサワMJホーム株式会社ミサワホームの耐震木造住宅で建てる新街区の街並み。 |
| Popular Koshigaya Lake Town was Machibiraki as New Town in 2008. Large Sagami detention pond that large-scale facilities and promenade around the station is able to walk feel free to waterside been established, There are also a lot of recreation, such as Lake Town sports park and Koshigaya distribution park. A quiet residential area, Shaping land, Or more before road 6m, It is close to the city, Flat to the station, Readjustment land within, City gas, Flat terrain. ニュータウンとして2008年に街開きした人気の越谷レイクタウン。駅周辺の大型施設や遊歩道が整備され気軽に水辺を散歩できる大相模調節池、レイクタウンスポーツ公園や越谷流通公園などの憩いの場もたくさんあります。閑静な住宅地、整形地、前道6m以上、市街地が近い、駅まで平坦、区画整理地内、都市ガス、平坦地。 |
Local guide map 現地案内図 | | Local guide map 現地案内図 | Features pickup 特徴ピックアップ | | Super close / It is close to the city / Flat to the station / A quiet residential area / Or more before road 6m / Shaping land / City gas / Fireworks viewing / Flat terrain / Readjustment land within スーパーが近い /市街地が近い /駅まで平坦 /閑静な住宅地 /前道6m以上 /整形地 /都市ガス /花火大会鑑賞 /平坦地 /区画整理地内 | Event information イベント情報 | | Local guide Board (Please be sure to ask in advance) schedule / Every Saturday, Sunday and public holidays time / 10:00 ~ 18: 001, May 11 (Saturday), 12 (Sunday), 13 days (holiday) is, We do night game open until 20:00. 現地案内会(事前に必ずお問い合わせください)日程/毎週土日祝時間/10:00 ~ 18:001月11日(土)、12日(日)、13日(祝)は、20時までナイター営業を致します。 | Property name 物件名 | | Nangai District new appearance in an 8-minute walk station! Lake Hills Garden Koshigaya Town South I 駅徒歩8分に南街区新登場! ヒルズガーデン越谷レイクタウン南I | Price 価格 | | 23,850,000 yen ~ 31,980,000 yen 2385万円 ~ 3198万円 | Building coverage, floor area ratio 建ぺい率・容積率 | | Kenpei rate: 50%, Volume ratio: 100% 建ペい率:50%、容積率:100% | Sales compartment 販売区画数 | | 9 compartment 9区画 | Total number of compartments 総区画数 | | 15 compartment 15区画 | Land area 土地面積 | | 150 sq m ~ 179.18 sq m 150m2 ~ 179.18m2 | Driveway burden-road 私道負担・道路 | | Outer wall retreat road 1m, Adjacent land 1m 外壁後退道路1m、隣地1m | Land situation 土地状況 | | Vacant lot 更地 | Address 住所 | | Saitama Prefecture Koshigaya Azumacho 7 埼玉県越谷市東町7 | Traffic 交通 | | JR Musashino Line "Koshigaya Lake Town" walk 8 minutes JR武蔵野線「越谷レイクタウン」歩8分 | Related links 関連リンク | | [Related Sites of this company] 【この会社の関連サイト】 | Person in charge 担当者より | | Person in charge of willow 担当者柳 | Contact お問い合せ先 | | Misawa MJ Home Development Division TEL: 0120-126-330 [Toll free] Please contact the "saw SUUMO (Sumo)" ミサワMJホーム 開発課TEL:0120-126-330【通話料無料】「SUUMO(スーモ)を見た」と問い合わせください | Sale schedule 販売スケジュール | | Is being accepted on a first come, first served basis. 先着順で受付中です。 | Most price range 最多価格帯 | | 23 million yen (3 compartment) 2300万円台(3区画) | Land of the right form 土地の権利形態 | | Ownership 所有権 | Building condition 建築条件 | | With 付 | Time delivery 引き渡し時期 | | Consultation 相談 | Land category 地目 | | Residential land 宅地 | Use district 用途地域 | | One low-rise 1種低層 | Other limitations その他制限事項 | | The first kind altitude district 第一種高度地区 | Overview and notices その他概要・特記事項 | | Contact: willow, Facilities: TEPCO, City gas, Public Water Supply (Water Supply join contribution 238,000 yen (including tax)), Public sewage, Agreement other Hills Garden Koshigaya Lake Town South I98 town District, If you live has established a unified outside the configuration guidelines to be able to share a richer living environment. 担当者:柳、設備:東京電力、都市ガス、公営水道(水道加入分担金238,000円(税込))、公共下水、協定その他 ヒルズガーデン越谷レイクタウン南I98街区は、お住まいの方がより豊かな住環境を共有できるように統一外構ガイドラインを定めています。 | Company profile 会社概要 | | <Marketing alliance (agency)> Governor of Tokyo (1) the first 093,550 No. Misawa MJ Home Co., Ltd. 160-0023 Tokyo Nishi-Shinjuku, Shinjuku-ku, 1-24-1 <販売提携(代理)>東京都知事(1)第093550号ミサワMJホーム(株)〒160-0023 東京都新宿区西新宿1-24-1 |
Otherその他  MJWood of Misawa Homes is, Peace of mind in the earthquake-resistant wooden house + vibration control device MGEO-N ・ We will make you the safety of your house.
ミサワホームのMJWoodは、耐震木造住宅+制振装置MGEO-Nで安心・安全のお住まいをお造りいたします。
Aerial photograph航空写真  Large-scale commercial facilities around the station an 8-minute walk from Koshigaya Lake Town Station
越谷レイクタウン駅から徒歩8分駅周辺には大型商業施設
Local photos, including front road前面道路含む現地写真  Room of quiet streets a subdivision
閑静な街並みのゆとりある分譲地
Local land photo現地土地写真  Local sales meeting held in!
現地販売会開催中!
Shopping centreショッピングセンター  870m to Aeon Lake Town outlet
イオンレイクタウンアウトレットまで870m
Other Environmental Photoその他環境写真  1080m to large Sagami detention pond
大相模調節池まで1080m
Park公園  Until it sees park 1550m
そうか公園まで1550m
Primary school小学校  Koshigaya Municipal poem to elementary school 1100m
越谷市立川柳小学校まで1100m
Junior high school中学校  Koshigaya Municipal Gwangyang until junior high school 1290m
越谷市立光陽中学校まで1290m
Kindergarten ・ Nursery幼稚園・保育園  Minami Koshigaya 1660m to kindergarten
南越谷幼稚園まで1660m
Park公園  1180m to Lake Town Sports Park
レイクタウンスポーツ公園まで1180m
Otherその他  Example of construction
施工例
 Example of construction
施工例
 Example of construction
施工例
 Example of construction
施工例
 Misawa MJ home of seismic wooden houses, Damping device standard equipment. Is an advanced technology that dwelling is hope and want to be in the safest place.
ミサワMJホームの耐震木造住宅は、制震装置が標準装備。住まいが一番安全な場所でありたいと願う先進の技術です。
Route map路線図  34 minutes to "Ikebukuro" station (37 minutes during commute)
「池袋」駅へ34分(通勤時37分)
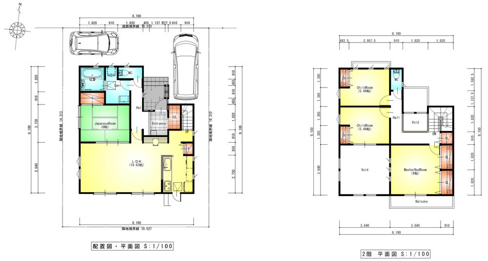
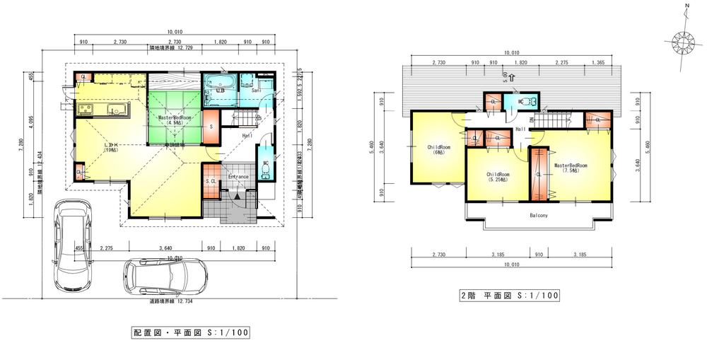
Building plan example (floor plan)建物プラン例(間取り図)  Building plan Example (2-3) 4LDK, Land price 23,990,000 yen, Land area 150.29 sq m , Building price 20,115,000 yen, Building area 111.99 sq m
建物プラン例(2-3)4LDK、土地価格2399万円、土地面積150.29m2、建物価格2011万5000円、建物面積111.99m2
 Building plan Example (2-9) 4LDK, Land price 26,820,000 yen, Land area 158.23 sq m , Building price 19,696,000 yen, Building area 108.47 sq m
建物プラン例(2-9)4LDK、土地価格2682万円、土地面積158.23m2、建物価格1969万6000円、建物面積108.47m2
Local guide map現地案内図  Newly built condominiums in the new urban area of Koshigaya Lake Town South!
越谷レイクタウン南の新街区に新築分譲住宅!
 The entire compartment Figure
全体区画図
Station駅  Koshigaya 640m to Lake Town Station
越谷レイクタウン駅まで640m
You will receive this brochureこんなパンフレットが届きます  This brochure will receive! JOIN NOW document request!
こちらのパンフレットが届きます!今すぐ資料請求しよう!
Location
|