|
|
Saitama Prefecture Koshigaya
埼玉県越谷市
|
|
Isesaki Tobu "Kitakoshigaya" walk 19 minutes
東武伊勢崎線「北越谷」歩19分
|
|
■ Northwest ・ Southwest of the corner lot ■ For more information, please feel free to call us
■北西・南西の角地です ■詳しくはお気軽にお電話ください
|
|
Landscape ordinance Limited Article 22 Building Standards Law Warranty disclaimer ■ ■ ■ Thanks to the 40th anniversary. If you want to self-fund to small, If you already have a borrowing, Such as those who have been denied a loan by other companies, Please feel free to consult the other about anything. 048-985-0711 ■ ■ ■
景観条例 建築基準法第22条制限あり 瑕疵担保免責 ■■■おかげさまで40周年。自己資金を少額にしたい方、すでに借り入れがある方、他社で融資を否認された方など、そのほかどんなことでもお気軽にご相談ください。048-985-0711■■■
|
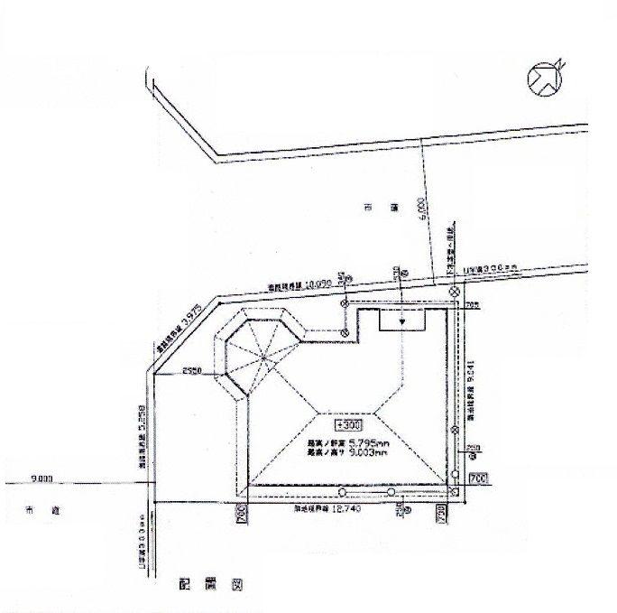
Features pickup 特徴ピックアップ | | Or more before road 6m / Corner lot 前道6m以上 /角地 |
Price 価格 | | 16.8 million yen 1680万円 |
Building coverage, floor area ratio 建ぺい率・容積率 | | 60% ・ 150% 60%・150% |
Sales compartment 販売区画数 | | 1 compartment 1区画 |
Total number of compartments 総区画数 | | 1 compartment 1区画 |
Land area 土地面積 | | 104.58 sq m (registration) 104.58m2(登記) |
Driveway burden-road 私道負担・道路 | | Nothing, Southwest 9m width, Northwest 6m width 無、南西9m幅、北西6m幅 |
Land situation 土地状況 | | Furuya There 古家有り |
Address 住所 | | Saitama Prefecture Koshigaya Higashiosawa 4 埼玉県越谷市東大沢4 |
Traffic 交通 | | Isesaki Tobu "Kitakoshigaya" walk 19 minutes Isesaki Tobu "large bag" walk 26 minutes Isesaki Tobu "Koshigaya" walk 31 minutes 東武伊勢崎線「北越谷」歩19分 東武伊勢崎線「大袋」歩26分 東武伊勢崎線「越谷」歩31分
|
Related links 関連リンク | | [Related Sites of this company] 【この会社の関連サイト】 |
Contact お問い合せ先 | | TEL: 0800-808-9111 [Toll free] mobile phone ・ Also available from PHS Caller ID is not notified Please contact the "saw SUUMO (Sumo)" If it does not lead, If the real estate company TEL:0800-808-9111【通話料無料】携帯電話・PHSからもご利用いただけます 発信者番号は通知されません 「SUUMO(スーモ)を見た」と問い合わせください つながらない方、不動産会社の方は
|
Land of the right form 土地の権利形態 | | Ownership 所有権 |
Time delivery 引き渡し時期 | | Consultation 相談 |
Land category 地目 | | Residential land 宅地 |
Use district 用途地域 | | One middle and high 1種中高 |
Other limitations その他制限事項 | | Landscape ordinance Limited Article 22 Building Standards Law 景観条例 建築基準法第22条制限あり |
Overview and notices その他概要・特記事項 | | Facilities: Public Water Supply, This sewage, Individual LPG 設備:公営水道、本下水、個別LPG |
Company profile 会社概要 | | <Mediation> Saitama Governor (11) No. 006157 (Corporation) Prefecture Building Lots and Buildings Transaction Business Association (Corporation) metropolitan area real estate Fair Trade Council member Saitama mutual housing (Ltd.) headquarters Yubinbango343-0837 Saitama Prefecture Koshigaya Gamohon cho 1-52 <仲介>埼玉県知事(11)第006157号(公社)埼玉県宅地建物取引業協会会員 (公社)首都圏不動産公正取引協議会加盟埼玉相互住宅(株)本社〒343-0837 埼玉県越谷市蒲生本町1-52 |