Land/Building » Kanto » Saitama Prefecture » Niiza
 
| | Saitama Prefecture Niiza 埼玉県新座市 |
| JR Musashino Line "Niiza" walk 10 minutes JR武蔵野線「新座」歩10分 |
| ◆ Good location, a 10-minute walk from Niiza Station ◆ Clear some grounds of about 52 square meters ◆ Optimal living environment to permanent residence ◆新座駅より徒歩10分の好立地 ◆約52坪のゆとりある敷地 ◆永住に最適な住環境 |
| Land 50 square meters or more, A quiet residential area, Flat to the station, Leafy residential area, Flat terrain, 2 along the line more accessible, Yang per good, Building plan example there 土地50坪以上、閑静な住宅地、駅まで平坦、緑豊かな住宅地、平坦地、2沿線以上利用可、陽当り良好、建物プラン例有り |
Features pickup 特徴ピックアップ | | 2 along the line more accessible / Land 50 square meters or more / Yang per good / Flat to the station / A quiet residential area / Leafy residential area / Flat terrain / Building plan example there 2沿線以上利用可 /土地50坪以上 /陽当り良好 /駅まで平坦 /閑静な住宅地 /緑豊かな住宅地 /平坦地 /建物プラン例有り | Price 価格 | | 25,100,000 yen 2510万円 | Building coverage, floor area ratio 建ぺい率・容積率 | | Fifty percent ・ 80% 50%・80% | Sales compartment 販売区画数 | | 1 compartment 1区画 | Total number of compartments 総区画数 | | 1 compartment 1区画 | Land area 土地面積 | | 172.23 sq m (52.09 tsubo) (Registration) 172.23m2(52.09坪)(登記) | Driveway burden-road 私道負担・道路 | | Nothing 無 | Land situation 土地状況 | | Vacant lot 更地 | Address 住所 | | Saitama Prefecture Niiza Nobidome 4 埼玉県新座市野火止4 | Traffic 交通 | | JR Musashino Line "Niiza" walk 10 minutes Seibu Ikebukuro Line "Kiyose" 15 minutes Oriental before walking 7 minutes by bus Tobu Tojo Line "Shiki" 10 minutes desired 芙台 residential walk 11 minutes by bus JR武蔵野線「新座」歩10分西武池袋線「清瀬」バス15分オリエンタル酵母工業前歩7分 東武東上線「志木」バス10分望芙台住宅歩11分
| Related links 関連リンク | | [Related Sites of this company] 【この会社の関連サイト】 | Person in charge 担当者より | | Person in charge of Osaka Yusuke Age: 20s community, Information relating to the house, of course, While we will provide a variety of live information, Customers Let's look for the consent Yukio live together. We look forward from the bottom of my heart in My Town Shiki shop. 担当者大坂 悠介年齢:20代地域密着、住宅に係る情報はもちろん、様々な生きる情報をご提供させて頂きながら、お客様がご納得ゆくお住まいを一緒に探していきましょう。マイタウン志木店で心よりお待ちもうしあげます。 | Contact お問い合せ先 | | TEL: 0120-762666 [Toll free] Please contact the "saw SUUMO (Sumo)" TEL:0120-762666【通話料無料】「SUUMO(スーモ)を見た」と問い合わせください | Land of the right form 土地の権利形態 | | Ownership 所有権 | Building condition 建築条件 | | With 付 | Time delivery 引き渡し時期 | | Consultation 相談 | Land category 地目 | | Mountain forest 山林 | Use district 用途地域 | | One low-rise 1種低層 | Overview and notices その他概要・特記事項 | | Contact: Osaka Yusuke, Facilities: Public Water Supply, This sewage, Individual LPG 担当者:大坂 悠介、設備:公営水道、本下水、個別LPG | Company profile 会社概要 | | <Mediation> Minister of Land, Infrastructure and Transport (1) No. 008439 (Ltd.) My Town Shiki head office Yubinbango351-0025 Saitama Prefecture Asaka Mihara 2-19-20 <仲介>国土交通大臣(1)第008439号(株)マイタウン志木本店〒351-0025 埼玉県朝霞市三原2-19-20 |
Local land photo現地土地写真  Selling local
販売現地
Compartment figure区画図  Land price 25,100,000 yen, Land area 172.23 sq m compartment view
土地価格2510万円、土地面積172.23m2 区画図
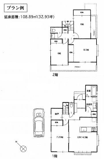
Building plan example (floor plan)建物プラン例(間取り図)  Building plan example Building price 14.7 million yen, Building area 108.89 sq m
建物プラン例 建物価格 1470万円、建物面積108.89m2
Local land photo現地土地写真  Selling local
販売現地
Supermarketスーパー  La ・ Until Vignes 1100m
ラ・ヴィーニュまで1100m
 Until Yaoko Co., Ltd. 1200m
ヤオコーまで1200m
Primary school小学校  Nobidome until elementary school 750m
野火止小学校まで750m
Junior high school中学校  Niiza 2000m until junior high school
新座中学校まで2000m
Kindergarten ・ Nursery幼稚園・保育園  Healthy until the nursery 850m
すこやか保育園まで850m
Location
|