78,800,000 yen, 103.76 sq m
Land/Building » Kanto » Tokyo » Bunkyo
 
| | Bunkyo-ku, Tokyo 東京都文京区 |
| Toei Mita Line "Sengoku" walk 7 minutes 都営三田線「千石」歩7分 |
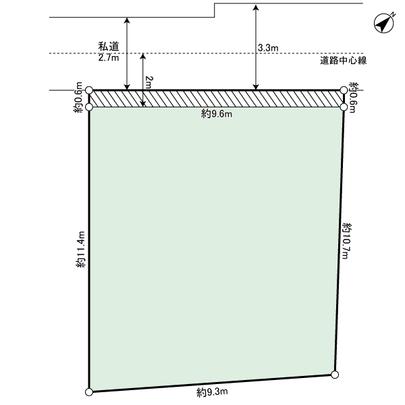
Price 価格 | | 78,800,000 yen 7880万円 | Building coverage, floor area ratio 建ぺい率・容積率 | | 60% ・ 160% 60%・160% | Sales compartment 販売区画数 | | 1 compartment 1区画 | Land area 土地面積 | | 103.76 sq m (registration) 103.76m2(登記) | Driveway burden-road 私道負担・道路 | | Nothing, Northwest 2.7m width 無、北西2.7m幅 | Land situation 土地状況 | | Furuya There 古家有り | Address 住所 | | Bunkyo-ku, Tokyo Honkomagome 2 東京都文京区本駒込2 | Traffic 交通 | | Toei Mita Line "Sengoku" walk 7 minutes Tokyo Metro Nanboku Line "Honkomagome" walk 9 minutes 都営三田線「千石」歩7分 東京メトロ南北線「本駒込」歩9分
| Person in charge 担当者より | | Rep Kitago Teppei 担当者北郷 哲平 | Contact お問い合せ先 | | Tokyu Livable Inc. Komagome Center TEL: 0800-603-0192 [Toll free] mobile phone ・ Also available from PHS Caller ID is not notified Please contact the "saw SUUMO (Sumo)" If it does not lead, If the real estate company 東急リバブル(株)駒込センターTEL:0800-603-0192【通話料無料】携帯電話・PHSからもご利用いただけます 発信者番号は通知されません 「SUUMO(スーモ)を見た」と問い合わせください つながらない方、不動産会社の方は
| Land of the right form 土地の権利形態 | | Ownership 所有権 | Time delivery 引き渡し時期 | | Consultation 相談 | Land category 地目 | | Residential land 宅地 | Use district 用途地域 | | One middle and high 1種中高 | Other limitations その他制限事項 | | ・ Building conditions There is no. ・ You can architecture in your favorite House manufacturer. ・建築条件はございません。 ・お好きなハウスメーカーで建築できます。 | Overview and notices その他概要・特記事項 | | Contact: Kitago Teppei 担当者:北郷 哲平 | Company profile 会社概要 | | <Mediation> Minister of Land, Infrastructure and Transport (10) Article 002611 No. Tokyu Livable Inc. Komagome Center Yubinbango170-0003 Toshima-ku, Tokyo Komagome 3-3-19 Tokyo plover building 6th floor <仲介>国土交通大臣(10)第002611号東急リバブル(株)駒込センター〒170-0003 東京都豊島区駒込3-3―19 東京千鳥ビル6階 |
Local land photo現地土地写真  local
現地
 Compartment figure
区画図
Location
|