Land/Building » Kanto » Tokyo » Bunkyo
 
| | Bunkyo-ku, Tokyo 東京都文京区 |
| Tokyo Metro Chiyoda Line "Nishinippori" walk 8 minutes 東京メトロ千代田線「西日暮里」歩8分 |
| Yamanote Line ・ In the location of the Chiyoda Line "Nishinippori" station 8 minutes, It is sold land with building conditions. Environment is good, Bunkyo-ku, Sendagi 4-chome. Reference Plan Available Building 96 square meters 4LDK garage with two building amount of money 16,900,000 yen Total 5 山手線・千代田線「西日暮里」駅8分の立地で、建築条件付売地です。文京区千駄木4丁目環境良好です。参考プラン有 建物96平米4LDK車庫2台付建物金額1690万円 総額5 |
| Yamanote Line ・ In the location of the Chiyoda Line "Nishinippori" station 8 minutes, It is sold land with building conditions. Environment is good, Bunkyo-ku, Sendagi 4-chome. Reference Plan Available Building 96 square meters 4LDK garage with two building amount of money 16,900,000 yen Total 58,800,000 yen elementary school is Sendagi elementary school. 山手線・千代田線「西日暮里」駅8分の立地で、建築条件付売地です。文京区千駄木4丁目環境良好です。参考プラン有 建物96平米4LDK車庫2台付建物金額1690万円 総額5880万円小学校は千駄木小学校です。 |
Features pickup 特徴ピックアップ | | 2 along the line more accessible / A quiet residential area / Shaping land / City gas 2沿線以上利用可 /閑静な住宅地 /整形地 /都市ガス | Price 価格 | | 41,900,000 yen 4190万円 | Building coverage, floor area ratio 建ぺい率・容積率 | | 60% ・ 160% 60%・160% | Sales compartment 販売区画数 | | 1 compartment 1区画 | Total number of compartments 総区画数 | | 3 compartment 3区画 | Land area 土地面積 | | 55.46 sq m (16.77 tsubo) (measured) 55.46m2(16.77坪)(実測) | Driveway burden-road 私道負担・道路 | | Nothing, North 3.6m width (contact the road width 6m) 無、北3.6m幅(接道幅6m) | Land situation 土地状況 | | Vacant lot 更地 | Address 住所 | | Bunkyo-ku, Tokyo Sendagi 4 東京都文京区千駄木4 | Traffic 交通 | | Tokyo Metro Chiyoda Line "Nishinippori" walk 8 minutes JR Yamanote Line "Nishinippori" walk 8 minutes JR Keihin Tohoku Line "Tabata" walk 8 minutes 東京メトロ千代田線「西日暮里」歩8分 JR山手線「西日暮里」歩8分 JR京浜東北線「田端」歩8分 | Person in charge 担当者より | | Rep Akiyoshi Nagato 担当者長門明義 | Contact お問い合せ先 | | (Ltd.) House top TEL: 0800-601-3362 [Toll free] mobile phone ・ Also available from PHS Caller ID is not notified Please contact the "saw SUUMO (Sumo)" If it does not lead, If the real estate company (株)ハウストップTEL:0800-601-3362【通話料無料】携帯電話・PHSからもご利用いただけます 発信者番号は通知されません 「SUUMO(スーモ)を見た」と問い合わせください つながらない方、不動産会社の方は
| Land of the right form 土地の権利形態 | | Ownership 所有権 | Building condition 建築条件 | | With 付 | Time delivery 引き渡し時期 | | Consultation 相談 | Land category 地目 | | Residential land 宅地 | Use district 用途地域 | | One dwelling 1種住居 | Other limitations その他制限事項 | | Set-back: already セットバック:済 | Overview and notices その他概要・特記事項 | | Contact: Akiyoshi Nagato, Facilities: This sewage, City gas 担当者:長門明義、設備:本下水、都市ガス | Company profile 会社概要 | | <Mediation> Governor of Tokyo (1) No. 092568 (Ltd.) House top Yubinbango113-0023, Bunkyo-ku, Tokyo Mukogaoka 2-36-9 first floor <仲介>東京都知事(1)第092568号(株)ハウストップ〒113-0023 東京都文京区向丘2-36-9 1階 |
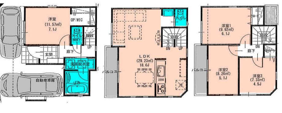
Compartment view + building plan example区画図+建物プラン例  Building plan example, Land price 41,900,000 yen, Land area 55.46 sq m , Building price 1,000 yen, Building area 96.05 sq m
建物プラン例、土地価格4190万円、土地面積55.46m2、建物価格1000円、建物面積96.05m2
Compartment figure区画図  Land price 41,900,000 yen, Land area 55.46 sq m
土地価格4190万円、土地面積55.46m2
 Local land photo
現地土地写真
 Local land photo
現地土地写真
Location
|