Land/Building » Kanto » Tokyo » Chofu
 
| | Chofu, Tokyo 東京都調布市 |
| Keio Line "west Chofu" walk 10 minutes 京王線「西調布」歩10分 |
| ◇ site area 56 square meters more than! Surrounding environment enhancement, Located in a quiet residential area construction conditions free of sales areas ☆ ◇ we recommend the property to the person who thought the two-family house! ◇敷地面積56坪超!周辺環境充実、閑静な住宅街にある建築条件無の売地☆◇二世帯住宅をお考えの方にもおすすめの物件です! |
| ◆ Keio Line "west Chofu" × "Chofu" × "Tobitakyu" of 3 Station available ☆ ◆ Elementary School 8 minutes walk, Child-rearing environment of peace of mind in a 9-minute walk junior high school! ◆ convenience store ・ Super 3-minute walk, Enhance hospitals and clinics within a 10-minute walk! ◆ Since the building conditions-free can be building in your favorite House manufacturer ☆ For more information ○ is [Document request] Please feel free to contact us more! ☆ ... ‥ - * - ‥ ■ Keio Line ・ Center line ・ To the property if the Company's Odakyu line! ■ HP only of information and non-public property is also a large number! ■ You can access from the Related Links ☆ "Customer dream to its previous ..." ‥ - * - ‥ ... ☆ ◆京王線『西調布』×『調布』×『飛田給』の3駅利用可能☆◆小学校徒歩8分、中学校徒歩9分で安心の子育て環境!◆コンビニ・スーパー徒歩3分、病院やクリニックが徒歩10分圏内に充実!◆建築条件無なのでお好きなハウスメーカーで建築できます☆○詳しくは【資料請求】よりお気軽にお問い合わせください!☆…‥―*―‥ ■京王線・中央線・小田急線の物件なら当社へ! ■HPのみの情報や未公開物件も多数! ■関連リンクよりアクセスできます☆ 『お客様の夢のその先へ…』 ‥―*―‥…☆ |
Features pickup 特徴ピックアップ | | Land 50 square meters or more / Super close / A quiet residential area / No construction conditions / City gas / Flat terrain 土地50坪以上 /スーパーが近い /閑静な住宅地 /建築条件なし /都市ガス /平坦地 | Price 価格 | | 40 million yen 4000万円 | Building coverage, floor area ratio 建ぺい率・容積率 | | 40% ・ 80% 40%・80% | Sales compartment 販売区画数 | | 1 compartment 1区画 | Total number of compartments 総区画数 | | 1 compartment 1区画 | Land area 土地面積 | | 185.66 sq m (registration) 185.66m2(登記) | Driveway burden-road 私道負担・道路 | | Nothing, West 4m width 無、西4m幅 | Land situation 土地状況 | | Vacant lot 更地 | Address 住所 | | Chofu, Tokyo Shimoishiwara 3 東京都調布市下石原3 | Traffic 交通 | | Keio Line "west Chofu" walk 10 minutes Keio Line "Chofu" walk 19 minutes Keio Line "Tobitakyu" walk 18 minutes 京王線「西調布」歩10分 京王線「調布」歩19分 京王線「飛田給」歩18分
| Related links 関連リンク | | [Related Sites of this company] 【この会社の関連サイト】 | Person in charge 担当者より | | Rep Kanazawa Ryo summer age: the 20's bright shop and a children's space. Please be needed in your family by all means! Pick you up at the proud smile ☆ We will help you with your happiness! 担当者金澤 涼夏年齢:20代明るい店内にはキッズスペースもあります。ぜひご家族でいらしてください!自慢の笑顔でお迎えします☆みなさんの幸せのお手伝いをさせていただきます! | Contact お問い合せ先 | | TEL: 0800-603-8577 [Toll free] mobile phone ・ Also available from PHS Caller ID is not notified Please contact the "saw SUUMO (Sumo)" If it does not lead, If the real estate company TEL:0800-603-8577【通話料無料】携帯電話・PHSからもご利用いただけます 発信者番号は通知されません 「SUUMO(スーモ)を見た」と問い合わせください つながらない方、不動産会社の方は
| Land of the right form 土地の権利形態 | | Ownership 所有権 | Time delivery 引き渡し時期 | | Consultation 相談 | Land category 地目 | | Residential land 宅地 | Use district 用途地域 | | One low-rise 1種低層 | Overview and notices その他概要・特記事項 | | Contact: Kanazawa Cool summer, Facilities: Public Water Supply, This sewage, City gas 担当者:金澤 涼夏、設備:公営水道、本下水、都市ガス | Company profile 会社概要 | | <Mediation> Governor of Tokyo (2) No. 089073 (Ltd.) Dream House Yubinbango182-0002 Chofu, Tokyo Sengawa cho 3-9-22 <仲介>東京都知事(2)第089073号(株)ドリームハウス〒182-0002 東京都調布市仙川町3-9-22 |
Construction completion expected view造成完了予想図  Appearance construction cases
外観施工例
 Local land photo
現地土地写真
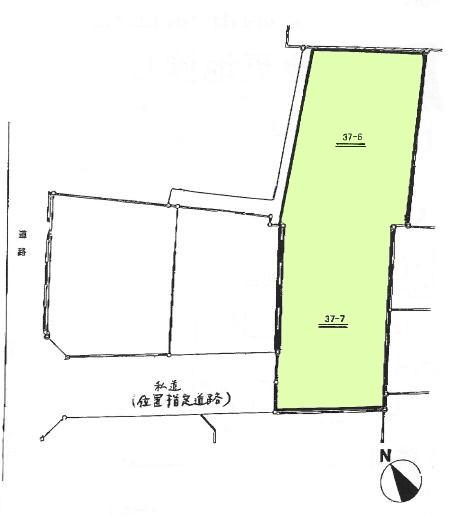
Compartment figure区画図  Land price 40 million yen, Land area 185.66 sq m compartment view
土地価格4000万円、土地面積185.66m2 区画図
Local photos, including front road前面道路含む現地写真  Local land photo
現地土地写真
Building plan example (introspection photo)建物プラン例(内観写真)  Living example of construction
リビング施工例
Primary school小学校  Chofu 700m walk 8 minutes to the third elementary school
調布第三小学校まで700m 徒歩8分
Building plan example (introspection photo)建物プラン例(内観写真)  Kitchen construction cases
キッチン施工例
Junior high school中学校  Chofu 750m walk 9 minutes until the fifth junior high school
調布第五中学校まで750m 徒歩9分
Building plan example (introspection photo)建物プラン例(内観写真)  Western-style construction cases
洋室施工例
Other Environmental Photoその他環境写真  800m walk 10 minutes to the west Chofu Station
西調布駅まで800m 徒歩10分
Building plan example (introspection photo)建物プラン例(内観写真)  Bathroom construction cases
浴室施工例
Location
|