61,800,000 yen, 214.17 sq m
Land/Building » Kanto » Tokyo » Chofu
 
| | Chofu, Tokyo 東京都調布市 |
| Keio Line "Chofu" 12 minutes Jindaiji entrance walk 3 minutes by bus 京王線「調布」バス12分深大寺入口歩3分 |
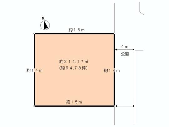
Price 価格 | | 61,800,000 yen 6180万円 | Building coverage, floor area ratio 建ぺい率・容積率 | | 40% ・ 80% 40%・80% | Sales compartment 販売区画数 | | 1 compartment 1区画 | Land area 土地面積 | | 214.17 sq m (measured) 214.17m2(実測) | Driveway burden-road 私道負担・道路 | | Nothing, East 4m width (contact the road width 14m) 無、東4m幅(接道幅14m) | Land situation 土地状況 | | Furuya There 古家有り | Address 住所 | | Chofu, Tokyo Jindaijimoto cho 4 東京都調布市深大寺元町4 | Traffic 交通 | | Keio Line "Chofu" 12 minutes Jindaiji entrance walk 3 minutes by bus 京王線「調布」バス12分深大寺入口歩3分
| Person in charge 担当者より | | Rep Takahashi Yasuyuki 担当者高橋 保幸 | Contact お問い合せ先 | | TEL: 0800-600-3411 [Toll free] mobile phone ・ Also available from PHS Caller ID is not notified Please contact the "saw SUUMO (Sumo)" If it does not lead, If the real estate company TEL:0800-600-3411【通話料無料】携帯電話・PHSからもご利用いただけます 発信者番号は通知されません 「SUUMO(スーモ)を見た」と問い合わせください つながらない方、不動産会社の方は
| Land of the right form 土地の権利形態 | | Ownership 所有権 | Time delivery 引き渡し時期 | | February 2014 late schedule 2014年2月下旬予定 | Land category 地目 | | Residential land 宅地 | Use district 用途地域 | | One low-rise 1種低層 | Other limitations その他制限事項 | | ・ Split negotiable / Facilities: city gas, Public Water Supply, The sewage City Planning Law other limitation: the first kind advanced, "Building Standards Law Article 22, Article 23 of the area", "Civil Aeronautics Law," "reserves ・分割相談可/設備:都市ガス、公営水道、本下水 都市計画法他制限:第1種高度、「建築基準法22条,23条区域」「航空法」「埋蔵 | Overview and notices その他概要・特記事項 | | Contact: Takahashi Yasuyuki 担当者:高橋 保幸 | Company profile 会社概要 | | <Mediation> Minister of Land, Infrastructure and Transport (3) No. 006,101 (one company) Property distribution management Association (Corporation) metropolitan area real estate Fair Trade Council member Nomura brokerage + Kichijoji sales department Nomura Real Estate Urban Net Co., Ltd. Yubinbango180-0004 Musashino-shi, Tokyo Kichijojihon cho 1-10-31 NOF Kichijojihon cho Building third floor <仲介>国土交通大臣(3)第006101号(一社)不動産流通経営協会会員 (公社)首都圏不動産公正取引協議会加盟野村の仲介+吉祥寺営業部野村不動産アーバンネット(株)〒180-0004 東京都武蔵野市吉祥寺本町1-10-31 NOF吉祥寺本町ビル3階 |
Local land photo現地土地写真  Local (with Furuya)
現地(古家あり)
 Compartment figure
区画図
Location
|